TRT - Вдоль р.Киржач. Для стандартных 4х4 (08.11.25) Форум Обсуждение FAQ
Где расположен предохранитель доп. электроприборов?
Модераторы: SNOOPER, Nbf, Romik, BAlex
-
Sanslav
- Сообщения: 4
- Зарегистрирован: 15 окт 2010, 00:26
- Двигатель:: бензин
- Мой автомобиль(и):: Мицубиси Пандшеро 4
- Откуда: Москва
Где расположен предохранитель доп. электроприборов?
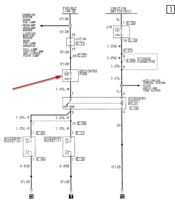
Други, подскажите, где расположен предохранитель доп.электроприборов № 18 ? Исчезла напруга в розетках.
А/м Пандшеро спорт 2008
А/м Пандшеро спорт 2008
-
vadym
- Сообщения: 1457
- Зарегистрирован: 12 сен 2007, 00:50
- Откуда: Черновцы
- Благодарил (а): 12 раз
- Поблагодарили: 120 раз
Re: Где расположен предохранитель доп. электроприборов?
Под торпедой возле руля блок с реле с дополнительными предохранителямиSanslav писал(а):Други, подскажите, где расположен предохранитель доп.электроприборов № 18 ? Исчезла напруга в розетках.
А/м Пандшеро спорт 2008

рядом с пр.№17 стоит №18

Но с чего ты решил, что пр. № 18 отвечает за доп. электрооборудование, вроде это должен быть №15 он расположен в этом же блоке с другой стороны.
PAJERO SPORT 2003 2,5 TD
-
Sanslav
- Сообщения: 4
- Зарегистрирован: 15 окт 2010, 00:26
- Двигатель:: бензин
- Мой автомобиль(и):: Мицубиси Пандшеро 4
- Откуда: Москва
Re: Где расположен предохранитель доп. электроприборов?
Спасибо за подсказку!
То, что 18-й, то это в руководстве написано. 15-й там эт передние противотуманки

То, что 18-й, то это в руководстве написано. 15-й там эт передние противотуманки

Последний раз редактировалось Sanslav 16 окт 2010, 14:11, всего редактировалось 1 раз.
-
vadym
- Сообщения: 1457
- Зарегистрирован: 12 сен 2007, 00:50
- Откуда: Черновцы
- Благодарил (а): 12 раз
- Поблагодарили: 120 раз
Re: Где расположен предохранитель доп. электроприборов?
Я смотрю, сравнивая с твоим рисунком и электросхемой поменяли номера.
П.С. Если вставляешь изображения, размещай его лучше тут на сайте в фотогалерее (мой альбом) или через "добавить файл", а то часто бывает чужой ресурс недоступен и вместо изображения фигвам ::-): .
П.С. Если вставляешь изображения, размещай его лучше тут на сайте в фотогалерее (мой альбом) или через "добавить файл", а то часто бывает чужой ресурс недоступен и вместо изображения фигвам ::-): .
PAJERO SPORT 2003 2,5 TD
Re: Где расположен предохранитель доп. электроприборов?
Подскажите други!
Не работают доп розетки. Седня все предохранители под рулем проверил и в колодке и так на проводах-все целые! Куда еще смотреть?
Не работают доп розетки. Седня все предохранители под рулем проверил и в колодке и так на проводах-все целые! Куда еще смотреть?
2011- Renault Megane
2008-2011 Montero Sport 2003 3.0L AWD АКПП газ(Lovato) (продан)
2008-2011 Montero Sport 2003 3.0L AWD АКПП газ(Lovato) (продан)
- willson
- Сообщения: 629
- Зарегистрирован: 21 мар 2009, 18:42
- Двигатель:: 4D56T
- Мой автомобиль(и):: Pajero 2
- Откуда: Приморский кр
- Благодарил (а): 1 раз
- Поблагодарили: 2 раза
Re: Где расположен предохранитель доп. электроприборов?
в самой розетке есть плавка вставка - разбирать розетку и проверять её - подходит ли к ней питание. сам в выходные ремонтировал прикуриватель - там плавкая вставка перегорела - похожа на кусочек провода. как разберешь, увидишь
!
P-1(L149G)89г 4D56T АКПП Exсeed 7 мест - продан
P-2(V47)95г 4D56T АКПП 5 мест владею
P-2(V47)95г 4D56T АКПП 5 мест владею
Re: Где расположен предохранитель доп. электроприборов?
willson разбирал, вставка целая, на всякий отверткой замкнул ее напрямую-напруги нет ( незнаю что еще делать (
2011- Renault Megane
2008-2011 Montero Sport 2003 3.0L AWD АКПП газ(Lovato) (продан)
2008-2011 Montero Sport 2003 3.0L AWD АКПП газ(Lovato) (продан)
- willson
- Сообщения: 629
- Зарегистрирован: 21 мар 2009, 18:42
- Двигатель:: 4D56T
- Мой автомобиль(и):: Pajero 2
- Откуда: Приморский кр
- Благодарил (а): 1 раз
- Поблагодарили: 2 раза
Re: Где расположен предохранитель доп. электроприборов?
а на проводе, который подходит к розетке, питание есть (ключ в замке зажигания повернуть на "ON")?
P-1(L149G)89г 4D56T АКПП Exсeed 7 мест - продан
P-2(V47)95г 4D56T АКПП 5 мест владею
P-2(V47)95г 4D56T АКПП 5 мест владею
Re: Где расположен предохранитель доп. электроприборов?
willson у меня тестера нет, я просто напрямую провода бросил от вставки и второго контакта - заярядка от мобилы не заработала. У меня одновременно вырубило обе розетки и передняя и задняя.
2011- Renault Megane
2008-2011 Montero Sport 2003 3.0L AWD АКПП газ(Lovato) (продан)
2008-2011 Montero Sport 2003 3.0L AWD АКПП газ(Lovato) (продан)
-
vadym
- Сообщения: 1457
- Зарегистрирован: 12 сен 2007, 00:50
- Откуда: Черновцы
- Благодарил (а): 12 раз
- Поблагодарили: 120 раз
Re: Где расположен предохранитель доп. электроприборов?
Crater,Crater писал(а):willson у меня тестера нет, я просто напрямую провода бросил от вставки и второго контакта - заярядка от мобилы не заработала. У меня одновременно вырубило обе розетки и передняя и задняя.
ремонт очень прост, приблизительно процесс типа этого:
-проверить напр. на розетках доп. приборов, если нет то:
-проверить предохранители, если исправны то:
-проверить или приходит напряжение на колодку предохранителя, если да то:
-проверить включается ли реле доп. приборов, если включается то:
-проверить или приходит на контакты реле напряжение с предохранителя и т.д....
Необходим тестер, схема электрическая принципиальная, схема расположения электрических узлов, схемы нужны для твоей машины так как в зависимости от года и для монтеро или паджеро могут отличаться.
Если чего-то нет, или не знаешь что это такое, то надо идти к электрику. ::-):
PAJERO SPORT 2003 2,5 TD
Re: Где расположен предохранитель доп. электроприборов?
vadym спасибо, поеду я лучше к электрикам, пропарился с этими розетками вчера пол дня.
2011- Renault Megane
2008-2011 Montero Sport 2003 3.0L AWD АКПП газ(Lovato) (продан)
2008-2011 Montero Sport 2003 3.0L AWD АКПП газ(Lovato) (продан)
- willson
- Сообщения: 629
- Зарегистрирован: 21 мар 2009, 18:42
- Двигатель:: 4D56T
- Мой автомобиль(и):: Pajero 2
- Откуда: Приморский кр
- Благодарил (а): 1 раз
- Поблагодарили: 2 раза
Re: Где расположен предохранитель доп. электроприборов?
я думал у тебя все это есть:
"Необходим тестер, схема электрическая принципиальная, схема расположения электрических узлов, схемы нужны для твоей машины так как в зависимости от года и для монтеро или паджеро могут отличаться."
"Необходим тестер, схема электрическая принципиальная, схема расположения электрических узлов, схемы нужны для твоей машины так как в зависимости от года и для монтеро или паджеро могут отличаться."
P-1(L149G)89г 4D56T АКПП Exсeed 7 мест - продан
P-2(V47)95г 4D56T АКПП 5 мест владею
P-2(V47)95г 4D56T АКПП 5 мест владею
Re: Где расположен предохранитель доп. электроприборов?
не, я рассчитывал найти сгоревший предохранитель, а походу придецца доверить дело спецам-сам не умею.
2011- Renault Megane
2008-2011 Montero Sport 2003 3.0L AWD АКПП газ(Lovato) (продан)
2008-2011 Montero Sport 2003 3.0L AWD АКПП газ(Lovato) (продан)
- Андрей77vse16
- Сообщения: 99
- Зарегистрирован: 15 фев 2010, 22:26
- Двигатель:: 3.0 6G72
- Мой автомобиль(и):: MMS LS AWD 2001
- Откуда: Питер
Re: Где расположен предохранитель доп. электроприборов?
Фак мой мозк!
Не могу обнаружить блок предохранителей под панелью слева от руля! У меня такого как на фото в теме ящичка - нет.
Снял панель полностью - слева торчит только блок штатной сигналки, глубже его - какие-то два куба (релюхи?) большие на плате и еще глубже красно-зеленый футлярчик. Это все не то.
ММС-2001, pissed off beyond all f.. repairs!
Не могу обнаружить блок предохранителей под панелью слева от руля! У меня такого как на фото в теме ящичка - нет.
Снял панель полностью - слева торчит только блок штатной сигналки, глубже его - какие-то два куба (релюхи?) большие на плате и еще глубже красно-зеленый футлярчик. Это все не то.
ММС-2001, pissed off beyond all f.. repairs!
Удачного дня,
Андрей
MMS LS AWD 3.0 6G72, 2001 г., бывший шнивовод
Андрей
MMS LS AWD 3.0 6G72, 2001 г., бывший шнивовод
-
wilddikpro
- Сообщения: 9
- Зарегистрирован: 13 дек 2011, 01:39
- Двигатель:: Дизель 3.2
- Мой автомобиль(и):: Pajero IV 3.2
- Откуда: Москва
Re: Где расположен предохранитель доп. электроприборов?
Помогите с советом пожалуйста!!! Что делать ??? Менял лампочки подсветки в зеркалах на диодные и по ходу тормознул и коротнул где-то контакты патрончика при установке светодиодов. Ситуация: "Вежливая" подсветка при выходе-входе (передние двери) не горят в обоих зеркалах, предохранители целые (15 А проверил -тестер показал РАБОЧИЕ, но поставил новые. В сервис-мануале предохранители идут под Номером 24), лампочки накаливания вместо светодиодов вернул родные. НО!!! И они не светят!!! Нигде ничего не нашел. *(((((
. Что делать ??? Прошу Вас ответить в форуме и на wilddik@inbox.ru
Огромное спасибо.
. Что делать ??? Прошу Вас ответить в форуме и на wilddik@inbox.ru
Огромное спасибо.
