TRT - Вдоль р.Киржач. Для стандартных 4х4 (08.11.25) Форум Обсуждение FAQ
6G72 Ремонт моторчика регулятора холостого хода (РХХ) (FAQ)
Модераторы: SNOOPER, Nbf, Romik, BAlex, drcham, алексей - Маленький Мук, DenVer
- Карбафос
- Сообщения: 8391
- Зарегистрирован: 10 дек 2008, 16:16
- Двигатель:: 6G72 12V
- Мой автомобиль(и):: Пыжикк
- Откуда: УУууууу...
- Откуда: Улан-Удэ
- Благодарил (а): 14 раз
- Поблагодарили: 48 раз
- Контактная информация:
Re: 6G72 Ремонт моторчика регулятора холостого хода (РХХ) (F
Я вам про Фому, вы мне про Ерёму. Я говорю не про обрыв, а про КЗ.. При нагреве материал изменяет свои свойства..как и лак что покрывает провода. Толщину лакового покрытия знаете? Проводимость провода при нагреве изменяется. Полюбому КЗ. И его будет сложно нати цэшкой. Пусть рабочий поставит мотор, сразу всё измениться. Проезжали мы это...знаем-с.
П2:1995 г.,LT285*75*16, 6G72 12V, МКПП, Принудительная блокировка сзади, 4 см, силовые бампера, CоmeUР9500, 3 дв, Араб, счасливый обладатель АСЛ 1985 года выпуска заточена как бритва! Вопрос: Джип должен быть вровень с грязью или выпирать??!!
- Damael
- Сообщения: 442
- Зарегистрирован: 11 апр 2010, 16:30
- Двигатель:: 4M41
- Мой автомобиль(и):: Pajero 3
- Откуда: Екатеринбург
- Откуда: Екатеринбург
- Благодарил (а): 19 раз
- Поблагодарили: 12 раз
- Контактная информация:
Re: 6G72 Ремонт моторчика регулятора холостого хода (РХХ) (F
Ну вы сами ответили на свой вопрос. На мозги грешить в последнюю очередь, но хотя бы визуальный осмотр не помешает. Датчик температуры проверяется цешкой за 2 минуты.владимир михайлович писал(а):ревизия моторчика конечно хорошо, но плогаю, что этим не закончится. Почему обороты прогрева высокие, но с прогревом приходят в норму? традиционныйй обрыв обмотки не позволил бы меняться оборотам. Может заедает моторчик, закис. А может мозги шалят или датчик температуры.
Что касается РХХ, то у меня была проблема с ним и выглядело это так: иногда при сбросе газа обороты падали к 400, затем выравнивались. Были и другие глюки, которые я уже не припомню. При первом прозвоне сопротивления всех четырех обмоток были в пределах допуска по мурзилке, поэтому на РХХ я не грешил, хотя снял, почистил и смазал его.
Затем поменял датчик температуры, термостат, ВВ-провода, свечи, катушку зажигания, крышку трамблера с бегунком, лямбду. Ничего не изменилось. Так и ездил, пока в один прекрасный момент при сбросе газа машина просто не заглохла. Потом снова вроде бы стала держать обороты, а закончилось тем, что машина отлично заводилась, выходила на прогревочные, а по мере прогрева постепенно сбрасывала обороты до нуля )) При этом прозвон катушек выявил, что в трех катушках все ок, а четвертая имеет сопротивление чуть больше остальных. При прогреве эта катушка давала замыкание и шток РХХ не двигала.
Самый простой способ - поставить РХХ заведомо рабочий на время и посмотреть что изменится.
Последний раз редактировалось Damael 11 дек 2012, 11:54, всего редактировалось 1 раз.
Pajero II GLS, 5 дв., 6G72 12-кл., SS, R/D Lock, 1992 г. европеец, бодик +4см, 33" Hankook МТ - был
Volvo S60, Land Rover Discovery 3 - были
Pajero 3 GLX, 5 дв., 4M41, МКПП, 2000 г.в., почти 32" CF3000 - был
Land Rover Discovery II V8 2003 - ?
Volvo S60, Land Rover Discovery 3 - были
Pajero 3 GLX, 5 дв., 4M41, МКПП, 2000 г.в., почти 32" CF3000 - был
Land Rover Discovery II V8 2003 - ?
- Карбафос
- Сообщения: 8391
- Зарегистрирован: 10 дек 2008, 16:16
- Двигатель:: 6G72 12V
- Мой автомобиль(и):: Пыжикк
- Откуда: УУууууу...
- Откуда: Улан-Удэ
- Благодарил (а): 14 раз
- Поблагодарили: 48 раз
- Контактная информация:
Re: 6G72 Ремонт моторчика регулятора холостого хода (РХХ) (F
я и гаварю...КЗ.)))
П2:1995 г.,LT285*75*16, 6G72 12V, МКПП, Принудительная блокировка сзади, 4 см, силовые бампера, CоmeUР9500, 3 дв, Араб, счасливый обладатель АСЛ 1985 года выпуска заточена как бритва! Вопрос: Джип должен быть вровень с грязью или выпирать??!!
- dvm99
- Сообщения: 21738
- Зарегистрирован: 21 май 2012, 20:59
- Двигатель:: 6G72, 12клап.,
- Мой автомобиль(и):: Pajero2, Запорожец- Ланос
- Откуда: Свердловская обл.
- Благодарил (а): 706 раз
- Поблагодарили: 1027 раз
Re: 6G72 Ремонт моторчика регулятора холостого хода (РХХ) (F
А почему с проверки не начать? Может она выявит явное.
Нагреть/остудить РХХ не такая уж большая прблема, если есть под руками горячая вода и холодильник. Можно конечно тупо менять всё подряд и выйти на причину уже по десятому кругу (а то и не выйти), затратив при этом кучу времени, денег и нервов. Ну, конечно если вам РХХ купить- что за хлебом сходить, тогда другое дело.
Нагреть/остудить РХХ не такая уж большая прблема, если есть под руками горячая вода и холодильник. Можно конечно тупо менять всё подряд и выйти на причину уже по десятому кругу (а то и не выйти), затратив при этом кучу времени, денег и нервов. Ну, конечно если вам РХХ купить- что за хлебом сходить, тогда другое дело.
Дмитрий
Боливар2 - П2, 92г., V43, 6G72(12V), V4AW2, RD/L, пруль (чистокровный японский рысак)
Боливар1 - П2, 93г., 6G72(12V), МКПП, V43, RD/L, Европа (славный был конь, но уже донор)
Боливар2 - П2, 92г., V43, 6G72(12V), V4AW2, RD/L, пруль (чистокровный японский рысак)
Боливар1 - П2, 93г., 6G72(12V), МКПП, V43, RD/L, Европа (славный был конь, но уже донор)
- Карбафос
- Сообщения: 8391
- Зарегистрирован: 10 дек 2008, 16:16
- Двигатель:: 6G72 12V
- Мой автомобиль(и):: Пыжикк
- Откуда: УУууууу...
- Откуда: Улан-Удэ
- Благодарил (а): 14 раз
- Поблагодарили: 48 раз
- Контактная информация:
Re: 6G72 Ремонт моторчика регулятора холостого хода (РХХ) (F
блин, вот вы это пробовали делать? Я лично нет, это геморно...а симптомы, явные.
П2:1995 г.,LT285*75*16, 6G72 12V, МКПП, Принудительная блокировка сзади, 4 см, силовые бампера, CоmeUР9500, 3 дв, Араб, счасливый обладатель АСЛ 1985 года выпуска заточена как бритва! Вопрос: Джип должен быть вровень с грязью или выпирать??!!
- dvm99
- Сообщения: 21738
- Зарегистрирован: 21 май 2012, 20:59
- Двигатель:: 6G72, 12клап.,
- Мой автомобиль(и):: Pajero2, Запорожец- Ланос
- Откуда: Свердловская обл.
- Благодарил (а): 706 раз
- Поблагодарили: 1027 раз
Re: 6G72 Ремонт моторчика регулятора холостого хода (РХХ) (F
Геморрно? - может быть вообще-то... Тут конечно личный опыт общения с радиодетальками приветствуется в плане того как подцепиться к моторчику.
Дмитрий
Боливар2 - П2, 92г., V43, 6G72(12V), V4AW2, RD/L, пруль (чистокровный японский рысак)
Боливар1 - П2, 93г., 6G72(12V), МКПП, V43, RD/L, Европа (славный был конь, но уже донор)
Боливар2 - П2, 92г., V43, 6G72(12V), V4AW2, RD/L, пруль (чистокровный японский рысак)
Боливар1 - П2, 93г., 6G72(12V), МКПП, V43, RD/L, Европа (славный был конь, но уже донор)
- Warrior31
- Сообщения: 25
- Зарегистрирован: 11 дек 2012, 06:31
- Двигатель:: 6G72 SOHS
- Мой автомобиль(и):: Mitsubishi Pajero 2 93г.в. Яп., мех., 3 дв. 32/11,5/r15 n-889
- Откуда: Петропавловск-Камчатский
- Откуда: Камчатка
- Благодарил (а): 2 раза
- Контактная информация:
Re: 6G72 Ремонт моторчика регулятора холостого хода (РХХ) (F
В общем, как я понял, для начала нужно все тщательно выкопать в сторону моторчика РХХ, дабы икслючить его из некоторого числа возможных причин. Тем более, это не так сложно. Попробую в свободное время, о результатах сообщу.
Все возможные варианты и причины устранения по-прежнему приветствуются!)
Все возможные варианты и причины устранения по-прежнему приветствуются!)
Mitsubishi Pajero 2, 6g72, пруль, мех., 3 дв. 35/12,5/R15. Бодик 6см.
- Warrior31
- Сообщения: 25
- Зарегистрирован: 11 дек 2012, 06:31
- Двигатель:: 6G72 SOHS
- Мой автомобиль(и):: Mitsubishi Pajero 2 93г.в. Яп., мех., 3 дв. 32/11,5/r15 n-889
- Откуда: Петропавловск-Камчатский
- Откуда: Камчатка
- Благодарил (а): 2 раза
- Контактная информация:
Re: 6G72 Ремонт моторчика регулятора холостого хода (РХХ) (F
Покурил форум, и снова у меня вопросик появился по поводу прогревочных оборотов в 2,3 тысячи... Я так понял, где-то есть датчик температуры либо окружающей среды, либо входящего воздуха (одно и то же, но для ясности написал) и от этой самой температуры зависят обороты прогрева... Может ли этот самый датчик глючить настолько, чтобы круглый год крутить мой мотор до 2300оборотов на прогреве?? Если так, то что это за штука этот датчик и где его искать и как починять, если есть такие варианты??
Как всегда бесконечно благодарен за ответы!
Как всегда бесконечно благодарен за ответы!
Mitsubishi Pajero 2, 6g72, пруль, мех., 3 дв. 35/12,5/R15. Бодик 6см.
- Карбафос
- Сообщения: 8391
- Зарегистрирован: 10 дек 2008, 16:16
- Двигатель:: 6G72 12V
- Мой автомобиль(и):: Пыжикк
- Откуда: УУууууу...
- Откуда: Улан-Удэ
- Благодарил (а): 14 раз
- Поблагодарили: 48 раз
- Контактная информация:
Re: 6G72 Ремонт моторчика регулятора холостого хода (РХХ) (F
Хреново курите..
П2:1995 г.,LT285*75*16, 6G72 12V, МКПП, Принудительная блокировка сзади, 4 см, силовые бампера, CоmeUР9500, 3 дв, Араб, счасливый обладатель АСЛ 1985 года выпуска заточена как бритва! Вопрос: Джип должен быть вровень с грязью или выпирать??!!
- dvm99
- Сообщения: 21738
- Зарегистрирован: 21 май 2012, 20:59
- Двигатель:: 6G72, 12клап.,
- Мой автомобиль(и):: Pajero2, Запорожец- Ланос
- Откуда: Свердловская обл.
- Благодарил (а): 706 раз
- Поблагодарили: 1027 раз
Re: 6G72 Ремонт моторчика регулятора холостого хода (РХХ) (F
Ага, не в затяг зобает...
Warrior31, попробуйте вот этот табачок пыхнуть http://manual.pajero4x4.ru/?wpfb_dl=3678 , штырит по многим вопросам
Warrior31, попробуйте вот этот табачок пыхнуть http://manual.pajero4x4.ru/?wpfb_dl=3678 , штырит по многим вопросам
Дмитрий
Боливар2 - П2, 92г., V43, 6G72(12V), V4AW2, RD/L, пруль (чистокровный японский рысак)
Боливар1 - П2, 93г., 6G72(12V), МКПП, V43, RD/L, Европа (славный был конь, но уже донор)
Боливар2 - П2, 92г., V43, 6G72(12V), V4AW2, RD/L, пруль (чистокровный японский рысак)
Боливар1 - П2, 93г., 6G72(12V), МКПП, V43, RD/L, Европа (славный был конь, но уже донор)
-
www123
- Сообщения: 30
- Зарегистрирован: 20 июн 2011, 09:35
- Двигатель:: 6g72
- Мой автомобиль(и):: mmс p3 араб 3двери
Re: 6G72 Ремонт моторчика регулятора холостого хода (РХХ) (F
Warrior31 писал(а):Покурил форум, и снова у меня вопросик появился по поводу прогревочных оборотов в 2,3 тысячи... Я так понял, где-то есть датчик температуры либо окружающей среды, либо входящего воздуха (одно и то же, но для ясности написал) и от этой самой температуры зависят обороты прогрева... Может ли этот самый датчик глючить настолько, чтобы круглый год крутить мой мотор до 2300оборотов на прогреве?? Если так, то что это за штука этот датчик и где его искать и как починять, если есть такие варианты??
Как всегда бесконечно благодарен за ответы!
Вот только недавно с этим моторчиком общался на своей машине... Снял, помыл, получил 2000 холостого хода. Снял, утопил руками шток, до перегазовки нормуль, потом опять 2000. Вылечил заменой РХХ.
- Warrior31
- Сообщения: 25
- Зарегистрирован: 11 дек 2012, 06:31
- Двигатель:: 6G72 SOHS
- Мой автомобиль(и):: Mitsubishi Pajero 2 93г.в. Яп., мех., 3 дв. 32/11,5/r15 n-889
- Откуда: Петропавловск-Камчатский
- Откуда: Камчатка
- Благодарил (а): 2 раза
- Контактная информация:
Re: 6G72 Ремонт моторчика регулятора холостого хода (РХХ) (F
Снял, разобрал, особой грязи нигде не обнаружил... все помыл, собрал на место - результат нулевой, все осталось на прежнем уровне... Проверить катушки было нечем, да и некогда.. Придется посвятить этому еще одну разборку... На вид мотор рхх в близком к идеальному состоянии...
Mitsubishi Pajero 2, 6g72, пруль, мех., 3 дв. 35/12,5/R15. Бодик 6см.
- Карбафос
- Сообщения: 8391
- Зарегистрирован: 10 дек 2008, 16:16
- Двигатель:: 6G72 12V
- Мой автомобиль(и):: Пыжикк
- Откуда: УУууууу...
- Откуда: Улан-Удэ
- Благодарил (а): 14 раз
- Поблагодарили: 48 раз
- Контактная информация:
Re: 6G72 Ремонт моторчика регулятора холостого хода (РХХ) (F
а вы тама чо ожидали? Грязь по колено? Так её там впринцыпе не могёт быть...))))
Механика не умирает, умирают катушки.
Механика не умирает, умирают катушки.
П2:1995 г.,LT285*75*16, 6G72 12V, МКПП, Принудительная блокировка сзади, 4 см, силовые бампера, CоmeUР9500, 3 дв, Араб, счасливый обладатель АСЛ 1985 года выпуска заточена как бритва! Вопрос: Джип должен быть вровень с грязью или выпирать??!!
- dvm99
- Сообщения: 21738
- Зарегистрирован: 21 май 2012, 20:59
- Двигатель:: 6G72, 12клап.,
- Мой автомобиль(и):: Pajero2, Запорожец- Ланос
- Откуда: Свердловская обл.
- Благодарил (а): 706 раз
- Поблагодарили: 1027 раз
Re: 6G72 Ремонт моторчика регулятора холостого хода (РХХ) (F
После наступления холодов начал замечать, что тахометр обороты ХХ показывает то больше (чуть вше 1000), то меньше (аж до 500), хотя по ощущениям (вроде не первый день родился) изменений в работе движка не замтено. Сегодня что-то набегался и решил пивка купить. Подъехал к гаражу , сижу оттягиваюсь, мотор не глушу, печка работает. Через некоторое время жарко стало, выключаю печку, приоткрываю своё окно. Минут через 5 чёрт дёрнул нажать на газ, и ХХ на глазах подскочил! Решил поэксперементировать с печкой (не знаю, как у кого, но у меня панель немного от неё нагревается) - включаю/выключаю, т.е. нагреваю и охлаждаю от раскрытого окна, на всякий случай видеокамеру телефона на стрёме держу. И вон чего наснимал (во вложении) за качество не бейте, темновато было! Походу и мне контактами тахометра пора заниматься.
Кстати, в РХХ я тоже залез не так давно на всякий случай. В общем-то подозрений он особых не вызывал, на ходу никогда никаких проблем с перебоями не было. Удивило, что сопротивления обмоток рознятся с теми, что в мануале указаны, но все одинаковые - 44 Ома. Ещё удивило, что алгоритм работы я его не раскусил, и он отличается от того, что в мануале описан. Пригласил вечером помочь друга ключом пощёлкать, сам открутил РХХ и держал в руках, двигатель прогрет. Дык вот что интересно, шток вообще почти не двигался, даже когда движок заводили. Во время отключения правда чуток бздыкал, но начального позиционирования, которое описано в мануале (т.е. выставиться на 120 шагов, а потом отпозиционироваться на 90 шагов), не происходило, или уж настолько быстро он крутит, что фиг заметишь. Но вот когда заводишь холодную машину, то жужжание РХХ слышно отчётливо и довольно продолжительно (около 1 сек.).
Кстати, в РХХ я тоже залез не так давно на всякий случай. В общем-то подозрений он особых не вызывал, на ходу никогда никаких проблем с перебоями не было. Удивило, что сопротивления обмоток рознятся с теми, что в мануале указаны, но все одинаковые - 44 Ома. Ещё удивило, что алгоритм работы я его не раскусил, и он отличается от того, что в мануале описан. Пригласил вечером помочь друга ключом пощёлкать, сам открутил РХХ и держал в руках, двигатель прогрет. Дык вот что интересно, шток вообще почти не двигался, даже когда движок заводили. Во время отключения правда чуток бздыкал, но начального позиционирования, которое описано в мануале (т.е. выставиться на 120 шагов, а потом отпозиционироваться на 90 шагов), не происходило, или уж настолько быстро он крутит, что фиг заметишь. Но вот когда заводишь холодную машину, то жужжание РХХ слышно отчётливо и довольно продолжительно (около 1 сек.).
- Вложения
-
[Расширение 3gp было запрещено, вложение больше недоступно.]
Дмитрий
Боливар2 - П2, 92г., V43, 6G72(12V), V4AW2, RD/L, пруль (чистокровный японский рысак)
Боливар1 - П2, 93г., 6G72(12V), МКПП, V43, RD/L, Европа (славный был конь, но уже донор)
Боливар2 - П2, 92г., V43, 6G72(12V), V4AW2, RD/L, пруль (чистокровный японский рысак)
Боливар1 - П2, 93г., 6G72(12V), МКПП, V43, RD/L, Европа (славный был конь, но уже донор)
- montero565
- Сообщения: 374
- Зарегистрирован: 24 окт 2011, 13:36
- Двигатель:: 6G74
- Мой автомобиль(и):: Montero 3
- Откуда: Астана
- Откуда: Астана
- Благодарил (а): 8 раз
- Поблагодарили: 26 раз
Re: 6G72 Ремонт моторчика регулятора холостого хода (РХХ) (F
Народ, С Наступающим Новым Годом! прошу помощи у кого есть Монтеро 3. дело в следующем пропали холостые и прогревочные обороты. приходится ездить одна нога газ, другая тормоз. до этого снимал впуск и менял свечи. раз 10 до этого снимал и не было такого, теперь появилось. просьба, можете сказать какие цветом провода втыкаются в РХХ, дело в том что у меня нет там шеткера, сделано мама-папа. и порядок забыл. если не сложно можете сделать фото и скинуть цвета проводов куда втыкаются в РХХ (там 6 контактов) всем большое спасибо. Сам РХХ находится под дроссельной заслонкой!
Montero III 2011 y. 6G74, color
- montero565
- Сообщения: 374
- Зарегистрирован: 24 окт 2011, 13:36
- Двигатель:: 6G74
- Мой автомобиль(и):: Montero 3
- Откуда: Астана
- Откуда: Астана
- Благодарил (а): 8 раз
- Поблагодарили: 26 раз
Re: 6G72 Ремонт моторчика регулятора холостого хода (РХХ) (F
неужели никто не имеет Монтеро III...или все празднованием Нового Года занятыmontero565 писал(а):Народ, С Наступающим Новым Годом! прошу помощи у кого есть Монтеро 3. дело в следующем пропали холостые и прогревочные обороты. приходится ездить одна нога газ, другая тормоз. до этого снимал впуск и менял свечи. раз 10 до этого снимал и не было такого, теперь появилось. просьба, можете сказать какие цветом провода втыкаются в РХХ, дело в том что у меня нет там шеткера, сделано мама-папа. и порядок забыл. если не сложно можете сделать фото и скинуть цвета проводов куда втыкаются в РХХ (там 6 контактов) всем большое спасибо. Сам РХХ находится под дроссельной заслонкой!
Montero III 2011 y. 6G74, color
- dvm99
- Сообщения: 21738
- Зарегистрирован: 21 май 2012, 20:59
- Двигатель:: 6G72, 12клап.,
- Мой автомобиль(и):: Pajero2, Запорожец- Ланос
- Откуда: Свердловская обл.
- Благодарил (а): 706 раз
- Поблагодарили: 1027 раз
Re: 6G72 Ремонт моторчика регулятора холостого хода (РХХ) (F
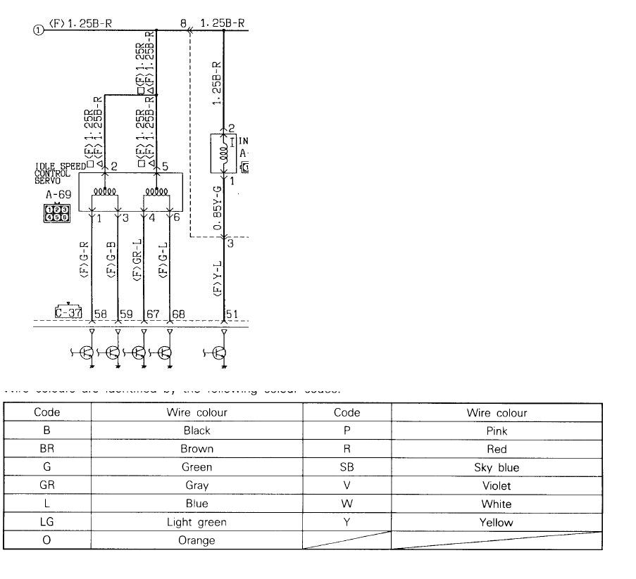
Коллега, я конечно не знаю, насколько совпадает маркировка 74-го и 72-го движка, но у нас в мануале вот так. Если вам не лень
, то найдите свой мануал и посмотрите схему.
Дмитрий
Боливар2 - П2, 92г., V43, 6G72(12V), V4AW2, RD/L, пруль (чистокровный японский рысак)
Боливар1 - П2, 93г., 6G72(12V), МКПП, V43, RD/L, Европа (славный был конь, но уже донор)
Боливар2 - П2, 92г., V43, 6G72(12V), V4AW2, RD/L, пруль (чистокровный японский рысак)
Боливар1 - П2, 93г., 6G72(12V), МКПП, V43, RD/L, Европа (славный был конь, но уже донор)
- montero565
- Сообщения: 374
- Зарегистрирован: 24 окт 2011, 13:36
- Двигатель:: 6G74
- Мой автомобиль(и):: Montero 3
- Откуда: Астана
- Откуда: Астана
- Благодарил (а): 8 раз
- Поблагодарили: 26 раз
Re: 6G72 Ремонт моторчика регулятора холостого хода (РХХ) (F
к сожалению у меня нет мануала(( сейчас попробую прочитать схему, спасибо Вам Большое!dvm99 писал(а):Коллега, я конечно не знаю, насколько совпадает маркировка 74-го и 72-го движка, но у нас в мануале вот так. Если вам не лень, то найдите свой мануал и посмотрите схему.
Montero III 2011 y. 6G74, color
- montero565
- Сообщения: 374
- Зарегистрирован: 24 окт 2011, 13:36
- Двигатель:: 6G74
- Мой автомобиль(и):: Montero 3
- Откуда: Астана
- Откуда: Астана
- Благодарил (а): 8 раз
- Поблагодарили: 26 раз
Re: 6G72 Ремонт моторчика регулятора холостого хода (РХХ) (F
Спасибо, но к сожалению у меня цвета проводов другие, а у Вас провода идут в один цвет, а у меня, например, зеленая с черной полоской, или красный с серыми точками. Но все же большое спасибо, буду искать дальше! С Новым Годом!dvm99 писал(а):Коллега, я конечно не знаю, насколько совпадает маркировка 74-го и 72-го движка, но у нас в мануале вот так. Если вам не лень, то найдите свой мануал и посмотрите схему.
Montero III 2011 y. 6G74, color
- dvm99
- Сообщения: 21738
- Зарегистрирован: 21 май 2012, 20:59
- Двигатель:: 6G72, 12клап.,
- Мой автомобиль(и):: Pajero2, Запорожец- Ланос
- Откуда: Свердловская обл.
- Благодарил (а): 706 раз
- Поблагодарили: 1027 раз
Re: 6G72 Ремонт моторчика регулятора холостого хода (РХХ) (F
Как одноцветные??? Я ж специально таблицу прилепил. G-R - зелёный с красным, GR-L - серый с голубым и т.д. Но конечно правильнее смотреть свой мануал, раскройте глаза сверху в шапке форума есть ФАК, где найдёте по своей машине http://td.pajero4x4.ru/?p=710
Дмитрий
Боливар2 - П2, 92г., V43, 6G72(12V), V4AW2, RD/L, пруль (чистокровный японский рысак)
Боливар1 - П2, 93г., 6G72(12V), МКПП, V43, RD/L, Европа (славный был конь, но уже донор)
Боливар2 - П2, 92г., V43, 6G72(12V), V4AW2, RD/L, пруль (чистокровный японский рысак)
Боливар1 - П2, 93г., 6G72(12V), МКПП, V43, RD/L, Европа (славный был конь, но уже донор)
