TRT "107-108" Для стандарта и не только! (4.04.2026) Форум Обсуждение FAQ

Отвечу на вопросы по автоэлектрике

Электрика в Pajero

Модераторы: SNOOPER, Nbf, Romik, BAlex

Аватара пользователя
Deem-On
Сообщения: 1014
Зарегистрирован: 18 мар 2011, 17:49
Двигатель:: 4M40
Мой автомобиль(и):: Паджеро 2, был
Откуда: Ярославль
Благодарил (а): 8 раз
Поблагодарили: 95 раз

Re: Отвечу на вопросы по автоэлектрике

Сообщение Deem-On »

Ну почему же нет, вот в этой теме в первом сообщениии все схемы http://www.pajero4x4.ru/bbs/phpBB2/view ... 0&t=114866
П-2 1994 длинный,GLS,4М40,АКПП,SS,А/Т32"-увы, уже донор
Аватара пользователя
maddoc
Сообщения: 354
Зарегистрирован: 13 ноя 2016, 09:46
Двигатель:: 6G72
Мой автомобиль(и):: Паджеро 4
Откуда: МО
Благодарил (а): 5 раз
Поблагодарили: 8 раз

Re: Отвечу на вопросы по автоэлектрике

Сообщение maddoc »

Тоно есть) а можно уточнить, где именно, а то с англицким не особо дружу(наглядно типа так)
Вложения
ингибитор 2.jpg
Аватара пользователя
Deem-On
Сообщения: 1014
Зарегистрирован: 18 мар 2011, 17:49
Двигатель:: 4M40
Мой автомобиль(и):: Паджеро 2, был
Откуда: Ярославль
Благодарил (а): 8 раз
Поблагодарили: 95 раз

Re: Отвечу на вопросы по автоэлектрике

Сообщение Deem-On »

Искать там : 23A-AUTOMATIC TRANSMISSION/ ON-VEHICLE SERVICE/ A/T CONTROL COMPONENT CHECK/ INHIBITOR SWITCH CHECK
А выглядит так:
CCF25012018_00012.jpg
П-2 1994 длинный,GLS,4М40,АКПП,SS,А/Т32"-увы, уже донор
Аватара пользователя
maddoc
Сообщения: 354
Зарегистрирован: 13 ноя 2016, 09:46
Двигатель:: 6G72
Мой автомобиль(и):: Паджеро 4
Откуда: МО
Благодарил (а): 5 раз
Поблагодарили: 8 раз

Re: Отвечу на вопросы по автоэлектрике

Сообщение maddoc »

ок, спасибо.
anri36
Сообщения: 27
Зарегистрирован: 14 янв 2018, 17:50
Двигатель:: 6G72
Мой автомобиль(и):: Mitsubishi Pajero 2006
Откуда: Dubai
Благодарил (а): 12 раз
Поблагодарили: 2 раза

Re: Отвечу на вопросы по автоэлектрике

Сообщение anri36 »

Дмитрий приветствую!
Постарался подробно описать свою проблему в посте! Сорри если много воды.
http://www.pajero4x4.ru/bbs/phpBB2/view ... 0&t=167118

Вчера сам на парковке тыкался везде где позволяет разумение тестером и проверял предохранители! Все в норме!

При повороте селектора печки смотрел напряжение на электронном реле регулятора оборотов. то что с большим алюминиевым радиатором охлаждения и находиться под бардачком (еж)! Везде ноль, питание на него не поступает при включенном поворотном селекторе вентилятора.

Пока не добрался до реле вентилятора под панелью приборов, там все очень неудобно, не подлезть, а релюхи сидят мертво.

Осталась надежда что накрылось реле под панелью приборов (если отвечающая за вентилятор релюха там вообще есть) По схеме она под номером D-406 под названием реле переднего вентилятора ?!
http://www.avtoblokrele.ru/wp-content/u ... alon-3.jpg

Всю Распиновку смотрел тут. http://avtoblokrele.ru/mitsubishi/predo ... ero-4.html
Подскажи пожалуйста алгоритм проверки, где прозванивать и где смотреть? В вышеобозначенной схеме наименования какие то туманные.
исходя из этого рисунка http://www.avtoblokrele.ru/wp-content/u ... apot-3.jpg
Например не понятно что такое предохр. под капотом №10 -"вентилятор конденсатора"? Но Он в порядке.
№30 предохранитель на 50 ампер названый "Электродвигатель вентилятора отопителя тоже в порядке".

Подключали в сервисе к мозгам какой то "профессиональный OBD", тот долго все читал и выдал ошибок нет. (
Скоро жара, без кондера будет трындец (
И не знаю за что прогневил боженьку что послал мне такой головняк )

Зранее благодарен.
Андрей
Аватара пользователя
Deem-On
Сообщения: 1014
Зарегистрирован: 18 мар 2011, 17:49
Двигатель:: 4M40
Мой автомобиль(и):: Паджеро 2, был
Откуда: Ярославль
Благодарил (а): 8 раз
Поблагодарили: 95 раз

Re: Отвечу на вопросы по автоэлектрике

Сообщение Deem-On »

Приветствую, если это обращение именно ко мне, так то я не один Дима здесь ::-D:
Видишь ли, конкретно у меня нет опыта ковыряния с П4, так что могу подсказать только в общих чертах, по схемам, ну и общий алгоритм что проверить, но немного погодя, ближе к вечеру время будет, гляну схемы, может чем и помогу, а пока несколько наводящих вопросов:
1. модель автомобиля(п-4?), комплектация(две печки+два кондея или как?), блок управления климатом какой(ручной, электронный...)
2. что еще не работает, кроме моторчика? в режиме отопителя работает?, задний работает? вентилятор перед радиатором включается?, муфта компрессора кондиционера щелкает, обороты при этом повышаются?
3. Как перестал работать, сразу или постепенно, после чего это появилось, может какие работы с авто были и после этого всплыло?
В общем, жду подробностей, а там уже будем думать, и , кстати, эта тема http://www.pajero4x4.ru/bbs/phpBB2/view ... 0&t=160252 не зря писалась.
П-2 1994 длинный,GLS,4М40,АКПП,SS,А/Т32"-увы, уже донор
anri36
Сообщения: 27
Зарегистрирован: 14 янв 2018, 17:50
Двигатель:: 6G72
Мой автомобиль(и):: Mitsubishi Pajero 2006
Откуда: Dubai
Благодарил (а): 12 раз
Поблагодарили: 2 раза

Re: Отвечу на вопросы по автоэлектрике

Сообщение anri36 »

Deem-On писал(а):Приветствую, если это обращение именно ко мне, так то я не один Дима здесь ::-D:
Да Дмитрий к тебе.

Видишь ли, конкретно у меня нет опыта ковыряния с П4, так что могу подсказать только в общих чертах, по схемам, ну и общий алгоритм что проверить, но немного погодя, ближе к вечеру время будет, гляну схемы, может чем и помогу, а пока несколько наводящих вопросов:
Очень буду благодарен и на этом

1. модель автомобиля(п-4?), комплектация(две печки+два кондея или как?), блок управления климатом какой(ручной, электронный...)

О Машине
1.Год выпуска автомобиля. 2006
2.Расположение руля. левое
3.Количество дверей 2
4.Наименование двигателя. 6G72, без трамблера, 24 клапана. С огромным впускным коллектором и кучей трубок и датчиков.
5.Тип трансмиссии и раздатки (АКПП с возожностью принудительно включать скорости переводом рычага вправо, Super Select с полной блокировкой с пониженкой, овердрайва нет.). Задний диф. самоблокирующийся.
6.Есть АБС ,
7.Кондиционер одинарный, климат-контроль. имеется. задней печки нет, ..
.Модель по моему разумению П4 - win JMYMRV63W6J708730, пробег 250000 км по ровным эмиратским дорогам. Оф роуда не было.
8.Задний мост независимая подвеска.
9. Люка нет
10. имеется корректор фар




2. что еще не работает, кроме моторчика? в режиме отопителя работает?

В режиме отопителя (при выключенном кондее) вентилятор тоже не работает. Кондей включается и выключается нажатием на поворотную ручку которая управляет скоростью вращения вентилятора печки. Также при постановке на авто этой ручки кондей включается. При этом при повороте этой ручки (скорости вентил. и включ. кондея), верхний дисплей отображает что обороты меняются за счет делений. Таким образом есть основания полагать что сам блок управления исправен. т.к. реагирует на все команды (открытие задвижки на тепло, включение только внутренней вентиляции, включение кондиционера, температура в салоне и забортного воздуха. не реагирует только на включение вентилятора)
Если ручкой регулятора климата поставить на тепло, то тепло идет за счет встречного потока воздуха, вентилятор не работает.


В режиме отпит, задний работает?
Его нет. машина коротыш 3 двери.

вентилятор перед радиатором включается?, Вентилятор включается, но поработав немного отключается, также как и кондиционер

муфта компрессора кондиционера щелкает, обороты при этом повышаются? да компрессор включается и работает нормально,
обороты на холостых повышаются. Через некоторое время трубка становиться холодной и покрывется изморосью, кондиционер отключается.


3. Как перестал работать, сразу или постепенно, после чего это появилось, может какие работы с авто были и после этого всплыло?

Ни каких работ не производилось. Умирать стал постепенно. Впервые проявилось так. Ехал по трассе и вдруг неожиданно остановился вентилятор. Остановился машину, покопался в предохранителях под капотом. Ничего не заработало. Утром пришел завел и о чудо!! Все заработало. и Затем с завидным постоянством то работает, то не работает, с чем то связать не могу. То во время движения перестает дуть вентилятор, то после глушения. Какого то конкретного алгоритма отказа выявить не смог! Очень беспорядочно проявлялся отказ в работе. Продолжалось так около 2-3 недель. За это время купил б.у. регулятор оборотов (еж) поставил все заработало. Потом через некоторое время опять умерло. Сейчас окончательно перестал работать. На фишке этого ежа напряжения вообще нет.
Эксплуатация машины такова , что вентилятор работает только в режиме кондея, на малых оборотах т.к. не делаю холодно в салоне, на климате ставлю температур 24 С. иногда при долгой стоянке на солнце включал на полную для охлаждения салона! Но основное использование климат контроль 24-25 С


В общем, жду подробностей, а там уже будем думать, и , кстати, эта тема http://www.pajero4x4.ru/bbs/phpBB2/view ... 0&t=160252 не зря писалась.
Эту тему не находил сейчас поштудирую
anri36
Сообщения: 27
Зарегистрирован: 14 янв 2018, 17:50
Двигатель:: 6G72
Мой автомобиль(и):: Mitsubishi Pajero 2006
Откуда: Dubai
Благодарил (а): 12 раз
Поблагодарили: 2 раза

Re: Отвечу на вопросы по автоэлектрике

Сообщение anri36 »

Итак! Подключил напрямую к вентилятору питание от Jump starter батарейки. Завел машину включил кондишен. Компрессор кондера включается, изредка включается вентилятор радиатора кондиционера. т.е. все работает. Заметил что сильно грееются провода которыми запитан вентилятор. Очень быстро разрядил батарейку. Мотор снят сейчас провожу ревизию. По ощущениям немного туговато крутиться!
Питание на мотор так и не подается.
Реле в подкапотном простраснстве F и C отвечают соответственно за компрессор кондиша и за его вентилятор. то что зачеркнуто того у меня под капотом нет.


Изображение


Также есть крышка у левой ноги водителя. на ней следующие указатели

я думаю что сгорел предохранитиель или реле вентилятора печки, но где их искать я не знаю
Изображение
Аватара пользователя
Deem-On
Сообщения: 1014
Зарегистрирован: 18 мар 2011, 17:49
Двигатель:: 4M40
Мой автомобиль(и):: Паджеро 2, был
Откуда: Ярославль
Благодарил (а): 8 раз
Поблагодарили: 95 раз

Re: Отвечу на вопросы по автоэлектрике

Сообщение Deem-On »

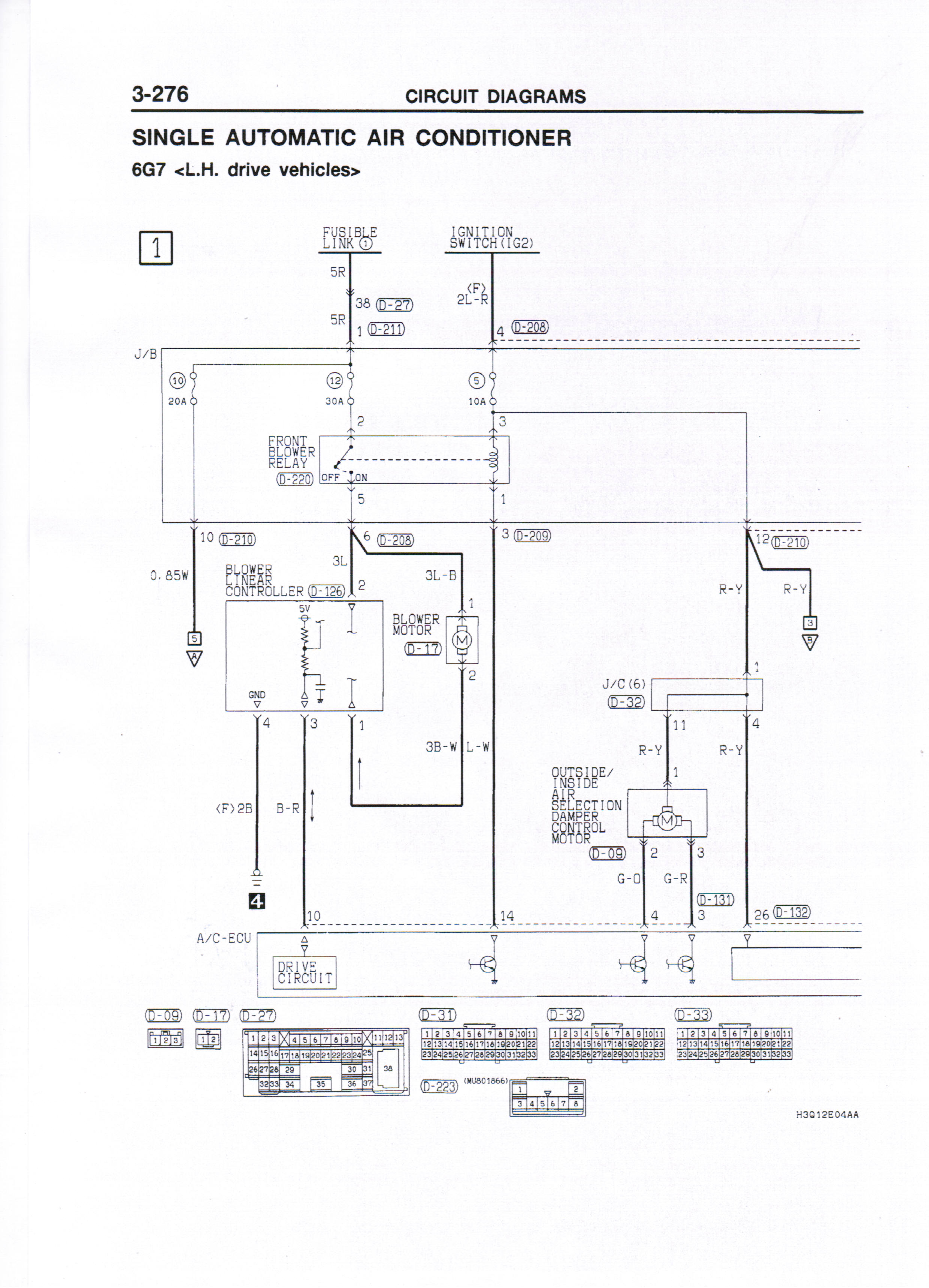
Вот схема:
HGB12E00AC00ENG.pdf
(329.13 КБ) 99 скачиваний
Для общего понимания принципа: Чтоб мотор заработал, надо чтоб включилось реле (D-406). Плюс на него идет с преда №19, Через свои контакты оно подает плюс на мотор. Т.е проверять предохранитель и реле.. Плюс на катушку реле приходит с предохранителя (5). Он живой, иначе бы ничего не работало вообще. А минус на катушку реле должен придти с блока климата, и надо его тоже найти и проверить. Контакт 6(D-405), это разъем на блоке реле и предохранителей. Светлозеленый провод, идет с блока упр.климатом(A/C ECU) конт.16 его разъема.
Короче, на первом этапе надо добиться, чтоб реле заработало, включилось. Если оно включится а мотор не заведется, будем рыть дальше.
Реле не под капотом, а под панелью приборов, предохранитель там же.
П-2 1994 длинный,GLS,4М40,АКПП,SS,А/Т32"-увы, уже донор
Аватара пользователя
Lukich111
Сообщения: 3434
Зарегистрирован: 16 янв 2011, 18:48
Двигатель:: Бензин
Мой автомобиль(и):: H-D Sportster 1200, +-самокатик(был) , 3 моноколеса
Откуда: С-Петербург
Откуда: C-Пб-(Мурманск)-
Благодарил (а): 97 раз
Поблагодарили: 233 раза

Re: Отвечу на вопросы по автоэлектрике

Сообщение Lukich111 »

JMYMRV63W6J708730 - это П3, соотв схемы надо брать оттудова
mmc-manuals.ru содержит все необходимые схемы и руководства по ремонту данного авто. Куды бежать в вашем случае- честно не знаю, т.к. все что было на поверхности вроде уже проверено. Тупо- по мануалу все разъемы и проверки.
http://mmc-manuals.ru/manuals/pajero_ii ... 1-2003.zip
http://mmc-manuals.ru/manuals/pajero_ii ... 1-2003.zip
ПС. заберите меня в Эмираты - буду там Паджики починять )))
ППС. на вашей крышечке это пред 12 на 30А
очень злой бывший ОД
диагностика и чип Mitsubishi
anri36
Сообщения: 27
Зарегистрирован: 14 янв 2018, 17:50
Двигатель:: 6G72
Мой автомобиль(и):: Mitsubishi Pajero 2006
Откуда: Dubai
Благодарил (а): 12 раз
Поблагодарили: 2 раза

Re: Отвечу на вопросы по автоэлектрике

Сообщение anri36 »

Lukich111 писал(а): ПС. заберите меня в Эмираты - буду там Паджики починять )))
Не все так безоблачно в этом раю ) Всегда хорошо там где нас нет . Высококласных спецов по ремонту тут реально не хватает, но те что есть получают сущие копейки! У меня знакомый моторист работает тут. Особо не радуется ) Так что сюда надо приезжать отдыхать, а жить тут ой как не просто )
Аватара пользователя
Deem-On
Сообщения: 1014
Зарегистрирован: 18 мар 2011, 17:49
Двигатель:: 4M40
Мой автомобиль(и):: Паджеро 2, был
Откуда: Ярославль
Благодарил (а): 8 раз
Поблагодарили: 95 раз

Re: Отвечу на вопросы по автоэлектрике

Сообщение Deem-On »

Блин, точно, это П-3, что-то я на вин то и не поглядел :*PARDON*:
Тогда да, схема другая, вот эта:
CCF01022018_00000.jpg
В принципе все то-же, но нумерация разъемов и цвета проводов соответственно другие.
П-2 1994 длинный,GLS,4М40,АКПП,SS,А/Т32"-увы, уже донор
anri36
Сообщения: 27
Зарегистрирован: 14 янв 2018, 17:50
Двигатель:: 6G72
Мой автомобиль(и):: Mitsubishi Pajero 2006
Откуда: Dubai
Благодарил (а): 12 раз
Поблагодарили: 2 раза

Re: Отвечу на вопросы по автоэлектрике

Сообщение anri36 »

Deem-On писал(а):Блин, точно, это П-3, что-то я на вин то и не поглядел :*PARDON*:
Тогда да, схема другая, вот эта:
CCF01022018_00000.jpg
В принципе все то-же, но нумерация разъемов и цвета проводов соответственно другие.
Ага! Спасибо пойду сегодня ковыряться! Ремонтеры у нас тут просто пизец. Ведь не один папуас под руль Я Сам Дурак не заглянул, как будто там ничего и нет) Они тут все работают как официалы. Купить все новое и поменять. А ценники такие что караул. В России хоть аналог можно найти, а тут в основном оригинал! И ценник на оригинал...ну вообщем то вы знаете , оригинал он и в африке оригинал.
Благо пока прохладно и сеть возможность самому ковыряться, но если до конца февраля не сделаю то жопа (
Аватара пользователя
Gavrosh.78
Сообщения: 328
Зарегистрирован: 21 дек 2006, 00:48
Двигатель:: 3.5L 293Hp/ 3.0L 177 Hp
Мой автомобиль(и):: Ford Expiorer/ Mitsubishi Montero Sport
Откуда: Москва
Откуда: МОСКВА. ЗАО
Благодарил (а): 52 раза
Поблагодарили: 20 раз

Re: Отвечу на вопросы по автоэлектрике

Сообщение Gavrosh.78 »

вентилятор под замену 99%
Аватара пользователя
SNOOPER
Модератор
Сообщения: 57319
Зарегистрирован: 11 дек 2004, 19:49
Двигатель:: 4D56
Мой автомобиль(и):: NewMPS
Откуда: 78
Откуда: Spb
Благодарил (а): 1020 раз
Поблагодарили: 4763 раза

Re: Отвечу на вопросы по автоэлектрике

Сообщение SNOOPER »

anri36 писал(а): Благо пока прохладно и сеть возможность самому ковыряться, но если до конца февраля не сделаю то жопа (
Вы сделали мой день!!! :*ROFL*:
Звучит :*THUMBS UP*:
:*THANK*:
anri36
Сообщения: 27
Зарегистрирован: 14 янв 2018, 17:50
Двигатель:: 6G72
Мой автомобиль(и):: Mitsubishi Pajero 2006
Откуда: Dubai
Благодарил (а): 12 раз
Поблагодарили: 2 раза

Re: Отвечу на вопросы по автоэлектрике

Сообщение anri36 »

SNOOPER писал(а):
anri36 писал(а): Благо пока прохладно и сеть возможность самому ковыряться, но если до конца февраля не сделаю то жопа (
Вы сделали мой день!!! :*ROFL*:
Звучит :*THUMBS UP*:
:*THANK*:
Ну да ::-D: ::-D: С конца февраля прекращаются ветра и днем до +25-27 а в машине это уже жопа без кондера, да и на парковке жарко станет хоть она и крытая! беда тут с этой жарой! Они кстати зимой при 20 чуть ли не пуховики напяливают! А у меня круглый год одна обувка. Шлепки за 300 р. из Монетки, каждый год летом в России закупаю. У них тут все шлепки с поперечиной между пальцев, мерзость а не шлепки :*WALL*:
anri36
Сообщения: 27
Зарегистрирован: 14 янв 2018, 17:50
Двигатель:: 6G72
Мой автомобиль(и):: Mitsubishi Pajero 2006
Откуда: Dubai
Благодарил (а): 12 раз
Поблагодарили: 2 раза

Re: Отвечу на вопросы по автоэлектрике

Сообщение anri36 »

Gavrosh.78 писал(а):вентилятор под замену 99%
Разобрал, почистил. Место Эмираты пыльное! И пыли в моторе просто караул + щеточная пыль. Продул почистил. Люфтов во втулках нет, щетки еще ого го. Пропитал фетр маслом, собрал! Погонял, вроде стал резвее крутить и провода не греются. ШШаз пойду искать свои предохранители реле под рулем.
А вентилятор с России закажу! Мне уже сегодня ценник за оригинал mr398725 поставщик выкатил почти 800 дирхам! :=-O: Мотор печки от приоры стоит 70 дирхам! Даст Бог разберусь зарабаотает до лета доездит а там с России припру приоровский! Жаба душит за моторчик с крыльчаткой 230 доларов отдавать :%):
anri36
Сообщения: 27
Зарегистрирован: 14 янв 2018, 17:50
Двигатель:: 6G72
Мой автомобиль(и):: Mitsubishi Pajero 2006
Откуда: Dubai
Благодарил (а): 12 раз
Поблагодарили: 2 раза

Re: Отвечу на вопросы по автоэлектрике

Сообщение anri36 »

Хух! :*THUMBS UP*: Вдохнул свободно! С Вашей помощью ребята победил! Оказалось настолько тривиально что аж стыдно, что я такой лошара в электрике ) :*WALL*: :*WALL*:
Просто тупо умерло реле мотора MR 524999. Место установки под рулем.
Поставил вместо него другое такое же реле печка заработала. Осталось купить релюшку и забыть о трабле!
Огромное спасибо за терпение и желание помочь Deem-On и Lukich111 !
Если вдруг нелегкая занесет Кого то из Вас к нам в Эмираты готов отблагодарить, экскурсию устрою или если сростется на океанскую рыбалку свожу. Тут у меня катер, занимаюсь этим.
Найти меня просто Андрей Куренной в контакте
https://www.youtube.com/watch?v=Xg9opSWv97A
Аватара пользователя
Captain Sergio
Сообщения: 4557
Зарегистрирован: 30 янв 2012, 22:01
Двигатель:: 4G18
Мой автомобиль(и):: Pajero Пинин, 1999, АКПП, BMW X5
Откуда: Ульяновск
Благодарил (а): 264 раза
Поблагодарили: 346 раз

Re: Отвечу на вопросы по автоэлектрике

Сообщение Captain Sergio »

anri36 писал(а):Хух! :*THUMBS UP*: Вдохнул свободно! С Вашей помощью ребята победил! Оказалось настолько тривиально что аж стыдно, что я такой лошара в электрике ) :*WALL*: :*WALL*:
Просто тупо умерло реле мотора MR 524999. Место установки под рулем.
Поставил вместо него другое такое же реле печка заработала. Осталось купить релюшку и забыть о трабле!
Огромное спасибо за терпение и желание помочь Deem-On и Lukich111 !
Если вдруг нелегкая занесет Кого то из Вас к нам в Эмираты готов отблагодарить, экскурсию устрою или если сростется на океанскую рыбалку свожу. Тут у меня катер, занимаюсь этим.
Найти меня просто Андрей Куренной в контакте
https://www.youtube.com/watch?v=Xg9opSWv97A
Блин, схему вчера вечером распечатал, только сел посмотреть :)
Сергей. Все будет хорошо! Грязезащита для рамных автомобилей.
Аватара пользователя
Unklown
Сообщения: 2669
Зарегистрирован: 18 дек 2012, 05:48
Двигатель:: 6G74, SOHC бензин, газ
Мой автомобиль(и):: MONTERO SPORT[K99W ] [GRXEL2M ]
Откуда: Алтай
Благодарил (а): 4 раза
Поблагодарили: 101 раз

Re: Отвечу на вопросы по автоэлектрике

Сообщение Unklown »

отчалили розетки на ММS
мануал говорит надо 15й пред менять, который у левой коленки за решкой динамика на салонном блоке реле.
неужта нужно сымать нижнюю часть торпеды под рулём, чёб пред поменять?? :=-O: :%):
на океанскую рыбалку свожу.
у оаэ нет выхода к акияну.
Продам мотор 6G74 DOHC MPI viewtopic.php?f=125&t=132117
ещё есть 6А12 почти даром
Ответить

Вернуться в «Электрика»