Схемы на Паджеро и L200 и разъяснения по ним
Модераторы: SNOOPER, Nbf, Romik, BAlex
-
Vitaliy.
- Сообщения: 28
- Зарегистрирован: 17 сен 2013, 19:53
- Двигатель:: 4D56
- Мой автомобиль(и):: митсубиси паджеро 2 ,92 г.в Японец..,L200 ,2009 Г.В.,МЕХ.,супер селект
- Откуда: Луганск
Re: Схемы на Паджеро и L200 и разъяснения по ним
Попробовал,не получилось.Предохранитель целый,достал его и на панели оставшиеся рабочие лампы потухли
Включаю зажигание и горят только две лампы (индикация супер селекта работает,уровень топлива работает,темп. охложд. работает,тахометр работает,указатель положения коробки работает,подсветка работает,дальний свет работает,указатели поворотов работают,)все больше не работают и брал в таком состоянии что должно еще гореть даже не знаю,но как минимум надо генератор,масло,и темп. перегрева атф в коробке,
дайте хоть какую зацепку с чего начать тесты и куда лезть.Если снять на заведенном клемы с 2х акб при включеных фарах не угроблю ни чего ? так можно проверить работу акб ? если клему с датчиков на коробке и масло в двигателе как замкнуть их чтобы хоть понять проводка где сгорела или датчикам кирдык ?
Включаю зажигание и горят только две лампы (индикация супер селекта работает,уровень топлива работает,темп. охложд. работает,тахометр работает,указатель положения коробки работает,подсветка работает,дальний свет работает,указатели поворотов работают,)все больше не работают и брал в таком состоянии что должно еще гореть даже не знаю,но как минимум надо генератор,масло,и темп. перегрева атф в коробке,
дайте хоть какую зацепку с чего начать тесты и куда лезть.Если снять на заведенном клемы с 2х акб при включеных фарах не угроблю ни чего ? так можно проверить работу акб ? если клему с датчиков на коробке и масло в двигателе как замкнуть их чтобы хоть понять проводка где сгорела или датчикам кирдык ?
- Captain Sergio
- Сообщения: 4557
- Зарегистрирован: 30 янв 2012, 22:01
- Двигатель:: 4G18
- Мой автомобиль(и):: Pajero Пинин, 1999, АКПП, BMW X5
- Откуда: Ульяновск
- Благодарил (а): 264 раза
- Поблагодарили: 345 раз
Re: Схемы на Паджеро и L200 и разъяснения по ним
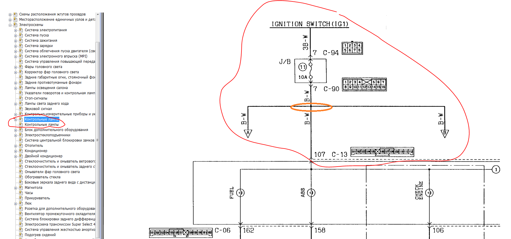
Тогда пойдем дальше. Если работает индикация режима работы АКПП, значит после предохранителя питание имеется. Дальше по этой ветке только приборная панель. На контакт 107 должен приходить +12В при включенном зажигании.1. Поскольку точки массы у всех ламп разные, масса скорее всего масса не при чем. Нужно проверить наличие напряжения (либо контрольной лампочкой, либо прибором) на данном контакте 107 разъема С13. Чтобы узнать где он находится нужно залезть в соответствующий раздел. К сожалению там показаны все три разъема. Какой нужен нам - непонятно. Не беда! Снова лезем на страничку со схемой приборной панели и находим справа от обозначения разъема его цоколевку. Вспоминаем, что провод туда идет черный с белой полосой (B-W). Обозначение разъема на комбинации приборов говорит о том, что там "папа", а на разъеме "мама". Вид разъема обычно показывается со стороны девайса. В любом случае ориентируйтесь по пустому контакту (показан как Х) и цвету провода на нужном месте (107). Они на разных разъемах в разных местах.
2. Если на этом контакте питания не обнаружено - проверяйте провод до предохранителя. Обычное проблемное место - точка соединения нескольких проводов (показал оранжевым на первом снимке). Если ничего не найдете (бывает внутри сгнивает) - попробуйте соединить напрямую другим проводом. Если заработает - меняйте этот кусок. Если ничего не получилось - нужно смотреть массу этих ламп. Возможны проблемы и там.
3. Если на этом контакте питание обнаружено - нужно смотреть комбинацию приборов. Очень часто прогорают дорожки на ней. Нужно просмотреть от разъема (конкретно от 107 контакта, его видно на входе в плату) до лампочек.
4. Все.
Если не получится - пиши.
2. Если на этом контакте питания не обнаружено - проверяйте провод до предохранителя. Обычное проблемное место - точка соединения нескольких проводов (показал оранжевым на первом снимке). Если ничего не найдете (бывает внутри сгнивает) - попробуйте соединить напрямую другим проводом. Если заработает - меняйте этот кусок. Если ничего не получилось - нужно смотреть массу этих ламп. Возможны проблемы и там.
3. Если на этом контакте питание обнаружено - нужно смотреть комбинацию приборов. Очень часто прогорают дорожки на ней. Нужно просмотреть от разъема (конкретно от 107 контакта, его видно на входе в плату) до лампочек.
4. Все.
Если не получится - пиши.
Сергей. Все будет хорошо! Грязезащита для рамных автомобилей.
- Captain Sergio
- Сообщения: 4557
- Зарегистрирован: 30 янв 2012, 22:01
- Двигатель:: 4G18
- Мой автомобиль(и):: Pajero Пинин, 1999, АКПП, BMW X5
- Откуда: Ульяновск
- Благодарил (а): 264 раза
- Поблагодарили: 345 раз
Re: Схемы на Паджеро и L200 и разъяснения по ним
а твоем фото видна сгоревшая дорожка. Это как раз разъем С13 и 107 контакт. Для начала нужно проверить работоспособность и восстановить при необходимости сгоревшую дорожку. Проверить можно авометром. Стоит пять баксов. Как - объясню. Сможешь? Скорее всего все оживет после этого.
Сергей. Все будет хорошо! Грязезащита для рамных автомобилей.
-
Vitaliy.
- Сообщения: 28
- Зарегистрирован: 17 сен 2013, 19:53
- Двигатель:: 4D56
- Мой автомобиль(и):: митсубиси паджеро 2 ,92 г.в Японец..,L200 ,2009 Г.В.,МЕХ.,супер селект
- Откуда: Луганск
Re: Схемы на Паджеро и L200 и разъяснения по ним
Дорожка которая идет на фото от контакта 6 и в право по направлению к болтику спалена мною вчера и востановленна .да именно на 6 контакте есть плюс.Прибор такой есть ,как и писал с плюсом на данном разьеме все впорядке а бордак с минусами или как там правильно массой.
-
Vitaliy.
- Сообщения: 28
- Зарегистрирован: 17 сен 2013, 19:53
- Двигатель:: 4D56
- Мой автомобиль(и):: митсубиси паджеро 2 ,92 г.в Японец..,L200 ,2009 Г.В.,МЕХ.,супер селект
- Откуда: Луганск
Re: Схемы на Паджеро и L200 и разъяснения по ним
На фото видны три лампы рядом средняя из них -давление масла.Даю плюс на 6 клему и минус на 2 клему загораются две крайние из трех и одна еще правее ее на фото не видно это темп атф,если беру минус не от акб а при вкл. зажигании от клемы 2 а плюс от 6 то они не загораються хотя плюс на 6 есть,.Также они загораются по отдельности если плюс ложу от акб на 6 а минус на 8 -горит масло,на от 4 горит темп атф,от 7 крайняя правая из трех,левая только от 2.,но при подаче на авто когда надеваю разьем проверяю при вкл зажигании на 6 плюс есть и минус начинаю брать от соответствующих проводов куда на разьемы щитка толькочто кидал минус лампы не горят ,или я что то не так делаю или на данные клемы не идет минус.
- Captain Sergio
- Сообщения: 4557
- Зарегистрирован: 30 янв 2012, 22:01
- Двигатель:: 4G18
- Мой автомобиль(и):: Pajero Пинин, 1999, АКПП, BMW X5
- Откуда: Ульяновск
- Благодарил (а): 264 раза
- Поблагодарили: 345 раз
Re: Схемы на Паджеро и L200 и разъяснения по ним
Ок. Давай с этой точки и начнем. Это 111 контакт разъема С13. Масса туда приходит от генератора. Точнее не масса. Как бы объяснить ... Там не масса, там небольшое напряжение в пределах 1 Вольта при включенном зажигании и незапущенном двигателе. На лампу попадает разность потенциалов. Если двигатель не запущен - там относительно массы 1В. На лампах 12В-1В=11В и лампы зарядки, воды в фильтре и температуры АКПП горят, вне зависимости от состояния их датчиков (для это как раз нарисованные диоды и нужны). Если двигатель запущен - там относительно массы 12В. На лампах 12В-12В=0В и лампы не горят. Но теперь на каждую из них может приходить масса от своих датчиков. Короче, если с датчиками все хорошо, лампы гаснут после пуска. Если мы восстановим соединение с генератором, у нас должны заработать все эти лампы. Прости, если сложно объяснил. Проще никак. От теории к практике.
Итак, нужно проверить, какое напряжение относительно массы появляется на 111 контакте после включения зажигания. Если там ничего не появляется - нужно идти по проводке (белый провод должен быть, хотя от времени они обычно желтеют) до генератора. Или наоборот, что возможно проще. Для проверки прибор нужно включить на измерение постоянного напряжения до 20В (показал красным куда ставить ручку и куда подключать провода). Если там есть небольшое напряжение в пределах одного вольта, нужно завести машину и посмотреть снова. Там должно появится примерно 14 Вольт. В твоем случае там нет ничего, если ты правильно описал свои действия. Дерзай. Пиши сюда. Будем дальше копать.
Итак, нужно проверить, какое напряжение относительно массы появляется на 111 контакте после включения зажигания. Если там ничего не появляется - нужно идти по проводке (белый провод должен быть, хотя от времени они обычно желтеют) до генератора. Или наоборот, что возможно проще. Для проверки прибор нужно включить на измерение постоянного напряжения до 20В (показал красным куда ставить ручку и куда подключать провода). Если там есть небольшое напряжение в пределах одного вольта, нужно завести машину и посмотреть снова. Там должно появится примерно 14 Вольт. В твоем случае там нет ничего, если ты правильно описал свои действия. Дерзай. Пиши сюда. Будем дальше копать.
Сергей. Все будет хорошо! Грязезащита для рамных автомобилей.
-
Vitaliy.
- Сообщения: 28
- Зарегистрирован: 17 сен 2013, 19:53
- Двигатель:: 4D56
- Мой автомобиль(и):: митсубиси паджеро 2 ,92 г.в Японец..,L200 ,2009 Г.В.,МЕХ.,супер селект
- Откуда: Луганск
Re: Схемы на Паджеро и L200 и разъяснения по ним
Кэп,ну прибор я спалил сразу еще при замене кроны
,ктож знал что на кроне большой разьем это минус а не плюс.
Ну что я натворил-решили искать методом научного тыка ,еще вчера потыкав на разных режимах замка зажыгания мы выяснили ну нет там ни минуса,и не того как бы минуса о котором ты мне поведал сегодня,поэтому пошли к генератору там одна клема на болтике с задней части и фишка на два провода толстый и тонкий,идут они в один рукав и к ним подходит в рукав провод от датчика давления масла,и этот рукав идет на другую сторону под блок предохранителе и там не понятно куда дальше как расходятся.Вскрыли рукав там несколько толстых и парочка потоньше в цвет один как с датчика масла и один как с генератора,пораскинули веществом в голове и оголили этих два поочереди прозвонили и обрезали их поочереди нахрен,к тому что идет от масла кинули воздушный провод и к клеме 8-зажиг.-горит масло-завожу тухнет-снемаю с датчика ни какой реакции -ложу на корпус загорается масло-как по моему то работает.второй кидаем по воздуху от обрезаного от гены. и на контакт 2 -зажигание-горят акб,темп атф,и как я понял вода в фильтре он желтого цвета-завожу потухли-иду в яму снимаю на заведеном с датчика коробки в разьем провод и на корпус -загорелась лампа атф.,таким же способом проверить воду в фильтре не могу не знаю где он и та ли это лампа,а вот как проверить на заведеном заряд акб стал вопрос.,как видно на фото к воде в фильтре,и маслу идут свои минуса а на лампу акб помимо того что идет от клемы 2 через диод подхода нет ,я так гадаю что если пропадет заряд с акб то лампа акб загорится а две других нет.Надо подтвердить этот колхоз или опровергнуть,и как проверить лампу акб на работоспособность при заведенном двигателе?
http://www.youtube.com/watch?v=xx6_gEERzx8
ТЕПЕРЬ НАДО ВОЗЛЕ ОКНА ДЕЖУРИТЬ С ПАРОЧКОЙ ОГНЕТУШИТЕЛЕЙ
Чуть не забыл под генератором валялся вот этот то ли датчик то ли как его назвать идет на разьем на раме под посажиром ,че это не представляю был не закреплен



Ну что я натворил-решили искать методом научного тыка ,еще вчера потыкав на разных режимах замка зажыгания мы выяснили ну нет там ни минуса,и не того как бы минуса о котором ты мне поведал сегодня,поэтому пошли к генератору там одна клема на болтике с задней части и фишка на два провода толстый и тонкий,идут они в один рукав и к ним подходит в рукав провод от датчика давления масла,и этот рукав идет на другую сторону под блок предохранителе и там не понятно куда дальше как расходятся.Вскрыли рукав там несколько толстых и парочка потоньше в цвет один как с датчика масла и один как с генератора,пораскинули веществом в голове и оголили этих два поочереди прозвонили и обрезали их поочереди нахрен,к тому что идет от масла кинули воздушный провод и к клеме 8-зажиг.-горит масло-завожу тухнет-снемаю с датчика ни какой реакции -ложу на корпус загорается масло-как по моему то работает.второй кидаем по воздуху от обрезаного от гены. и на контакт 2 -зажигание-горят акб,темп атф,и как я понял вода в фильтре он желтого цвета-завожу потухли-иду в яму снимаю на заведеном с датчика коробки в разьем провод и на корпус -загорелась лампа атф.,таким же способом проверить воду в фильтре не могу не знаю где он и та ли это лампа,а вот как проверить на заведеном заряд акб стал вопрос.,как видно на фото к воде в фильтре,и маслу идут свои минуса а на лампу акб помимо того что идет от клемы 2 через диод подхода нет ,я так гадаю что если пропадет заряд с акб то лампа акб загорится а две других нет.Надо подтвердить этот колхоз или опровергнуть,и как проверить лампу акб на работоспособность при заведенном двигателе?
http://www.youtube.com/watch?v=xx6_gEERzx8
ТЕПЕРЬ НАДО ВОЗЛЕ ОКНА ДЕЖУРИТЬ С ПАРОЧКОЙ ОГНЕТУШИТЕЛЕЙ
Чуть не забыл под генератором валялся вот этот то ли датчик то ли как его назвать идет на разьем на раме под посажиром ,че это не представляю был не закреплен



- Captain Sergio
- Сообщения: 4557
- Зарегистрирован: 30 янв 2012, 22:01
- Двигатель:: 4G18
- Мой автомобиль(и):: Pajero Пинин, 1999, АКПП, BMW X5
- Откуда: Ульяновск
- Благодарил (а): 264 раза
- Поблагодарили: 345 раз
Re: Схемы на Паджеро и L200 и разъяснения по ним
На фото моторчик для регулируемых амортов, если я не ошибаюсь.
Теперь по теме:
Теперь по теме:
Ничего не понял ... Зачем ты в масло полез? Зачем провода резал? Мы же договорились по порядку. Сначала восстанови провод от генератора, о котором я писал. Тогда при пуске будут загораться и тухнуть вышеперечисленные лампы. Это уже как минимум правильная индикация зарядки. Потом с каждым датчиком разберемся отдельно. Не торопись. Пока восстанови этот провод. Не надо никакого "научного тыка", закончится все тем, что ты что-нибудь еще спалишь. И давай договоримся - ничего не отрезать, писать в сообщениях цвета проводов, а не "толстый и тонкий".Кэп,ну прибор я спалил сразу еще при замене кроны,ктож знал что на кроне большой разьем это минус а не плюс.
Ну что я натворил-решили искать методом научного тыка ,еще вчера потыкав на разных режимах замка зажыгания мы выяснили ну нет там ни минуса,и не того как бы минуса о котором ты мне поведал сегодня,поэтому пошли к генератору там одна клема на болтике с задней части и фишка на два провода толстый и тонкий,идут они в один рукав и к ним подходит в рукав провод от датчика давления масла,и этот рукав идет на другую сторону под блок предохранителе и там не понятно куда дальше как расходятся.Вскрыли рукав там несколько толстых и парочка потоньше в цвет один как с датчика масла и один как с генератора,пораскинули веществом в голове и оголили этих два поочереди прозвонили и обрезали их поочереди нахрен,к тому что идет от масла кинули воздушный провод и к клеме 8-зажиг.-горит масло-завожу тухнет-снемаю с датчика ни какой реакции -ложу на корпус загорается масло-как по моему то работает.второй кидаем по воздуху от обрезаного от гены. и на контакт 2 -зажигание-горят акб,темп атф,и как я понял вода в фильтре он желтого цвета-завожу потухли-иду в яму снимаю на заведеном с датчика коробки в разьем провод и на корпус -загорелась лампа атф.,таким же способом проверить воду в фильтре не могу не знаю где он и та ли это лампа,а вот как проверить на заведеном заряд акб стал вопрос.,как видно на фото к воде в фильтре,и маслу идут свои минуса а на лампу акб помимо того что идет от клемы 2 через диод подхода нет ,я так гадаю что если пропадет заряд с акб то лампа акб загорится а две других нет.Надо подтвердить этот колхоз или опровергнуть,и как проверить лампу акб на работоспособность при заведенном двигателе?
Сергей. Все будет хорошо! Грязезащита для рамных автомобилей.
-
Vitaliy.
- Сообщения: 28
- Зарегистрирован: 17 сен 2013, 19:53
- Двигатель:: 4D56
- Мой автомобиль(и):: митсубиси паджеро 2 ,92 г.в Японец..,L200 ,2009 Г.В.,МЕХ.,супер селект
- Откуда: Луганск
Re: Схемы на Паджеро и L200 и разъяснения по ним
Хорошо кэп,я понял свои ошибки,на гене есть разьем на два провода что бы его увидеть я снимал защиту ,и если смотреть с верху то на задней части гены прикручен провод ,мой провод должен идти с разьема или с прикрученного сзади ? хочу пойти от гены так как под панелью у меня на этом разьеме все провода доточены и причем проводами одинакового цвета ,от гены я хоть буду знать точно что иду по нужному проводу а куда он выйдет посмотрим
- Captain Sergio
- Сообщения: 4557
- Зарегистрирован: 30 янв 2012, 22:01
- Двигатель:: 4G18
- Мой автомобиль(и):: Pajero Пинин, 1999, АКПП, BMW X5
- Откуда: Ульяновск
- Благодарил (а): 264 раза
- Поблагодарили: 345 раз
Re: Схемы на Паджеро и L200 и разъяснения по ним
От генератора идет четыре провода. Два толстых сечением 5 квадратных мм. Они прикручены на болт скорее всего. Также на нем есть разъем (на схеме А-46). От него два провода - один желтый на 3 квадратных мм., второй белый сечением 0,5 квадратных мм. Тебе нужен белый, самый тонкий. Толщина жилы у него примерно 0,8 мм. Его нужно соединить с контактом 111 разъема С13. Это как раз второй контакт на плате. До генератора он идет через два разъема. Можешь соединить напрямую. Но не скруткой, которая рано или поздно окислится, а "вампиром" Продается в любом автомагазине. врезается без порчи провода. Снять также всегда можно. Если все сделаешь правильно - после включения зажигания будут загораться четыре описываемые лампочки. У Тебя все получится. Потом будем с маслом разбираться.
Сергей. Все будет хорошо! Грязезащита для рамных автомобилей.
- Captain Sergio
- Сообщения: 4557
- Зарегистрирован: 30 янв 2012, 22:01
- Двигатель:: 4G18
- Мой автомобиль(и):: Pajero Пинин, 1999, АКПП, BMW X5
- Откуда: Ульяновск
- Благодарил (а): 264 раза
- Поблагодарили: 345 раз
Re: Схемы на Паджеро и L200 и разъяснения по ним
Ну не томи ...
Сергей. Все будет хорошо! Грязезащита для рамных автомобилей.
- k2e
- Сообщения: 63
- Зарегистрирован: 24 ноя 2011, 20:25
- Двигатель:: 4m40
- Мой автомобиль(и):: Pajero II, "99
- Откуда: Хабаровск
- Откуда: Хабаровск
- Благодарил (а): 3 раза
- Поблагодарили: 3 раза
Re: Схемы на Паджеро и L200 и разъяснения по ним
Доброго времени суток!
Не могу найти схемку (изменения) для П2(терминатор)-99г.в., 4М40-ТЕ, правый, АКПП (V4A51).
В принципе, нужен кусок схемы: переключатель типтроника - мозг АКПП, индикация на щитке приборов режимов АКПП...
Выгорел именно хвост от консоли АКПП и далее в центральный (под торпедой) жгут. Вскрытие показало сильно обгоревший минус и плюс прикуривателя, по причине эксплуатации компрессора для подкачки колес из гнезда прикуривателя. Вот эти 2-ва проводочка спекли все вокруг себя. В прикуривателе плавкая перемычка была удалена, предохранитель не сработал. Почему, пока не разбирался, но до панели предохранителей провода подгорели. Пока снял панель и разделяю провода со стороны прикуривателя...
Короче для восстановления надобно схемку.
Не могу найти схемку (изменения) для П2(терминатор)-99г.в., 4М40-ТЕ, правый, АКПП (V4A51).
В принципе, нужен кусок схемы: переключатель типтроника - мозг АКПП, индикация на щитке приборов режимов АКПП...
Выгорел именно хвост от консоли АКПП и далее в центральный (под торпедой) жгут. Вскрытие показало сильно обгоревший минус и плюс прикуривателя, по причине эксплуатации компрессора для подкачки колес из гнезда прикуривателя. Вот эти 2-ва проводочка спекли все вокруг себя. В прикуривателе плавкая перемычка была удалена, предохранитель не сработал. Почему, пока не разбирался, но до панели предохранителей провода подгорели. Пока снял панель и разделяю провода со стороны прикуривателя...
Короче для восстановления надобно схемку.
P-II, '99, 4M40-TD, АКПП(V4A51)-SS, Hub, Шнорк+сапуны,
2 печи, 2 кодиши, 2 АКБ, усил. торсы
2 печи, 2 кодиши, 2 АКБ, усил. торсы
- k2e
- Сообщения: 63
- Зарегистрирован: 24 ноя 2011, 20:25
- Двигатель:: 4m40
- Мой автомобиль(и):: Pajero II, "99
- Откуда: Хабаровск
- Откуда: Хабаровск
- Благодарил (а): 3 раза
- Поблагодарили: 3 раза
Re: Схемы на Паджеро и L200 и разъяснения по ним
Как бы подходит от 3-го пыжа, но есть отличия...
Все таки нет схемки для АКПП V4A51, примерно такой, только для 4-х ступки:
Все таки нет схемки для АКПП V4A51, примерно такой, только для 4-х ступки:
P-II, '99, 4M40-TD, АКПП(V4A51)-SS, Hub, Шнорк+сапуны,
2 печи, 2 кодиши, 2 АКБ, усил. торсы
2 печи, 2 кодиши, 2 АКБ, усил. торсы
- Captain Sergio
- Сообщения: 4557
- Зарегистрирован: 30 янв 2012, 22:01
- Двигатель:: 4G18
- Мой автомобиль(и):: Pajero Пинин, 1999, АКПП, BMW X5
- Откуда: Ульяновск
- Благодарил (а): 264 раза
- Поблагодарили: 345 раз
Re: Схемы на Паджеро и L200 и разъяснения по ним
Надо смотреть на 94 год. В первом посте есть ссылка на архив.k2e писал(а):Доброго времени суток!
Не могу найти схемку (изменения) для П2(терминатор)-99г.в., 4М40-ТЕ, правый, АКПП (V4A51).
В принципе, нужен кусок схемы: переключатель типтроника - мозг АКПП, индикация на щитке приборов режимов АКПП...
Выгорел именно хвост от консоли АКПП и далее в центральный (под торпедой) жгут. Вскрытие показало сильно обгоревший минус и плюс прикуривателя, по причине эксплуатации компрессора для подкачки колес из гнезда прикуривателя. Вот эти 2-ва проводочка спекли все вокруг себя. В прикуривателе плавкая перемычка была удалена, предохранитель не сработал. Почему, пока не разбирался, но до панели предохранителей провода подгорели. Пока снял панель и разделяю провода со стороны прикуривателя...
Короче для восстановления надобно схемку.
Сергей. Все будет хорошо! Грязезащита для рамных автомобилей.
- k2e
- Сообщения: 63
- Зарегистрирован: 24 ноя 2011, 20:25
- Двигатель:: 4m40
- Мой автомобиль(и):: Pajero II, "99
- Откуда: Хабаровск
- Откуда: Хабаровск
- Благодарил (а): 3 раза
- Поблагодарили: 3 раза
Re: Схемы на Паджеро и L200 и разъяснения по ним
94 года АКПП без типтроника, проблемма как раз в концевике переключателя +/-
Он (переключатель) соединяется с ЭБУ АКПП, не хочется методом тыка(((
Остальные провода, - не вопрос (прикуриватель, ручник, подсветка...)
Он (переключатель) соединяется с ЭБУ АКПП, не хочется методом тыка(((
Остальные провода, - не вопрос (прикуриватель, ручник, подсветка...)
P-II, '99, 4M40-TD, АКПП(V4A51)-SS, Hub, Шнорк+сапуны,
2 печи, 2 кодиши, 2 АКБ, усил. торсы
2 печи, 2 кодиши, 2 АКБ, усил. торсы
- k2e
- Сообщения: 63
- Зарегистрирован: 24 ноя 2011, 20:25
- Двигатель:: 4m40
- Мой автомобиль(и):: Pajero II, "99
- Откуда: Хабаровск
- Откуда: Хабаровск
- Благодарил (а): 3 раза
- Поблагодарили: 3 раза
Re: Схемы на Паджеро и L200 и разъяснения по ним
Кстати)))
Честь и хвала китайским предохранителям - САМЫМ надежным!!!
Оплавились, но не перегорели!
Яповский (красный) - подлец, перегорел не оплавляясь.
Честь и хвала китайским предохранителям - САМЫМ надежным!!!
Оплавились, но не перегорели!
Яповский (красный) - подлец, перегорел не оплавляясь.
P-II, '99, 4M40-TD, АКПП(V4A51)-SS, Hub, Шнорк+сапуны,
2 печи, 2 кодиши, 2 АКБ, усил. торсы
2 печи, 2 кодиши, 2 АКБ, усил. торсы
-
artur69
- Сообщения: 690
- Зарегистрирован: 08 авг 2013, 12:46
- Двигатель:: Дизель
- Мой автомобиль(и):: МПС 2008 116 МКПП
- Откуда: Казань
- Благодарил (а): 4 раза
- Поблагодарили: 18 раз
Re: Схемы на Паджеро и L200 и разъяснения по ним
бойся китайских предохов-плавят проводку,уж лучше наш-вязьниковский поставитьk2e писал(а):Кстати)))
Честь и хвала китайским предохранителям - САМЫМ надежным!!!
Оплавились, но не перегорели!
Яповский (красный) - подлец, перегорел не оплавляясь.
сам чиной барыжу,ставил на свой уаз-проводка горит,а предоху-сам весь оплавился,но целый
-
artur69
- Сообщения: 690
- Зарегистрирован: 08 авг 2013, 12:46
- Двигатель:: Дизель
- Мой автомобиль(и):: МПС 2008 116 МКПП
- Откуда: Казань
- Благодарил (а): 4 раза
- Поблагодарили: 18 раз
Re: Схемы на Паджеро и L200 и разъяснения по ним
ссылочку на схеме развязку аккумов на паджеро спорт кто нить подкинет?
уже нашёл- у нас аккумы тупо в парралель подключены?
уже нашёл- у нас аккумы тупо в парралель подключены?
- Captain Sergio
- Сообщения: 4557
- Зарегистрирован: 30 янв 2012, 22:01
- Двигатель:: 4G18
- Мой автомобиль(и):: Pajero Пинин, 1999, АКПП, BMW X5
- Откуда: Ульяновск
- Благодарил (а): 264 раза
- Поблагодарили: 345 раз
Re: Схемы на Паджеро и L200 и разъяснения по ним
Именно в параллель. Смотри в схемах самый свежий год. Хотя там ничего не изменилось.artur69 писал(а):ссылочку на схеме развязку аккумов на паджеро спорт кто нить подкинет?
уже нашёл- у нас аккумы тупо в парралель подключены?
Сергей. Все будет хорошо! Грязезащита для рамных автомобилей.
