А если прыснуть на лобовое, то какая реакция?алексей - Маленький Мук писал(а): ↑ У мну он не то б не работает а именно нет прерывания,( пауз между взмахами) махает все время как на втором режиме
Замена подрулевых переключателей
Модераторы: SNOOPER, Nbf, Romik, BAlex, drcham, алексей - Маленький Мук
- dvm99
- Сообщения: 22564
- Зарегистрирован: 21 май 2012, 20:59
- Двигатель:: 6G72, 12клап.,
- Мой автомобиль(и):: Pajero2, Запорожец- Ланос
- Откуда: Свердловская обл.
- Благодарил (а): 757 раз
- Поблагодарили: 1091 раз
Замена подрулевых переключателей
Дмитрий
Боливар2 - П2, 92г., V43, 6G72(12V), V4AW2, RD/L, пруль (чистокровный японский рысак)
Боливар1 - П2, 93г., 6G72(12V), МКПП, V43, RD/L, Европа (славный был конь, но уже донор)
Боливар2 - П2, 92г., V43, 6G72(12V), V4AW2, RD/L, пруль (чистокровный японский рысак)
Боливар1 - П2, 93г., 6G72(12V), МКПП, V43, RD/L, Европа (славный был конь, но уже донор)
-
алексей - Маленький Мук
- Модератор
- Сообщения: 20396
- Зарегистрирован: 11 дек 2008, 16:10
- Откуда: москва м Академическая
- Благодарил (а): 101 раз
- Поблагодарили: 1343 раза
Замена подрулевых переключателей
Машет пару раз и встает колом по середине стекла. тоесть доводчик не работает
Всем добра.......
- dvm99
- Сообщения: 22564
- Зарегистрирован: 21 май 2012, 20:59
- Двигатель:: 6G72, 12клап.,
- Мой автомобиль(и):: Pajero2, Запорожец- Ланос
- Откуда: Свердловская обл.
- Благодарил (а): 757 раз
- Поблагодарили: 1091 раз
Замена подрулевых переключателей
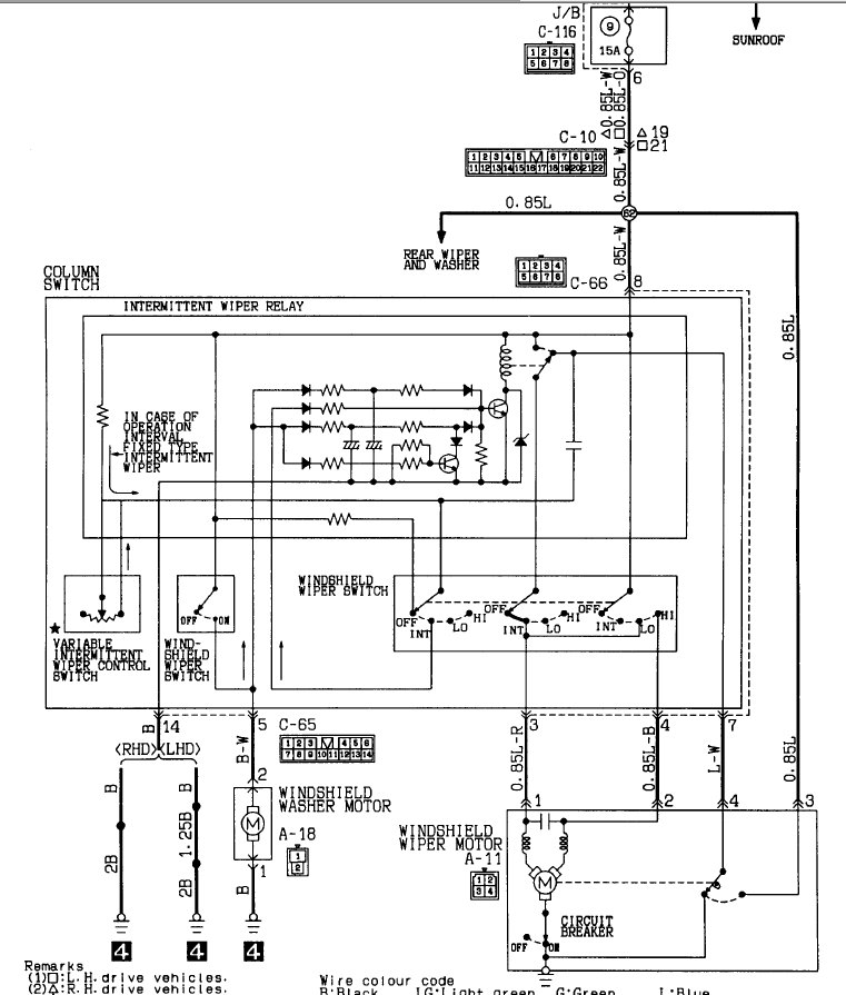
Чё-та не понял, как всё это работает... Возможно второй косяк в схеме... По крайней мере первый косяк виден чётко и даже перекочевал из схемы 93г в 94г.алексей - Маленький Мук писал(а): ↑ тоесть доводчик не работает
Но походу у тебя что-то с контактом в самом редукторе. Он работает только в прерывистом режиме и на прыскании.
Дмитрий
Боливар2 - П2, 92г., V43, 6G72(12V), V4AW2, RD/L, пруль (чистокровный японский рысак)
Боливар1 - П2, 93г., 6G72(12V), МКПП, V43, RD/L, Европа (славный был конь, но уже донор)
Боливар2 - П2, 92г., V43, 6G72(12V), V4AW2, RD/L, пруль (чистокровный японский рысак)
Боливар1 - П2, 93г., 6G72(12V), МКПП, V43, RD/L, Европа (славный был конь, но уже донор)
-
алексей - Маленький Мук
- Модератор
- Сообщения: 20396
- Зарегистрирован: 11 дек 2008, 16:10
- Откуда: москва м Академическая
- Благодарил (а): 101 раз
- Поблагодарили: 1343 раза
- dvm99
- Сообщения: 22564
- Зарегистрирован: 21 май 2012, 20:59
- Двигатель:: 6G72, 12клап.,
- Мой автомобиль(и):: Pajero2, Запорожец- Ланос
- Откуда: Свердловская обл.
- Благодарил (а): 757 раз
- Поблагодарили: 1091 раз
Замена подрулевых переключателей
Да.алексей - Маленький Мук писал(а): ↑ В самом моторчике???
Но сначала проверь, 4-й вывод разъёма моторчика в сложенном положении должен быть замкнут на массу.
А потом, во время движения, переключиться на 3-й (там +12В).
Дмитрий
Боливар2 - П2, 92г., V43, 6G72(12V), V4AW2, RD/L, пруль (чистокровный японский рысак)
Боливар1 - П2, 93г., 6G72(12V), МКПП, V43, RD/L, Европа (славный был конь, но уже донор)
Боливар2 - П2, 92г., V43, 6G72(12V), V4AW2, RD/L, пруль (чистокровный японский рысак)
Боливар1 - П2, 93г., 6G72(12V), МКПП, V43, RD/L, Европа (славный был конь, но уже донор)
-
алексей - Маленький Мук
- Модератор
- Сообщения: 20396
- Зарегистрирован: 11 дек 2008, 16:10
- Откуда: москва м Академическая
- Благодарил (а): 101 раз
- Поблагодарили: 1343 раза
Замена подрулевых переключателей
Тоесть я замеряю 4й вывод, когда лежит там масса когда движение 12в а на 3й кто дает напругу( если ея нет) крутилка?
Всем добра.......
- dvm99
- Сообщения: 22564
- Зарегистрирован: 21 май 2012, 20:59
- Двигатель:: 6G72, 12клап.,
- Мой автомобиль(и):: Pajero2, Запорожец- Ланос
- Откуда: Свердловская обл.
- Благодарил (а): 757 раз
- Поблагодарили: 1091 раз
Замена подрулевых переключателей
Да!алексей - Маленький Мук писал(а): ↑ Тоесть я замеряю 4й вывод, когда лежит там масса когда движение 12в
Нет, там чисто +12, не скрутилки!алексей - Маленький Мук писал(а): ↑ на 3й кто дает напругу( если ея нет) крутилка?
У тя что, схемы нету?
Давай кину! Тока за какой год?
Но в принципе там различия непринципиальные... Вот схема 94г.
Дмитрий
Боливар2 - П2, 92г., V43, 6G72(12V), V4AW2, RD/L, пруль (чистокровный японский рысак)
Боливар1 - П2, 93г., 6G72(12V), МКПП, V43, RD/L, Европа (славный был конь, но уже донор)
Боливар2 - П2, 92г., V43, 6G72(12V), V4AW2, RD/L, пруль (чистокровный японский рысак)
Боливар1 - П2, 93г., 6G72(12V), МКПП, V43, RD/L, Европа (славный был конь, но уже донор)
-
алексей - Маленький Мук
- Модератор
- Сообщения: 20396
- Зарегистрирован: 11 дек 2008, 16:10
- Откуда: москва м Академическая
- Благодарил (а): 101 раз
- Поблагодарили: 1343 раза
Замена подрулевых переключателей
Чета ща мерил на 4м минус есть а на 3м 12в нету
хотя задний омывалка работат
Всем добра.......
- dvm99
- Сообщения: 22564
- Зарегистрирован: 21 май 2012, 20:59
- Двигатель:: 6G72, 12клап.,
- Мой автомобиль(и):: Pajero2, Запорожец- Ланос
- Откуда: Свердловская обл.
- Благодарил (а): 757 раз
- Поблагодарили: 1091 раз
Замена подрулевых переключателей
Ищи... где-то обрыв...алексей - Маленький Мук писал(а): ↑ а на 3м 12в нету хотя задний омывалка работат
Дмитрий
Боливар2 - П2, 92г., V43, 6G72(12V), V4AW2, RD/L, пруль (чистокровный японский рысак)
Боливар1 - П2, 93г., 6G72(12V), МКПП, V43, RD/L, Европа (славный был конь, но уже донор)
Боливар2 - П2, 92г., V43, 6G72(12V), V4AW2, RD/L, пруль (чистокровный японский рысак)
Боливар1 - П2, 93г., 6G72(12V), МКПП, V43, RD/L, Европа (славный был конь, но уже донор)
-
алексей - Маленький Мук
- Модератор
- Сообщения: 20396
- Зарегистрирован: 11 дек 2008, 16:10
- Откуда: москва м Академическая
- Благодарил (а): 101 раз
- Поблагодарили: 1343 раза
Замена подрулевых переключателей
по идеи если дать на прямую, заработает???? ( прям с батарейки) ну шоб убедится что это не крутилка и сам моторчик
Всем добра.......
- dvm99
- Сообщения: 22564
- Зарегистрирован: 21 май 2012, 20:59
- Двигатель:: 6G72, 12клап.,
- Мой автомобиль(и):: Pajero2, Запорожец- Ланос
- Откуда: Свердловская обл.
- Благодарил (а): 757 раз
- Поблагодарили: 1091 раз
Замена подрулевых переключателей
Да, должно... Но подай через предохранитель какой-нить (на всяк случай)алексей - Маленький Мук писал(а): ↑ по идеи если дать на прямую, заработает????
Дмитрий
Боливар2 - П2, 92г., V43, 6G72(12V), V4AW2, RD/L, пруль (чистокровный японский рысак)
Боливар1 - П2, 93г., 6G72(12V), МКПП, V43, RD/L, Европа (славный был конь, но уже донор)
Боливар2 - П2, 92г., V43, 6G72(12V), V4AW2, RD/L, пруль (чистокровный японский рысак)
Боливар1 - П2, 93г., 6G72(12V), МКПП, V43, RD/L, Европа (славный был конь, но уже донор)
-
алексей - Маленький Мук
- Модератор
- Сообщения: 20396
- Зарегистрирован: 11 дек 2008, 16:10
- Откуда: москва м Академическая
- Благодарил (а): 101 раз
- Поблагодарили: 1343 раза
Замена подрулевых переключателей
Да кудыто делся плюс с 3го, дал напрямую с батарейки заработало
бум искать куды свалил
Всем добра.......
- dvm99
- Сообщения: 22564
- Зарегистрирован: 21 май 2012, 20:59
- Двигатель:: 6G72, 12клап.,
- Мой автомобиль(и):: Pajero2, Запорожец- Ланос
- Откуда: Свердловская обл.
- Благодарил (а): 757 раз
- Поблагодарили: 1091 раз
Замена подрулевых переключателей
Отгнил... Надо меньше грязь меситьалексей - Маленький Мук писал(а): ↑ бум искать куды свалил
Дмитрий
Боливар2 - П2, 92г., V43, 6G72(12V), V4AW2, RD/L, пруль (чистокровный японский рысак)
Боливар1 - П2, 93г., 6G72(12V), МКПП, V43, RD/L, Европа (славный был конь, но уже донор)
Боливар2 - П2, 92г., V43, 6G72(12V), V4AW2, RD/L, пруль (чистокровный японский рысак)
Боливар1 - П2, 93г., 6G72(12V), МКПП, V43, RD/L, Европа (славный был конь, но уже донор)
-
алексей - Маленький Мук
- Модератор
- Сообщения: 20396
- Зарегистрирован: 11 дек 2008, 16:10
- Откуда: москва м Академическая
- Благодарил (а): 101 раз
- Поблагодарили: 1343 раза
Замена подрулевых переключателей
Ну честно говоря эт не моя бричка
я пытаюсь ея оживить, на работе у хозяина базы где арендуем склад, но такие дрова
у него примерно с месяц назад пружины въехали в кузов
хлам 
Всем добра.......
-
Сергей Помел
- Сообщения: 1
- Зарегистрирован: 24 дек 2022, 18:22
- Двигатель:: 6g72
- Мой автомобиль(и):: Pajero 2
- Откуда: Казань
Замена подрулевых переключателей
алексей - Маленький Мук, добрый день. Решили проблему? Каким образом? Я решил прокинув дополнительный плюс к мотору.
-
алексей - Маленький Мук
- Модератор
- Сообщения: 20396
- Зарегистрирован: 11 дек 2008, 16:10
- Откуда: москва м Академическая
- Благодарил (а): 101 раз
- Поблагодарили: 1343 раза
Замена подрулевых переключателей
да таким же методом, кинул плюс на 3й разьем от батарейки на прямую, пучек вскрывать не стал
Всем добра.......
