TRT - Вдоль р.Киржач. Для стандартных 4х4 (08.11.25) Форум Обсуждение FAQ
Мини-FAQ по кондею - посмотрите и скажите что добавить!!!
Модераторы: SNOOPER, Nbf, Romik, BAlex, drcham, алексей - Маленький Мук
Re: Мини-FAQ по кондею - посмотрите и скажите что добавить!!
я бы хотел чтоб ещё добавили про клапан ТРВ или ТВР, как он работает, как менять и как определить что он не работает, у меня например работает компресор, включаеться вентилятор, а давление не показывает в трубках, и не холодит конечно(хотя редко бывает что работает), но при том когда включаешь задний кондёр,тут же давление появляеться в трубках, задний холодит аж рука мёрзнет когда подсавлешь её на поток воздуха...вот так вот...
Pajero II,v46, 2.8, 116 л.с., тнвд-механика, 5-дв, 32-тапочки, 2 печки 2 климы, багажник от Федяя
Водка и джип - 2 вещи не совместимы!!!
Водка и джип - 2 вещи не совместимы!!!
- atas80
- Сообщения: 2880
- Зарегистрирован: 21 янв 2009, 19:38
- Двигатель:: 4M40
- Мой автомобиль(и):: Pajero 2 46 ATF
- Откуда: Киров
- Откуда: Kirov [43]
- Благодарил (а): 7 раз
- Поблагодарили: 72 раза
Re: Мини-FAQ по кондею - посмотрите и скажите что добавить!!
Не работает режим A/C точнее работает точно также как и в ECO...
Бывает еще такое что кондей включается и выключается с интервалом всего в 2-3 сек. И таак может длиться 1-3 минуты.
В чем может быть причина ???
С первым вопросом конечно могу и сам справиться, тупо кинуть провод от переключателя с положения A/C на реле, но это не правильно.
Бывает еще такое что кондей включается и выключается с интервалом всего в 2-3 сек. И таак может длиться 1-3 минуты.
В чем может быть причина ???
С первым вопросом конечно могу и сам справиться, тупо кинуть провод от переключателя с положения A/C на реле, но это не правильно.
Mitsubishi PAJERO-II | 1995 | 4M40 | V46W | АКПП | GLS
Я горд за РОССИЙСКУЮ ИМПЕРИЮ - мы можем управлять "белым домом" и сажать своих людей в "овальный кабинет" !!!
Я горд за РОССИЙСКУЮ ИМПЕРИЮ - мы можем управлять "белым домом" и сажать своих людей в "овальный кабинет" !!!
Re: Мини-FAQ по кондею - посмотрите и скажите что добавить!!
если он у тебя раньше работал нормально а сейчас так барахлит тогда смотри:atas80 писал(а):Не работает режим A/C точнее работает точно также как и в ECO...
Бывает еще такое что кондей включается и выключается с интервалом всего в 2-3 сек. И таак может длиться 1-3 минуты.
В чем может быть причина ???
С первым вопросом конечно могу и сам справиться, тупо кинуть провод от переключателя с положения A/C на реле, но это не правильно.
1. посмотри контакты реле кот включает кондей вполне вожможно что окислился так же посмотри разъёмы и сами ножки реле.
2. подключи муфту насоса на прямую, если охлаждает тогда фрион есть и может быть что датчик давления в системе гонит(без тестера не обойтись, надо будет проверить сопротивления)
3. если ты включаешь А\С и у тебя и вентилятор так же работает то смотри датчик кот на маленьком бочёнке с фрионом
ну а провод кидать на прямую не стоит, насос должен сам выключаться если перегреется система или давление подрасёт
Pajero II,v46, 2.8, 116 л.с., тнвд-механика, 5-дв, 32-тапочки, 2 печки 2 климы, багажник от Федяя
Водка и джип - 2 вещи не совместимы!!!
Водка и джип - 2 вещи не совместимы!!!
- atas80
- Сообщения: 2880
- Зарегистрирован: 21 янв 2009, 19:38
- Двигатель:: 4M40
- Мой автомобиль(и):: Pajero 2 46 ATF
- Откуда: Киров
- Откуда: Kirov [43]
- Благодарил (а): 7 раз
- Поблагодарили: 72 раза
Re: Мини-FAQ по кондею - посмотрите и скажите что добавить!!
Охлаждать то охлаждает точно... Работает без проблем. Только вот это прерывистое вкл/выкл напрягает. Но это бывает не всегда.
Реле в хорошем состоянии. Месяц назад менял реле на вентиляторе кондея и заодно все проверил.
Датчик давления на балончике осушителя стоит ? Какое сопративление должно быть в норме ?
Реле в хорошем состоянии. Месяц назад менял реле на вентиляторе кондея и заодно все проверил.
Датчик давления на балончике осушителя стоит ? Какое сопративление должно быть в норме ?
Mitsubishi PAJERO-II | 1995 | 4M40 | V46W | АКПП | GLS
Я горд за РОССИЙСКУЮ ИМПЕРИЮ - мы можем управлять "белым домом" и сажать своих людей в "овальный кабинет" !!!
Я горд за РОССИЙСКУЮ ИМПЕРИЮ - мы можем управлять "белым домом" и сажать своих людей в "овальный кабинет" !!!
- SL0N
- Сообщения: 745
- Зарегистрирован: 09 июн 2008, 14:10
- Двигатель:: 4D56
- Мой автомобиль(и):: Pajero2
- Откуда: Ульяновск
- Откуда: Ульяновск
- Поблагодарили: 1 раз
Re: Мини-FAQ по кондею - посмотрите и скажите что добавить!!
Отключи концевик на ТНВД. Он часто глючит именно так.
- atas80
- Сообщения: 2880
- Зарегистрирован: 21 янв 2009, 19:38
- Двигатель:: 4M40
- Мой автомобиль(и):: Pajero 2 46 ATF
- Откуда: Киров
- Откуда: Kirov [43]
- Благодарил (а): 7 раз
- Поблагодарили: 72 раза
Re: Мини-FAQ по кондею - посмотрите и скажите что добавить!!
Не вкурил. Можно ли подробней ?
Причем туту ТНВД и какой концевик ?
У меня на ТНВД только один большой разъем...
Причем туту ТНВД и какой концевик ?
У меня на ТНВД только один большой разъем...
Mitsubishi PAJERO-II | 1995 | 4M40 | V46W | АКПП | GLS
Я горд за РОССИЙСКУЮ ИМПЕРИЮ - мы можем управлять "белым домом" и сажать своих людей в "овальный кабинет" !!!
Я горд за РОССИЙСКУЮ ИМПЕРИЮ - мы можем управлять "белым домом" и сажать своих людей в "овальный кабинет" !!!
- SL0N
- Сообщения: 745
- Зарегистрирован: 09 июн 2008, 14:10
- Двигатель:: 4D56
- Мой автомобиль(и):: Pajero2
- Откуда: Ульяновск
- Откуда: Ульяновск
- Поблагодарили: 1 раз
Re: Мини-FAQ по кондею - посмотрите и скажите что добавить!!
На ТНВД есть концевой выключатель, отключающий компрессор кондиционера при нажатии на педаль примерно 90% (для уменьшения нагрузки на двигатель при обгоне), подключается однопроводным разъемчиком. По крайней мере, на 2.5 именно так. Может на 2.8 его и нет, проверь.
- Passim
- Сообщения: 325
- Зарегистрирован: 23 авг 2010, 14:28
- Двигатель:: 4D56
- Мой автомобиль(и):: Mitsubishi Pajero 1993 г.
- Откуда: Казахстан, Шымкент
- Благодарил (а): 19 раз
- Поблагодарили: 10 раз
Re: Мини-FAQ по кондею - посмотрите и скажите что добавить!!
У них кажется под педалью газа эта кнопка
P-II '93 3dr, 4d56, АКПП, SS, правый руль, си-би, шноркель. Был со мной 8 лет, продан.
PAJERO IV 3.0 2007 г. араб.
PAJERO IV 3.0 2007 г. араб.
- atas80
- Сообщения: 2880
- Зарегистрирован: 21 янв 2009, 19:38
- Двигатель:: 4M40
- Мой автомобиль(и):: Pajero 2 46 ATF
- Откуда: Киров
- Откуда: Kirov [43]
- Благодарил (а): 7 раз
- Поблагодарили: 72 раза
Re: Мини-FAQ по кондею - посмотрите и скажите что добавить!!
Да эта кнопка есть и на насосе и под педалью. На насосе никогда небыла подключена. В связи с чем выкинута.
Кнопка работает исправно, если бы не работала А/Т ошибку выдалабы.
Кнопка работает исправно, если бы не работала А/Т ошибку выдалабы.
Mitsubishi PAJERO-II | 1995 | 4M40 | V46W | АКПП | GLS
Я горд за РОССИЙСКУЮ ИМПЕРИЮ - мы можем управлять "белым домом" и сажать своих людей в "овальный кабинет" !!!
Я горд за РОССИЙСКУЮ ИМПЕРИЮ - мы можем управлять "белым домом" и сажать своих людей в "овальный кабинет" !!!
- SL0N
- Сообщения: 745
- Зарегистрирован: 09 июн 2008, 14:10
- Двигатель:: 4D56
- Мой автомобиль(и):: Pajero2
- Откуда: Ульяновск
- Откуда: Ульяновск
- Поблагодарили: 1 раз
Re: Мини-FAQ по кондею - посмотрите и скажите что добавить!!
Понятно. Кнопка под педалью - это овердрайв АКПП, кнопка на насосе - отключение кондишена. В данном случае она не при чем, раз отключена.
- Kesov
- Сообщения: 1520
- Зарегистрирован: 27 мар 2007, 22:50
- Двигатель:: 3,8 бензин, 6G75
- Мой автомобиль(и):: Паджеро 4
- Откуда: Москва
- Откуда: Москва, Лефортово
- Благодарил (а): 2 раза
- Поблагодарили: 7 раз
- Контактная информация:
Re: Мини-FAQ по кондею - посмотрите и скажите что добавить!!
Замена подшипника в натяжном ролике ремня привода кондиционера.
Машина в подписи. Зашумел подшипник (сильно) в натяжном ролике ремня привода кондея. Диагностируется снятием ремня. Натяжной ролик по экзисту стоит совсем негуманно, а подшипник отдельно не продается. Ремонтировал следующим образом:
- снял ролик
- разобрал
- вытащил подшипник
- замерил (d=30. D=52. h=22)
- начал искать.... оказалось все не так просто.... Подшипник специальный! Все фирмы торгующие различными подшипниками сразу навскидку определяют что это от кондея. В наличии оказалось только в одном месте
http://www.sf2v.ru/contacts/
Цена вопроса 1586 рублей.
В других местах по заказ (месяц!!!!!) и цена 2000руб.
- собрал и поехал!
Может кому пригодится мой опыт.
Машина в подписи. Зашумел подшипник (сильно) в натяжном ролике ремня привода кондея. Диагностируется снятием ремня. Натяжной ролик по экзисту стоит совсем негуманно, а подшипник отдельно не продается. Ремонтировал следующим образом:
- снял ролик
- разобрал
- вытащил подшипник
- замерил (d=30. D=52. h=22)
- начал искать.... оказалось все не так просто.... Подшипник специальный! Все фирмы торгующие различными подшипниками сразу навскидку определяют что это от кондея. В наличии оказалось только в одном месте
http://www.sf2v.ru/contacts/
Цена вопроса 1586 рублей.
В других местах по заказ (месяц!!!!!) и цена 2000руб.
- собрал и поехал!
Может кому пригодится мой опыт.
МП-2, 1997 г., 5 дверный, 4М40-EFI, АКПП, супер селект, японец, BF Goodrich All-Terrain T/A, 265x75xR16 - продан
МП-4, 2009 г., 5 дверный, 6G75-mivec, АКПП, супер селект, европеец.
МП-4, 2009 г., 5 дверный, 6G75-mivec, АКПП, супер селект, европеец.
- atas80
- Сообщения: 2880
- Зарегистрирован: 21 янв 2009, 19:38
- Двигатель:: 4M40
- Мой автомобиль(и):: Pajero 2 46 ATF
- Откуда: Киров
- Откуда: Kirov [43]
- Благодарил (а): 7 раз
- Поблагодарили: 72 раза
Re: Мини-FAQ по кондею - посмотрите и скажите что добавить!!
Где находится (местоположение) разъем С-27 не могу найти ???
А именно хочу на своем моторе восстановить концевик полностью отжатой педали газа, для отключания кондея.
А именно хочу на своем моторе восстановить концевик полностью отжатой педали газа, для отключания кондея.
Mitsubishi PAJERO-II | 1995 | 4M40 | V46W | АКПП | GLS
Я горд за РОССИЙСКУЮ ИМПЕРИЮ - мы можем управлять "белым домом" и сажать своих людей в "овальный кабинет" !!!
Я горд за РОССИЙСКУЮ ИМПЕРИЮ - мы можем управлять "белым домом" и сажать своих людей в "овальный кабинет" !!!
-
ammo7
- Сообщения: 60
- Зарегистрирован: 22 ноя 2011, 11:26
- Двигатель:: 4m40
- Мой автомобиль(и):: Pajero II
- Откуда: Msk
- Откуда: Msk
- Благодарил (а): 4 раза
- Поблагодарили: 2 раза
Re: Мини-FAQ по кондею - посмотрите и скажите что добавить!!
Вдруг кому пригодится.
Чистка радиатора кондея без его разборки.
Печка еле грела - был очень слабый поток воздуха, вскрытие показало что на радиаторе кондея войлок из грязи, все соты забиты землей - страшно смотреть.
Полностью снимаем бардачок, чуть разбираем и вытягиваем на себя корпус:

Войлок и большая грязь чистится зубной щеткой, потом пылесос.
Дальше взял бачок омывателя с другой машины, туда воды с автошампунем, на шланг иголку от шприца, подключаем к аккуму и таким мини-керхером все несколько раз тщательно промываем.

Потом иголку снимаем и промываем чистой водой. Вместо иголки можно подключить форсунку омывателя.
Получилось быстро и довольно эффективно
Теперь печка жарит, поток воздуха хороший даже на первой скорости вентилятора.
Чистка радиатора кондея без его разборки.
Печка еле грела - был очень слабый поток воздуха, вскрытие показало что на радиаторе кондея войлок из грязи, все соты забиты землей - страшно смотреть.
Полностью снимаем бардачок, чуть разбираем и вытягиваем на себя корпус:

Войлок и большая грязь чистится зубной щеткой, потом пылесос.
Дальше взял бачок омывателя с другой машины, туда воды с автошампунем, на шланг иголку от шприца, подключаем к аккуму и таким мини-керхером все несколько раз тщательно промываем.

Потом иголку снимаем и промываем чистой водой. Вместо иголки можно подключить форсунку омывателя.
Получилось быстро и довольно эффективно
Теперь печка жарит, поток воздуха хороший даже на первой скорости вентилятора.
- Barmalei
- Сообщения: 1444
- Зарегистрирован: 13 окт 2011, 18:55
- Двигатель:: 6G72
- Мой автомобиль(и):: МПС 2006 GLS 3,0 АКПП V4A515DB
- Откуда: Вологодская область
- Откуда: 35 регион
- Благодарил (а): 166 раз
- Поблагодарили: 56 раз
Re: Мини-FAQ по кондею - посмотрите и скажите что добавить!!
Может кто подскажет? Не пользовался кондиционером неделю т.к. не жарко. Сегодня включил его и машина заглохла, авто стояло на нейтрали и работало на ХХ. Опять включаю его и опять глохнет.... и чувствую ,что когда включаю кондиционер двигатель как-то напряжно очень работает, как будто ему очень тяжело. Раньше такого не было.
Боюсь, что заклинил компрессор кондиционера
За пол дня до этого скидывал клемму АКБ, после дал поработать на ХХ 20 минут. А за пол часа до включения кондиционера пролетал по грязевым лужам...
Подскажите, кто знает что делать.
Попробовать на больших оборотах включить кондиционер, и узнать что выдержит, ремень ГРМ или компрессор?
Боюсь, что заклинил компрессор кондиционера
За пол дня до этого скидывал клемму АКБ, после дал поработать на ХХ 20 минут. А за пол часа до включения кондиционера пролетал по грязевым лужам...
Подскажите, кто знает что делать.
Попробовать на больших оборотах включить кондиционер, и узнать что выдержит, ремень ГРМ или компрессор?
МПС 2006 GLS 3,0 АКПП. Удалены: перед. и зад. стаб., абсорбер и задний катализатор. Бодик 5 см, аморт. Tokico E3560 и E2800,зад. пруж. Kayaba RD5962, 285/75R16 DunlopGrandtrek MT2, ComeUp 9 DV
- Barmalei
- Сообщения: 1444
- Зарегистрирован: 13 окт 2011, 18:55
- Двигатель:: 6G72
- Мой автомобиль(и):: МПС 2006 GLS 3,0 АКПП V4A515DB
- Откуда: Вологодская область
- Откуда: 35 регион
- Благодарил (а): 166 раз
- Поблагодарили: 56 раз
Re: Мини-FAQ по кондею - посмотрите и скажите что добавить!!
Сегодня включил и все заработало ,не клинит и нормально работает... Кто знает, может перебрать, подшипники там поменять пока не совсем умерло???
МПС 2006 GLS 3,0 АКПП. Удалены: перед. и зад. стаб., абсорбер и задний катализатор. Бодик 5 см, аморт. Tokico E3560 и E2800,зад. пруж. Kayaba RD5962, 285/75R16 DunlopGrandtrek MT2, ComeUp 9 DV
- atas80
- Сообщения: 2880
- Зарегистрирован: 21 янв 2009, 19:38
- Двигатель:: 4M40
- Мой автомобиль(и):: Pajero 2 46 ATF
- Откуда: Киров
- Откуда: Kirov [43]
- Благодарил (а): 7 раз
- Поблагодарили: 72 раза
Re: Мини-FAQ по кондею - посмотрите и скажите что добавить!!
Скинь ремень и покрути шкиф.
Mitsubishi PAJERO-II | 1995 | 4M40 | V46W | АКПП | GLS
Я горд за РОССИЙСКУЮ ИМПЕРИЮ - мы можем управлять "белым домом" и сажать своих людей в "овальный кабинет" !!!
Я горд за РОССИЙСКУЮ ИМПЕРИЮ - мы можем управлять "белым домом" и сажать своих людей в "овальный кабинет" !!!
-
Telematik
- Сообщения: 26
- Зарегистрирован: 25 ноя 2012, 18:36
- Двигатель:: 4D56
- Мой автомобиль(и):: Pagero 2/1992 год. Акпп пруль
- Откуда: Краснодар
Re: Мини-FAQ по кондею - посмотрите и скажите что добавить!!
Я так понимаю при механической чистке испарителя кондея,так как это описано выше,вся та грязь которая смывается с испарителя льется в салон??И еще вопросик ,нужно ли чистить радиатор отопителя,если машина ездила без фильтра то они оба по идее должны быть забитыми?
- Deem-On
- Сообщения: 1014
- Зарегистрирован: 18 мар 2011, 17:49
- Двигатель:: 4M40
- Мой автомобиль(и):: Паджеро 2, был
- Откуда: Ярославль
- Благодарил (а): 8 раз
- Поблагодарили: 95 раз
Re: Мини-FAQ по кондею - посмотрите и скажите что добавить!!
Грязь, которая смывается с испарителя вытекает наружу по дренажной трубке, в салон ничего не попадает. А радиатор печки чистить не вижу смысла, т.к. испаритель стоит до него и собирает всю грязь на себя, тем самым выполняя роль "фильтра".
p.s. Важное дополнение к вышеописанному методу чистки испарителя: за несколько дней до чистки НЕ ВКЛЮЧАЙТЕ кондиционер, чтобы вся шняга, которая осела на испарителе была сухой, в таком виде ее гораздо легче счищать. В моем случае получилось наоборот, кондей работал почти полдня, испаритель был весь мокрый, в итоге пришлось столовой ложкой выковыривать влажный и липкий чернозем, который размазывался по сотам, напрочь залепляя их. Пришлось возиться часа два, промывая все это, про пылесос там и речи не могло идти, а "мини-керхер" я сделал из бачка садового опрыскивателя, тож нормально получилось.
p.s. Важное дополнение к вышеописанному методу чистки испарителя: за несколько дней до чистки НЕ ВКЛЮЧАЙТЕ кондиционер, чтобы вся шняга, которая осела на испарителе была сухой, в таком виде ее гораздо легче счищать. В моем случае получилось наоборот, кондей работал почти полдня, испаритель был весь мокрый, в итоге пришлось столовой ложкой выковыривать влажный и липкий чернозем, который размазывался по сотам, напрочь залепляя их. Пришлось возиться часа два, промывая все это, про пылесос там и речи не могло идти, а "мини-керхер" я сделал из бачка садового опрыскивателя, тож нормально получилось.
П-2 1994 длинный,GLS,4М40,АКПП,SS,А/Т32"-увы, уже донор
- GeWork
- Сообщения: 2026
- Зарегистрирован: 19 янв 2012, 01:19
- Двигатель:: 4M40 2.8TD
- Мой автомобиль(и):: Pajero II 1994 5дв. Японец АКПП, SuperSelekt
- Откуда: Ростов-на-дону
- Откуда: Ростов-на-дону
- Благодарил (а): 35 раз
- Поблагодарили: 24 раза
Re: Мини-FAQ по кондею - посмотрите и скажите что добавить!!
Так я ни где и не нашел свою проблему. Значит кондиционер работал каждый день, вчера включаю, работает вентилятор радиатора, электро муфта не вкючается. Все реле и предохранители в норме. Дальше напрямую замыкаю разьем с реле, муфта схватывается и кондер начинает работать. Сначала грешил на датчик давления на осушителе, перемыкаю его фишку, ни чего не происходит. У меня не климат. Какие еще датчики могут блокировать включение компрессора. ПС, пока езжу с перемычкой в место реле.
Pajero II 1994 5дв. Японец 4M40 2.8TD, АКПП (V4AW3), SuperSelekt
Геворк Фёдорович
+7-988-577-6З-ЧЧ
Геворк Фёдорович
+7-988-577-6З-ЧЧ
- Deem-On
- Сообщения: 1014
- Зарегистрирован: 18 мар 2011, 17:49
- Двигатель:: 4M40
- Мой автомобиль(и):: Паджеро 2, был
- Откуда: Ярославль
- Благодарил (а): 8 раз
- Поблагодарили: 95 раз
Re: Мини-FAQ по кондею - посмотрите и скажите что добавить!!
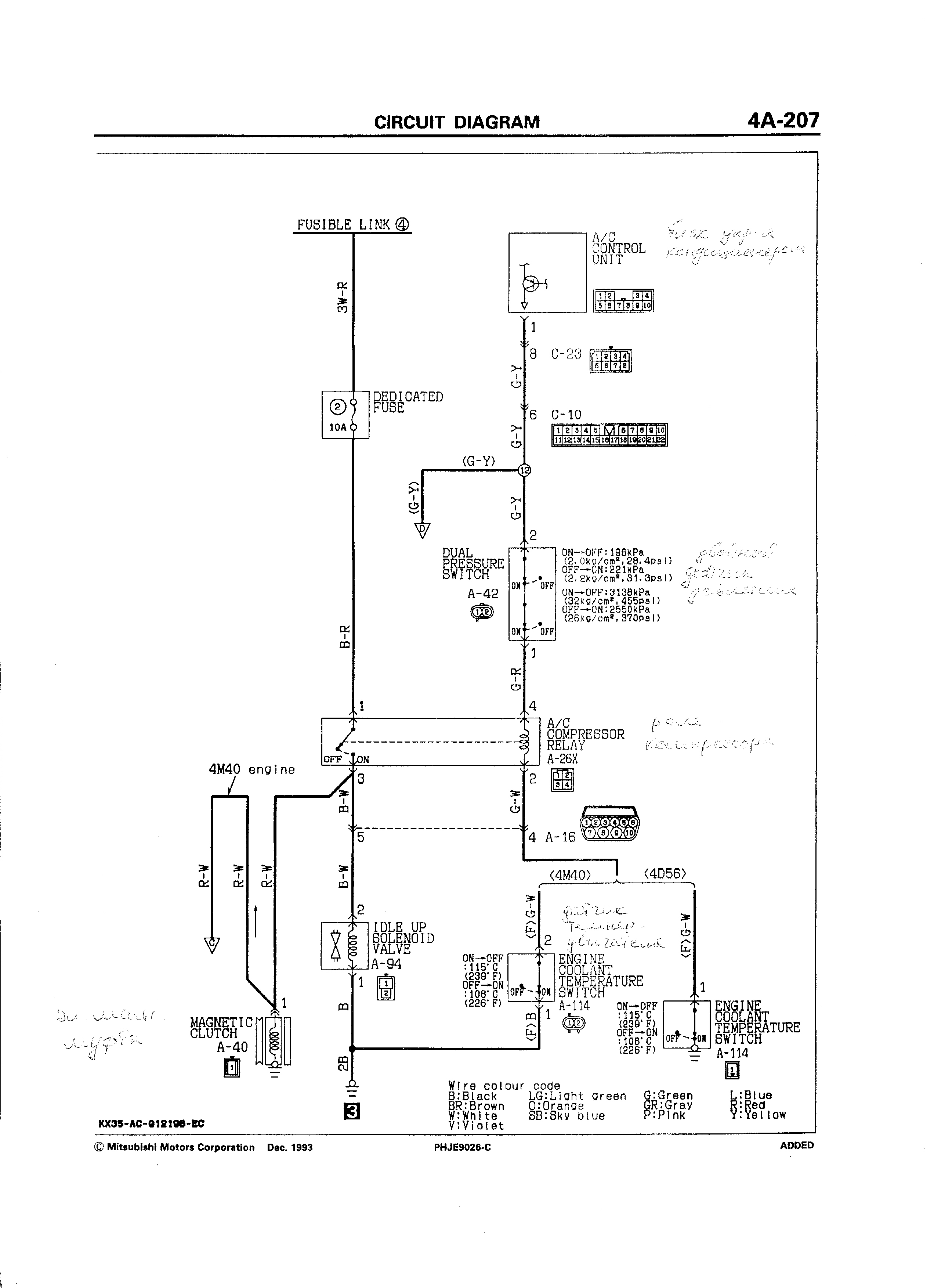
Сигнал "+" на реле идет с блока управления ,через датчик давления, на обмотку реле
Минус на обмотку идет через датчик температуры двигателя. Большая вероятность, что это он дурит. Проверь проводочки и клеммы ко всем датчикам температуры, надеюсь поможет.
Ну и схемка твоя до кучи, может поможет чем.
Минус на обмотку идет через датчик температуры двигателя. Большая вероятность, что это он дурит. Проверь проводочки и клеммы ко всем датчикам температуры, надеюсь поможет.
Ну и схемка твоя до кучи, может поможет чем.
П-2 1994 длинный,GLS,4М40,АКПП,SS,А/Т32"-увы, уже донор
