TRT - Вдоль р.Киржач. Для стандартных 4х4 (08.11.25) Форум Обсуждение FAQ
Отчет о ремонте ТНВД 4М41 П3
Модераторы: SNOOPER, Nbf, Romik, BAlex, drcham, алексей - Маленький Мук, DenVer, Алекс
-
vanderveken
- Сообщения: 90
- Зарегистрирован: 04 ноя 2011, 16:59
- Двигатель:: 4m41
- Мой автомобиль(и):: Pajero III
- Откуда: Пермский край
- Откуда: Пермский край
- Благодарил (а): 1 раз
- Поблагодарили: 2 раза
Re: Отчет о ремонте ТНВД 4М41 П3
Ещё одно, ходил вокруг машины, думаю посмотрю пред 6 , а там стоит номиналом 10, и одна нога его висит в воздухе, нет контактов со стороны моторного щита. Пред целый. Есть особенности разборки колодки предохранителей?
Pajero III 3.2DID 4m41 2006 5-d
-
vanderveken
- Сообщения: 90
- Зарегистрирован: 04 ноя 2011, 16:59
- Двигатель:: 4m41
- Мой автомобиль(и):: Pajero III
- Откуда: Пермский край
- Откуда: Пермский край
- Благодарил (а): 1 раз
- Поблагодарили: 2 раза
Re: Отчет о ремонте ТНВД 4М41 П3
Разобрал, нет проводов к № 6. Ничего не понимаю. Как проверить сеть с ЭБУ на позиционер? Где предохранитель позиционера???
Pajero III 3.2DID 4m41 2006 5-d
- Злыдня
- Сообщения: 1448
- Зарегистрирован: 24 авг 2012, 13:52
- Двигатель:: 4M41
- Мой автомобиль(и):: Паджеро 3, Турбодизель дыр-дыр-дыр
- Откуда: Новополоцк
- Откуда: Беларусь
- Благодарил (а): 6 раз
- Поблагодарили: 205 раз
Re: Отчет о ремонте ТНВД 4М41 П3
Должен быть в гнезде N6. На 20 ампер. Видно, кто-то там уже полазил.
Снимайте позиционер, сморите дозирующую муфту. По электрике все в допуске, но если произошёл прихват, то вал уже обрезало и муфта сидит на одном месте, не давая повернуться штанге. ЭБУ, не видя с дифтатчика реакции на свои команды, пишет ошибку 48.
Снимайте позиционер, сморите дозирующую муфту. По электрике все в допуске, но если произошёл прихват, то вал уже обрезало и муфта сидит на одном месте, не давая повернуться штанге. ЭБУ, не видя с дифтатчика реакции на свои команды, пишет ошибку 48.
Сижу, никого не трогаю, починяю примус ©.
Починка примусов системы Zexel VRZ в Беларуси.
Починка примусов системы Zexel VRZ в Беларуси.
-
vanderveken
- Сообщения: 90
- Зарегистрирован: 04 ноя 2011, 16:59
- Двигатель:: 4m41
- Мой автомобиль(и):: Pajero III
- Откуда: Пермский край
- Откуда: Пермский край
- Благодарил (а): 1 раз
- Поблагодарили: 2 раза
Re: Отчет о ремонте ТНВД 4М41 П3
Даже провода не подходят, обрезков, скруток нет.
Pajero III 3.2DID 4m41 2006 5-d
- Злыдня
- Сообщения: 1448
- Зарегистрирован: 24 авг 2012, 13:52
- Двигатель:: 4M41
- Мой автомобиль(и):: Паджеро 3, Турбодизель дыр-дыр-дыр
- Откуда: Новополоцк
- Откуда: Беларусь
- Благодарил (а): 6 раз
- Поблагодарили: 205 раз
Re: Отчет о ремонте ТНВД 4М41 П3
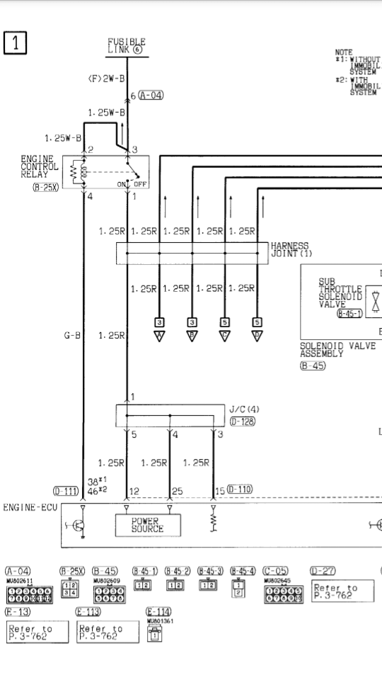
Чудес не бывает. Вот плюсовая линия электромагнита позиционера на схеме.
От предохранителя N6 (fusible link) через шестую ногу 12пин разъёма ТНВД (A04), контрольное реле двигателя и дальше в сторону ЭБУ (ECU).
От предохранителя N6 (fusible link) через шестую ногу 12пин разъёма ТНВД (A04), контрольное реле двигателя и дальше в сторону ЭБУ (ECU).
Сижу, никого не трогаю, починяю примус ©.
Починка примусов системы Zexel VRZ в Беларуси.
Починка примусов системы Zexel VRZ в Беларуси.
-
vanderveken
- Сообщения: 90
- Зарегистрирован: 04 ноя 2011, 16:59
- Двигатель:: 4m41
- Мой автомобиль(и):: Pajero III
- Откуда: Пермский край
- Откуда: Пермский край
- Благодарил (а): 1 раз
- Поблагодарили: 2 раза
Re: Отчет о ремонте ТНВД 4М41 П3
Значит можно по проводу с 6 ноги 12пин разъема прийти к предохранителю в колодке? Просто впечатление такое что его там и не было (в №6), книга пишет, что с пред с моделей с 2003 года, у меня 2006.
Pajero III 3.2DID 4m41 2006 5-d
- Злыдня
- Сообщения: 1448
- Зарегистрирован: 24 авг 2012, 13:52
- Двигатель:: 4M41
- Мой автомобиль(и):: Паджеро 3, Турбодизель дыр-дыр-дыр
- Откуда: Новополоцк
- Откуда: Беларусь
- Благодарил (а): 6 раз
- Поблагодарили: 205 раз
Re: Отчет о ремонте ТНВД 4М41 П3
На 2006 год у меня схем нет. На прошлой неделе потрошил машину этого года, проводка с левой стороны идентична 2001 году. В блоке предохранителей могли быть внесены изменения, но я туда не лазил, не смотрел.
Самая поздняя схема, которая у меня есть 2003 год, 4м41, левый руль, step III и плюсовая цепь на ней тождественна той, которую я выкладывал.
Самая поздняя схема, которая у меня есть 2003 год, 4м41, левый руль, step III и плюсовая цепь на ней тождественна той, которую я выкладывал.
Сижу, никого не трогаю, починяю примус ©.
Починка примусов системы Zexel VRZ в Беларуси.
Починка примусов системы Zexel VRZ в Беларуси.
-
vanderveken
- Сообщения: 90
- Зарегистрирован: 04 ноя 2011, 16:59
- Двигатель:: 4m41
- Мой автомобиль(и):: Pajero III
- Откуда: Пермский край
- Откуда: Пермский край
- Благодарил (а): 1 раз
- Поблагодарили: 2 раза
Re: Отчет о ремонте ТНВД 4М41 П3
Евгений вышел на контакт, буду отправлять обратно, он хочет сам разбираться.
Pajero III 3.2DID 4m41 2006 5-d
- Злыдня
- Сообщения: 1448
- Зарегистрирован: 24 авг 2012, 13:52
- Двигатель:: 4M41
- Мой автомобиль(и):: Паджеро 3, Турбодизель дыр-дыр-дыр
- Откуда: Новополоцк
- Откуда: Беларусь
- Благодарил (а): 6 раз
- Поблагодарили: 205 раз
Re: Отчет о ремонте ТНВД 4М41 П3
Я бы разобрал сам. Если это прихват, там и автомат УОВ мог пострадать, да и что угодно ещё из нутрянки.
Сижу, никого не трогаю, починяю примус ©.
Починка примусов системы Zexel VRZ в Беларуси.
Починка примусов системы Zexel VRZ в Беларуси.
-
Dieseltronic
- Сообщения: 1038
- Зарегистрирован: 13 апр 2014, 08:06
- Двигатель:: Дизель
- Мой автомобиль(и):: "Орлёнок"
- Откуда: Красноярск
- Благодарил (а): 3 раза
- Поблагодарили: 34 раза
Re: Отчет о ремонте ТНВД 4М41 П3
не стройте версии до выяснения обстоятельствЗлыдня писал(а):Я бы разобрал сам. Если это прихват, там и автомат УОВ мог пострадать, да и что угодно ещё из нутрянки.
-
vanderveken
- Сообщения: 90
- Зарегистрирован: 04 ноя 2011, 16:59
- Двигатель:: 4m41
- Мой автомобиль(и):: Pajero III
- Откуда: Пермский край
- Откуда: Пермский край
- Благодарил (а): 1 раз
- Поблагодарили: 2 раза
Re: Отчет о ремонте ТНВД 4М41 П3
Если что-то размолотило, то уже размолотило. Разбирать сам не хочу от слова вообще. Всегда можно упустить какую то мелочь по незнанию, которая потом станет фатальной. Да и нечестно будет по отношению к Евгению. Имхо.
Pajero III 3.2DID 4m41 2006 5-d
- SmoAG
- Сообщения: 7842
- Зарегистрирован: 16 янв 2015, 13:11
- Двигатель:: 4m41
- Мой автомобиль(и):: Pajero 3, 2005 АКПП
- Откуда: Воронеж
- Откуда: Воронеж
- Благодарил (а): 99 раз
- Поблагодарили: 541 раз
Re: Отчет о ремонте ТНВД 4М41 П3
Ну тогда держите нас в курсе, это и стимул дляЕвгенияи нам интересно.
Здесь должна была быть какая-нибудь цитата из вк или другого ресурса, но вот что то не нашёл ни чего что могло бы выразить моё миропонимание сейчас;)
-
К.Роман
- Сообщения: 27
- Зарегистрирован: 16 июл 2014, 07:52
- Двигатель:: 4М41
- Мой автомобиль(и):: Pajero III
- Откуда: Бийск
Re: Отчет о ремонте ТНВД 4М41 П3
Ремонтировал насос у Евгения. Поставили, завели. счатью предела не было. машина работала на ура. 200 км пробега и все. встала окончательно. притом что заглохла на ходу без стуков и дерганий. комп показал ошибку 48. Сегодня полез искать причину. снял крышку позиционера и подал питание. заметил дымок из колодки проводов. Позвонил Евгению для консультации. Он мне посоветовал аккуратно попробовать вручную без питания двинуть стрелку позиционера. говорит должна двигаться. у меня же зараза такая стоит на месте как влитая. на что услышал чтоб я снимал насос и отправлял к нему для выяснения обстоятельств. Итак вопрос. может не так страшен зверь как про него говорят? может таки можно в домашних условиях справиться с этой бедой? а то как-то пересылка дороговатая да и время...важнее наверное все же время. Всем заранее благодарен!
- Непопаджеро
- Сообщения: 3202
- Зарегистрирован: 03 мар 2015, 00:10
- Двигатель:: 4M41
- Мой автомобиль(и):: Pajero 3
- Откуда: РБ
- Благодарил (а): 132 раза
- Поблагодарили: 141 раз
Re: Отчет о ремонте ТНВД 4М41 П3
...это жжжжжжж неспроста.
Как я понимаю, приваривается вал в распределительной гидроголовке? Или в дозирующей втулке?
Если первое - на гальванику и мехобработку нужно отправлять все детали, а не только вал с втулкой. И подгонять размеры по месту.
Как я понимаю, приваривается вал в распределительной гидроголовке? Или в дозирующей втулке?
Если первое - на гальванику и мехобработку нужно отправлять все детали, а не только вал с втулкой. И подгонять размеры по месту.
Всем добра!
- SmoAG
- Сообщения: 7842
- Зарегистрирован: 16 янв 2015, 13:11
- Двигатель:: 4m41
- Мой автомобиль(и):: Pajero 3, 2005 АКПП
- Откуда: Воронеж
- Откуда: Воронеж
- Благодарил (а): 99 раз
- Поблагодарили: 541 раз
Re: Отчет о ремонте ТНВД 4М41 П3
После приварки уже нет смысла, вал обрезается как я понимаю. Мотор ведь крутит тнвд через шестерню и следовательно .....
Здесь должна была быть какая-нибудь цитата из вк или другого ресурса, но вот что то не нашёл ни чего что могло бы выразить моё миропонимание сейчас;)
- Непопаджеро
- Сообщения: 3202
- Зарегистрирован: 03 мар 2015, 00:10
- Двигатель:: 4M41
- Мой автомобиль(и):: Pajero 3
- Откуда: РБ
- Благодарил (а): 132 раза
- Поблагодарили: 141 раз
Re: Отчет о ремонте ТНВД 4М41 П3
Это понятно.
Я обращал внимание реставраторов на то,что подгонки вал-втулка недостаточно. Нужно подгонять и притирать весь комплект. Ваять какой-то стенд с подачей в пары трения притирочного состава и обкатывать.
Я обращал внимание реставраторов на то,что подгонки вал-втулка недостаточно. Нужно подгонять и притирать весь комплект. Ваять какой-то стенд с подачей в пары трения притирочного состава и обкатывать.
Всем добра!
-
Dieseltronic
- Сообщения: 1038
- Зарегистрирован: 13 апр 2014, 08:06
- Двигатель:: Дизель
- Мой автомобиль(и):: "Орлёнок"
- Откуда: Красноярск
- Благодарил (а): 3 раза
- Поблагодарили: 34 раза
Re: Отчет о ремонте ТНВД 4М41 П3
прихват (приварка) бывает разныйПосле приварки уже нет смысла, вал обрезается как я понимаю
прихват "ротор- корпус"- срез, без вариантов
прихват "ротор- втулка дозатора" в чистом виде- мне лично не встречался
по статистике пробега "костанайских" роторов (порядка 10-ти экземпляров)- "словил клинА" всего один
по причине опустошения топливного бака и как следствие- завоздушивание ТНВД
все трущиеся-вращающиеся детали ТНВД смазываются исключительно дизтопливом
воздух смазывающей способностью нЕ обладает
надеюсь, логика понятна
- SmoAG
- Сообщения: 7842
- Зарегистрирован: 16 янв 2015, 13:11
- Двигатель:: 4m41
- Мой автомобиль(и):: Pajero 3, 2005 АКПП
- Откуда: Воронеж
- Откуда: Воронеж
- Благодарил (а): 99 раз
- Поблагодарили: 541 раз
Re: Отчет о ремонте ТНВД 4М41 П3
Я так понимаю что все кто востанавливает роторы балансируют на тонеой грани, необходимого размера для достаточной гидроплотности и минимального зазора что бы не было прихвата. Но факт того что родные роторы имеют напыление которое является и антифрикционным, а вот востановленные детали его уже не имеют, поэтому к ним выше требования для обкатки итемпературе, и не последнее место занимает топливо по сезону.Непопаджеро писал(а):Это понятно.
Я обращал внимание реставраторов на то,что подгонки вал-втулка недостаточно. Нужно подгонять и притирать весь комплект. Ваять какой-то стенд с подачей в пары трения притирочного состава и обкатывать.
Здесь должна была быть какая-нибудь цитата из вк или другого ресурса, но вот что то не нашёл ни чего что могло бы выразить моё миропонимание сейчас;)
-
Dieseltronic
- Сообщения: 1038
- Зарегистрирован: 13 апр 2014, 08:06
- Двигатель:: Дизель
- Мой автомобиль(и):: "Орлёнок"
- Откуда: Красноярск
- Благодарил (а): 3 раза
- Поблагодарили: 34 раза
Re: Отчет о ремонте ТНВД 4М41 П3
и да, к моменту возникновения неприятности ротор "пробежал" поболе 40 т.км. безо всяческих проблем
нет у меня рекламных целей- но если люди стараются делать качественный продукт в разумные средствА- это всяко лучше, чем отправлять в кетай вдвое бОльшую сумму за сrаный кусок железного го%на
пардоньте за мой хранцузский- но таковой печальный опыт имел место быть- в те времена, когда "оригинал" в разумную цЕну закончился, а нормальное восстановление- ещё не появилось
нет у меня рекламных целей- но если люди стараются делать качественный продукт в разумные средствА- это всяко лучше, чем отправлять в кетай вдвое бОльшую сумму за сrаный кусок железного го%на
пардоньте за мой хранцузский- но таковой печальный опыт имел место быть- в те времена, когда "оригинал" в разумную цЕну закончился, а нормальное восстановление- ещё не появилось
- Непопаджеро
- Сообщения: 3202
- Зарегистрирован: 03 мар 2015, 00:10
- Двигатель:: 4M41
- Мой автомобиль(и):: Pajero 3
- Откуда: РБ
- Благодарил (а): 132 раза
- Поблагодарили: 141 раз
