TRT - Вдоль р.Киржач. Для стандартных 4х4 (08.11.25) Форум Обсуждение FAQ
ВСЁ что касается генератора!! задавайте вопросы!!
Модераторы: SNOOPER, Nbf, Romik, BAlex
-
- Сообщения: 150
- Зарегистрирован: 09 фев 2011, 14:39
- Двигатель:: Бензин
- Мой автомобиль(и):: Pajero II
- Откуда: Питер
- Благодарил (а): 12 раз
- Поблагодарили: 5 раз
ВСЁ что касается генератора!! задавайте вопросы!!
Раза два отпаивал регулятор давно как-то, очень не удобно.
В этот раз просто лень уже ))) лучше в сервисе 1000 руб отдам. Мне главное понять, что именно в гене дело.
А если отключить разъем двухконтактный и проверить, там что должно приходить на него, два по 12 вольт?
В этот раз просто лень уже ))) лучше в сервисе 1000 руб отдам. Мне главное понять, что именно в гене дело.
А если отключить разъем двухконтактный и проверить, там что должно приходить на него, два по 12 вольт?
Pajero, 1999, 3.5/194, 6g74, 3-door
-
- Сообщения: 150
- Зарегистрирован: 09 фев 2011, 14:39
- Двигатель:: Бензин
- Мой автомобиль(и):: Pajero II
- Откуда: Питер
- Благодарил (а): 12 раз
- Поблагодарили: 5 раз
ВСЁ что касается генератора!! задавайте вопросы!!
Замерил, на обоих контактах есть напряжение 12 вольт. Вообщем поеду просто в ремонт генераторов )
Pajero, 1999, 3.5/194, 6g74, 3-door
- bumer76
- Сообщения: 847
- Зарегистрирован: 31 авг 2009, 21:56
- Двигатель:: 6G72 24кл
- Мой автомобиль(и):: ПаджероСпорт 6G72 24кл АКПП
- Откуда: Ярославль
- Откуда: Ярославль
- Благодарил (а): 11 раз
- Поблагодарили: 9 раз
ВСЁ что касается генератора!! задавайте вопросы!!
После замены генератора лампочка Аккума горит как бы в полнакала. Как завёл - все норм, погасла. И перестал работать автозапуск с сигналки. Хотя охрана с работающим двигателем работает
-
- Сообщения: 49
- Зарегистрирован: 25 фев 2012, 12:03
- Двигатель:: 4M40
- Мой автомобиль(и):: Pajero v46
- Откуда: Приморье
- Благодарил (а): 2 раза
ВСЁ что касается генератора!! задавайте вопросы!!
Добрый день, на хх напряжение 12,8В, при оборотах 2500 13,8В, с чего начать? Сразу снимать гену или может какие провода пошевелить, разъемы подергать? В мануале вообще на ХХ проверка не предусмотрена, а по табличке при 2500 с учетом температуры вроде в диапазон допустимый укладываюсь.
-
- Сообщения: 1
- Зарегистрирован: 02 авг 2021, 19:01
- Двигатель:: 4D56
- Мой автомобиль(и):: Pajero2
- Откуда: Пятигорск
ВСЁ что касается генератора!! задавайте вопросы!!
Добрый день, пропала зарядка и потухла наглухо лампа гены (с включенным зажиганием и не заведенном моторе). Лампу проверил, живая (тоненький проводок с гены кинул на массу). Снял генератор, добрался до щеток, щетки в порядке, не распаивая диоды, прозвонил, косяков не обнаружил. Теперь вопросы:
1. Обнаружил что отсутствует напряга на толстом проводе с фишки гены. На сколько я понял, это контроль заряда. При отсутствии напруги на данном проводе генератор хоть как нибудь будет работать? давать хоть какой нить заряд и будет ли работать контрольная лампа?
2. Подкинул часть гены к машине (без якоря и обмотки), массу зафиксировал, подключил фишку, на толстый провод подал +12в, включил зажигание, контрольная лампа так и не горит. Это уже беда с регулятором? Или так не проверишь?
Спасибо. Авто - П2 4D56
1. Обнаружил что отсутствует напряга на толстом проводе с фишки гены. На сколько я понял, это контроль заряда. При отсутствии напруги на данном проводе генератор хоть как нибудь будет работать? давать хоть какой нить заряд и будет ли работать контрольная лампа?
2. Подкинул часть гены к машине (без якоря и обмотки), массу зафиксировал, подключил фишку, на толстый провод подал +12в, включил зажигание, контрольная лампа так и не горит. Это уже беда с регулятором? Или так не проверишь?
Спасибо. Авто - П2 4D56
-
- Сообщения: 49
- Зарегистрирован: 25 фев 2012, 12:03
- Двигатель:: 4M40
- Мой автомобиль(и):: Pajero v46
- Откуда: Приморье
- Благодарил (а): 2 раза
ВСЁ что касается генератора!! задавайте вопросы!!
На толстом проводе 12В должно быть всегда. На некоторых 4D56, если верить мануалу, появляется только при включенном зажигании. Если фары горят смотри проводку, если не горят смотри предохранитель на 40А в блоке реле возле аккума. Еще между аккумом и расширительным бачком радиатора есть фишка 6-ти контактная, может с ней чего.
Последний раз редактировалось alx25rus 03 авг 2021, 11:45, всего редактировалось 1 раз.
- bumer76
- Сообщения: 847
- Зарегистрирован: 31 авг 2009, 21:56
- Двигатель:: 6G72 24кл
- Мой автомобиль(и):: ПаджероСпорт 6G72 24кл АКПП
- Откуда: Ярославль
- Откуда: Ярославль
- Благодарил (а): 11 раз
- Поблагодарили: 9 раз
ВСЁ что касается генератора!! задавайте вопросы!!
Есть ещё пред на 100 ампер в блоке предохранителей под капотом- без него заряда не будет вообщн
Это на спорте. Про п2 не знаю
Это на спорте. Про п2 не знаю
- dvm99
- Сообщения: 21710
- Зарегистрирован: 21 май 2012, 20:59
- Двигатель:: 6G72, 12клап.,
- Мой автомобиль(и):: Pajero2, Запорожец- Ланос
- Откуда: Свердловская обл.
- Благодарил (а): 705 раз
- Поблагодарили: 1026 раз
ВСЁ что касается генератора!! задавайте вопросы!!
Если речь о жёлтом проводе, то да. Но это, как ты правильно сказал, контроль напруги. Если он в обрыве, то генератор начнёт наоборот выдавать завышенное напряжение (вольт 17), но заряд будет.
А у тебя лампа не горит. Значит либо проводка, либо реле-регулятор.
Дмитрий
Боливар2 - П2, 92г., V43, 6G72(12V), V4AW2, RD/L, пруль (чистокровный японский рысак)
Боливар1 - П2, 93г., 6G72(12V), МКПП, V43, RD/L, Европа (славный был конь, но уже донор)
Боливар2 - П2, 92г., V43, 6G72(12V), V4AW2, RD/L, пруль (чистокровный японский рысак)
Боливар1 - П2, 93г., 6G72(12V), МКПП, V43, RD/L, Европа (славный был конь, но уже донор)
- Azan
- Сообщения: 2339
- Зарегистрирован: 21 май 2013, 16:04
- Двигатель:: 6G72
- Мой автомобиль(и):: Pajero Sport 1999
- Откуда: Тольятти
- Откуда: Тольятти
- Благодарил (а): 89 раз
- Поблагодарили: 117 раз
- Контактная информация:
ВСЁ что касается генератора!! задавайте вопросы!!
Парни подскажите каким припоем паять обмотку к диодному мосту? . Обычная не выдержала жары и нагрузки на генератор расплавилась. Видимо легкоплавкая была. Сейчас запаял каким то дедовским , которому лет 90.... И паяльником 80вт(слабее ели плавит его)Но хотелось бы как положено сделать.
Дмитрий https://vk.com/europart163
- dvm99
- Сообщения: 21710
- Зарегистрирован: 21 май 2012, 20:59
- Двигатель:: 6G72, 12клап.,
- Мой автомобиль(и):: Pajero2, Запорожец- Ланос
- Откуда: Свердловская обл.
- Благодарил (а): 705 раз
- Поблагодарили: 1026 раз
ВСЁ что касается генератора!! задавайте вопросы!!
А как расплавилась? Прям видны подтёки припоя или что?
Суть в том, что легкоплавкий припой содержит больше олова. А олово, оно хрупкое и менее прочное. Т.е. есть больше шансов, что оно не поплавится, а будет типа окисла, трещин или т.п.
Так-то положено паять припоем более свинцовистым типа ПОС-40 (последняя цифра- содержание % олова). Но лично я паяю всегда ПОС-60 и никогда проблем на испытывал. Он более поддатлив и приятнее.
Скорее всего просто некачественно запаяли.
Суровое правило качественной пайки- не жалеть канифоли! Именно канифоль в качестве флюса. А провода обмоточные надо перед пайкой хорошо зачистить, если на них есть грязь в месте пайки.
Дмитрий
Боливар2 - П2, 92г., V43, 6G72(12V), V4AW2, RD/L, пруль (чистокровный японский рысак)
Боливар1 - П2, 93г., 6G72(12V), МКПП, V43, RD/L, Европа (славный был конь, но уже донор)
Боливар2 - П2, 92г., V43, 6G72(12V), V4AW2, RD/L, пруль (чистокровный японский рысак)
Боливар1 - П2, 93г., 6G72(12V), МКПП, V43, RD/L, Европа (славный был конь, но уже донор)
- Azan
- Сообщения: 2339
- Зарегистрирован: 21 май 2013, 16:04
- Двигатель:: 6G72
- Мой автомобиль(и):: Pajero Sport 1999
- Откуда: Тольятти
- Откуда: Тольятти
- Благодарил (а): 89 раз
- Поблагодарили: 117 раз
- Контактная информация:
ВСЁ что касается генератора!! задавайте вопросы!!
Матовое все и как будто кристаллизовалось на разрыве, на обеих сторонах и отделилось от естественного подпружиниваниня концов. Когда спаял в прошлом году блестело как зеркало, проверял на разрыв нехилым таким усилием( без фанатизма) . А дело было так..порбки + 36 , кондёр и вентилятор салона на максимум ну и радио по громче
шумит же вентилятор, фары по умолчанию. Через 40 минут индикатор зогрелся " капут бортовой сети 11,8 вольт"

Последний раз редактировалось Azan 05 авг 2021, 10:17, всего редактировалось 5 раз.
Дмитрий https://vk.com/europart163
-
- Сообщения: 24
- Зарегистрирован: 10 мар 2017, 18:19
- Двигатель:: 6G72
- Мой автомобиль(и):: Pajero 2 1992
- Откуда: Нижний Тагил
- Откуда: Нижний Тагил
- Благодарил (а): 3 раза
ВСЁ что касается генератора!! задавайте вопросы!!
Однажды тоже столкнулся с обрывам в этом проводе. Через предохранитель кинул времянку на АКБ, так и живуIVA-444 писал(а):Добрый день, пропала зарядка и потухла наглухо лампа гены (с включенным зажиганием и не заведенном моторе). Лампу проверил, живая (тоненький проводок с гены кинул на массу). Снял генератор, добрался до щеток, щетки в порядке, не распаивая диоды, прозвонил, косяков не обнаружил. Теперь вопросы:
1. Обнаружил что отсутствует напряга на толстом проводе с фишки гены. На сколько я понял, это контроль заряда. При отсутствии напруги на данном проводе генератор хоть как нибудь будет работать? давать хоть какой нить заряд и будет ли работать контрольная лампа?
2. Подкинул часть гены к машине (без якоря и обмотки), массу зафиксировал, подключил фишку, на толстый провод подал +12в, включил зажигание, контрольная лампа так и не горит. Это уже беда с регулятором? Или так не проверишь?
Спасибо. Авто - П2 4D56
Отправлено с моего HTC U11 plus через Tapatalk
- hc2hunter
- Сообщения: 7141
- Зарегистрирован: 03 фев 2013, 14:29
- Двигатель:: 6G74 MPI
- Мой автомобиль(и):: Montero 3 Limited, 2001
- Откуда: Смоленск
- Благодарил (а): 434 раза
- Поблагодарили: 448 раз
ВСЁ что касается генератора!! задавайте вопросы!!
Машин Montero-III 2001
Уже полгода то пропадет, то вновь вылезет проблема повышенного напряжения. Один раз влез под гену, снял фишку, промыл разъем, проверил напряжение на S-проводе, покрутил его туда-сюда, никаких симптомов обрыва не нашел, воткнул назад. И... на месяц проблема исчезла. Сейчас опять вернулась, и за поездку может пару раз Мультитроникс ругнуться на напряжение 15,5-16,0В , но дольше минуты такое напряжение не держится, и приходит в норму в районе 14,2В.
В момент появления проблемы тускло горят 3 лампы на приборке - BRAKE, Аккумулятор и AT-Temp.
Влез, опять снял фишку, еще раз померил все, пошевелил провод во всех местах где смог, влияния на напряжение не нашел. Но проблема не ушла...
Я же верно понимаю, что проблема в некачественной проводимости S-провода? Никто не подскажет, каким образом проходит его трасса от генератора к аккумулятору, а то где-то в районе поддона он уходит за мотор и там теряется в общем толстенном жгуте...
Может есть координаты, где он к предохранителям подходит и оттуда начать?
А также, правомерно ли кинуть на несколько дней тупо параллельную соплю от "+" до генератора и понаблюдать?

Уже полгода то пропадет, то вновь вылезет проблема повышенного напряжения. Один раз влез под гену, снял фишку, промыл разъем, проверил напряжение на S-проводе, покрутил его туда-сюда, никаких симптомов обрыва не нашел, воткнул назад. И... на месяц проблема исчезла. Сейчас опять вернулась, и за поездку может пару раз Мультитроникс ругнуться на напряжение 15,5-16,0В , но дольше минуты такое напряжение не держится, и приходит в норму в районе 14,2В.
В момент появления проблемы тускло горят 3 лампы на приборке - BRAKE, Аккумулятор и AT-Temp.
Влез, опять снял фишку, еще раз померил все, пошевелил провод во всех местах где смог, влияния на напряжение не нашел. Но проблема не ушла...
Я же верно понимаю, что проблема в некачественной проводимости S-провода? Никто не подскажет, каким образом проходит его трасса от генератора к аккумулятору, а то где-то в районе поддона он уходит за мотор и там теряется в общем толстенном жгуте...
Может есть координаты, где он к предохранителям подходит и оттуда начать?
А также, правомерно ли кинуть на несколько дней тупо параллельную соплю от "+" до генератора и понаблюдать?

Montero 3 LTD 2001, 3.5 6G74 MPI, АКПП v5a51
- Как показала практика — для начала неплохо было бы ознакомиться с теорией (с)
- Как показала практика — для начала неплохо было бы ознакомиться с теорией (с)
- dvm99
- Сообщения: 21710
- Зарегистрирован: 21 май 2012, 20:59
- Двигатель:: 6G72, 12клап.,
- Мой автомобиль(и):: Pajero2, Запорожец- Ланос
- Откуда: Свердловская обл.
- Благодарил (а): 705 раз
- Поблагодарили: 1026 раз
ВСЁ что касается генератора!! задавайте вопросы!!
Значит между бортовым напряжением и выводом L генератора есть разница, а оно должно быть одинаковым.
НО, разница в том, что на вывод L питание идёт от отдельного моста.
Как вариант... Дурит один из мелких диодов в генераторе.
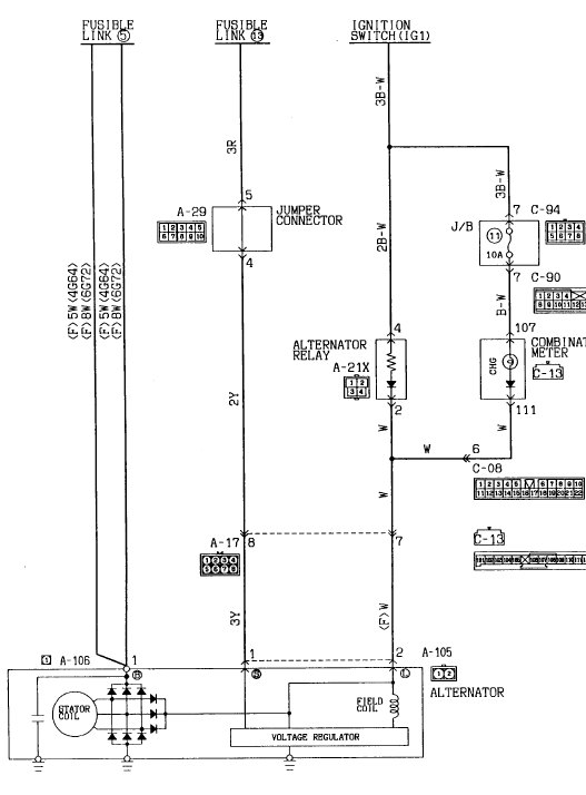
Суть такая:
Вот схема генератора.
Если один мелкий диод от моста, которым запитан регулятор, уйдёт в обрыв,
то напруга на регуляторе будет ниже... Эта разница и подсветит лампочки. Я бы проверил пайку мелких диодов.
Дмитрий
Боливар2 - П2, 92г., V43, 6G72(12V), V4AW2, RD/L, пруль (чистокровный японский рысак)
Боливар1 - П2, 93г., 6G72(12V), МКПП, V43, RD/L, Европа (славный был конь, но уже донор)
Боливар2 - П2, 92г., V43, 6G72(12V), V4AW2, RD/L, пруль (чистокровный японский рысак)
Боливар1 - П2, 93г., 6G72(12V), МКПП, V43, RD/L, Европа (славный был конь, но уже донор)
- hc2hunter
- Сообщения: 7141
- Зарегистрирован: 03 фев 2013, 14:29
- Двигатель:: 6G74 MPI
- Мой автомобиль(и):: Montero 3 Limited, 2001
- Откуда: Смоленск
- Благодарил (а): 434 раза
- Поблагодарили: 448 раз
ВСЁ что касается генератора!! задавайте вопросы!!
А такой диод тоже может давать как эффект повышенное напряжение зарядки?
Montero 3 LTD 2001, 3.5 6G74 MPI, АКПП v5a51
- Как показала практика — для начала неплохо было бы ознакомиться с теорией (с)
- Как показала практика — для начала неплохо было бы ознакомиться с теорией (с)
- dvm99
- Сообщения: 21710
- Зарегистрирован: 21 май 2012, 20:59
- Двигатель:: 6G72, 12клап.,
- Мой автомобиль(и):: Pajero2, Запорожец- Ланос
- Откуда: Свердловская обл.
- Благодарил (а): 705 раз
- Поблагодарили: 1026 раз
ВСЁ что касается генератора!! задавайте вопросы!!
Теоретически да, но на практике ни разу не попадалось.

Дмитрий
Боливар2 - П2, 92г., V43, 6G72(12V), V4AW2, RD/L, пруль (чистокровный японский рысак)
Боливар1 - П2, 93г., 6G72(12V), МКПП, V43, RD/L, Европа (славный был конь, но уже донор)
Боливар2 - П2, 92г., V43, 6G72(12V), V4AW2, RD/L, пруль (чистокровный японский рысак)
Боливар1 - П2, 93г., 6G72(12V), МКПП, V43, RD/L, Европа (славный был конь, но уже донор)
- hc2hunter
- Сообщения: 7141
- Зарегистрирован: 03 фев 2013, 14:29
- Двигатель:: 6G74 MPI
- Мой автомобиль(и):: Montero 3 Limited, 2001
- Откуда: Смоленск
- Благодарил (а): 434 раза
- Поблагодарили: 448 раз
ВСЁ что касается генератора!! задавайте вопросы!!
dvm99,
Тогда, получается, что версия-версией... но учитывая опыт многих других подобных случаев имеет смысл начать с S-провода?
Или ни у кого при таком раскладе лампочки не горят? Они в эти моменты горят еле-еле. От силы в треть накала.
Может тоже как раз из-за разницы между S и L в эти 2-3 вольта?
Тогда, получается, что версия-версией... но учитывая опыт многих других подобных случаев имеет смысл начать с S-провода?
Или ни у кого при таком раскладе лампочки не горят? Они в эти моменты горят еле-еле. От силы в треть накала.
Может тоже как раз из-за разницы между S и L в эти 2-3 вольта?
Montero 3 LTD 2001, 3.5 6G74 MPI, АКПП v5a51
- Как показала практика — для начала неплохо было бы ознакомиться с теорией (с)
- Как показала практика — для начала неплохо было бы ознакомиться с теорией (с)
- dvm99
- Сообщения: 21710
- Зарегистрирован: 21 май 2012, 20:59
- Двигатель:: 6G72, 12клап.,
- Мой автомобиль(и):: Pajero2, Запорожец- Ланос
- Откуда: Свердловская обл.
- Благодарил (а): 705 раз
- Поблагодарили: 1026 раз
ВСЁ что касается генератора!! задавайте вопросы!!
Можно конечно! Только придётся изоляцию вскрывать и т.п. что-то колхозить...
Самое поганое, когда неисправность плавающая...

Да, про это и речь...
Такое впечатление, что либо пайка одного из диодов плохая, либо сам диод.
Дмитрий
Боливар2 - П2, 92г., V43, 6G72(12V), V4AW2, RD/L, пруль (чистокровный японский рысак)
Боливар1 - П2, 93г., 6G72(12V), МКПП, V43, RD/L, Европа (славный был конь, но уже донор)
Боливар2 - П2, 92г., V43, 6G72(12V), V4AW2, RD/L, пруль (чистокровный японский рысак)
Боливар1 - П2, 93г., 6G72(12V), МКПП, V43, RD/L, Европа (славный был конь, но уже донор)
- hc2hunter
- Сообщения: 7141
- Зарегистрирован: 03 фев 2013, 14:29
- Двигатель:: 6G74 MPI
- Мой автомобиль(и):: Montero 3 Limited, 2001
- Откуда: Смоленск
- Благодарил (а): 434 раза
- Поблагодарили: 448 раз
ВСЁ что касается генератора!! задавайте вопросы!!
Я в том смысле, может попробовать кинуть длинный проводок от аккума и прямо подпаяться к родному проводу около S-фишки?
То есть гарантированно подать ему +12 туда. Ну и поездить. Уйдет проблема - тогда уже ковырять косицу...
Про генератор версия понятна. Но я думаю, если бы диод был точно неисправен, то проблема была бы постоянная, а так она появляется секунд на 10 пару раз во время поездки и все...
Так что это или трещина в пайке диода, или отгнивающий провод. Но точно не сам диод...
...наверное

Montero 3 LTD 2001, 3.5 6G74 MPI, АКПП v5a51
- Как показала практика — для начала неплохо было бы ознакомиться с теорией (с)
- Как показала практика — для начала неплохо было бы ознакомиться с теорией (с)
- dvm99
- Сообщения: 21710
- Зарегистрирован: 21 май 2012, 20:59
- Двигатель:: 6G72, 12клап.,
- Мой автомобиль(и):: Pajero2, Запорожец- Ланос
- Откуда: Свердловская обл.
- Благодарил (а): 705 раз
- Поблагодарили: 1026 раз
ВСЁ что касается генератора!! задавайте вопросы!!
Можно попробовать, хуже не сделаешь...
Но, дело в том, что все, кто на превышение жаловался, вроде ни один про лампочки подсвечивающе не жаловался.
А у тебя вот такое дело...
В электрике бывает то, чего не бывает вообще!

И пайка может так себя проявлять, и сам диод.
Кстати, у тебя мост родной, или менял на что-то?
Дмитрий
Боливар2 - П2, 92г., V43, 6G72(12V), V4AW2, RD/L, пруль (чистокровный японский рысак)
Боливар1 - П2, 93г., 6G72(12V), МКПП, V43, RD/L, Европа (славный был конь, но уже донор)
Боливар2 - П2, 92г., V43, 6G72(12V), V4AW2, RD/L, пруль (чистокровный японский рысак)
Боливар1 - П2, 93г., 6G72(12V), МКПП, V43, RD/L, Европа (славный был конь, но уже донор)