TRT - Вдоль р.Киржач. Для стандартных 4х4 (08.11.25) Форум Обсуждение FAQ
Проблемы полного привода моргают лампочки, не вкл/выкл. мост
Модераторы: SNOOPER, Nbf, Romik, BAlex, drcham, Podzemshik
- SNOOPER
- Модератор
- Сообщения: 56892
- Зарегистрирован: 11 дек 2004, 19:49
- Двигатель:: 4D56
- Мой автомобиль(и):: NewMPS
- Откуда: 78
- Откуда: Spb
- Благодарил (а): 1006 раз
- Поблагодарили: 4663 раза
Проблемы полного привода моргают лампочки, не вкл/выкл. мост
Ты уж определись сначала балабол, а потом и умничай. То у тебя будет, то не будет....
От тебя больше пользы когда молчишь......
От тебя больше пользы когда молчишь......
-
Карат
- Сообщения: 106
- Зарегистрирован: 09 мар 2015, 20:58
- Двигатель:: 6G72
- Мой автомобиль(и):: Мицубиси Паджеро Спорт (к90)
- Откуда: Липецк
- Благодарил (а): 2 раза
- Поблагодарили: 7 раз
Проблемы полного привода моргают лампочки, не вкл/выкл. мост
Добрый вечер! В общем пока я заменил оба датчика на РКПП и вроде моя проблема ушла. Индикация четкая, лампа больше не мерцает, треска от блока управления нет ни на холодной машине, ни на прогретой. Лампа ABS загорелась, но это не из-за датчиков, загорелась до их замены, после обработки машины антикором, пока разбираюсь...
Датчики брал MBL81155555, MBL88642727 SAILING. Родные реанимировать не удалось.
Датчики брал MBL81155555, MBL88642727 SAILING. Родные реанимировать не удалось.
-
ромыччч
- Сообщения: 28
- Зарегистрирован: 06 июл 2015, 11:20
- Двигатель:: 4D56,Дизель передний силовой бампер собственного производства лебедка 5т
- Мой автомобиль(и):: митцубиси поджеро спорт 2.5
- Откуда: Тульская область
- Откуда: Тульская обл.г.Донской
- Поблагодарили: 1 раз
Проблемы полного привода моргают лампочки, не вкл/выкл. мост
Добрый вечер так какое лить нужно масло 
-
ромыччч
- Сообщения: 28
- Зарегистрирован: 06 июл 2015, 11:20
- Двигатель:: 4D56,Дизель передний силовой бампер собственного производства лебедка 5т
- Мой автомобиль(и):: митцубиси поджеро спорт 2.5
- Откуда: Тульская область
- Откуда: Тульская обл.г.Донской
- Поблагодарили: 1 раз
Проблемы полного привода моргают лампочки, не вкл/выкл. мост
У меня тоже такая же проблема поменял всё работает как часики но на скорости не включается 
- Fakir
- Технический Комиссар
- Сообщения: 3027
- Зарегистрирован: 04 окт 2007, 00:51
- Двигатель:: 6G72 24V
- Мой автомобиль(и):: К96 '07
- Откуда: СВАО
- Откуда: Москва
- Благодарил (а): 72 раза
- Поблагодарили: 209 раз
Проблемы полного привода моргают лампочки, не вкл/выкл. мост
Включаешь нейтраль в КПП, выжимаешь сцепление, руль прямо, после включаешь 4H. Если так не включается, значит не всё работает как часики.
L144G '89 - был,
K96 '07 - внедорожный турист.
Безвыходных ситуаций не бывает!
8(903)7381043
K96 '07 - внедорожный турист.
Безвыходных ситуаций не бывает!
8(903)7381043
-
blade_08
- Сообщения: 1
- Зарегистрирован: 06 авг 2022, 21:42
- Двигатель:: 4M40-T
- Мой автомобиль(и):: Mitsubishi Pajero 2.8 TDI
- Откуда: Москва
Проблемы полного привода моргают лампочки, не вкл/выкл. мост
Здравствуйте, я новичок на форуме и русский не мой родной язык.
У меня проблема с 4wd на моем Mitsubishi Pajero 2.8 TDI 1996г. Нет +12в на вакуумные соленоиды. До сих пор я пробовал следующее без успеха
1. один из соленоидов не имел сопротивления, поэтому я его поменял
2. Я проверил и почистил три переключателя на раздаточной коробке. Кажется, они работают нормально.
3. Проверил и почистил актуатор на переднем диф. Вроде свободно двигается.
У меня нет питания на соленоиды, когда рычаг находится в положении 2H и зажигание включено.
Пожалуйста помогите
У меня проблема с 4wd на моем Mitsubishi Pajero 2.8 TDI 1996г. Нет +12в на вакуумные соленоиды. До сих пор я пробовал следующее без успеха
1. один из соленоидов не имел сопротивления, поэтому я его поменял
2. Я проверил и почистил три переключателя на раздаточной коробке. Кажется, они работают нормально.
3. Проверил и почистил актуатор на переднем диф. Вроде свободно двигается.
У меня нет питания на соленоиды, когда рычаг находится в положении 2H и зажигание включено.
Пожалуйста помогите
-
Korbidd
- Сообщения: 23
- Зарегистрирован: 31 июл 2022, 21:29
- Двигатель:: 4D56
- Мой автомобиль(и):: MPS I (Inform)
- Откуда: Архангельск
- Благодарил (а): 2 раза
Проблемы полного привода моргают лампочки, не вкл/выкл. мост
Вот моя история решения этой проблемы:
Была неисправность - мигала лампа 4WD, в режиме 2WD, не срабатывал клапан отключения п/п (синий). Проверил клапана подавая 12В, желтый щёлкал отчётливо, синий подавал еле слышный щелчок. Снял сапун (чёрный колпачок), разобрал, внутри был песок и пыль, продул компрессором. Предположил, что в клапан тоже мог попасть песок, продул и клапан, проверил напряжением - клапан стал отчётливо щёлкать. Подключил к авто, проверил - работает.
Отдельная песня про то как подлезть к этим клапанам, я снимал крышку воздушного фильтра, вынимал фильтрующий элемент, откручивал бачок ГУР, кронштейн трубок ГУР и теплового экрана, после этого кое-как стало можно подлезть к болтам крепления кронштейна с клапанами, подлезая откуда можно откручивал маленькой трещоткой с удлиненной головкой на 10.
Была неисправность - мигала лампа 4WD, в режиме 2WD, не срабатывал клапан отключения п/п (синий). Проверил клапана подавая 12В, желтый щёлкал отчётливо, синий подавал еле слышный щелчок. Снял сапун (чёрный колпачок), разобрал, внутри был песок и пыль, продул компрессором. Предположил, что в клапан тоже мог попасть песок, продул и клапан, проверил напряжением - клапан стал отчётливо щёлкать. Подключил к авто, проверил - работает.
Отдельная песня про то как подлезть к этим клапанам, я снимал крышку воздушного фильтра, вынимал фильтрующий элемент, откручивал бачок ГУР, кронштейн трубок ГУР и теплового экрана, после этого кое-как стало можно подлезть к болтам крепления кронштейна с клапанами, подлезая откуда можно откручивал маленькой трещоткой с удлиненной головкой на 10.
- bumer76
- Сообщения: 847
- Зарегистрирован: 31 авг 2009, 21:56
- Двигатель:: 6G72 24кл
- Мой автомобиль(и):: ПаджероСпорт 6G72 24кл АКПП
- Откуда: Ярославль
- Откуда: Ярославль
- Благодарил (а): 11 раз
- Поблагодарили: 9 раз
Проблемы полного привода моргают лампочки, не вкл/выкл. мост
Всем привет! Проблема в следующем- питание на клапаны подается всегда- не зависимо от положения рычага. При включении полного привода- лампа не загорается, но если дать газу, то начинает промаргивать. Если снять вакуум шланг с выпускного коллектора, то лампочка моргает- и полный привод есть
- bumer76
- Сообщения: 847
- Зарегистрирован: 31 авг 2009, 21:56
- Двигатель:: 6G72 24кл
- Мой автомобиль(и):: ПаджероСпорт 6G72 24кл АКПП
- Откуда: Ярославль
- Откуда: Ярославль
- Благодарил (а): 11 раз
- Поблагодарили: 9 раз
Проблемы полного привода моргают лампочки, не вкл/выкл. мост
вообщем проблема решилась- слетел разьем с датчика РК (черный). У меня почему то три датчика на раздатке- одноконтактный и два двухконтактных ( с серой и черной фишками). На фото видно 1 контактный и 2х контактный с серой фишкойbumer76 писал(а): ↑ Всем привет! Проблема в следующем- питание на клапаны подается всегда- не зависимо от положения рычага. При включении полного привода- лампа не загорается, но если дать газу, то начинает промаргивать. Если снять вакуум шланг с выпускного коллектора, то лампочка моргает- и полный привод есть
-
Артем 13
- Сообщения: 353
- Зарегистрирован: 09 апр 2013, 12:05
- Двигатель:: 6G72, 4D56, 1GR-FE
- Мой автомобиль(и):: МПС-l, МПС-II, TLC Prado 120
- Откуда: Москва
- Благодарил (а): 2 раза
- Поблагодарили: 8 раз
Проблемы полного привода моргают лампочки, не вкл/выкл. мост
В продолжении темы включения полного привода на ходу, хочу сказать что больше случаев не было, но вакуумную систему начал проверять с бачка- ресивера или как там его. Сразу обнаружил сгнивший в хлам штуцер, который при снятии шланга, остался в шланге. Бачок был снят, вварен новый штуцер, бачок опрессован, в целом все ок с бачком. Для экспертмента вместо бачка был подключен вакуумметр, при работе на хх показывал разряжение -0.7 атм, при выключенном двигателе вакуум достаточно быстро падал. Т.е. кроме бачка еще где то не держит. Здесь вопрос, как долго вообще вакуум в системе должен держатся?
Дальше время закончилось, бачок был покрашен и установлен назад, вот думаю искать дальше или оставить как есть, пока все работает штатно.
Дальше время закончилось, бачок был покрашен и установлен назад, вот думаю искать дальше или оставить как есть, пока все работает штатно.
Был ММС 2002 г.в. с 2013 по 2021 г.
-
алексей - Маленький Мук
- Модератор
- Сообщения: 20290
- Зарегистрирован: 11 дек 2008, 16:10
- Откуда: москва м Академическая
- Благодарил (а): 101 раз
- Поблагодарили: 1322 раза
Проблемы полного привода моргают лампочки, не вкл/выкл. мост
Дальше он стравливается через клапана. на них с зади есть фильтрик. через него и сбрасывается.. каким способом вы глушите двигатель?? выключив зажигание??? при выкл вся система машины обесточивается.. и клапана в том числе и пропадание вакуума моментальное
Всем добра.......
- SNOOPER
- Модератор
- Сообщения: 56892
- Зарегистрирован: 11 дек 2004, 19:49
- Двигатель:: 4D56
- Мой автомобиль(и):: NewMPS
- Откуда: 78
- Откуда: Spb
- Благодарил (а): 1006 раз
- Поблагодарили: 4663 раза
Проблемы полного привода моргают лампочки, не вкл/выкл. мост
По времени нет точных данных.
А может не держать из за неисправности обратного клапана.
- Sfinks
- Сообщения: 13149
- Зарегистрирован: 18 ноя 2008, 21:10
- Двигатель:: 4D56 был, 6G72
- Мой автомобиль(и):: MPS K94W, 2000 г.в. был, Pajero IV 3.0
- Откуда: Кронштадт
- Благодарил (а): 432 раза
- Поблагодарили: 342 раза
Проблемы полного привода моргают лампочки, не вкл/выкл. мост
Толку в этом бачке 0,0. У меня тоже сгнил напрочь. Заглушил трубку выше обратного клапана и забыл про эту лишнюю деталь. Система работала как новая, хоть после недельной стоянки лампа ПП сразу гасла, не успев моргнуть.)))
Все почему то забывают о том что нужно общаться как минимум уважительно. (С) SNOOPER.
- SNOOPER
- Модератор
- Сообщения: 56892
- Зарегистрирован: 11 дек 2004, 19:49
- Двигатель:: 4D56
- Мой автомобиль(и):: NewMPS
- Откуда: 78
- Откуда: Spb
- Благодарил (а): 1006 раз
- Поблагодарили: 4663 раза
Проблемы полного привода моргают лампочки, не вкл/выкл. мост
Это может быть справедливо для дизеля. Так как вакуумный насос всегда качает.
На бензинке же при прогазовке разряжение падает, и вакуум может не удержать пружину актуатора.
Так что толк есть......
-
Артем 13
- Сообщения: 353
- Зарегистрирован: 09 апр 2013, 12:05
- Двигатель:: 6G72, 4D56, 1GR-FE
- Мой автомобиль(и):: МПС-l, МПС-II, TLC Prado 120
- Откуда: Москва
- Благодарил (а): 2 раза
- Поблагодарили: 8 раз
Проблемы полного привода моргают лампочки, не вкл/выкл. мост
Двигатель глушил штатно, вакуум падал не скачком, с учетом того что вместо бачка был вакууметр запаса вакуума не было кроме что в системе, поэтому предположил, что то еще не держит - стравливает, если при выключении двигателя открывались бы клапана, то был наверное скачок. Но обследовать дальше систему не было времени.
Обратный клапан проверю, и целом еще посмотрю.
Обратный клапан проверю, и целом еще посмотрю.
Был ММС 2002 г.в. с 2013 по 2021 г.
-
Артем 13
- Сообщения: 353
- Зарегистрирован: 09 апр 2013, 12:05
- Двигатель:: 6G72, 4D56, 1GR-FE
- Мой автомобиль(и):: МПС-l, МПС-II, TLC Prado 120
- Откуда: Москва
- Благодарил (а): 2 раза
- Поблагодарили: 8 раз
Проблемы полного привода моргают лампочки, не вкл/выкл. мост
Так что бы оживить тему, вот фотка вакууметра на ХХ . Пока ничего не искал, ограничился тем что выше написал - починил вакуумный бачок и все. В целом претензий к включению переднего моста нет, все вроде штатно.
Был ММС 2002 г.в. с 2013 по 2021 г.
- mdmitr
- Сообщения: 8
- Зарегистрирован: 23 май 2016, 02:15
- Двигатель:: 4D56
- Мой автомобиль(и):: Mitsubishi Pajero II
- Откуда: Сочи
Проблемы полного привода моргают лампочки, не вкл/выкл. мост
В общем, имею проблему невыключения передка и, соответственно, моргания ламп полного привода в положении рычага 2WD.
Авто: 1992 г.в. П2 4d56
Заменены э/м клапана под капотом, датчик выключения передка на переднем мосту, датчик положения рычага 2H/4H на раздатке.
Проблема не ушла.
Если подать вакуум напрямую в желтый шланг, передок выключается, лампы не мигают. То есть, механически всё ок.
На э/м клапаны приходит напряжение при включенном зажигании и положении рычага 2WD, но небольшое (6-8 В), и клапана при этом не щёлкают. Если подать на них напряжение 12В напрямую с аккума, клапана щёлкают громко и исправно (не удивительно, ведь они новые).
Так вот, где может пропадать напряжение?
Блок управления ПП смотрел, внешне всё в порядке. Может, пропаять его?
Авто: 1992 г.в. П2 4d56
Заменены э/м клапана под капотом, датчик выключения передка на переднем мосту, датчик положения рычага 2H/4H на раздатке.
Проблема не ушла.
Если подать вакуум напрямую в желтый шланг, передок выключается, лампы не мигают. То есть, механически всё ок.
На э/м клапаны приходит напряжение при включенном зажигании и положении рычага 2WD, но небольшое (6-8 В), и клапана при этом не щёлкают. Если подать на них напряжение 12В напрямую с аккума, клапана щёлкают громко и исправно (не удивительно, ведь они новые).
Так вот, где может пропадать напряжение?
Блок управления ПП смотрел, внешне всё в порядке. Может, пропаять его?
- SNOOPER
- Модератор
- Сообщения: 56892
- Зарегистрирован: 11 дек 2004, 19:49
- Двигатель:: 4D56
- Мой автомобиль(и):: NewMPS
- Откуда: 78
- Откуда: Spb
- Благодарил (а): 1006 раз
- Поблагодарили: 4663 раза
Проблемы полного привода моргают лампочки, не вкл/выкл. мост
У Вас положение 2Н не имеет отношение к блоку управления приводом.
Тупо провод от замка зажигания и масса от выключателя на раздатке.
- mdmitr
- Сообщения: 8
- Зарегистрирован: 23 май 2016, 02:15
- Двигатель:: 4D56
- Мой автомобиль(и):: Mitsubishi Pajero II
- Откуда: Сочи
Проблемы полного привода моргают лампочки, не вкл/выкл. мост
Что тогда может быть?
Если где-то провод надорвался, вряд ли такой эффект будет… Там или есть сигнал, или его нет. Может реле какое?
Предохранители проверял, все в норме.
Если где-то провод надорвался, вряд ли такой эффект будет… Там или есть сигнал, или его нет. Может реле какое?
Предохранители проверял, все в норме.
- SNOOPER
- Модератор
- Сообщения: 56892
- Зарегистрирован: 11 дек 2004, 19:49
- Двигатель:: 4D56
- Мой автомобиль(и):: NewMPS
- Откуда: 78
- Откуда: Spb
- Благодарил (а): 1006 раз
- Поблагодарили: 4663 раза
Проблемы полного привода моргают лампочки, не вкл/выкл. мост
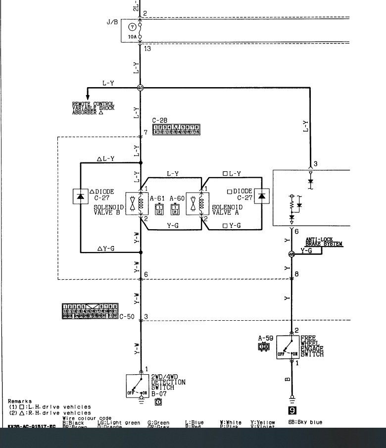
Я же выше дал схему.
Нет там никаких реле.
Просто стух провод.
Нет там никаких реле.
Просто стух провод.
