TRT "107-108" Для стандарта и не только! (4.04.2026) Форум Обсуждение FAQ
Отвечу на вопросы по автоэлектрике
Модераторы: SNOOPER, Nbf, Romik, BAlex
- Lukich111
- Сообщения: 3434
- Зарегистрирован: 16 янв 2011, 18:48
- Двигатель:: Бензин
- Мой автомобиль(и):: H-D Sportster 1200, +-самокатик(был) , 3 моноколеса
- Откуда: С-Петербург
- Откуда: C-Пб-(Мурманск)-
- Благодарил (а): 97 раз
- Поблагодарили: 233 раза
Отвечу на вопросы по автоэлектрике
лампы куда? Понятие блок розжига ближе все-таки к ксенону...ВИН машины?
очень злой бывший ОД
диагностика и чип Mitsubishi
диагностика и чип Mitsubishi
-
Nordost1
- Сообщения: 8
- Зарегистрирован: 11 янв 2021, 17:08
- Двигатель:: 6g72 бензин
- Мой автомобиль(и):: Pajero 4
- Откуда: Новороссийск
Отвечу на вопросы по автоэлектрике
лампы вместо штатного ксенона, именно и брал такие, что б без переделок.
-
Турнепс
- Сообщения: 84
- Зарегистрирован: 13 сен 2005, 07:23
- Двигатель:: 6G72
- Мой автомобиль(и):: Pajero 3
- Откуда: Санкт-Петербург
- Откуда: Санкт-Петербург
- Благодарил (а): 6 раз
Отвечу на вопросы по автоэлектрике
Наидобрейшее! МП 2003 г, 6G72 24 кл. правый руль. Подскажите где находится точка массы цепей переднего правого и переднего левого габаритов, а также где в схеме найти цепь питания освещения панели приборов?
Р-2, V46WG Exeed.94,5дв,2.8 ТД 4М40,АКПП,S-S. зима TOYO265/70R15, лето BFG AT 31*10.5*15, Был - 10 лет
Р-3, V73W, Exeed, 2003, 6g72, 3.0, бенз. 5 дв, АКПП, пруль, зима Hakka - 265/70 16, лето Nokian Tyres Outpost 265/70 16
Р-3, V73W, Exeed, 2003, 6g72, 3.0, бенз. 5 дв, АКПП, пруль, зима Hakka - 265/70 16, лето Nokian Tyres Outpost 265/70 16
- SNOOPER
- Модератор
- Сообщения: 57318
- Зарегистрирован: 11 дек 2004, 19:49
- Двигатель:: 4D56
- Мой автомобиль(и):: NewMPS
- Откуда: 78
- Откуда: Spb
- Благодарил (а): 1020 раз
- Поблагодарили: 4763 раза
Отвечу на вопросы по автоэлектрике
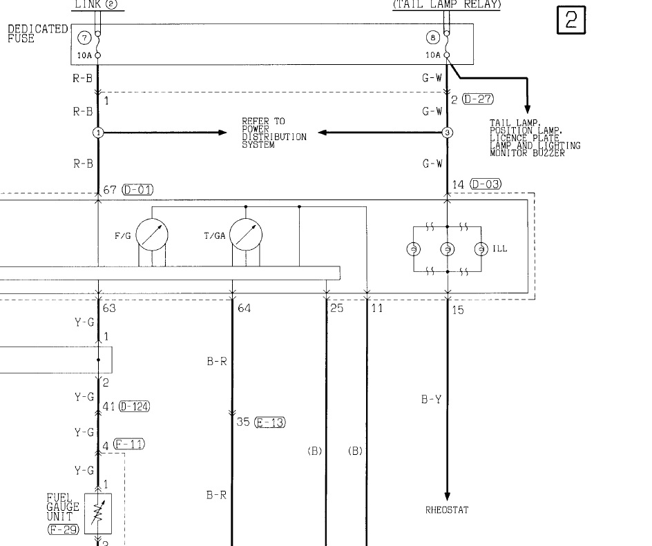
На брызговике за блоком предохранителей
В разделе приборы и указатели.
Реостат даёт минус.
-
Турнепс
- Сообщения: 84
- Зарегистрирован: 13 сен 2005, 07:23
- Двигатель:: 6G72
- Мой автомобиль(и):: Pajero 3
- Откуда: Санкт-Петербург
- Откуда: Санкт-Петербург
- Благодарил (а): 6 раз
Отвечу на вопросы по автоэлектрике
Snooper!Огромное спасибо. нашел!
Р-2, V46WG Exeed.94,5дв,2.8 ТД 4М40,АКПП,S-S. зима TOYO265/70R15, лето BFG AT 31*10.5*15, Был - 10 лет
Р-3, V73W, Exeed, 2003, 6g72, 3.0, бенз. 5 дв, АКПП, пруль, зима Hakka - 265/70 16, лето Nokian Tyres Outpost 265/70 16
Р-3, V73W, Exeed, 2003, 6g72, 3.0, бенз. 5 дв, АКПП, пруль, зима Hakka - 265/70 16, лето Nokian Tyres Outpost 265/70 16
-
Mihey726
- Сообщения: 65
- Зарегистрирован: 20 мар 2011, 21:22
- Двигатель:: 4D56, 4М40
- Мой автомобиль(и):: Pajero2 Wagon 1992г,Pajero2 1998г.
- Откуда: С-ПБ
- Откуда: Санкт-Петербург
Отвечу на вопросы по автоэлектрике
Добрый день всем!
Возник вопрос П2 4М40 АКПП в машинке побывали шаловливые руки колхозников. Коробка A4W3 начали восстанавливать нормальную работу проводки. Коробка ругается ошибкой 22 (сигнал датчика полностью отпущеной педали газа) провод нашли (черный с белой полоской), заканчивается в районе ТНВД, обрезан.
Собственно вопрос видимо датчик должен жить на ТНВД и работать с рычагом газа, но найти его не удалось, как выглядит этот датчик. Про TPS вопросов нет, с ним все привели в порядок, настроили, работает нормально.
Спасибо.
Возник вопрос П2 4М40 АКПП в машинке побывали шаловливые руки колхозников. Коробка A4W3 начали восстанавливать нормальную работу проводки. Коробка ругается ошибкой 22 (сигнал датчика полностью отпущеной педали газа) провод нашли (черный с белой полоской), заканчивается в районе ТНВД, обрезан.
Собственно вопрос видимо датчик должен жить на ТНВД и работать с рычагом газа, но найти его не удалось, как выглядит этот датчик. Про TPS вопросов нет, с ним все привели в порядок, настроили, работает нормально.
Спасибо.
- SNOOPER
- Модератор
- Сообщения: 57318
- Зарегистрирован: 11 дек 2004, 19:49
- Двигатель:: 4D56
- Мой автомобиль(и):: NewMPS
- Откуда: 78
- Откуда: Spb
- Благодарил (а): 1020 раз
- Поблагодарили: 4763 раза
Отвечу на вопросы по автоэлектрике
Отмечен стрелкой. На двух винтиках.Mihey726 писал(а): ↑ Добрый день всем!
Возник вопрос П2 4М40 АКПП в машинке побывали шаловливые руки колхозников. Коробка A4W3 начали восстанавливать нормальную работу проводки. Коробка ругается ошибкой 22 (сигнал датчика полностью отпущеной педали газа) провод нашли (черный с белой полоской), заканчивается в районе ТНВД, обрезан.
Собственно вопрос видимо датчик должен жить на ТНВД и работать с рычагом газа, но найти его не удалось, как выглядит этот датчик. Про TPS вопросов нет, с ним все привели в порядок, настроили, работает нормально.
Спасибо.
-
алексей - Маленький Мук
- Модератор
- Сообщения: 20381
- Зарегистрирован: 11 дек 2008, 16:10
- Откуда: москва м Академическая
- Благодарил (а): 101 раз
- Поблагодарили: 1340 раз
Отвечу на вопросы по автоэлектрике
У меня к примеру этот датчик тож отсутцтвует но мозг на него не ругается и коробка ведет себя прилично. а так он тупо замыкается на массу при отпущеной пидальке
Всем добра.......
-
Mihey726
- Сообщения: 65
- Зарегистрирован: 20 мар 2011, 21:22
- Двигатель:: 4D56, 4М40
- Мой автомобиль(и):: Pajero2 Wagon 1992г,Pajero2 1998г.
- Откуда: С-ПБ
- Откуда: Санкт-Петербург
Отвечу на вопросы по автоэлектрике
Спасибо, глянул, есть место под него пустое. Только что-то не могу найти его каталонок в экзисте, видимо буду совершать набег на разборки.
Коробка после настройки тросика и TPS в общем то работает нормально, но зачем-то она же этот датчик хочет, рас выдает ошибку на него, хочется сделать как положено.
- SNOOPER
- Модератор
- Сообщения: 57318
- Зарегистрирован: 11 дек 2004, 19:49
- Двигатель:: 4D56
- Мой автомобиль(и):: NewMPS
- Откуда: 78
- Откуда: Spb
- Благодарил (а): 1020 раз
- Поблагодарили: 4763 раза
Отвечу на вопросы по автоэлектрике
Желание похвально.Mihey726 писал(а): ↑Спасибо, глянул, есть место под него пустое. Только что-то не могу найти его каталонок в экзисте, видимо буду совершать набег на разборки.
Коробка после настройки тросика и TPS в общем то работает нормально, но зачем-то она же этот датчик хочет, рас выдает ошибку на него, хочется сделать как положено.
Но Вы не то ремонтируете и собираетесь искать.
Так как неверно интерпретировали ошибку.
Датчик полностью НАЖАТОЙ педали. Оно же Кик-даун.)
-
алексей - Маленький Мук
- Модератор
- Сообщения: 20381
- Зарегистрирован: 11 дек 2008, 16:10
- Откуда: москва м Академическая
- Благодарил (а): 101 раз
- Поблагодарили: 1340 раз
Отвечу на вопросы по автоэлектрике
А нет ли кнопки под пидалькой газа???? порой она стоит под пидалькой а не на насосе 
Всем добра.......
- SNOOPER
- Модератор
- Сообщения: 57318
- Зарегистрирован: 11 дек 2004, 19:49
- Двигатель:: 4D56
- Мой автомобиль(и):: NewMPS
- Откуда: 78
- Откуда: Spb
- Благодарил (а): 1020 раз
- Поблагодарили: 4763 раза
Отвечу на вопросы по автоэлектрике
Она не порой, а только там и стоит.алексей - Маленький Мук писал(а): ↑ А нет ли кнопки под пидалькой газа???? порой она стоит под пидалькой а не на насосе
Разъём с индексом "C" означает что жгут проводов относится к INSTRUMENT PANEL тобишь приборная панель.)
-
алексей - Маленький Мук
- Модератор
- Сообщения: 20381
- Зарегистрирован: 11 дек 2008, 16:10
- Откуда: москва м Академическая
- Благодарил (а): 101 раз
- Поблагодарили: 1340 раз
Отвечу на вопросы по автоэлектрике
Саш у мну "серый" был прулем изночально так кнопка стояла и под пидалькой и на насосе тож была. ток закисла и не работала я ея выкинул
Всем добра.......
- SNOOPER
- Модератор
- Сообщения: 57318
- Зарегистрирован: 11 дек 2004, 19:49
- Двигатель:: 4D56
- Мой автомобиль(и):: NewMPS
- Откуда: 78
- Откуда: Spb
- Благодарил (а): 1020 раз
- Поблагодарили: 4763 раза
Отвечу на вопросы по автоэлектрике
Только на насосе к акпп она отношения не имеет.)алексей - Маленький Мук писал(а): ↑ Саш у мну "серый" был прулем изночально так кнопка стояла и под пидалькой и на насосе тож была. ток закисла и не работала я ея выкинул
-
Mihey726
- Сообщения: 65
- Зарегистрирован: 20 мар 2011, 21:22
- Двигатель:: 4D56, 4М40
- Мой автомобиль(и):: Pajero2 Wagon 1992г,Pajero2 1998г.
- Откуда: С-ПБ
- Откуда: Санкт-Петербург
Отвечу на вопросы по автоэлектрике
Вот это поворот
Сегодня полезем дальше копать, но под педалью и на ней я ничего не нашел, залез, тоже думал на педальке датчик какой-то есть, но ничего не обнаружил, все также как на МКПП.
Еще уточнение, коробка на машине менялась на контрактную предыдущим владельцем, мозги вроде бы оставили те что были, больше ничего узнать не удалось.
-
Mihey726
- Сообщения: 65
- Зарегистрирован: 20 мар 2011, 21:22
- Двигатель:: 4D56, 4М40
- Мой автомобиль(и):: Pajero2 Wagon 1992г,Pajero2 1998г.
- Откуда: С-ПБ
- Откуда: Санкт-Петербург
Отвечу на вопросы по автоэлектрике
Больше спасибо за подсказки, был найден разъём под ковриком, потом совершен набег на разбираемую тачку, оттуда добыт датчик, почистили, поставили, все заработало.
-
алексей - Маленький Мук
- Модератор
- Сообщения: 20381
- Зарегистрирован: 11 дек 2008, 16:10
- Откуда: москва м Академическая
- Благодарил (а): 101 раз
- Поблагодарили: 1340 раз
Отвечу на вопросы по автоэлектрике
На пидальке тож должна быть"пятка" для нажатия кнопки 
Всем добра.......
-
Андрей_174
- Сообщения: 2
- Зарегистрирован: 01 май 2023, 21:45
- Двигатель:: 6G74 GDI
- Мой автомобиль(и):: Mitsubishi Pajero
- Откуда: Челябинск
Отвечу на вопросы по автоэлектрике
SNOOPER, добрый день. Помогите пожалуйста разобраться. Паджеро 3 2003г. Горит ошибка раздатки. Ошибка 33. В блоке ЭБУ раздатки на 47 Пине напряжения нет. На панеле D и R не горят. В ручном режиме едет до 4 передачи. Перед этим сгорел генератор. Поменял. Спасибо.
- SNOOPER
- Модератор
- Сообщения: 57318
- Зарегистрирован: 11 дек 2004, 19:49
- Двигатель:: 4D56
- Мой автомобиль(и):: NewMPS
- Откуда: 78
- Откуда: Spb
- Благодарил (а): 1020 раз
- Поблагодарили: 4763 раза
Отвечу на вопросы по автоэлектрике
Проверьте провод на замыкание.Андрей_174 писал(а): ↑ SNOOPER, добрый день. Помогите пожалуйста разобраться. Паджеро 3 2003г. Горит ошибка раздатки. Ошибка 33. В блоке ЭБУ раздатки на 47 Пине напряжения нет. На панеле D и R не горят. В ручном режиме едет до 4 передачи. Перед этим сгорел генератор. Поменял. Спасибо.
Снять пин у блока и измерить напряжение на блоке.
Возможно датчик залип, или провод замыкает на корпус, если будет напряжение на пине.
Не появится значит блок накрылся.
А АКПП едет как положено ей на пониженной, без высшей передачи.
-
Андрей_174
- Сообщения: 2
- Зарегистрирован: 01 май 2023, 21:45
- Двигатель:: 6G74 GDI
- Мой автомобиль(и):: Mitsubishi Pajero
- Откуда: Челябинск
Отвечу на вопросы по автоэлектрике
SNOOPER, спасибо, проверю. Как АКПП едет не знаю. Сегодня поставил другой блок, так же на 47 напряжения нет.
