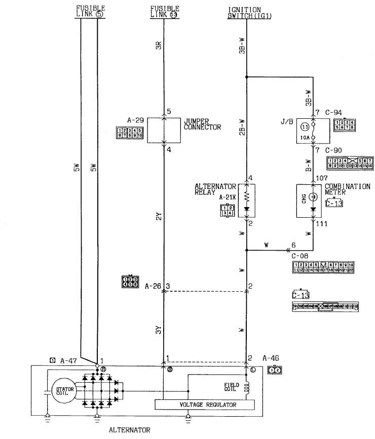
Не думаю, что Вам кто-то скажет что-то путное. Единственный вариант мне видится взять распиновку разъема компа, сдернуть фишку с компа и измерить сопротивления по линиям от известных датчиков. Проверить нет ли где КЗ. Процедура муторная... Гореть 4 микросхемы могут только от наличия где-то лишних вольт или кз. Так что по логике сопротивления с датчиков должны быть не при чем.Григорий 038 писал(а):Прошу помощи! Сгорел комп на Pajero V43 движка 6G72 12 кл
Вообщем проблема такая, пол года назад на заведенной машине сдернул фишку с датчика положения дроссельной заслонки, вернул на место, потом с датчика холостого хода. Сел в машину сижу жду человека, и тут из компа повалил дым. заглушил машину достал комп погрели шесть микросхем установленные рядом, подключил комп накинул клему на акб машина завелась. так откатался несколько месяцев, машина работает нормально, есть проблемы при запуске двигателя , но они были и до этого. нашел другой комп, скидываю клему с акб отключаю комп ставлю другой ставлю клему акб на место завожу, после 2-х минут работы двигателя опять дым и те же микросхемы. Проводку смотрел, и возле компа и не только возле датчиков все потрошил и заново укладывал. Вообщем боюсь теперь комп цеплять. Если кто чего знает подскажите где копать чего менять
TRT - Вдоль р.Киржач. Для стандартных 4х4 (08.11.25) Форум Обсуждение FAQ
Отвечу на вопросы по автоэлектрике
Модераторы: SNOOPER, Nbf, Romik, BAlex
- drcham
- Модератор
- Сообщения: 14443
- Зарегистрирован: 08 апр 2006, 13:42
- Двигатель:: Бензин
- Мой автомобиль(и):: Wrangler JLU Rubicon
- Откуда: Москва
- Откуда: Москва ЮЗАО
- Благодарил (а): 62 раза
- Поблагодарили: 229 раз
- Контактная информация:
Re: Отвечу на вопросы по автоэлектрике
4LO&GO! Wrangler JLU Rubicon
-
Electric DizelManLab
- Сообщения: 6
- Зарегистрирован: 09 дек 2014, 13:50
- Двигатель:: Дизель
- Мой автомобиль(и):: Mitsubishi Pajero Sport
- Откуда: Москва
- Поблагодарили: 1 раз
Re: Отвечу на вопросы по автоэлектрике
Проверьте проводку на КЗ от регулятора холостого хода до ЭБУ(фишки с РХХ и ЭБУ сняты). Следующим шагом проверьте сам регулятор, руководствуйтесь рис. 1. Сопротивление обмоток должно быть в пределах 28-33Ом. В ЭБУ скорее всего сгорели силовые сборки, отвечающие как раз за работу РХХ, впринципе можно их заменить.Григорий 038 писал(а):Прошу помощи! Сгорел комп на Pajero V43 движка 6G72 12 кл
Вообщем проблема такая, пол года назад на заведенной машине сдернул фишку с датчика положения дроссельной заслонки, вернул на место, потом с датчика холостого хода. Сел в машину сижу жду человека, и тут из компа повалил дым. заглушил машину достал комп погрели шесть микросхем установленные рядом, подключил комп накинул клему на акб машина завелась. так откатался несколько месяцев, машина работает нормально, есть проблемы при запуске двигателя , но они были и до этого. нашел другой комп, скидываю клему с акб отключаю комп ставлю другой ставлю клему акб на место завожу, после 2-х минут работы двигателя опять дым и те же микросхемы. Проводку смотрел, и возле компа и не только возле датчиков все потрошил и заново укладывал. Вообщем боюсь теперь комп цеплять. Если кто чего знает подскажите где копать чего менять
- Гордеев
- Сообщения: 46
- Зарегистрирован: 27 май 2013, 18:35
- Двигатель:: 4D56
- Мой автомобиль(и):: Mitsubishi Pajero 2
- Откуда: Нижегородская. Обл. г. Богородск
- Благодарил (а): 2 раза
- Поблагодарили: 2 раза
Re: Отвечу на вопросы по автоэлектрике
Разобрались с фишкой С-51, плюсы есть, на минус проверяли оказалось на 2 и 5 есть а на 1 нет массы, 7- это вообще плюс, да не суть. Вот вопрос какой назрел. на первом контакте идет желто-синий провод, это масса и её нету, кидаем на кузов индикаторы 4wd включаются, а вот куда он идет? на датчик или просто на кузов. Если на датчик то на какой точно, этот что обвел? если можете подсказать.. или фотку показать его местонахождения. Спасибо. не этот ли, под номером 5 — датчик включения режима HI/LO? на первой схеме я его обвел вроде как...
-
Electric DizelManLab
- Сообщения: 6
- Зарегистрирован: 09 дек 2014, 13:50
- Двигатель:: Дизель
- Мой автомобиль(и):: Mitsubishi Pajero Sport
- Откуда: Москва
- Поблагодарили: 1 раз
Re: Отвечу на вопросы по автоэлектрике
На первой масса должна быть во всех режимах раздатки кроме нейтрали, в противном случае индикатор гореть не будет. Датчик на Вашем рисунке 5. Попробуйте для начала подключить массу на этот вывод, если индикатор заработает, то дело точно в этом датчике. Но я крайне бы порекомендовал Вам проверить все датчики на раздатке, т. к. проблема "отсыхания" проводов касается их всех.Гордеев писал(а):Разобрались с фишкой С-51, плюсы есть, на минус проверяли оказалось на 2 и 5 есть а на 1 нет массы, 7- это вообще плюс, да не суть. Вот вопрос какой назрел. на первом контакте идет желто-синий провод, это масса и её нету, кидаем на кузов индикаторы 4wd включаются, а вот куда он идет? на датчик или просто на кузов. Если на датчик то на какой точно, этот что обвел? если можете подсказать.. или фотку показать его местонахождения. Спасибо. не этот ли, под номером 5 — датчик включения режима HI/LO? на первой схеме я его обвел вроде как...
Что касаемо плюса на 7 то это вполне нормально, при различных режимах раздатки на нем могут быть как - так и +(см рис)
-
странNick
- Сообщения: 98
- Зарегистрирован: 02 окт 2014, 21:18
- Двигатель:: Дизель
- Мой автомобиль(и):: MMC P-IV (конечно тоже)
- Откуда: Красногорск
- Благодарил (а): 6 раз
Re: Отвечу на вопросы по автоэлектрике
Приветствую, подскажите пожалуйста. Машина P-IV. При включении габаритов, гаснут контрольные лампы (световая индикация на клавишах) климат-контроля и магнитолы, а при выключении - наоборот включаются. Уходишь из машины, закрываешь, а они так и продолжают гореть. Началось всё сегодня утром. Т.е. при повороте выключателя, они работают теперь наоборот.
С уважением!
С уважением!
- CABa
- Сообщения: 135
- Зарегистрирован: 16 сен 2012, 22:56
- Двигатель:: 4м41
- Мой автомобиль(и):: Pajero 4 STT
- Откуда: Москва, ЮАО
- Благодарил (а): 33 раза
- Поблагодарили: 5 раз
Re: Отвечу на вопросы по автоэлектрике
Сергей, приветствую!
Только что позвонила супруга, рассказывает, что происходит с нашим П4 (дизель 2008):
во время движения заморгала штатная магнитола и бортовой комп (там где расход, температура воздуха и т.д.).
Потом загорелись все лампочки на приборке. И не гаснут.
Что это может быть, не знаете?
Пока сказал не глушить, т.к. ей ездить сегодня еще много придется.
Только что позвонила супруга, рассказывает, что происходит с нашим П4 (дизель 2008):
во время движения заморгала штатная магнитола и бортовой комп (там где расход, температура воздуха и т.д.).
Потом загорелись все лампочки на приборке. И не гаснут.
Что это может быть, не знаете?
Пока сказал не глушить, т.к. ей ездить сегодня еще много придется.
Carpe diem
-
женя-женя
- Сообщения: 5
- Зарегистрирован: 26 дек 2014, 11:54
- Двигатель:: дизель
- Мой автомобиль(и):: Pajero sport
- Откуда: Петрозаводск
Re: Отвечу на вопросы по автоэлектрике
Ребята добрый вечер. Не работает гена. На стенде проверил все ок.,но заряда нет. Попробывал потрошить проводку сам,но не могу разобраться. Видимо пред. хозяин там уже полазил.На гену приходит + с акума, толстый, потом с фишки уходят два тонких, на них тоже+ но куда они идут не могу найти видимо цвета меняются.Так вопрос собственно: скинте схемку или фото куда конкретно эти провода запитать,хочу новые кинуть. Можно на словах объяснить с электрикой на ты. Машина автомат 93г гена с маслом.
- drcham
- Модератор
- Сообщения: 14443
- Зарегистрирован: 08 апр 2006, 13:42
- Двигатель:: Бензин
- Мой автомобиль(и):: Wrangler JLU Rubicon
- Откуда: Москва
- Откуда: Москва ЮЗАО
- Благодарил (а): 62 раза
- Поблагодарили: 229 раз
- Контактная информация:
Re: Отвечу на вопросы по автоэлектрике
А что значит не работает гена ?женя-женя писал(а):Ребята добрый вечер. Не работает гена. На стенде проверил все ок.,но заряда нет. Попробывал потрошить проводку сам,но не могу разобраться. Видимо пред. хозяин там уже полазил.На гену приходит + с акума, толстый, потом с фишки уходят два тонких, на них тоже+ но куда они идут не могу найти видимо цвета меняются.Так вопрос собственно: скинте схемку или фото куда конкретно эти провода запитать,хочу новые кинуть. Можно на словах объяснить с электрикой на ты. Машина автомат 93г гена с маслом.
4LO&GO! Wrangler JLU Rubicon
- drcham
- Модератор
- Сообщения: 14443
- Зарегистрирован: 08 апр 2006, 13:42
- Двигатель:: Бензин
- Мой автомобиль(и):: Wrangler JLU Rubicon
- Откуда: Москва
- Откуда: Москва ЮЗАО
- Благодарил (а): 62 раза
- Поблагодарили: 229 раз
- Контактная информация:
Re: Отвечу на вопросы по автоэлектрике
это отсутвие заряда. Её точно на стенд ставили ? Если у Вас напряжение приходит на неё - значит скорее всего проблема в самом гене.женя-женя писал(а):Заряд дает 11,9-12v без фар , печек и тд.
Судя по схеме на разъема B (где 2*5 квадрат) должен быть плюс. На желтом проводе 3 квадрата плюс.
И на белом 2 квадрата должно выдаваться напряжение когда генератор вступил в работу.
4LO&GO! Wrangler JLU Rubicon
-
женя-женя
- Сообщения: 5
- Зарегистрирован: 26 дек 2014, 11:54
- Двигатель:: дизель
- Мой автомобиль(и):: Pajero sport
- Откуда: Петрозаводск
Re: Отвечу на вопросы по автоэлектрике
У меня на фишке только 2 провода. Заряд то есть то нет сейчас больше нет чем есть. Дверью хлопнешь есть заряд,на яме треханет, нет заряда. Но сейчас его постоянно нет. Причем потухла вся приборка. Вот мне и надо разобраться с проводкой.
- drcham
- Модератор
- Сообщения: 14443
- Зарегистрирован: 08 апр 2006, 13:42
- Двигатель:: Бензин
- Мой автомобиль(и):: Wrangler JLU Rubicon
- Откуда: Москва
- Откуда: Москва ЮЗАО
- Благодарил (а): 62 раза
- Поблагодарили: 229 раз
- Контактная информация:
Re: Отвечу на вопросы по автоэлектрике
Все верно. B - это основной плюс который с генератора идет. Дальше S и L на фишке. Если в системе ниже 13.4 - генератора нет.женя-женя писал(а):У меня на фишке только 2 провода. Заряд то есть то нет сейчас больше нет чем есть. Дверью хлопнешь есть заряд,на яме треханет, нет заряда. Но сейчас его постоянно нет. Причем потухла вся приборка. Вот мне и надо разобраться с проводкой.
http://pajero4x4.ru/bbs/phpBB2/viewtopi ... 30&t=22323
Когда хлопаешь дверью что значит есть заряд?
4LO&GO! Wrangler JLU Rubicon
-
женя-женя
- Сообщения: 5
- Зарегистрирован: 26 дек 2014, 11:54
- Двигатель:: дизель
- Мой автомобиль(и):: Pajero sport
- Откуда: Петрозаводск
Re: Отвечу на вопросы по автоэлектрике
Видимо гденто плохой контакт,дверь закроешь с хлопком появляется заряд,на яме треханет нет заряда. А сейчас его вообще нет. Вот хочу выяснить куда енти 2 провода идут что бы новые протянуть. А то видно старый хозяин что то там намудрил.
- drcham
- Модератор
- Сообщения: 14443
- Зарегистрирован: 08 апр 2006, 13:42
- Двигатель:: Бензин
- Мой автомобиль(и):: Wrangler JLU Rubicon
- Откуда: Москва
- Откуда: Москва ЮЗАО
- Благодарил (а): 62 раза
- Поблагодарили: 229 раз
- Контактная информация:
Re: Отвечу на вопросы по автоэлектрике
2 провода по 5 квадрат идут напрямую в блок предохранителей на 100А предохранитель(он на болтики прикручен). Если бы там пропадал контакт уже от нагрева давно бы что-то сгорело и/или сгорел генератор т.к. он без нагрузки не умеет работать.женя-женя писал(а):Видимо гденто плохой контакт,дверь закроешь с хлопком появляется заряд,на яме треханет нет заряда. А сейчас его вообще нет. Вот хочу выяснить куда енти 2 провода идут что бы новые протянуть. А то видно старый хозяин что то там намудрил.
4LO&GO! Wrangler JLU Rubicon
-
женя-женя
- Сообщения: 5
- Зарегистрирован: 26 дек 2014, 11:54
- Двигатель:: дизель
- Мой автомобиль(и):: Pajero sport
- Откуда: Петрозаводск
Re: Отвечу на вопросы по автоэлектрике
Совершенно верно один мне удалось выследить,он как раз и приходит на пред, но там все четко затянуто. А вот второй никак не получается найти и еще этот с преда уходит в косу под крыло и выходит я так полагаю в салон.Но вот в салоне и кроется засада. А крыло снимать не хотся, а ездить ой как надо.
-
YGD2002
- Сообщения: 39
- Зарегистрирован: 15 сен 2013, 09:50
- Двигатель:: 4D56 2500DIESEL/4WD 115 л.с.
- Мой автомобиль(и):: паджеро спорт 2002 г
- Откуда: Брянск
- Благодарил (а): 1 раз
Re: Отвечу на вопросы по автоэлектрике
Добрый день. Проблемка такая. Ранее при заводке двигателя, лампочки на панели не полностью тухли и вольтметр показывал 12 вольт. Прогазую и всё восстанавливалось. А сегодня, всё, кирык! Лампочки потухли только с нескольких прогазовок, но на вольтметре 12 вольт и при отсоединении клеммы на аккумуляторе двигатель глохнет. Я верно понимаю, что стёрлись щётки генератора?
- drcham
- Модератор
- Сообщения: 14443
- Зарегистрирован: 08 апр 2006, 13:42
- Двигатель:: Бензин
- Мой автомобиль(и):: Wrangler JLU Rubicon
- Откуда: Москва
- Откуда: Москва ЮЗАО
- Благодарил (а): 62 раза
- Поблагодарили: 229 раз
- Контактная информация:
Re: Отвечу на вопросы по автоэлектрике
Может и щетки... гену на диагностику.YGD2002 писал(а):Добрый день. Проблемка такая. Ранее при заводке двигателя, лампочки на панели не полностью тухли и вольтметр показывал 12 вольт. Прогазую и всё восстанавливалось. А сегодня, всё, кирык! Лампочки потухли только с нескольких прогазовок, но на вольтметре 12 вольт и при отсоединении клеммы на аккумуляторе двигатель глохнет. Я верно понимаю, что стёрлись щётки генератора?
4LO&GO! Wrangler JLU Rubicon
- drcham
- Модератор
- Сообщения: 14443
- Зарегистрирован: 08 апр 2006, 13:42
- Двигатель:: Бензин
- Мой автомобиль(и):: Wrangler JLU Rubicon
- Откуда: Москва
- Откуда: Москва ЮЗАО
- Благодарил (а): 62 раза
- Поблагодарили: 229 раз
- Контактная информация:
Re: Отвечу на вопросы по автоэлектрике
К сожалению у меня схема от Паджеро2. На спорте возможно, что другая немного проводка. Смотри от П2 дизель.женя-женя писал(а):Совершенно верно один мне удалось выследить,он как раз и приходит на пред, но там все четко затянуто. А вот второй никак не получается найти и еще этот с преда уходит в косу под крыло и выходит я так полагаю в салон.Но вот в салоне и кроется засада. А крыло снимать не хотся, а ездить ой как надо.
4LO&GO! Wrangler JLU Rubicon
- asferrum
- Сообщения: 5569
- Зарегистрирован: 15 июн 2012, 23:31
- Двигатель:: разные
- Мой автомобиль(и):: Ларгус на метане
- Откуда: Новомосковск-Рязань
- Откуда: Новомосковск
- Благодарил (а): 789 раз
- Поблагодарили: 295 раз
Re: Отвечу на вопросы по автоэлектрике
первым делом ремни подтяните и проверьте.YGD2002 писал(а):Добрый день. Проблемка такая. Ранее при заводке двигателя, лампочки на панели не полностью тухли и вольтметр показывал 12 вольт. Прогазую и всё восстанавливалось. А сегодня, всё, кирык! Лампочки потухли только с нескольких прогазовок, но на вольтметре 12 вольт и при отсоединении клеммы на аккумуляторе двигатель глохнет. Я верно понимаю, что стёрлись щётки генератора?
потом уж гену снимать,предварительно и там все сначала посмотрев,протянув и проверив.
несколько раз пропадала зарядка,порывался снимать генератор,но до снятия и не дошло ни разу.
то контакты прокисли,то ремни корявые экзист привез(китай голимый).
а сам гена до сих пор(тьфу 3 раза) работает как надо. хотя уже куплены на него и реле,и узел щеточный и подшипники....
Люблю жизнь!
С уважением,Юрий.
С уважением,Юрий.
-
Санек174
- Сообщения: 249
- Зарегистрирован: 07 мар 2013, 14:34
- Двигатель:: 6G72 12v
- Мой автомобиль(и):: Pajero 2 (рестайл)
- Откуда: Магнитогорск
- Откуда: Челябинская область
- Благодарил (а): 2 раза
- Поблагодарили: 10 раз
Re: Отвечу на вопросы по автоэлектрике
Доброго времени суток! Пишу здесь редко ибо поиск выручает, но сегодня столкнулся с такой проблемой: паджеро 2, бензин, 3 литра, 12 клапанов, после месяца простоя в гараже в ноль села АКБ (забыл снять клеммы), зарядил, далее подключаю АКБ и при накидывании минусовой клеммы проскакивает нехилая такая искра. Я понимаю, что идет какая то нездоровая нагрузка на акб. Далее включаю зажигание и, кроме привычных ламп контролек, почему то горит лампа круиза и сразу включается компрессор блокировки. Попытка выключить круиз приводит к сгоранию предохранителя на контрольные лампы панели приборов. Не беда, пред меняю, пытаюсь запустить движок,- стартер крутит, а втягивающее не выбрасыватся. После нескольких попыток сгорает 100 амперный пред на генератор. Отцепляю силовой провод с генератора, ставлю новый пред и все повторяется по кругу. Я конечно понимаю, что провод на генератор скорее всего где то замыкает на массу и из за этого сгорел 100 амперный пред, но вот при чем здесь круиз и компрессор блокировки, для меня загадка. Да и втягивающее так и не сработало ни разу. Подскажите наиболее вероятную точку пересечения всех этих симптомов. Заранее благодарен.
Ну и чтобы не сомневались в том, что я истинный паджеровод- в семье 4 вторых паджеры )))))
Ну и чтобы не сомневались в том, что я истинный паджеровод- в семье 4 вторых паджеры )))))
П-2 рестайл, араб, пружины от тлк 100, 31 ат, шнорк - был 11 лет
Тлк 100
Тлк 100
