Приветствую Вас уважаемые!
Подскажите по проблеме.Вчера перестал работать тахометр резко как-то.То стрелка лежит,то прыгает туда сюда.
Будьте добры,подскажите как удалить эту проблему?
Ещё если не сложно,хотелось бы увидеть схему.Заранее благодарен.
Домино Трофи 2026 - 25 Апреля - Обсудить и спросить тут.
Тахометр на МПС перестал работать.
Модераторы: SNOOPER, Nbf, Romik, BAlex
-
vadym
- Сообщения: 1457
- Зарегистрирован: 12 сен 2007, 00:50
- Откуда: Черновцы
- Благодарил (а): 12 раз
- Поблагодарили: 120 раз
Re: Тахометр на МПС перестал работать.
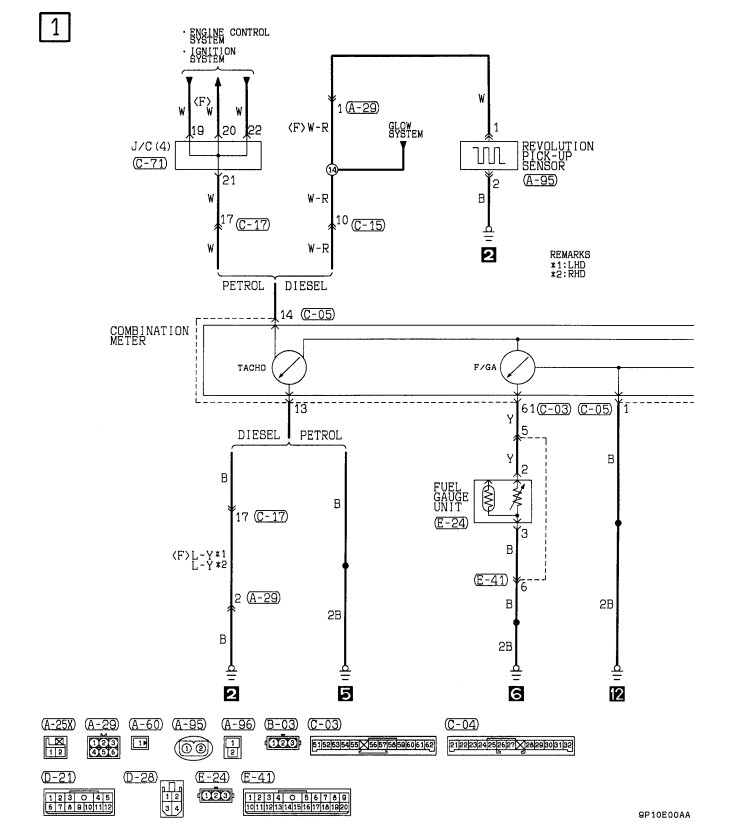
На тахометр приходят три провода - питание (верхний правый по схеме), масса (нижний) и импульсный сигнал с датчика (верхний левый).Рарик писал(а):Приветствую Вас уважаемые!
Подскажите по проблеме.Вчера перестал работать тахометр резко как-то.То стрелка лежит,то прыгает туда сюда.
Будьте добры,подскажите как удалить эту проблему?
Ещё если не сложно,хотелось бы увидеть схему.Заранее благодарен.
PAJERO SPORT 2003 2,5 TD
- valiok
- Сообщения: 255
- Зарегистрирован: 13 окт 2010, 13:16
- Двигатель:: 3,0 дизель
- Мой автомобиль(и):: AUDI Q7
- Откуда: Москва
- Откуда: Москва
- Благодарил (а): 1 раз
- Поблагодарили: 21 раз
- Контактная информация:
Re: Тахометр на МПС перестал работать.
если всё приходит, то ремонт приборки
+7 916 393 13 13
http://chiptun-msk.ru/
http://chiptun-msk.ru/
- pajero696
- Сообщения: 2455
- Зарегистрирован: 04 окт 2011, 23:09
- Двигатель:: 6G72
- Мой автомобиль(и):: МПС 1998г
- Откуда: Люберцы
- Откуда: Люберцы
- Благодарил (а): 49 раз
- Поблагодарили: 57 раз
Re: Тахометр на МПС перестал работать.
Так была уже подобная тема,чтож Вы искать то ленитесь.Если все приходит-пропаивайте плату.
Pajero Sport. 1998г 6G72. 3л.24кл.МКПП, СС,BFG МТ КМ2 285/75 R16,8JJ -20,Winch 12000lb, лифт2",силовые пороги,бампера,рывковый,буксирный,лопата.
