TRT - Вдоль р.Киржач. Для стандартных 4х4 (08.11.25) Форум Обсуждение FAQ
Подогрев зоны дворников лобового стекла
Модераторы: SNOOPER, Nbf, Romik, BAlex, drcham, DenVer
- IKSparrow
- Сообщения: 136
- Зарегистрирован: 24 янв 2011, 07:57
- Двигатель:: 4D56; 5.4 L Triton V-8
- Мой автомобиль(и):: Mitsubishi Pajero Sport-2; Ford Expedition 2
- Откуда: Москва
- Откуда: Москва
- Благодарил (а): 22 раза
- Поблагодарили: 1 раз
- Контактная информация:
Подогрев зоны дворников лобового стекла
Кнопку подогрева включаю, а стекло холодное. Индикатор на кнопке горит. Какой предохранитель можно проверить и в чём ещё могут быть неисправности?
- IKSparrow
- Сообщения: 136
- Зарегистрирован: 24 янв 2011, 07:57
- Двигатель:: 4D56; 5.4 L Triton V-8
- Мой автомобиль(и):: Mitsubishi Pajero Sport-2; Ford Expedition 2
- Откуда: Москва
- Откуда: Москва
- Благодарил (а): 22 раза
- Поблагодарили: 1 раз
- Контактная информация:
Re: Подогрев зоны дворников лобового стекла
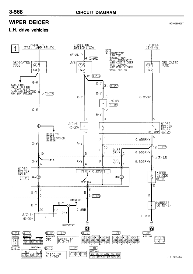
О, так по схеме получается, за этот подогрев три предохранителя отвечают... DEDICATED FUSE - на 10а, 10а и 15а... А на крышке блока предохранителей 1 предохранитель на 30а указан со значком сопутствующим. Он то как раз целый. Надо будет остальные найти и проверить.
-
ХАН707
- Сообщения: 108
- Зарегистрирован: 24 июл 2011, 20:18
- Двигатель:: 6G74
- Мой автомобиль(и):: Pajero III 3.5 V6 GDI 2004
- Откуда: Республика Коми, г. Усинск
- Поблагодарили: 1 раз
Re: Подогрев зоны дворников лобового стекла
Привет! Отпишись, пожалуйста, как остальные проверишь. У меня такая же тема, просто сейчас морозец, а в гараж или бокс теплый попасть не вариант.IKSparrow писал(а):О, так по схеме получается, за этот подогрев три предохранителя отвечают... DEDICATED FUSE - на 10а, 10а и 15а... А на крышке блока предохранителей 1 предохранитель на 30а указан со значком сопутствующим. Он то как раз целый. Надо будет остальные найти и проверить.
- IKSparrow
- Сообщения: 136
- Зарегистрирован: 24 янв 2011, 07:57
- Двигатель:: 4D56; 5.4 L Triton V-8
- Мой автомобиль(и):: Mitsubishi Pajero Sport-2; Ford Expedition 2
- Откуда: Москва
- Откуда: Москва
- Благодарил (а): 22 раза
- Поблагодарили: 1 раз
- Контактная информация:
Re: Подогрев зоны дворников лобового стекла
Их ещё найти надо. Я что-то слегка запутался.ХАН707 писал(а): Привет! Отпишись, пожалуйста, как остальные проверишь. У меня такая же тема, просто сейчас морозец, а в гараж или бокс теплый попасть не вариант.
- Sieger
- Сообщения: 442
- Зарегистрирован: 12 окт 2010, 23:15
- Двигатель:: 6G74
- Мой автомобиль(и):: Pajero III V75W GDI
- Откуда: Москва
- Благодарил (а): 5 раз
- Поблагодарили: 11 раз
Re: Подогрев зоны дворников лобового стекла
В салоне:


Под капотом:




Под капотом:


Pajero III V75W GDI 10/2000г
Любая сложная операция состоит из последовательности простых действий, при выполнении которых следует соблюдать определённые правила.
Любая сложная операция состоит из последовательности простых действий, при выполнении которых следует соблюдать определённые правила.
- IKSparrow
- Сообщения: 136
- Зарегистрирован: 24 янв 2011, 07:57
- Двигатель:: 4D56; 5.4 L Triton V-8
- Мой автомобиль(и):: Mitsubishi Pajero Sport-2; Ford Expedition 2
- Откуда: Москва
- Откуда: Москва
- Благодарил (а): 22 раза
- Поблагодарили: 1 раз
- Контактная информация:
Re: Подогрев зоны дворников лобового стекла
Блин, а я не тот предохранитель, оказывается смотрел. Я смотрел предохранитель №11 в салоне. А надо №12 под капотом. СПАСИБО!!!
-
mickey
- Сообщения: 131
- Зарегистрирован: 07 июл 2010, 21:00
- Двигатель:: 4М41
- Мой автомобиль(и):: pajero 3
- Откуда: Москва
- Поблагодарили: 1 раз
Re: Подогрев зоны дворников лобового стекла
А что за кнопка должна включать подогрев щеток лобового стекла? У меня не было подогрева на стекле, решил поменять стекло была большая трещина, купил стекло с подогревом! Нашел штатный штекер для подогрева! Все подключил! А как включать не знаю пока и какой кнопкой! Реле не нужно для него? Предохранитель завтра посмотрю
-
mickey
- Сообщения: 131
- Зарегистрирован: 07 июл 2010, 21:00
- Двигатель:: 4М41
- Мой автомобиль(и):: pajero 3
- Откуда: Москва
- Поблагодарили: 1 раз
Re: Подогрев зоны дворников лобового стекла
Что за кнопка должна стоять?? Которая включает подогрев!IKSparrow писал(а):эх, посмотрел правильный предохранитель, а он целый
- IKSparrow
- Сообщения: 136
- Зарегистрирован: 24 янв 2011, 07:57
- Двигатель:: 4D56; 5.4 L Triton V-8
- Мой автомобиль(и):: Mitsubishi Pajero Sport-2; Ford Expedition 2
- Откуда: Москва
- Откуда: Москва
- Благодарил (а): 22 раза
- Поблагодарили: 1 раз
- Контактная информация:
Re: Подогрев зоны дворников лобового стекла
На консоли под пепельницей есть ряд кнопок. По моему, вторая справа. Там где блокировка дифа заднего, отключение системы стабилизации и включение подогрева сидушек.mickey писал(а):Что за кнопка должна стоять?? Которая включает подогрев!IKSparrow писал(а):эх, посмотрел правильный предохранитель, а он целый
- .kkursor
- Сообщения: 1508
- Зарегистрирован: 21 авг 2014, 10:37
- Двигатель:: 4M41 VRZ
- Мой автомобиль(и):: тыр-тыр 16 дыр
- Откуда: Москвачкала
- Благодарил (а): 154 раза
- Поблагодарили: 113 раз
Re: Подогрев зоны дворников лобового стекла
А скажите, где провода на подогрев к стеклу подходят? Со стороны салона или под капотом?
Собираюсь ставить стекло с полным подогревом, нужно усиливать схему (у него потребление 50-60 А). Буду использовать штатную схему как управление релюшками.
Собираюсь ставить стекло с полным подогревом, нужно усиливать схему (у него потребление 50-60 А). Буду использовать штатную схему как управление релюшками.
А давайте на *ты*, а? А то все серьёзные такие, я не могу. Фу такими быть!
- SmoAG
- Сообщения: 7842
- Зарегистрирован: 16 янв 2015, 13:11
- Двигатель:: 4m41
- Мой автомобиль(и):: Pajero 3, 2005 АКПП
- Откуда: Воронеж
- Откуда: Воронеж
- Благодарил (а): 99 раз
- Поблагодарили: 541 раз
Re: Подогрев зоны дворников лобового стекла
подогрев к стеклу подходит под жабо дворников.
Здесь должна была быть какая-нибудь цитата из вк или другого ресурса, но вот что то не нашёл ни чего что могло бы выразить моё миропонимание сейчас;)
- Серёга-Питер
- Сообщения: 598
- Зарегистрирован: 08 сен 2010, 22:57
- Двигатель:: 6G75
- Мой автомобиль(и):: mitsubishi montero 3,2003г,3,8
- Откуда: санкт-петербург
- Откуда: санкт-петербург
- Благодарил (а): 5 раз
- Поблагодарили: 7 раз
Re: Подогрев зоны дворников лобового стекла
То же думаю поставить стекло с обогревом зоны дворников.Кнопка есть,колодка от кнопки есть.Теперь буду выносить мозг электрику,что бы подключил.
Ремонт и беспокрасочное удаление вмятин на автомобилях.(https://vk.com/club134949716)
- .kkursor
- Сообщения: 1508
- Зарегистрирован: 21 авг 2014, 10:37
- Двигатель:: 4M41 VRZ
- Мой автомобиль(и):: тыр-тыр 16 дыр
- Откуда: Москвачкала
- Благодарил (а): 154 раза
- Поблагодарили: 113 раз
Re: Подогрев зоны дворников лобового стекла
Я собираюсь поставить стекло с полным подогревом, а не зоны дворников.
А тебе ничего подключать не надо, просто разъемы переткнуть. Потому что раз кнопка есть, значит в комплектации подогрев есть.
А тебе ничего подключать не надо, просто разъемы переткнуть. Потому что раз кнопка есть, значит в комплектации подогрев есть.
А давайте на *ты*, а? А то все серьёзные такие, я не могу. Фу такими быть!
- Серёга-Питер
- Сообщения: 598
- Зарегистрирован: 08 сен 2010, 22:57
- Двигатель:: 6G75
- Мой автомобиль(и):: mitsubishi montero 3,2003г,3,8
- Откуда: санкт-петербург
- Откуда: санкт-петербург
- Благодарил (а): 5 раз
- Поблагодарили: 7 раз
Re: Подогрев зоны дворников лобового стекла
НЕ совсем так.В комплектации монтеро-нет такой опции.Кнопку и проводку(которая к кнопке)Я купил..kkursor писал(а):Я собираюсь поставить стекло с полным подогревом, а не зоны дворников.
А тебе ничего подключать не надо, просто разъемы переткнуть. Потому что раз кнопка есть, значит в комплектации подогрев есть.
Ремонт и беспокрасочное удаление вмятин на автомобилях.(https://vk.com/club134949716)
- .kkursor
- Сообщения: 1508
- Зарегистрирован: 21 авг 2014, 10:37
- Двигатель:: 4M41 VRZ
- Мой автомобиль(и):: тыр-тыр 16 дыр
- Откуда: Москвачкала
- Благодарил (а): 154 раза
- Поблагодарили: 113 раз
Re: Подогрев зоны дворников лобового стекла
А, ясно)
А давайте на *ты*, а? А то все серьёзные такие, я не могу. Фу такими быть!
- VasiliiK
- Сообщения: 73
- Зарегистрирован: 05 фев 2011, 17:55
- Двигатель:: 6G75 218 л.сил
- Мой автомобиль(и):: Montero III 2005
- Откуда: Красноярск
- Благодарил (а): 5 раз
Re: Подогрев зоны дворников лобового стекла
Добрый день! подскажите пожалуйста номер этой кнопки (подогрева щеток) для заказа.
Так же поменял стекло а там есть подогрев, хочу попробовать его подключить
Так же поменял стекло а там есть подогрев, хочу попробовать его подключить
- .kkursor
- Сообщения: 1508
- Зарегистрирован: 21 авг 2014, 10:37
- Двигатель:: 4M41 VRZ
- Мой автомобиль(и):: тыр-тыр 16 дыр
- Откуда: Москвачкала
- Благодарил (а): 154 раза
- Поблагодарили: 113 раз
Re: Подогрев зоны дворников лобового стекла
MR402470.
А проводка-то есть в жабо?
А проводка-то есть в жабо?
А давайте на *ты*, а? А то все серьёзные такие, я не могу. Фу такими быть!
