TRT "107-108" Для стандарта и не только! (4.04.2026) Форум Обсуждение FAQ
Датчик ОЖ
Модераторы: SNOOPER, Nbf, Romik, BAlex, drcham, алексей - Маленький Мук, ZILLA
-
valdemar27
- Сообщения: 44
- Зарегистрирован: 13 мар 2013, 14:16
- Двигатель:: 4m40
- Мой автомобиль(и):: pajero
- Откуда: Комсомольск на амуре
- Благодарил (а): 1 раз
Датчик ОЖ
Доброго времени суток . датчик ОЖ. немогу его найти. у меня один только датчик с одним выводом и (2 с 2-я выводами).Нет блокировки ГТ. Я его отсоеденил замкнул на массу и помчался, Все заработало УРА! но на приборке стала зашкаливать стрелка температуры. значит этот датчик на приборку??? а то что заработало совпадение. ни чё непойму... а В книжке вобще этот датчик на включение кондиционера. Подскажите а ? где найти нужный датчик. По эл. схеме АКПП к датчику ОЖ для муфты подписан провод синий с белой, проверил да такой подходит. У меня один вывод что этот датчик завязан с несколькими системами (кондиц, приборка, АКПП)_. Это возможно?
- Captain Sergio
- Сообщения: 4557
- Зарегистрирован: 30 янв 2012, 22:01
- Двигатель:: 4G18
- Мой автомобиль(и):: Pajero Пинин, 1999, АКПП, BMW X5
- Откуда: Ульяновск
- Благодарил (а): 264 раза
- Поблагодарили: 346 раз
Re: Датчик ОЖ
Тут без переводчика никак
У тебя какая машина и какого года?
Сергей. Все будет хорошо! Грязезащита для рамных автомобилей.
-
valdemar27
- Сообщения: 44
- Зарегистрирован: 13 мар 2013, 14:16
- Двигатель:: 4m40
- Мой автомобиль(и):: pajero
- Откуда: Комсомольск на амуре
- Благодарил (а): 1 раз
- Captain Sergio
- Сообщения: 4557
- Зарегистрирован: 30 янв 2012, 22:01
- Двигатель:: 4G18
- Мой автомобиль(и):: Pajero Пинин, 1999, АКПП, BMW X5
- Откуда: Ульяновск
- Благодарил (а): 264 раза
- Поблагодарили: 346 раз
Re: Датчик ОЖ
Год какой? Бывают отличия в схемах. Датчик ОЖ - датчик охлаждающей жидкости? Я праивльно понял?
Сергей. Все будет хорошо! Грязезащита для рамных автомобилей.
-
valdemar27
- Сообщения: 44
- Зарегистрирован: 13 мар 2013, 14:16
- Двигатель:: 4m40
- Мой автомобиль(и):: pajero
- Откуда: Комсомольск на амуре
- Благодарил (а): 1 раз
Re: Датчик ОЖ
Да вижу. у меня не так, у меня как на фото которое я добавил, там 2 датчика. но на моём как у вас обведено, стоит такой же провод с черной фишкой на датчике с 1 выводом цвет синий с белой. и в книжке я не видал схему как у вас с датчиками)))) .мотор 95 года стоит контрактный.
- Captain Sergio
- Сообщения: 4557
- Зарегистрирован: 30 янв 2012, 22:01
- Двигатель:: 4G18
- Мой автомобиль(и):: Pajero Пинин, 1999, АКПП, BMW X5
- Откуда: Ульяновск
- Благодарил (а): 264 раза
- Поблагодарили: 346 раз
Re: Датчик ОЖ
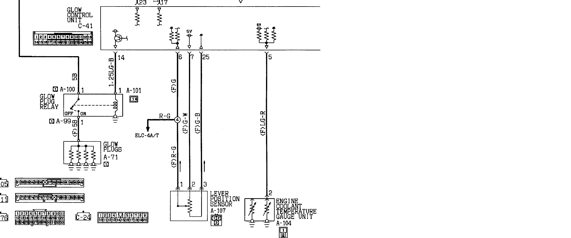
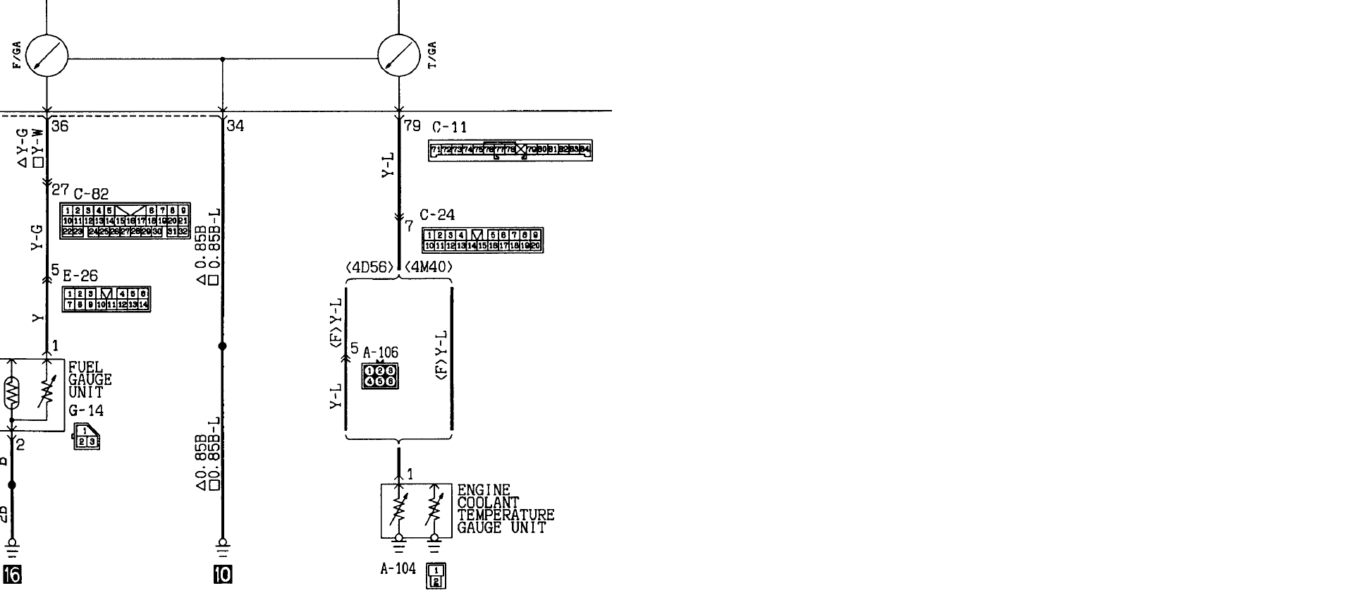
Ну раз год не хочешь говорить - лови на 4М40, П-2 94 год. Датчиков три.
1. С двумя проводами - один на указатель температуры панели приборов и на блок облегчения пуска (свечи).
2. Температурный переключатель на кондиционер.
3. Температурный переключатель на АКПП.
Ты снимал первый, с двумя проводами. Схемы прилагаю, надеюсь по цветам проводов разберешься, какой и куда идет. Будут вопросы - пиши.
1. С двумя проводами - один на указатель температуры панели приборов и на блок облегчения пуска (свечи).
2. Температурный переключатель на кондиционер.
3. Температурный переключатель на АКПП.
Ты снимал первый, с двумя проводами. Схемы прилагаю, надеюсь по цветам проводов разберешься, какой и куда идет. Будут вопросы - пиши.
Сергей. Все будет хорошо! Грязезащита для рамных автомобилей.
-
count
- Сообщения: 39
- Зарегистрирован: 20 янв 2013, 11:19
- Двигатель:: 6G72
- Мой автомобиль(и):: Pajero 3 2002 г., Pajero 2 4М40 1994 (был)
- Откуда: Владивосток
- Поблагодарили: 2 раза
Re: Датчик ОЖ
это действительно странно, но в книжке этот датчик не описан, а на картинке (в книге) он нарисован возле первой форсунки, чуть левее. Возможно существуют различия для двигателей с efi и без него. У меня вот механический тнвд. А у вас?
ps под номером один у вас, это датчик положения рычага тнвд.
ps под номером один у вас, это датчик положения рычага тнвд.
- Captain Sergio
- Сообщения: 4557
- Зарегистрирован: 30 янв 2012, 22:01
- Двигатель:: 4G18
- Мой автомобиль(и):: Pajero Пинин, 1999, АКПП, BMW X5
- Откуда: Ульяновск
- Благодарил (а): 264 раза
- Поблагодарили: 346 раз
-
valdemar27
- Сообщения: 44
- Зарегистрирован: 13 мар 2013, 14:16
- Двигатель:: 4m40
- Мой автомобиль(и):: pajero
- Откуда: Комсомольск на амуре
- Благодарил (а): 1 раз
Re: Датчик ОЖ
Я начинаю понимать. 1.мотор у меня контрактный стоит, 2.там где должен быть датчик ОЖ на АКПП только отлив под него глухой. значит мотор стоял с механич КПП. а кудато надобыло приделать вот и пределали на место кондиционера. только при снятии стрелка темп зашкаливаект по чемуто
- Captain Sergio
- Сообщения: 4557
- Зарегистрирован: 30 янв 2012, 22:01
- Двигатель:: 4G18
- Мой автомобиль(и):: Pajero Пинин, 1999, АКПП, BMW X5
- Откуда: Ульяновск
- Благодарил (а): 264 раза
- Поблагодарили: 346 раз
Re: Датчик ОЖ
Там датчик выключатель. Только я его логику не понял. Судя по описанию в схеме он замкнут от 30 до 60 градусов. По мануалу - замкнут, если температура больше пятидесяти. Где правда? Т.е на датчик его нельзя получается присоединять по любому. Попробуй на массу замкнуть.
Сергей. Все будет хорошо! Грязезащита для рамных автомобилей.
- Captain Sergio
- Сообщения: 4557
- Зарегистрирован: 30 янв 2012, 22:01
- Двигатель:: 4G18
- Мой автомобиль(и):: Pajero Пинин, 1999, АКПП, BMW X5
- Откуда: Ульяновск
- Благодарил (а): 264 раза
- Поблагодарили: 346 раз
Re: Датчик ОЖ
Тут пишут про это http://pajero4x4.ru/bbs/phpBB2/viewtopi ... C#p1437801
Mr.Maddog писал(а):
и по поводу ГТ-получается,что после переключения на 4 передачу происходит это ГТ?а для чего оно нужно и что дает? и OD-off сработает только на 4 передаче?на третей не сработает она?
Кнопка OD-OFF отключает четвертую передачу. Т.е. когда у тебя на приборке горит желтая надпись OD-OFF, значит четвертая передача включаться не будет.
Что касается цепи выключателя 4-ой передачи: есть в двигателе (а конкретно у термостата, фишкой к радиатору торчащий) одноконтактный датчик-размыкатель температурный. Суть его работы в следующем: когда температура ОЖ переваливает за +60 градусов, он замыкает свой единственный контакт на массу, тем самым дает сигнал коробке, что двиг достаточно прогрелся, чтобы можно было включать 4-ую передачу. При исправном датчике автомат не включит 4-ую передачу на непрогретом двигле. Причем здесь двигло? Поскольку температурных датчиков в коробке передач не предусмотрено, то о температуре масла в коробке судят по температуре двигателя. Если коробка холодная - 4-ой передачи нет. Отсутствие 4-ой передачи равносильно нажатой кнопке OD-OFF.Надеюсь понятно расписал
Mr.Maddog писал(а):
и по поводу ГТ-получается,что после переключения на 4 передачу происходит это ГТ?а для чего оно нужно и что дает? и OD-off сработает только на 4 передаче?на третей не сработает она?
Кнопка OD-OFF отключает четвертую передачу. Т.е. когда у тебя на приборке горит желтая надпись OD-OFF, значит четвертая передача включаться не будет.
Что касается цепи выключателя 4-ой передачи: есть в двигателе (а конкретно у термостата, фишкой к радиатору торчащий) одноконтактный датчик-размыкатель температурный. Суть его работы в следующем: когда температура ОЖ переваливает за +60 градусов, он замыкает свой единственный контакт на массу, тем самым дает сигнал коробке, что двиг достаточно прогрелся, чтобы можно было включать 4-ую передачу. При исправном датчике автомат не включит 4-ую передачу на непрогретом двигле. Причем здесь двигло? Поскольку температурных датчиков в коробке передач не предусмотрено, то о температуре масла в коробке судят по температуре двигателя. Если коробка холодная - 4-ой передачи нет. Отсутствие 4-ой передачи равносильно нажатой кнопке OD-OFF.Надеюсь понятно расписал
Сергей. Все будет хорошо! Грязезащита для рамных автомобилей.
-
a.bitskiy
- Сообщения: 55
- Зарегистрирован: 21 июн 2013, 22:14
- Двигатель:: 6G74
- Мой автомобиль(и):: Mitsubishi Pajero II
- Откуда: Ульяновск
- Благодарил (а): 7 раз
Re: Датчик ОЖ
Уважаемые коллеги! Прошу помощи. Решаю проблему незапуска двигателя.
Вводные: бензонасос исправен, катушки зажигания исправны, ДМРВ и ДПДЗ исправны. Далее проверке следуют датчики температуры. На коллекторе ОЖ я обнаружил их 4 штуки. №2 по мануалу датчик температуры ОЖ. Прозвонил - исправен. №3 "методом научного тыка" определил, что дает сигнал на указатель температуры на панель приборов. Соответственно непонятно назначение датчиков №2 и №3
http://s2.ipicture.ru/uploads/20130825/87a68N2t.jpg
Вводные: бензонасос исправен, катушки зажигания исправны, ДМРВ и ДПДЗ исправны. Далее проверке следуют датчики температуры. На коллекторе ОЖ я обнаружил их 4 штуки. №2 по мануалу датчик температуры ОЖ. Прозвонил - исправен. №3 "методом научного тыка" определил, что дает сигнал на указатель температуры на панель приборов. Соответственно непонятно назначение датчиков №2 и №3
http://s2.ipicture.ru/uploads/20130825/87a68N2t.jpg
- ZILLA
- Сообщения: 7553
- Зарегистрирован: 22 май 2007, 16:31
- Двигатель:: 0,75
- Мой автомобиль(и):: Hooooondaaaaa
- Откуда: течет нефть?
- Откуда: 101 км от Москвы
- Благодарил (а): 1 раз
- Поблагодарили: 282 раза
Re: Датчик ОЖ
a.bitskiy, один датчик - для эбу мотора, другой - выключатель кондея.
ЗЫ: Про мотор - это не в эту ветку.
ЗЫ: Про мотор - это не в эту ветку.
Восстановление неисправных акпп Mitsubishi, Hyundai, Toyota, Mersedes и т.п. Диагностика и обслуживание всех видов акпп, вариаторов и роботов.
+79О3 6З561О5, ватсап +791О 6О8О191
+79О3 6З561О5, ватсап +791О 6О8О191
