TRT - Вдоль р.Киржач. Для стандартных 4х4 (08.11.25) Форум Обсуждение FAQ
После ночной стоянки пропадают тормоза. Куда копать?
Модераторы: SNOOPER, Nbf, Romik, BAlex, drcham, Podzemshik
-
EKorepanov
- Сообщения: 558
- Зарегистрирован: 21 янв 2006, 23:40
- Откуда: Москва
- Благодарил (а): 35 раз
- Поблагодарили: 13 раз
После ночной стоянки пропадают тормоза. Куда копать?
Монтеро Спорт 2001, 6G72.
Собственно, проблема - вчера, после работы сел в машину и не узнал тормоза - эффективность снизилась раз в 10, такое ощущение, что вакуумный усилитель не работает, а диски смазаны салом. Но постпенно, за минут пять и после многочисленных торможений, вроде нормализовалось и до дому доехал нормально. Под конец тормозила прямо как обычно. Звуков посторонних нет.
Сегодня утром опять та же история - отъезжаю от подъезда - практически не тормозит с теми же ощущениями, что и вчера. Но после десятка торможений чувствуется тенденция к нормализации. Рисковать не стал - оставил дома.
Что успел глянуть-попробовать:
- жидкость в тормозном бачке есть и вроде не уходит;
- трубка от вакуумного усилителя к мотору вроде нормальная;
- педаль не проваливается, если мотор заглушен вообще стоит колом - хрен продавишь;
- индикатор АБС на приборке нештатных ситуаций не выдает.
Из имеющихся неисправностей, которые вроде как не влияют, но...:
- не работает прогрев одной лямбды (горит SES)$
- судя по всему нарушена герметичность пневмосистемы полного привода, так как иногда на малых скоростях в пробке начинает мигать индикатор ПП и потом толчком подключается мост.
Подскажите куда копать с тормозами?
Собственно, проблема - вчера, после работы сел в машину и не узнал тормоза - эффективность снизилась раз в 10, такое ощущение, что вакуумный усилитель не работает, а диски смазаны салом. Но постпенно, за минут пять и после многочисленных торможений, вроде нормализовалось и до дому доехал нормально. Под конец тормозила прямо как обычно. Звуков посторонних нет.
Сегодня утром опять та же история - отъезжаю от подъезда - практически не тормозит с теми же ощущениями, что и вчера. Но после десятка торможений чувствуется тенденция к нормализации. Рисковать не стал - оставил дома.
Что успел глянуть-попробовать:
- жидкость в тормозном бачке есть и вроде не уходит;
- трубка от вакуумного усилителя к мотору вроде нормальная;
- педаль не проваливается, если мотор заглушен вообще стоит колом - хрен продавишь;
- индикатор АБС на приборке нештатных ситуаций не выдает.
Из имеющихся неисправностей, которые вроде как не влияют, но...:
- не работает прогрев одной лямбды (горит SES)$
- судя по всему нарушена герметичность пневмосистемы полного привода, так как иногда на малых скоростях в пробке начинает мигать индикатор ПП и потом толчком подключается мост.
Подскажите куда копать с тормозами?
Montero Sport XLS, 2001, 3 л, 6G72
- Dimix
- Сообщения: 12129
- Зарегистрирован: 26 сен 2006, 18:31
- Двигатель:: 6G72 24v
- Мой автомобиль(и):: montero sport'02
- Откуда: Балашиха
- Откуда: Россия, Балашиха-Москва
- Благодарил (а): 88 раз
- Поблагодарили: 398 раз
Re: После ночной стоянки пропадают тормоза. Куда копать?
Глянь колесные диски на наличие тормозухи вытекающей из супортов
- 999Serj
- Сообщения: 565
- Зарегистрирован: 11 июн 2008, 09:38
- Двигатель:: 6G72
- Мой автомобиль(и):: Был MPS 4D56 - стал MPS 6G72 24V серебро
- Откуда: Москва и МО
- Откуда: Москва САО, д.Аносино Истринский р-н
- Благодарил (а): 11 раз
- Поблагодарили: 27 раз
Re: После ночной стоянки пропадают тормоза. Куда копать?
да никуда, по лужам надо меньше ездить, колодки у Вас намокают, а после десятка торможений высыхают и все становится как обычно!EKorepanov писал(а):Монтеро Спорт 2001, 6G72.
Но после десятка торможений чувствуется тенденция к нормализации. Рисковать не стал - оставил дома.
Подскажите куда копать с тормозами?
может еще ставите в лужу, вариантов масса, да и материал колодок немного гигроскопичен - т.е. впитывает воду, так что все в норме
Pajero Sport 3,0 24V АКПП, Super Select, KYB, пружины П2, торсионы подкручены, BFG AT, - продан.
KIA Sportage3 2.0 АКПП 4х4 Luxse SE - есть
Sarsilmaz, спининг, палатка, нож, топор, пила Partner 350 - рыбалка/охота.
KIA Sportage3 2.0 АКПП 4х4 Luxse SE - есть
Sarsilmaz, спининг, палатка, нож, топор, пила Partner 350 - рыбалка/охота.
- Дёма
- Сообщения: 1797
- Зарегистрирован: 19 июн 2008, 20:52
- Двигатель:: 6g72
- Мой автомобиль(и):: pajero sport
- Откуда: Зеленоград
- Откуда: Зеленоград
- Благодарил (а): 76 раз
- Поблагодарили: 50 раз
Re: После ночной стоянки пропадают тормоза. Куда копать?
Ну можно ещё тормозуху поменять. И направляющие супортов проверить (не закисли ли). А так действительно на мокрые колодки похоже.тем более весна, лужи
pajero sport 08г 6g72 акпп
Рajero4 15г 3.0 акпп
Рajero4 15г 3.0 акпп
- Podzemshik
- Модератор
- Сообщения: 7671
- Зарегистрирован: 31 янв 2008, 15:38
- Двигатель:: 4D56, 1KD
- Мой автомобиль(и):: МПС, ТЛК 150
- Откуда: Москва
- Откуда: Permoníci
- Благодарил (а): 126 раз
- Поблагодарили: 417 раз
Re: После ночной стоянки пропадают тормоза. Куда копать?
Если в системе проблемы с вакуумом, то как следствие будут проблемы как с пневморазмыкателем полуоси, так и с вакуумным усилителем тормозовEKorepanov писал(а):- судя по всему нарушена герметичность пневмосистемы полного привода, так как иногда на малых скоростях в пробке начинает мигать индикатор ПП и потом толчком подключается мост.
Подскажите куда копать с тормозами?
При этом педаль как раз будет тугая.
Искать утечку в вакуумной системе.
Следующий возможный вариант - поршни ржавеют, ночью прихватывает. Тормозуху давно меняли? Она гигроскопичная, положено раз в 30000 км менять. Но сначала нужно разобраться с вакуумом.
Toyota Corolla Cross Hybrid
- Captain Sergio
- Сообщения: 4557
- Зарегистрирован: 30 янв 2012, 22:01
- Двигатель:: 4G18
- Мой автомобиль(и):: Pajero Пинин, 1999, АКПП, BMW X5
- Откуда: Ульяновск
- Благодарил (а): 264 раза
- Поблагодарили: 345 раз
Re: После ночной стоянки пропадают тормоза. Куда копать?
+1. При проблемах с вакуумом датчик сработает, будет значок гореть как будто ручник поднят. А тут скорее всего поршень потек. Колеса смотри, лучше с ямы. Сразу все увидишь.Dimix писал(а):Глянь колесные диски на наличие тормозухи вытекающей из супортов
Сергей. Все будет хорошо! Грязезащита для рамных автомобилей.
- SNOOPER
- Модератор
- Сообщения: 56894
- Зарегистрирован: 11 дек 2004, 19:49
- Двигатель:: 4D56
- Мой автомобиль(и):: NewMPS
- Откуда: 78
- Откуда: Spb
- Благодарил (а): 1007 раз
- Поблагодарили: 4665 раз
Re: После ночной стоянки пропадают тормоза. Куда копать?
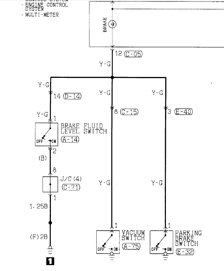
Откуда дровишки?Captain Sergio писал(а): При проблемах с вакуумом датчик сработает, будет значок гореть как будто ручник поднят. .
- Captain Sergio
- Сообщения: 4557
- Зарегистрирован: 30 янв 2012, 22:01
- Двигатель:: 4G18
- Мой автомобиль(и):: Pajero Пинин, 1999, АКПП, BMW X5
- Откуда: Ульяновск
- Благодарил (а): 264 раза
- Поблагодарили: 345 раз
Re: После ночной стоянки пропадают тормоза. Куда копать?
Отсюда.
Сергей. Все будет хорошо! Грязезащита для рамных автомобилей.
- SNOOPER
- Модератор
- Сообщения: 56894
- Зарегистрирован: 11 дек 2004, 19:49
- Двигатель:: 4D56
- Мой автомобиль(и):: NewMPS
- Откуда: 78
- Откуда: Spb
- Благодарил (а): 1007 раз
- Поблагодарили: 4665 раз
Re: После ночной стоянки пропадают тормоза. Куда копать?
А ничего что на Вашей схеме звёздочку забыли поставить (Дизель)Captain Sergio писал(а):Отсюда.
- Captain Sergio
- Сообщения: 4557
- Зарегистрирован: 30 янв 2012, 22:01
- Двигатель:: 4G18
- Мой автомобиль(и):: Pajero Пинин, 1999, АКПП, BMW X5
- Откуда: Ульяновск
- Благодарил (а): 264 раза
- Поблагодарили: 345 раз
Re: После ночной стоянки пропадают тормоза. Куда копать?
Эти звездочки говорят о том, что на разных дизельных машинах используются разные обозначения разъемов и разные на них контакты.
Сергей. Все будет хорошо! Грязезащита для рамных автомобилей.
- SNOOPER
- Модератор
- Сообщения: 56894
- Зарегистрирован: 11 дек 2004, 19:49
- Двигатель:: 4D56
- Мой автомобиль(и):: NewMPS
- Откуда: 78
- Откуда: Spb
- Благодарил (а): 1007 раз
- Поблагодарили: 4665 раз
Re: После ночной стоянки пропадают тормоза. Куда копать?
Тогда где на моей схеме обозначение петрола.Captain Sergio писал(а):Эти звездочки говорят о том, что на разных дизельных машинах используются разные обозначения разъемов и разные на них контакты.
И Вы сейчас встаёте из за компа и идёте фотографировать на своей машине данный датчик.
- Captain Sergio
- Сообщения: 4557
- Зарегистрирован: 30 янв 2012, 22:01
- Двигатель:: 4G18
- Мой автомобиль(и):: Pajero Пинин, 1999, АКПП, BMW X5
- Откуда: Ульяновск
- Благодарил (а): 264 раза
- Поблагодарили: 345 раз
Re: После ночной стоянки пропадают тормоза. Куда копать?
Ага. Разбежался. Брошу пиво и пельмени и пойду на холод датчики фотографировать!
Сергей. Все будет хорошо! Грязезащита для рамных автомобилей.
- Captain Sergio
- Сообщения: 4557
- Зарегистрирован: 30 янв 2012, 22:01
- Двигатель:: 4G18
- Мой автомобиль(и):: Pajero Пинин, 1999, АКПП, BMW X5
- Откуда: Ульяновск
- Благодарил (а): 264 раза
- Поблагодарили: 345 раз
Re: После ночной стоянки пропадают тормоза. Куда копать?
Джепенкатс показывает под мой вин чистый вакуумный усилитель без признаков датчика. Че, правда его нет на бензинках?
Сергей. Все будет хорошо! Грязезащита для рамных автомобилей.
- Captain Sergio
- Сообщения: 4557
- Зарегистрирован: 30 янв 2012, 22:01
- Двигатель:: 4G18
- Мой автомобиль(и):: Pajero Пинин, 1999, АКПП, BMW X5
- Откуда: Ульяновск
- Благодарил (а): 264 раза
- Поблагодарили: 345 раз
Re: После ночной стоянки пропадают тормоза. Куда копать?
И вообще - пусть ЕКорепанов бежит и фотографирует. У меня тормоза нормальные 
Сергей. Все будет хорошо! Грязезащита для рамных автомобилей.
-
EKorepanov
- Сообщения: 558
- Зарегистрирован: 21 янв 2006, 23:40
- Откуда: Москва
- Благодарил (а): 35 раз
- Поблагодарили: 13 раз
Re: После ночной стоянки пропадают тормоза. Куда копать?
Спасибо за советы! К сожалению, из-за работы не было времени вчера и сегодня заниматься машиной. Завтра пойду тестить. Пока себя успокаиваю версией 999serj-а про намокание колодок. Дело в том, что перед первым траблом оставил машину на краю дороги, чего обычно не делаю и ее целый день поливали из лужи, проезжающие мимо, что видно по засранному кузову. И, вспомнил, что когда отъезжал от обочины, с правой (чистой) стороны при торможении раздавались характерные звуки прихвата колодок (такой глухой прерывистый скрежет), а с левой (грязной) стороны все тихо (скользит). То же (забрызгивание левой стороны) могло повториться и у дома во вторую ночь. К сожалению, заскочить на сервис до выходных не получится, чтобы понять есть течь в циллиндре или нет.
Эх. Завтра рискну - попробую просушить в движении, наблюдая за уровнем тормозной жидкости и пр.
Эх. Завтра рискну - попробую просушить в движении, наблюдая за уровнем тормозной жидкости и пр.
Montero Sport XLS, 2001, 3 л, 6G72
- Дёма
- Сообщения: 1797
- Зарегистрирован: 19 июн 2008, 20:52
- Двигатель:: 6g72
- Мой автомобиль(и):: pajero sport
- Откуда: Зеленоград
- Откуда: Зеленоград
- Благодарил (а): 76 раз
- Поблагодарили: 50 раз
Re: После ночной стоянки пропадают тормоза. Куда копать?
Ну точно - колодки мокрые. Я этой зимой в рыхлый снег припарковался на день и метель была. Пока горячие диски и супорта снег таял. вечером тормозов небыло. Правда педаль при намокших колодках жёсче не становится, просто давить сильнее надо. Так что не парься. Ну а тормозуху сменить в любом случае не помешает.
pajero sport 08г 6g72 акпп
Рajero4 15г 3.0 акпп
Рajero4 15г 3.0 акпп
- SNOOPER
- Модератор
- Сообщения: 56894
- Зарегистрирован: 11 дек 2004, 19:49
- Двигатель:: 4D56
- Мой автомобиль(и):: NewMPS
- Откуда: 78
- Откуда: Spb
- Благодарил (а): 1007 раз
- Поблагодарили: 4665 раз
Re: После ночной стоянки пропадают тормоза. Куда копать?
А то.................. номера разъёмовCaptain Sergio писал(а): Че, правда его нет на бензинках?
- Captain Sergio
- Сообщения: 4557
- Зарегистрирован: 30 янв 2012, 22:01
- Двигатель:: 4G18
- Мой автомобиль(и):: Pajero Пинин, 1999, АКПП, BMW X5
- Откуда: Ульяновск
- Благодарил (а): 264 раза
- Поблагодарили: 345 раз
Re: После ночной стоянки пропадают тормоза. Куда копать?
Номера, номера. Можешь не сомневаться.
Сергей. Все будет хорошо! Грязезащита для рамных автомобилей.
- SNOOPER
- Модератор
- Сообщения: 56894
- Зарегистрирован: 11 дек 2004, 19:49
- Двигатель:: 4D56
- Мой автомобиль(и):: NewMPS
- Откуда: 78
- Откуда: Spb
- Благодарил (а): 1007 раз
- Поблагодарили: 4665 раз
Re: После ночной стоянки пропадают тормоза. Куда копать?
Я то не сомниваюсь. Я на будующие.Captain Sergio писал(а):Номера, номера. Можешь не сомневаться.
Если звездочка указывает на различия по номерам разъёмов, то будут указаны все модификации где они, разъёмы применялись.
Как здесь и вышло. Не применялось и нет упоминания.
- Дёма
- Сообщения: 1797
- Зарегистрирован: 19 июн 2008, 20:52
- Двигатель:: 6g72
- Мой автомобиль(и):: pajero sport
- Откуда: Зеленоград
- Откуда: Зеленоград
- Благодарил (а): 76 раз
- Поблагодарили: 50 раз
Re: После ночной стоянки пропадают тормоза. Куда копать?
я никаких датчиков на вакумнике не видел и на шланге к нему тоже.
pajero sport 08г 6g72 акпп
Рajero4 15г 3.0 акпп
Рajero4 15г 3.0 акпп
