Страница 1 из 2
задачка! помогайте! при выключении ключа в офф - питание+
Добавлено: 06 мар 2015, 21:50
Алекскот
Ключ при положении OF похоже остается в положении АСС....( Не выключается магнитола часы.. Подсветка ключа...может еще че)..... К сожалению электрика замка не причем! (разьемы проводов к замку рассоединил..ничего не дало.) Отсоединил разьем датчкика наличия ключа в ЗАМКЕ-Подсветка ключа потухла.. Магнитолу ручками выключаю... Но к сожалению за пару дней все равно высаживает АККУМ!!!!. Повынимал почти все доступные реле.. - Магнитолка без ключа так работает сцучка... Пару дней провозился... Спасайте - схемы так толковой и не нашел. Где искать? началось ни того ни с чего.. Сигналку отключал - аналогично...
Паджерка2...97Г. арабка..3.5литра..
Re: задачка! помогайте! при выключении ключа в офф - питани
Добавлено: 07 мар 2015, 06:59
Captain Sergio
В сиысле схемы нет? В разделе Электрика в топе висит.
Re: задачка! помогайте! при выключении ключа в офф - питани
Добавлено: 07 мар 2015, 07:00
Captain Sergio
Это замок без вариантов. Сегодня гляну и скажу провод какого цвета сдернуть для проверки.
Re: задачка! помогайте! при выключении ключа в офф - питани
Добавлено: 07 мар 2015, 14:10
Алекскот
В том то и дело, что замок я вообще отсоединял- думал.в нем проблемма.. Но магнитолка так и не погасла!

..сигналку тоже отсоеденил..может там в положении АСС врубается реле какая то.и она залипла? Но на схеме не могу.найти продолжение от провода АСС..
Re: задачка! помогайте! при выключении ключа в офф - питани
Добавлено: 08 мар 2015, 16:30
Deem-On
Алекскот писал(а):В том то и дело, что замок я вообще отсоединял- думал.в нем проблемма.. Но магнитолка так и не погасла!

..сигналку тоже отсоеденил..может там в положении АСС врубается реле какая то.и она залипла? Но на схеме не могу.найти продолжение от провода АСС..
Реле там никакой нету. Провод АСС синий с желтым, на схеме 4А-12, продолжение на след. странице, идет на предохранители 4, 5, 9,10. Замерь на нем напряжение при отсоединенном разъеме замка. Если оно там есть, искать откуда взялось. Возможно сама магнитола виновата, или провода, что к ней подходят, а то бывает криворукие установщики там такого новоротят...
Re: задачка! помогайте! при выключении ключа в офф - питани
Добавлено: 08 мар 2015, 16:34
SNOOPER
Думаю перемычка под крылом дурит.

Re: задачка! помогайте! при выключении ключа в офф - питани
Добавлено: 08 мар 2015, 18:35
Deem-On
Не, перемычки тут никаким боком не прокатывают, они ни к замку, ни тем более к АСС не относятся, через них идет свет и габариты. Да, и еще и опорное напряжения для генератора. Здесь где-то постоянный плюс контачит с проводом АСС, осталось только найти где

Re: задачка! помогайте! при выключении ключа в офф - питани
Добавлено: 08 мар 2015, 18:43
Алекскот
Вот вот... а если нет реле - тут вообще затуп.. может конечно в магнитоле.. но так чтоб само по себе замкнулось......
Re: задачка! помогайте! при выключении ключа в офф - питани
Добавлено: 08 мар 2015, 18:45
Алекскот
А можно цепочку асс выложить.. Я че то на схеме не найду куда пошла
Re: задачка! помогайте! при выключении ключа в офф - питани
Добавлено: 08 мар 2015, 18:50
asferrum
если магнитолу скидывать будете,то просто снятие с фишки возможно ничего не даст.
смотрите на магнитоле толстый желтый и потоньше красный провода(на стандартных,не штатных(!!!) магнитолках обычно так),их при установке обычно коротят на общий,прямой плюс,чтоб магнитолу можно было слушать и без ключа в замке.
если там так сделано,то музыка и не должна выключаться,но вот если раньше она выключалась.... то смотрите питание на этих проводах.
постоянный плюс-это толстый желтый,приходящий с замка-потоньше красный.
по идее,это либо замок(вроде исключили уже),либо переплав изоляции в жгуте(это жопа

).
ну или где-то зачищенные концы плюсов потеряли изоленту-это попроще хоть.
Re: задачка! помогайте! при выключении ключа в офф - питани
Добавлено: 08 мар 2015, 19:35
Deem-On
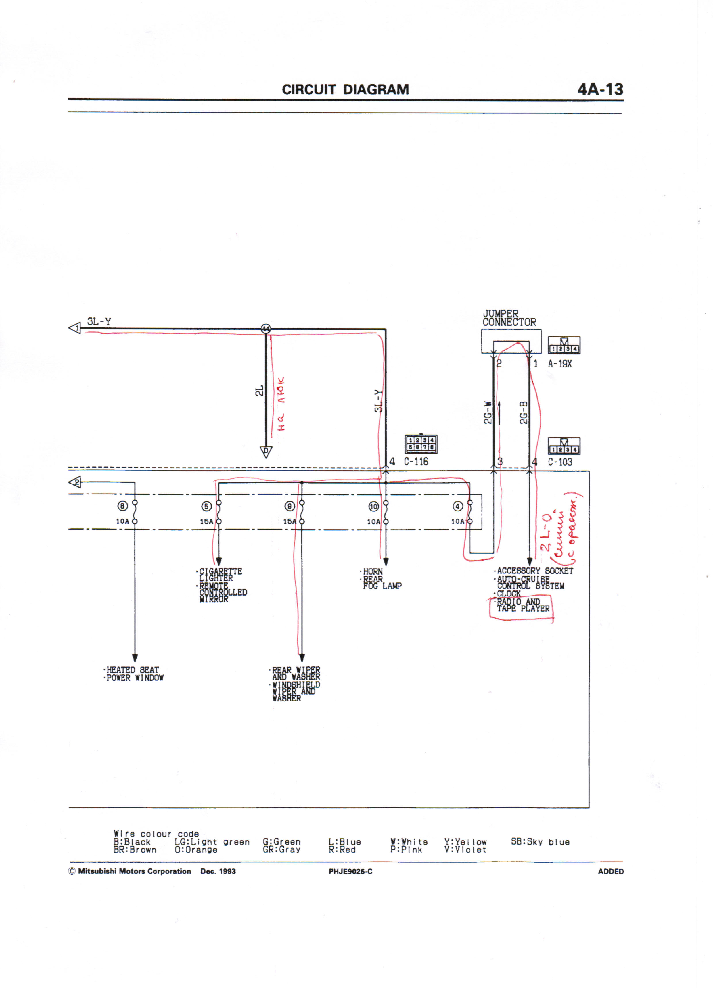
Алекскот писал(а):А можно цепочку асс выложить.. Я че то на схеме не найду куда пошла
Лови:
Re: задачка! помогайте! при выключении ключа в офф - питани
Добавлено: 08 мар 2015, 19:49
Captain Sergio
Не успел

Re: задачка! помогайте! при выключении ключа в офф - питани
Добавлено: 08 мар 2015, 21:06
SNOOPER
Deem-On писал(а):Не, перемычки тут никаким боком не прокатывают, они ни к замку, ни тем более к АСС не относятся, через них идет свет и габариты. Да, и еще и опорное напряжения для генератора. Здесь где-то постоянный плюс контачит с проводом АСС, осталось только найти где

Ищи, ищи.
Я говорю что сам делал.

Re: задачка! помогайте! при выключении ключа в офф - питани
Добавлено: 08 мар 2015, 21:52
Deem-On
SNOOPER писал(а):Deem-On писал(а):Не, перемычки тут никаким боком не прокатывают, они ни к замку, ни тем более к АСС не относятся, через них идет свет и габариты. Да, и еще и опорное напряжения для генератора. Здесь где-то постоянный плюс контачит с проводом АСС, осталось только найти где

Ищи, ищи.
Я говорю что сам делал.

А вот отсюда прошу поподробней: какая была неисправность, что делал и что получил в результате, чисто профессиональный интерес, так сказать.
Re: задачка! помогайте! при выключении ключа в офф - питани
Добавлено: 08 мар 2015, 21:57
SNOOPER
Да тоже была машина не гасли часы музон и ещё что то. Аккум высаживало.
Пока искал нашел перемычку скисшую всю. Восстановил и все заработало как надо.
Хотя да, там вроде как АСС не присутствует, но тем не менее.
Может это и не АСС а IGN2 вообще дурит.
Не разбирался, ибо незачем.

Re: задачка! помогайте! при выключении ключа в офф - питани
Добавлено: 09 мар 2015, 08:15
Deem-On
Все равно не убедил. Я тоже могу рассказать кучу историй различных неисправностей, вроде с первого взгляда нелогичных и между собой не связанных, но в итоге причинно-следственная связь всегда находилась, и для меня, как инженера, это важно. А здесь я ее, ну хоть убей, не вижу. Не привык работать "методом тыка", любая практика должна быть подтверждена теорией.
Re: задачка! помогайте! при выключении ключа в офф - питани
Добавлено: 09 мар 2015, 09:51
SNOOPER
Deem-On писал(а):Все равно не убедил. Я тоже могу рассказать кучу историй различных неисправностей, вроде с первого взгляда нелогичных и между собой не связанных, но в итоге причинно-следственная связь всегда находилась, и для меня, как инженера, это важно. А здесь я ее, ну хоть убей, не вижу. Не привык работать "методом тыка", любая практика должна быть подтверждена теорией.
Ну да, ну да........ теоретег.
Причинно-следственная связь есть всегда. Только можно год разводить теории что такое вдруг сломалось на "практически новой машине". Смотреть схемы, делать умный вид, и выносить мозг людям не обращая внимание на то что за полчаса "джумшут" может такого с проводкой наворотить что и ни в какой теории не приснится. А уж сколько этих "джумшутов" в данной "новой машине" было за 21-н год, знает наверное только СК.
Сорри но в данной ситуации думаю Вам придётся быть в одиночестве. Не уверен что найдётся много желающих коллективно пованговать.

Re: задачка! помогайте! при выключении ключа в офф - питани
Добавлено: 09 мар 2015, 11:03
Deem-On
Говоря про теорию и практику я имел ввиду то, что когда руки что-то делают, голова должна по крайней мере иметь представление о том, что это такое, как оно устроено, и что будет в результате сих манипуляций. А просто тупо скрутить провода и .... о, чудо, все заработало.. - это не мой метод, это так как раз и работают джумшуты. Безусловно, при обнаружении каких- либо косяков, в виде окисленных перемычек к примеру, их надо немедленно устранять, и если вдруг в результате неисправность пропала - то честь Вам и хвала, но причинно-следственную связь найти (пусть даже потом) всеж необходимо, иначе неисправность может потом вдруг проявиться вновь, и окажется что "дело было не в бобине..". За свою практику (а я считаю себя как раз больше практиком, чем теоретиком) приходилось много чего исправлять после косоруких "мастеров", и восстанавливать именно согласно заводской схеме. При поиске неисправности, разумеется, нельзя исключать, что проводка была кем-то ранее переделана, но это можно определить, только посмотрев на нее глазами и потрогав руками, коей возможности у меня в данном случае не было, поэтому советы давались исходя из заводской схемы. И, кстати, установка магнитолы(как и сигнализации) - это наиболее распространенное место постороннего вмешательства, и первое направление поиска туда и было указано.
Re: задачка! помогайте! при выключении ключа в офф - питани
Добавлено: 10 мар 2015, 13:57
Алекскот
Ох.. Иногда приходится все советы прорабатывать..пойду вместо обеда проверю версию с магнитолой...
Да.. а что.за перемычка? На всякий случай ее посмотрю.. Если с магнитолой не прокатит.
И вот я думаю- за день основательно просаживает-чувствую хуже крутит стартерок... часы и маг врядли столько кушают!! Что еще может много кушать в дежурном режиме...
Re: задачка! помогайте! при выключении ключа в офф - питани
Добавлено: 10 мар 2015, 18:09
Алекскот
Снятие магнитолы дело не решило...