TRT - Вдоль р.Киржач. Для стандартных 4х4 (08.11.25) Форум Обсуждение FAQ
Проблемы с электропроводкой
Модераторы: SNOOPER, Nbf, Romik, BAlex, drcham, алексей - Маленький Мук
- Yura.nsk
- Сообщения: 298
- Зарегистрирован: 07 мар 2014, 06:34
- Двигатель:: 6G74 Бензин
- Мой автомобиль(и):: Pajero 2
- Откуда: NSK
- Благодарил (а): 4 раза
- Поблагодарили: 4 раза
Проблемы с электропроводкой
Уважаемые форумчане, всем привет! Появился кое какой трабл в проводке. Ехал я по трассе, скончался гена, обратно доехал я с помощью буксировки) поставил нового, от патрика, т.к. бу паджеровский по цене был равен новому 5к. Проездил я день нормально, но... на след день почему то напряжение на ближний свет фар упало до 7в((( и провода греются. Проверил мультиметром гену, норм выдает 13, 69 где то так, старый гена умерал долго похоже, т.к. с новым заработали часы и прикуриватели. Прозвонил внешнюю проводку везде 7, а дальше уходит в кузов уже. Предохраниетлей я не нашел на фары, все остальные целые. В чем может быть проблема?
- Captain Sergio
- Сообщения: 4557
- Зарегистрирован: 30 янв 2012, 22:01
- Двигатель:: 4G18
- Мой автомобиль(и):: Pajero Пинин, 1999, АКПП, BMW X5
- Откуда: Ульяновск
- Благодарил (а): 264 раза
- Поблагодарили: 345 раз
Re: Проблемы с электропроводкой
Массу я бы посмотрел. Проверь точки соединения с кузовом.
Сергей. Все будет хорошо! Грязезащита для рамных автомобилей.
- Yura.nsk
- Сообщения: 298
- Зарегистрирован: 07 мар 2014, 06:34
- Двигатель:: 6G74 Бензин
- Мой автомобиль(и):: Pajero 2
- Откуда: NSK
- Благодарил (а): 4 раза
- Поблагодарили: 4 раза
Re: Проблемы с электропроводкой
Может диодный мост навернулся, у меня на волге 3110 он раз 5 так наворачивался, салон весь обестачивало? Где он там вообще?
-
toliksib
- Сообщения: 448
- Зарегистрирован: 02 фев 2013, 16:15
- Двигатель:: 6G72
- Мой автомобиль(и):: Mitsubishi Pajero II
- Откуда: Новосибирск
- Благодарил (а): 2 раза
- Поблагодарили: 17 раз
Re: Проблемы с электропроводкой
Ну и причём тут диодный мост ?Yura.nsk писал(а): ... Проверил мультиметром гену, норм выдает 13, 69 где то так, ..
Ищи утечку тока.
В крыле есть связка проводов, плюсы там соединяются перемычками, и эти перемычки сгнивают частично, вот и утечка например (сталкивался с такой проблемой, перемычки превратились в труху, все концы зачистил, скрутил, заизолировал - порядок восстановился).
-----
-
Жан Сем
- Сообщения: 2
- Зарегистрирован: 26 июл 2015, 10:10
- Двигатель:: 6g72
- Мой автомобиль(и):: Pajero 2
- Откуда: Ереван
Re: Проблемы с электропроводкой
Всем привет . Помогите плиззз у меня паджеро 2 все работало нормально . Стоял в гараже решил покрасить когда закончил хотел снять с гаража поставил на драйв машина стала плохо трогаться с места примерно при 3000 оборотов но когда ставлью на 2 или на Л машина еде супер . Со задним ни каких проблем . Отвез машину на диагностику сказали есть кароткое замыкание . У меня на машине стоит парктроник и камера в последние дни камера стала не работать и еще задний правый сенсор парктроника срезали чтобы снять шит но камера работала . Помогите плиз:-(
- Yura.nsk
- Сообщения: 298
- Зарегистрирован: 07 мар 2014, 06:34
- Двигатель:: 6G74 Бензин
- Мой автомобиль(и):: Pajero 2
- Откуда: NSK
- Благодарил (а): 4 раза
- Поблагодарили: 4 раза
Re: Проблемы с электропроводкой
Поменял полярность на генераторе, сейчас 14 вольт, но горит лампа в салоне аккумулятоа и лампа ат. Акум заряжается тк 14 вольт на него подается. Имхо только когда машина спит, вытягивает аккумулятор, что за фигня? Может в салоне лампа горит из за избыточности напруги?toliksib писал(а):Ну и причём тут диодный мост ?Yura.nsk писал(а): ... Проверил мультиметром гену, норм выдает 13, 69 где то так, ..
Ищи утечку тока.
В крыле есть связка проводов, плюсы там соединяются перемычками, и эти перемычки сгнивают частично, вот и утечка например (сталкивался с такой проблемой, перемычки превратились в труху, все концы зачистил, скрутил, заизолировал - порядок восстановился).
----------
-
toliksib
- Сообщения: 448
- Зарегистрирован: 02 фев 2013, 16:15
- Двигатель:: 6G72
- Мой автомобиль(и):: Mitsubishi Pajero II
- Откуда: Новосибирск
- Благодарил (а): 2 раза
- Поблагодарили: 17 раз
Re: Проблемы с электропроводкой
Это как так можно на генераторе поменять полярность ? Неужели плюсовой провод с аккумулятора ты посадил на корпус, а минусовой посадил на плюсовой вывод генератора ? Если таким образом, то генератор даёт зарядку, но идёт обратная перезарядка аккумулятора, то есть он у тебя практически разряжается. Практически ты сделал КЗ, вот и разрядил аккум. И лампочка у тебя поэтому показывает разряд.Yura.nsk писал(а): Поменял полярность на генераторе, сейчас 14 вольт, но горит лампа в салоне аккумулятоа и лампа ат. Акум заряжается тк 14 вольт на него подается. Имхо только когда машина спит, вытягивает аккумулятор, что за фигня? Может в салоне лампа горит из за избыточности напруги?
В итоге такими экспериментами ты вообще можешь машину сжечь !
-----
- Yura.nsk
- Сообщения: 298
- Зарегистрирован: 07 мар 2014, 06:34
- Двигатель:: 6G74 Бензин
- Мой автомобиль(и):: Pajero 2
- Откуда: NSK
- Благодарил (а): 4 раза
- Поблагодарили: 4 раза
Re: Проблемы с электропроводкой
Толя, там 3 разъема, один b+ другой w, провода тонкий белый и толстый желтый. 3й нельзя перепутать. Я подключил толстый желтый на b +, w на массу тонкий белый, w звонится с массой. Пищит. Мультиметр. На приборке горит аккумулятор постоянно еще ат. В цепи 14 в. Акум заряжается, клеммы дают 14в. Но это из за того, наверн, что на патрике меньше обороты холостые. Акум за ночь вытянолу под 0 когда машина спит. Обратная полярность на гене дает в цепи 7в постоянно греются провода, лампочка не горит на приборке, когда машина спит ничего не вытягивает. Соотв 7 в на клеммах акума.
- drcham
- Модератор
- Сообщения: 14439
- Зарегистрирован: 08 апр 2006, 13:42
- Двигатель:: Бензин
- Мой автомобиль(и):: Wrangler JLU Rubicon
- Откуда: Москва
- Откуда: Москва ЮЗАО
- Благодарил (а): 62 раза
- Поблагодарили: 225 раз
- Контактная информация:
Re: Проблемы с электропроводкой
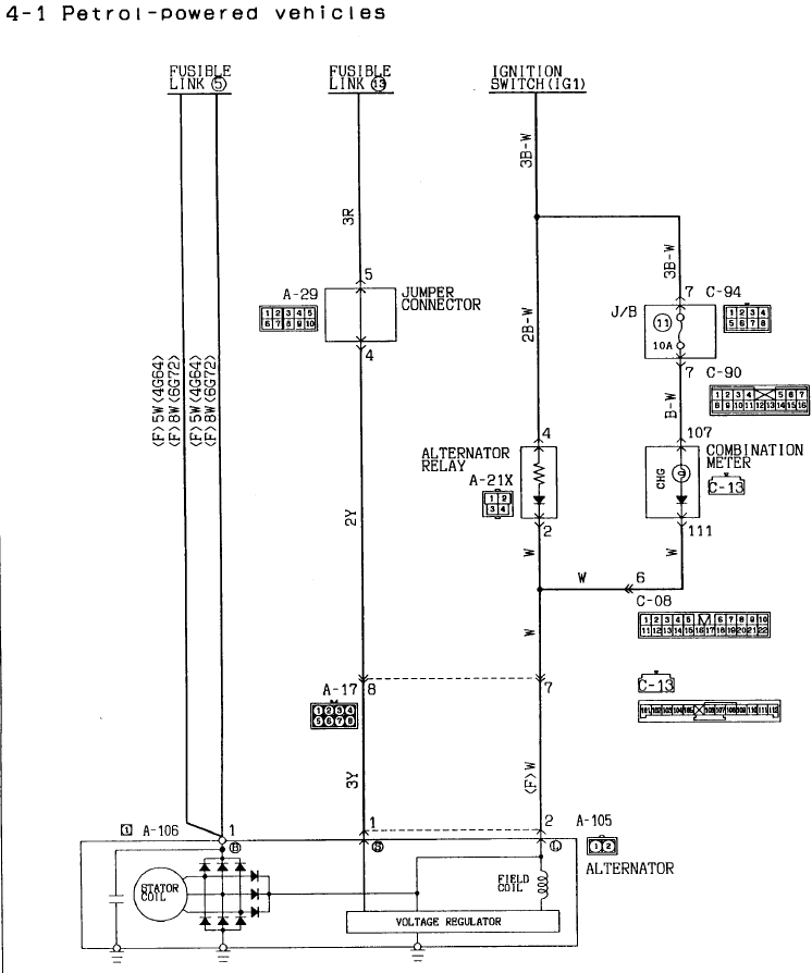
А Вы не пробовали схему открыть и посмотреть куда идут провода ?
4LO&GO! Wrangler JLU Rubicon
- Yura.nsk
- Сообщения: 298
- Зарегистрирован: 07 мар 2014, 06:34
- Двигатель:: 6G74 Бензин
- Мой автомобиль(и):: Pajero 2
- Откуда: NSK
- Благодарил (а): 4 раза
- Поблагодарили: 4 раза
Re: Проблемы с электропроводкой
На уаз форуме советуют w с напр 7в оставить пустым, а кинуть желтый и белый провод на d, это d а не b +
Ура, народ это помогло! приборку и бортовую цепь кинул на D, +акума на B+ оставил, W - пустое все работает, лампочка не горит.
Ура, народ это помогло! приборку и бортовую цепь кинул на D, +акума на B+ оставил, W - пустое все работает, лампочка не горит.
- Yura.nsk
- Сообщения: 298
- Зарегистрирован: 07 мар 2014, 06:34
- Двигатель:: 6G74 Бензин
- Мой автомобиль(и):: Pajero 2
- Откуда: NSK
- Благодарил (а): 4 раза
- Поблагодарили: 4 раза
Re: Проблемы с электропроводкой
У тебя коробка в аварийный режим перешла, смотри есть на нее отдельно блок управления? прозванивать надо, мог провод отвалиться какой-нибудь в соединениях, фишках, шлейфах смотри провода, идущие от коробки.Жан Сем писал(а):Всем привет . Помогите плиззз у меня паджеро 2 все работало нормально . Стоял в гараже решил покрасить когда закончил хотел снять с гаража поставил на драйв машина стала плохо трогаться с места примерно при 3000 оборотов но когда ставлью на 2 или на Л машина еде супер . Со задним ни каких проблем . Отвез машину на диагностику сказали есть кароткое замыкание . У меня на машине стоит парктроник и камера в последние дни камера стала не работать и еще задний правый сенсор парктроника срезали чтобы снять шит но камера работала . Помогите плиз:-(
У меня на Е53 такое было TransmFailSafe и 1 скорость отключает, трогаешься на 3000 оборотов со 2й
На фото на марке контактная группа отвалилась. Попробуй сканер подключи, прочитай.
- Yura.nsk
- Сообщения: 298
- Зарегистрирован: 07 мар 2014, 06:34
- Двигатель:: 6G74 Бензин
- Мой автомобиль(и):: Pajero 2
- Откуда: NSK
- Благодарил (а): 4 раза
- Поблагодарили: 4 раза
Re: Проблемы с электропроводкой
написал, у самого 4я скорость пропала, хз электроника это или соленоид гикнулся?
- mitjaich
- Сообщения: 1080
- Зарегистрирован: 01 мар 2015, 23:01
- Двигатель:: EJ253
- Мой автомобиль(и):: SUBARU BP9 2.5L AVD
- Откуда: с-Петербург ЮГ-ЮЗ
- Благодарил (а): 118 раз
- Поблагодарили: 49 раз
Re: Проблемы с электропроводкой
жёлтый тоже не надо подключать!!!Yura.nsk писал(а):На уаз форуме советуют w с напр 7в оставить пустым, а кинуть желтый и белый провод на d, это d а не b +
Ура, народ это помогло! приборку и бортовую цепь кинул на D, +акума на B+ оставил, W - пустое все работает, лампочка не горит.
Лучше быть хорошим человеком ругающимся матом, чем тихой воспитанной тварью
https://vk.com/id6213743
Главное не марка машины! А люди с которыми ты общаешься!
https://vk.com/id6213743
Главное не марка машины! А люди с которыми ты общаешься!
- Yura.nsk
- Сообщения: 298
- Зарегистрирован: 07 мар 2014, 06:34
- Двигатель:: 6G74 Бензин
- Мой автомобиль(и):: Pajero 2
- Откуда: NSK
- Благодарил (а): 4 раза
- Поблагодарили: 4 раза
Re: Проблемы с электропроводкой
Тогда нет питания на внутренние потребители, d 12v, w 7v, пока ничего не вытягивает)
- mitjaich
- Сообщения: 1080
- Зарегистрирован: 01 мар 2015, 23:01
- Двигатель:: EJ253
- Мой автомобиль(и):: SUBARU BP9 2.5L AVD
- Откуда: с-Петербург ЮГ-ЮЗ
- Благодарил (а): 118 раз
- Поблагодарили: 49 раз
Re: Проблемы с электропроводкой
что такое внутрение потребители? контакт W на генераторе это выход на тахометр для некоторых машин.
а контакт D это запуск генератора через лампочку в приборке по белому проводку.
жёлтый подавал опорный + на митсовский генер. на нашем гене. он не нужен!
а контакт D это запуск генератора через лампочку в приборке по белому проводку.
жёлтый подавал опорный + на митсовский генер. на нашем гене. он не нужен!
Лучше быть хорошим человеком ругающимся матом, чем тихой воспитанной тварью
https://vk.com/id6213743
Главное не марка машины! А люди с которыми ты общаешься!
https://vk.com/id6213743
Главное не марка машины! А люди с которыми ты общаешься!
- Yura.nsk
- Сообщения: 298
- Зарегистрирован: 07 мар 2014, 06:34
- Двигатель:: 6G74 Бензин
- Мой автомобиль(и):: Pajero 2
- Откуда: NSK
- Благодарил (а): 4 раза
- Поблагодарили: 4 раза
Re: Проблемы с электропроводкой
ХЗ но я бросил белый провод и желтый на D, на B+ толстый, цвет не помню, W оставил пустым, все работает) В родном эти оба провода тоже в фишке были подключены. А так на разборке 5 тыщ стоит родной и от патрика столько же, выбор пал на новый, только крепления колхозить пришлосьmitjaich писал(а):что такое внутрение потребители? контакт W на генераторе это выход на тахометр для некоторых машин.
а контакт D это запуск генератора через лампочку в приборке по белому проводку.
жёлтый подавал опорный + на митсовский генер. на нашем гене. он не нужен!
- mitjaich
- Сообщения: 1080
- Зарегистрирован: 01 мар 2015, 23:01
- Двигатель:: EJ253
- Мой автомобиль(и):: SUBARU BP9 2.5L AVD
- Откуда: с-Петербург ЮГ-ЮЗ
- Благодарил (а): 118 раз
- Поблагодарили: 49 раз
Re: Проблемы с электропроводкой
ну и пусть работает! но жёлтый провод ОТКУСИ!!!
Лучше быть хорошим человеком ругающимся матом, чем тихой воспитанной тварью
https://vk.com/id6213743
Главное не марка машины! А люди с которыми ты общаешься!
https://vk.com/id6213743
Главное не марка машины! А люди с которыми ты общаешься!
