нигде не нашел в форуме. Но помню где-то проскакивало что-то
давайте вместе подумаем как подключить в нашем авто на 4D56 дополнительный иммобилайзер.
я говорю про скрытое реле установки от сигнализации с иммобилайзером
причем мы понимаем, что у такого реле только одна контактная группа, нормально замкнутая.
и контактная группа слаботочная.
И мы говорим, что в результате этой установки не будет внесено помех в работу датчиков, ECU, т.е. работать будет стабильно
ко всем этим подключениям должен быть доступ с салона без большого разбора торпеды и так, чтобы не найдешь просто так
1. у меня стоит задача не дать завести машину
2. Возможно кто-то предложит как надежно глушить на ходу
пока я вижу несколько точек включения:
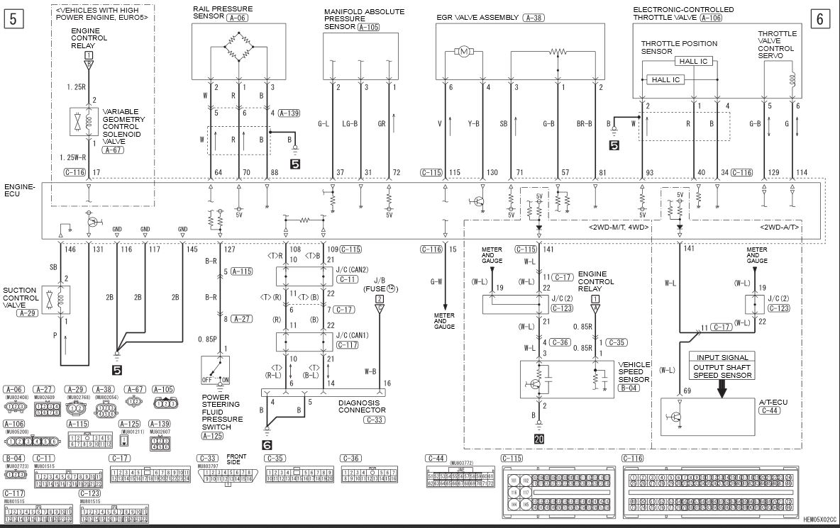
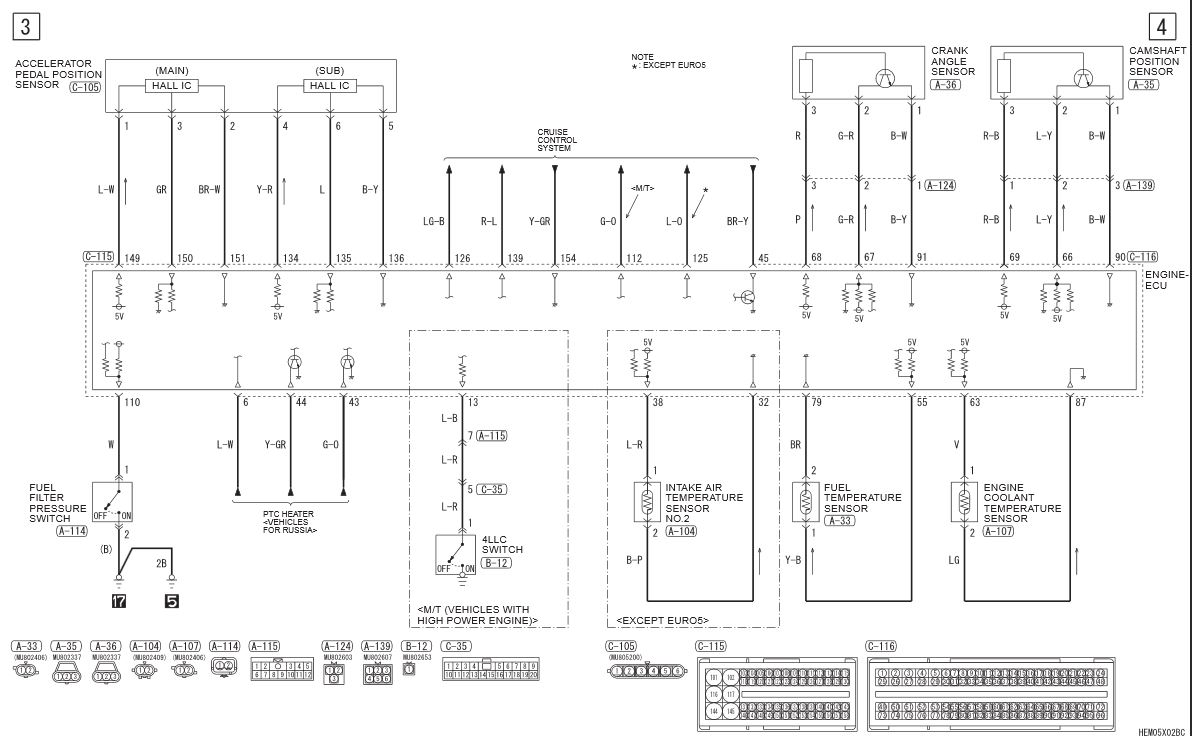
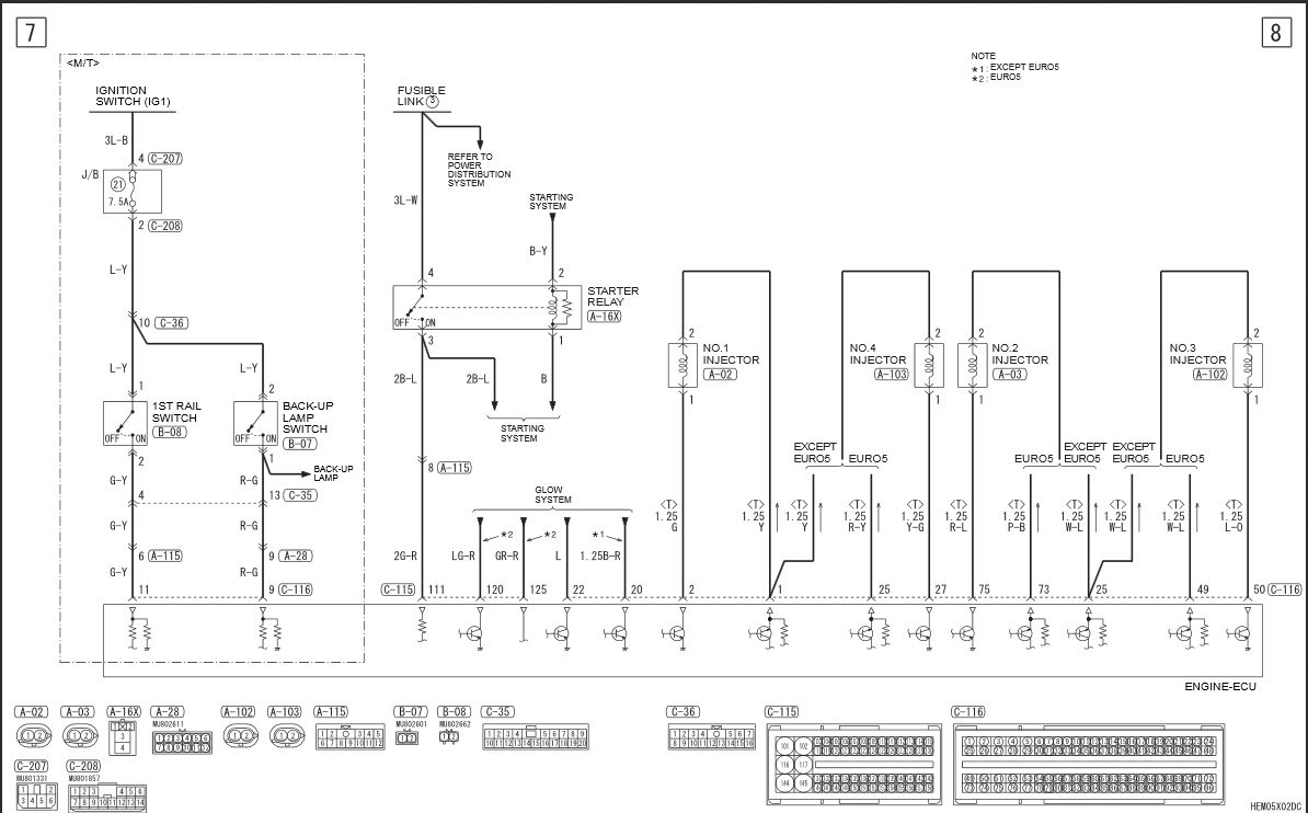
1. отрываем землю у датчиков Crank Angle Sensor и Camshaft Position Sensor. Вывод 90 и 91 разъема C166. Вроде по схеме это земля и наверно ее можно объеденить и рвать общую землю
2. Рвем 5В на Rail Pressure Sensor. Вывод 70, разъем С-166
3. В иммобилайзере штатном рвать сигнал от метки ключа
4. Возможно рвать один из проводов CAN на входе в ECU
чтобы было удобнее думать вкладываю схемы ECU
и иммобилайзер на всякий случай Дополнение: вот еще наткнулся на связанную тему и видимо оттуда почерпнул указанную выше информация
(прошу прощения идеи собирал долго и не отложилось что здесь на форуме была информация. а когда реально понадобилось поиском не смог найти)
http://pajero4x4.ru/bbs/phpBB2/viewtopi ... 9&t=134814
и еще в форуме Outlander наткнулся на классную идею
что-нибудь сделать с разъемом OBD-II чтобы он был не работоспособен
(спрятать, отрезать разъем, и т.п)
