TRT - Вдоль р.Киржач. Для стандартных 4х4 (08.11.25) Форум Обсуждение FAQ
Паджеро 3 подсветка порогов, принцип работы.
Модераторы: SNOOPER, Nbf, Romik, BAlex, drcham, DenVer
-
Magudo
- Сообщения: 440
- Зарегистрирован: 13 окт 2014, 07:38
- Двигатель:: 4м41
- Мой автомобиль(и):: Pajero 3
- Откуда: Moscow
- Благодарил (а): 7 раз
- Поблагодарили: 3 раза
Паджеро 3 подсветка порогов, принцип работы.
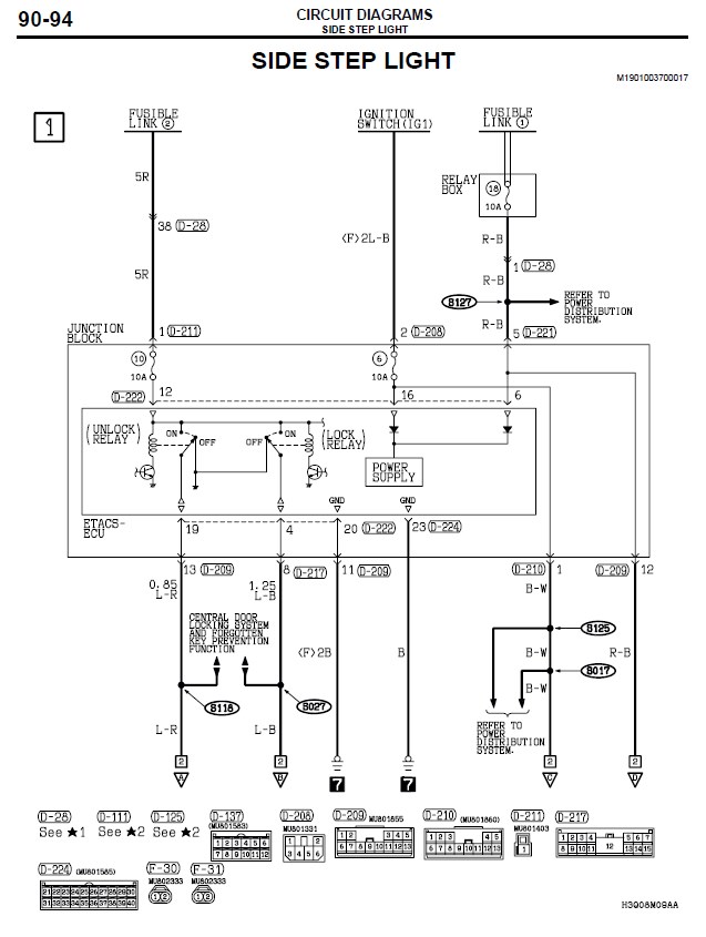
Всем привет!
У меня П3 рестайл.
Изначально машина была с силовыми порогами, соответсвенно подсветка была отключена.
Теперь хочется восстановить подсветку.
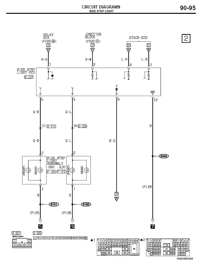
Проблема: на проводах к подсветке не получается получить 12В. Ни с одной ни с другой стороны. Провода уходят в жгут, который проходит в пороге около задних пассажиров.
Пробовал с габаритами и с открытыми дверями.
Хочется понять, в каких случаях она (подсветка) должна светить?
Нашел мануал на монтеро. По схеме получается что включаться подсветка должна при открытых дверях. Так?
Прошу помощи. У кого работает подсветка? Спасибо!
У меня П3 рестайл.
Изначально машина была с силовыми порогами, соответсвенно подсветка была отключена.
Теперь хочется восстановить подсветку.
Проблема: на проводах к подсветке не получается получить 12В. Ни с одной ни с другой стороны. Провода уходят в жгут, который проходит в пороге около задних пассажиров.
Пробовал с габаритами и с открытыми дверями.
Хочется понять, в каких случаях она (подсветка) должна светить?
Нашел мануал на монтеро. По схеме получается что включаться подсветка должна при открытых дверях. Так?
Прошу помощи. У кого работает подсветка? Спасибо!
- SmoAG
- Сообщения: 7842
- Зарегистрирован: 16 янв 2015, 13:11
- Двигатель:: 4m41
- Мой автомобиль(и):: Pajero 3, 2005 АКПП
- Откуда: Воронеж
- Откуда: Воронеж
- Благодарил (а): 99 раз
- Поблагодарили: 541 раз
Re: Паджеро 3 подсветка порогов, принцип работы.
У меня работает когда машина заглушена и выходя подсветка загорается.
Здесь должна была быть какая-нибудь цитата из вк или другого ресурса, но вот что то не нашёл ни чего что могло бы выразить моё миропонимание сейчас;)
- Goosve
- Сообщения: 777
- Зарегистрирован: 04 авг 2012, 18:56
- Двигатель:: Бензин, 3,5 GDI
- Мой автомобиль(и):: Pajero III
- Откуда: Оттуда, куда Москва лопнула
- Благодарил (а): 46 раз
- Поблагодарили: 21 раз
Re: Паджеро 3 подсветка порогов, принцип работы.
Привет. У меня подсветка горит после закрытия всех дверей(когда мотор заглушен), если не ставить на охрану, пока не погаснет центральная лапа салона, та что над торпедой. Они синхронно гаснут.
-
Magudo
- Сообщения: 440
- Зарегистрирован: 13 окт 2014, 07:38
- Двигатель:: 4м41
- Мой автомобиль(и):: Pajero 3
- Откуда: Moscow
- Благодарил (а): 7 раз
- Поблагодарили: 3 раза
Re: Паджеро 3 подсветка порогов, принцип работы.
При этом салонная лампа включена или выключена?SmoAG писал(а):У меня работает когда машина заглушена и выходя подсветка загорается.
Привет. Понял, спасибо! Так я не пробловалGoosve писал(а):Привет. У меня подсветка горит после закрытия всех дверей(когда мотор заглушен), если не ставить на охрану, пока не погаснет центральная лапа салона, та что над торпедой. Они синхронно гаснут.
- SmoAG
- Сообщения: 7842
- Зарегистрирован: 16 янв 2015, 13:11
- Двигатель:: 4m41
- Мой автомобиль(и):: Pajero 3, 2005 АКПП
- Откуда: Воронеж
- Откуда: Воронеж
- Благодарил (а): 99 раз
- Поблагодарили: 541 раз
Re: Паджеро 3 подсветка порогов, принцип работы.
От салонной лампы это не зависит, у меня она настроена так что загорается при открытии дверей, но сегодня утром пробовал отключить ее, подсветка все равно горит в порогах, около 30 секунд, либо пока на охрану не поставишь.
Здесь должна была быть какая-нибудь цитата из вк или другого ресурса, но вот что то не нашёл ни чего что могло бы выразить моё миропонимание сейчас;)
-
Magudo
- Сообщения: 440
- Зарегистрирован: 13 окт 2014, 07:38
- Двигатель:: 4м41
- Мой автомобиль(и):: Pajero 3
- Откуда: Moscow
- Благодарил (а): 7 раз
- Поблагодарили: 3 раза
Re: Паджеро 3 подсветка порогов, принцип работы.
Понял, буду пробовать. Спасибо!SmoAG писал(а):От салонной лампы это не зависит, у меня она настроена так что загорается при открытии дверей, но сегодня утром пробовал отключить ее, подсветка все равно горит в порогах, около 30 секунд, либо пока на охрану не поставишь.
- игорьнижневартовск
- Сообщения: 666
- Зарегистрирован: 18 сен 2010, 14:07
- Двигатель:: 6G74 GDI
- Мой автомобиль(и):: Pajero 3 коротыш
- Откуда: Нижневартовск
- Благодарил (а): 8 раз
- Поблагодарили: 25 раз
Re: Паджеро 3 подсветка порогов, принцип работы.
У меня такой же алгоритм работы подсветки порогов, при постановке на охрану гаснут сразу же.SmoAG писал(а):От салонной лампы это не зависит, у меня она настроена так что загорается при открытии дверей, горит в порогах, около 30 секунд, либо пока на охрану не поставишь.
PAJERO III 2006г DAKAR коротыш черный
- SmoAG
- Сообщения: 7842
- Зарегистрирован: 16 янв 2015, 13:11
- Двигатель:: 4m41
- Мой автомобиль(и):: Pajero 3, 2005 АКПП
- Откуда: Воронеж
- Откуда: Воронеж
- Благодарил (а): 99 раз
- Поблагодарили: 541 раз
Re: Паджеро 3 подсветка порогов, принцип работы.
у меня медленно затухают
Здесь должна была быть какая-нибудь цитата из вк или другого ресурса, но вот что то не нашёл ни чего что могло бы выразить моё миропонимание сейчас;)
- moonchild
- Сообщения: 690
- Зарегистрирован: 15 сен 2015, 18:48
- Двигатель:: 6G74 GDI
- Мой автомобиль(и):: Pajero III 3,5 GDI eXclusive 2004 г. (продан)
- Откуда: Верхняя Салда
- Благодарил (а): 55 раз
- Поблагодарили: 61 раз
Re: Паджеро 3 подсветка порогов, принцип работы.
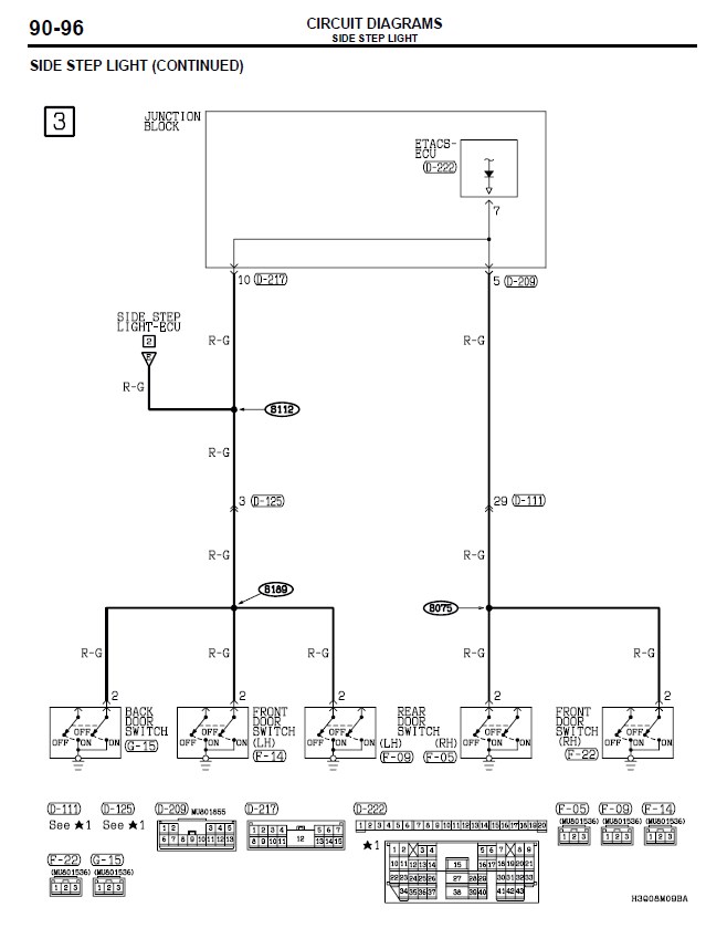
Открытие замков ключем - включается подсветка.
Открытие/закрытие двери, зажигание выкл. - включается подсветка.
Открытие/закрытие двери. зажигание вкл. - подсветка не включается.
Закрытие замков ключем при включенной подсветке - выключение подсветки плавным угасанием.
Открытие/закрытие двери, зажигание выкл. - включается подсветка.
Открытие/закрытие двери. зажигание вкл. - подсветка не включается.
Закрытие замков ключем при включенной подсветке - выключение подсветки плавным угасанием.
-
Magudo
- Сообщения: 440
- Зарегистрирован: 13 окт 2014, 07:38
- Двигатель:: 4м41
- Мой автомобиль(и):: Pajero 3
- Откуда: Moscow
- Благодарил (а): 7 раз
- Поблагодарили: 3 раза
Re: Паджеро 3 подсветка порогов, принцип работы.
Огромное спасибо!moonchild писал(а):Открытие замков ключем - включается подсветка.
Открытие/закрытие двери, зажигание выкл. - включается подсветка.
Открытие/закрытие двери. зажигание вкл. - подсветка не включается.
Закрытие замков ключем при включенной подсветке - выключение подсветки плавным угасанием.
