Доброй ночи, случилась такая беда, в один прекрасный день загорелась лампа открытых дверей на приборке, и не гаснет, до сих пор не гаснет.
Первым делом проверил концевики, норм, концевик задней двери отключал, ситуация та же, сигналку отключал, не помогло.
Потом заметил такой факт, когда плафон в багажнике переключаешь, в одном положении лампа гаснет, отключил плафон от разъема, эффект нулевой. И еще такая странность, когда закрываешь машину на ЦЗ ключом, лампочка промаргивает тусклее и возвращается в нормальное свечение,а когда открываешь, то гаснет в момент открытия и срабатывания реле, и вновь загорается, причем такого нет когда водительская дверь открыта, тогда горит вообще постоянно.
При нажатии на концевики, лампочка чуть тускнеет, после загорается ярче, так на всех четырех дверях.
Пробовал отключать реле ЦЗ не помогло.
Если я правильно понимаю то коротыш где- то? как грамотно его найти
Подскажите куда еще стоит обратить внимание!!!! а то какой- то полтергей прям.
Всех с наступающим Новым Годом!!!
Заранее спасибо.
Автомобиль в подписи.
Проблема в электрике, нужна помощь, лампа дверей салона!!!
Модераторы: SNOOPER, Nbf, Romik, BAlex
- Captain Sergio
- Сообщения: 4557
- Зарегистрирован: 30 янв 2012, 22:01
- Двигатель:: 4G18
- Мой автомобиль(и):: Pajero Пинин, 1999, АКПП, BMW X5
- Откуда: Ульяновск
- Благодарил (а): 264 раза
- Поблагодарили: 346 раз
Re: Проблема в электрике, нужна помощь, лампа дверей салона!
С массой скорее проблема. Отгнила где-то и ток идет через соседние цепи. Машина как в подписи?
Сергей. Все будет хорошо! Грязезащита для рамных автомобилей.
- Captain Sergio
- Сообщения: 4557
- Зарегистрирован: 30 янв 2012, 22:01
- Двигатель:: 4G18
- Мой автомобиль(и):: Pajero Пинин, 1999, АКПП, BMW X5
- Откуда: Ульяновск
- Благодарил (а): 264 раза
- Поблагодарили: 346 раз
Re: Проблема в электрике, нужна помощь, лампа дверей салона!
Давай сюда покопаем.Djexon51 писал(а):Потом заметил такой факт, когда плафон в багажнике переключаешь, в одном положении лампа гаснет, отключил плафон от разъема, эффект нулевой.
1. В каком точно положении плафон лампа гаснет? Там три - при открытии двери (Door), вообще отключен (Off), всегда горит (On).
2. Когда горит лампочка на панели плафон в салоне в положении Door тоже горит?
Последний раз редактировалось Captain Sergio 29 дек 2016, 09:58, всего редактировалось 1 раз.
Сергей. Все будет хорошо! Грязезащита для рамных автомобилей.
- Captain Sergio
- Сообщения: 4557
- Зарегистрирован: 30 янв 2012, 22:01
- Двигатель:: 4G18
- Мой автомобиль(и):: Pajero Пинин, 1999, АКПП, BMW X5
- Откуда: Ульяновск
- Благодарил (а): 264 раза
- Поблагодарили: 346 раз
Re: Проблема в электрике, нужна помощь, лампа дверей салона!
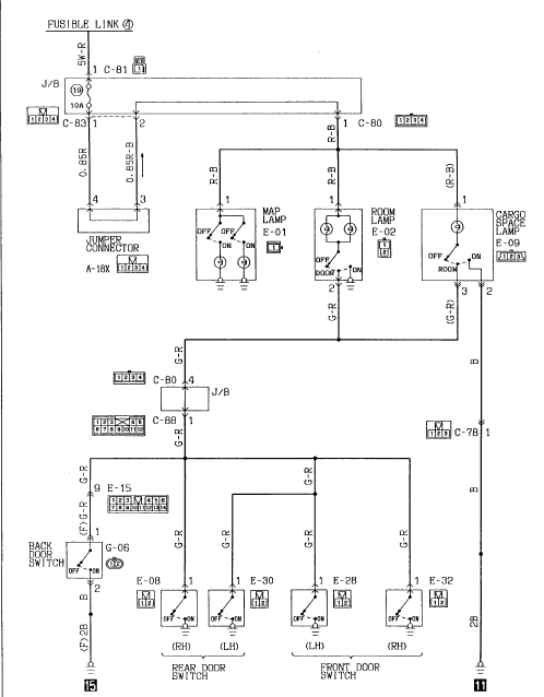
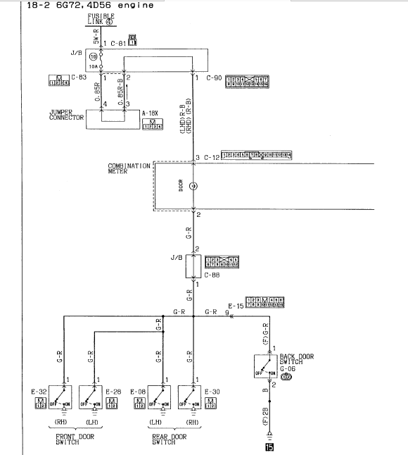
Вот схема лампы в салоне и лампы на панели.
Сергей. Все будет хорошо! Грязезащита для рамных автомобилей.
Re: Проблема в электрике, нужна помощь, лампа дверей салона!
Здравствуйте.Captain Sergio писал(а):Давай сюда покопаем.Djexon51 писал(а):Потом заметил такой факт, когда плафон в багажнике переключаешь, в одном положении лампа гаснет, отключил плафон от разъема, эффект нулевой.
1. В каком точно положении плафон лампа гаснет? Там три - при открытии двери (Door), вообще отключен (Off), всегда горит (On).
2. Когда горит лампочка на панели плафон в салоне в положении Door тоже горит?
Машина как в подписи.
1. Лампа на панели гасла в положении между Off и Door. Но очень тонко его нащупать можно, Не в конкретном положении а именно между. Причем плафон в салоне, не реагирует на такие действия.
2. Да горит и в салоне и в багажнике.
P2 91г. 2.5TD SS MKПП серый длинная база
