TRT "107-108" Для стандарта и не только! (4.04.2026) Форум Обсуждение FAQ
Mitsubishi Pajero 1992 пропал режим OD - 4-я передача
Модераторы: SNOOPER, Nbf, Romik, BAlex, drcham, алексей - Маленький Мук, ZILLA
-
Sergey-Astana
- Сообщения: 9
- Зарегистрирован: 23 июн 2017, 10:47
- Двигатель:: 6G72
- Мой автомобиль(и):: Pajero 2
- Откуда: Астана
- Благодарил (а): 2 раза
Mitsubishi Pajero 1992 пропал режим OD - 4-я передача
Ребята,нужна помощь.
У друга Паджер праворукий 3.0, 1992.
Пропал режим ОD. Если принудительно подаем 12 v на соленоид то передача включается.
Что то с электрикой, нужна схема и подсказки.
Не бросайте друзья....
У друга Паджер праворукий 3.0, 1992.
Пропал режим ОD. Если принудительно подаем 12 v на соленоид то передача включается.
Что то с электрикой, нужна схема и подсказки.
Не бросайте друзья....
-
Sergey-Astana
- Сообщения: 9
- Зарегистрирован: 23 июн 2017, 10:47
- Двигатель:: 6G72
- Мой автомобиль(и):: Pajero 2
- Откуда: Астана
- Благодарил (а): 2 раза
Re: Mitsubishi Pajero 1992 пропал режим OD - 4-я передача
С двигателем есть связь и датчик температуры движки в порядке.
-
Sergey-Astana
- Сообщения: 9
- Зарегистрирован: 23 июн 2017, 10:47
- Двигатель:: 6G72
- Мой автомобиль(и):: Pajero 2
- Откуда: Астана
- Благодарил (а): 2 раза
Re: Mitsubishi Pajero 1992 пропал режим OD - 4-я передача
лампочка на панель загорается,спидометр работает
-
Sergey-Astana
- Сообщения: 9
- Зарегистрирован: 23 июн 2017, 10:47
- Двигатель:: 6G72
- Мой автомобиль(и):: Pajero 2
- Откуда: Астана
- Благодарил (а): 2 раза
Re: Mitsubishi Pajero 1992 пропал режим OD - 4-я передача
Помогите со схемой коробки с праворукого паджера 6G72 и один соленоид на коробке
-
Олег....
- Сообщения: 1711
- Зарегистрирован: 21 май 2010, 15:43
- Двигатель:: 6G72
- Мой автомобиль(и):: Montero Sport
- Откуда: Таганрог
- Благодарил (а): 69 раз
- Поблагодарили: 86 раз
- Контактная информация:
Re: Mitsubishi Pajero 1992 пропал режим OD - 4-я передача
Вообще уже стораз писали. Поиском поищите.
Датчик температуры движка и датчик на овердрайв разные.
На овердрайв одноконтактный, с синим проводом с белой полоской.
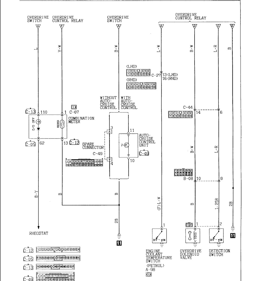
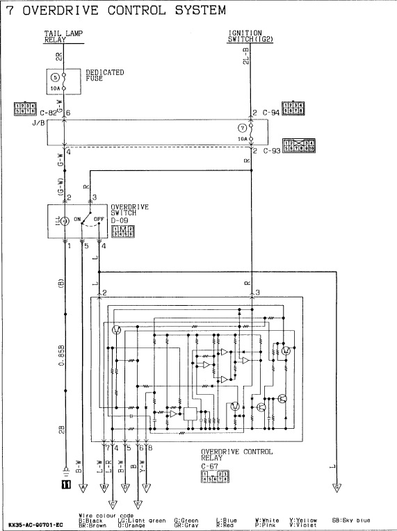
Схема:
Датчик температуры движка и датчик на овердрайв разные.
На овердрайв одноконтактный, с синим проводом с белой полоской.
Схема:
Montero Sport 2003 6G72. 32е ATэшечки, хобот, радейка. Спальник.
ПРОДАН Montero'94 6G74 АККП Длинный, 31-е мудричи, хобот и крепкий бампер. Рации всякие.
ПРОДАН Montero'94 6G74 АККП Длинный, 31-е мудричи, хобот и крепкий бампер. Рации всякие.
-
Sergey-Astana
- Сообщения: 9
- Зарегистрирован: 23 июн 2017, 10:47
- Двигатель:: 6G72
- Мой автомобиль(и):: Pajero 2
- Откуда: Астана
- Благодарил (а): 2 раза
Re: Mitsubishi Pajero 1992 пропал режим OD - 4-я передача
Спасибо. А датчик стоит на патрубке мотора?
Какие должны быть его параметры? на теплом моторе?
Какие должны быть его параметры? на теплом моторе?
-
Sergey-Astana
- Сообщения: 9
- Зарегистрирован: 23 июн 2017, 10:47
- Двигатель:: 6G72
- Мой автомобиль(и):: Pajero 2
- Откуда: Астана
- Благодарил (а): 2 раза
Re: Mitsubishi Pajero 1992 пропал режим OD - 4-я передача
А где стоит реле контроля ОД с разьемом C-67?
-
Sergey-Astana
- Сообщения: 9
- Зарегистрирован: 23 июн 2017, 10:47
- Двигатель:: 6G72
- Мой автомобиль(и):: Pajero 2
- Откуда: Астана
- Благодарил (а): 2 раза
Re: Mitsubishi Pajero 1992 пропал режим OD - 4-я передача
На маленький одноконтактный датчик приходит светложелтый с синей полоской.
СОпротивление его 158 Ом при 55 градусах мотора сейчас
СОпротивление его 158 Ом при 55 градусах мотора сейчас
Последний раз редактировалось Sergey-Astana 23 июн 2017, 11:52, всего редактировалось 1 раз.
-
Sergey-Astana
- Сообщения: 9
- Зарегистрирован: 23 июн 2017, 10:47
- Двигатель:: 6G72
- Мой автомобиль(и):: Pajero 2
- Откуда: Астана
- Благодарил (а): 2 раза
Re: Mitsubishi Pajero 1992 пропал режим OD - 4-я передача
Пожалуйста пните на тему по этой проблеме.
Поиском не могу найти..
Поиском не могу найти..
-
Олег....
- Сообщения: 1711
- Зарегистрирован: 21 май 2010, 15:43
- Двигатель:: 6G72
- Мой автомобиль(и):: Montero Sport
- Откуда: Таганрог
- Благодарил (а): 69 раз
- Поблагодарили: 86 раз
- Контактная информация:
Re: Mitsubishi Pajero 1992 пропал режим OD - 4-я передача
Стоит на патрубке. Он фактически замыкается на землю при прогреве мотора. Можно с него сдернуть фишку, замкнуть на землю и проверить - появилась ли передача.
Найдите вот такую схему: PHJE9026_A_B_C_PAJERO_91-94_ELECTRICAL_WIRING.pdf
Найдите вот такую схему: PHJE9026_A_B_C_PAJERO_91-94_ELECTRICAL_WIRING.pdf
Montero Sport 2003 6G72. 32е ATэшечки, хобот, радейка. Спальник.
ПРОДАН Montero'94 6G74 АККП Длинный, 31-е мудричи, хобот и крепкий бампер. Рации всякие.
ПРОДАН Montero'94 6G74 АККП Длинный, 31-е мудричи, хобот и крепкий бампер. Рации всякие.
-
Олег....
- Сообщения: 1711
- Зарегистрирован: 21 май 2010, 15:43
- Двигатель:: 6G72
- Мой автомобиль(и):: Montero Sport
- Откуда: Таганрог
- Благодарил (а): 69 раз
- Поблагодарили: 86 раз
- Контактная информация:
Re: Mitsubishi Pajero 1992 пропал режим OD - 4-я передача
Релюшка под рулем. Вот схема расположения:
Montero Sport 2003 6G72. 32е ATэшечки, хобот, радейка. Спальник.
ПРОДАН Montero'94 6G74 АККП Длинный, 31-е мудричи, хобот и крепкий бампер. Рации всякие.
ПРОДАН Montero'94 6G74 АККП Длинный, 31-е мудричи, хобот и крепкий бампер. Рации всякие.
-
Sergey-Astana
- Сообщения: 9
- Зарегистрирован: 23 июн 2017, 10:47
- Двигатель:: 6G72
- Мой автомобиль(и):: Pajero 2
- Откуда: Астана
- Благодарил (а): 2 раза
Re: Mitsubishi Pajero 1992 пропал режим OD - 4-я передача
Братишка! Огромное тебе СПАСИБО!
Выручил и помог, побольше бы таких мастеров!
Выручил и помог, побольше бы таких мастеров!
-
алексей - Маленький Мук
- Модератор
- Сообщения: 20380
- Зарегистрирован: 11 дек 2008, 16:10
- Откуда: москва м Академическая
- Благодарил (а): 101 раз
- Поблагодарили: 1340 раз
Re: Mitsubishi Pajero 1992 пропал режим OD - 4-я передача
вчера тож иска 4ю на 3л, пока не нашол 
Всем добра.......
