Помогите! Чуть не загорелся!
Модераторы: SNOOPER, Nbf, Romik, BAlex
-
klon515
- Сообщения: 358
- Зарегистрирован: 10 мар 2012, 12:42
- Двигатель:: 6G72 Бензин 12-клапанный 1992 г.в.
- Мой автомобиль(и):: MITSUBISHI PAJERO 2
- Откуда: Иваново
- Откуда: Благовещенск - Иваново
- Благодарил (а): 19 раз
- Поблагодарили: 5 раз
Помогите! Чуть не загорелся!
П2 6G72 12V 1992гв 3-дв Араб лев руль
Сегодня еду с работы, почувствовал запах проводки, и повалил дым из под капота. Я сразу остановился, аварийку и т.д.
Глядь под капот, коса проводов которая идет от аккумулятора на стартер и гену дымится!
Я ее вскрыл от оплетки, и увидел там (вроде) два толстых провода и несколько тонких.
Когда заглушил, дым стал пропадать. Методом проверки с помощью друга, было выявлено следующее: При включении зажигания все норм. Как заводишь, один из тонких проводов
раскаляется до красна.
Так как машина стоит еще на улице, и ждет машину эвакуатор помогите ответив на несколько вопросов:
Правильно ли я определил что два толстых провода это провода га стартер и генератор?
Проходящие рядом тонкие провода какого должны быть цвета и за что отвечают?
Ну и если можно, ткните носом в схему проводки на этом участке.
Притянем машину, будем разбираться ((
Сегодня еду с работы, почувствовал запах проводки, и повалил дым из под капота. Я сразу остановился, аварийку и т.д.
Глядь под капот, коса проводов которая идет от аккумулятора на стартер и гену дымится!
Я ее вскрыл от оплетки, и увидел там (вроде) два толстых провода и несколько тонких.
Когда заглушил, дым стал пропадать. Методом проверки с помощью друга, было выявлено следующее: При включении зажигания все норм. Как заводишь, один из тонких проводов
раскаляется до красна.
Так как машина стоит еще на улице, и ждет машину эвакуатор помогите ответив на несколько вопросов:
Правильно ли я определил что два толстых провода это провода га стартер и генератор?
Проходящие рядом тонкие провода какого должны быть цвета и за что отвечают?
Ну и если можно, ткните носом в схему проводки на этом участке.
Притянем машину, будем разбираться ((
- drcham
- Модератор
- Сообщения: 14460
- Зарегистрирован: 08 апр 2006, 13:42
- Двигатель:: Бензин
- Мой автомобиль(и):: Wrangler JLU Rubicon
- Откуда: Москва
- Откуда: Москва ЮЗАО
- Благодарил (а): 63 раза
- Поблагодарили: 231 раз
- Контактная информация:
Re: Помогите! Чуть не загорелся!
Сложно сказать что у Вас сгорело. Могли провода перетереться где-то и коротнуть. Мог генератор навернуться. КЗ в стартере тоже возможно но на ходу шанс не велик. Надо диагностировать.
4LO&GO! Wrangler JLU Rubicon
-
klon515
- Сообщения: 358
- Зарегистрирован: 10 мар 2012, 12:42
- Двигатель:: 6G72 Бензин 12-клапанный 1992 г.в.
- Мой автомобиль(и):: MITSUBISHI PAJERO 2
- Откуда: Иваново
- Откуда: Благовещенск - Иваново
- Благодарил (а): 19 раз
- Поблагодарили: 5 раз
Re: Помогите! Чуть не загорелся!
Стартер работает, машина заводится.
Генератор? Пробовать отсоединить его?
Генератор? Пробовать отсоединить его?
- drcham
- Модератор
- Сообщения: 14460
- Зарегистрирован: 08 апр 2006, 13:42
- Двигатель:: Бензин
- Мой автомобиль(и):: Wrangler JLU Rubicon
- Откуда: Москва
- Откуда: Москва ЮЗАО
- Благодарил (а): 63 раза
- Поблагодарили: 231 раз
- Контактная информация:
Re: Помогите! Чуть не загорелся!
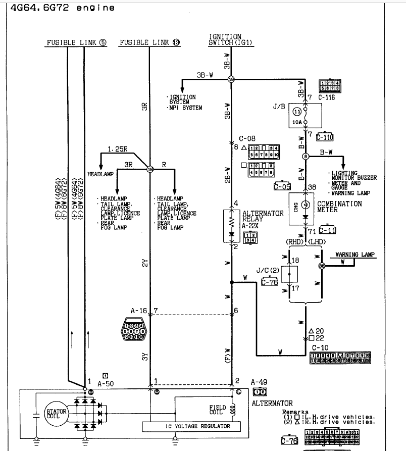
Место где дымилось надо искать т.е. разбирать жгут. Провода которые нашли надо цвет указать. Если схема не врет то на генератор идет два белых провода по 8 квадрат.
На стартер 30 квадрат B-L (Black-Blue) т.е. черно синий. Странно что у Вас пред 100А не сгорел. Он еще на месте или там жучок стоит ?
На стартер 30 квадрат B-L (Black-Blue) т.е. черно синий. Странно что у Вас пред 100А не сгорел. Он еще на месте или там жучок стоит ?
4LO&GO! Wrangler JLU Rubicon
-
klon515
- Сообщения: 358
- Зарегистрирован: 10 мар 2012, 12:42
- Двигатель:: 6G72 Бензин 12-клапанный 1992 г.в.
- Мой автомобиль(и):: MITSUBISHI PAJERO 2
- Откуда: Иваново
- Откуда: Благовещенск - Иваново
- Благодарил (а): 19 раз
- Поблагодарили: 5 раз
Re: Помогите! Чуть не загорелся!
Знать бы где стоит этот предохранитель. Там до красна раскалился провод тонкий, квадрата на 1.5 -2.
Место где видно оплавление и раскаленный провод находится чуть выше аккумулятора, на стенке между салоном и подкапотным пространством.
Место где видно оплавление и раскаленный провод находится чуть выше аккумулятора, на стенке между салоном и подкапотным пространством.
-
klon515
- Сообщения: 358
- Зарегистрирован: 10 мар 2012, 12:42
- Двигатель:: 6G72 Бензин 12-клапанный 1992 г.в.
- Мой автомобиль(и):: MITSUBISHI PAJERO 2
- Откуда: Иваново
- Откуда: Благовещенск - Иваново
- Благодарил (а): 19 раз
- Поблагодарили: 5 раз
Re: Помогите! Чуть не загорелся!
Мало понимаю. Спасибо, может пригодится. Может покажу местным электрикам.
- drcham
- Модератор
- Сообщения: 14460
- Зарегистрирован: 08 апр 2006, 13:42
- Двигатель:: Бензин
- Мой автомобиль(и):: Wrangler JLU Rubicon
- Откуда: Москва
- Откуда: Москва ЮЗАО
- Благодарил (а): 63 раза
- Поблагодарили: 231 раз
- Контактная информация:
Re: Помогите! Чуть не загорелся!
Без схемы ничего не понять... сгоревший провод надо идентифицировать по хотя бы по цвету. Попытаться проследить куда он идет.
4LO&GO! Wrangler JLU Rubicon
-
klon515
- Сообщения: 358
- Зарегистрирован: 10 мар 2012, 12:42
- Двигатель:: 6G72 Бензин 12-клапанный 1992 г.в.
- Мой автомобиль(и):: MITSUBISHI PAJERO 2
- Откуда: Иваново
- Откуда: Благовещенск - Иваново
- Благодарил (а): 19 раз
- Поблагодарили: 5 раз
Re: Помогите! Чуть не загорелся!
Проблема решена. Суть дела была такова.
Из косы выходят два провода. Синий с красной полосой. И черный с красной полосой.
Выходят оно около адсорбера и идут под блок предохранителей и дальше под площадку аккумулятора.
Там они заканчиваются, на концах висит колодка (фишка), которая ни когда не была ни куда подключена. Я даже не знал о ее существовании, т.к. она была снизу площадки в плотную.
Так вот эта площадка аккумулятора (масло масляное) и передавила эти провода, и к.з. на массу.
Черный с красной полосой, при включении зажигания, показывает плюс. и подсоединяется в косе к другому проводу такого же цвета. А синий с красной полосой, пустой и уходит куда то в салон.
Вопрос: Для чего эта фишка, что должна подключать?
Из косы выходят два провода. Синий с красной полосой. И черный с красной полосой.
Выходят оно около адсорбера и идут под блок предохранителей и дальше под площадку аккумулятора.
Там они заканчиваются, на концах висит колодка (фишка), которая ни когда не была ни куда подключена. Я даже не знал о ее существовании, т.к. она была снизу площадки в плотную.
Так вот эта площадка аккумулятора (масло масляное) и передавила эти провода, и к.з. на массу.
Черный с красной полосой, при включении зажигания, показывает плюс. и подсоединяется в косе к другому проводу такого же цвета. А синий с красной полосой, пустой и уходит куда то в салон.
Вопрос: Для чего эта фишка, что должна подключать?
- drcham
- Модератор
- Сообщения: 14460
- Зарегистрирован: 08 апр 2006, 13:42
- Двигатель:: Бензин
- Мой автомобиль(и):: Wrangler JLU Rubicon
- Откуда: Москва
- Откуда: Москва ЮЗАО
- Благодарил (а): 63 раза
- Поблагодарили: 231 раз
- Контактная информация:
Re: Помогите! Чуть не загорелся!
Моих навыков чтения схем не хватает чтобы понять. хорошо что все решилось. Фишка может быть от модели с АКПП и наборот или иной комплектации.
4LO&GO! Wrangler JLU Rubicon
