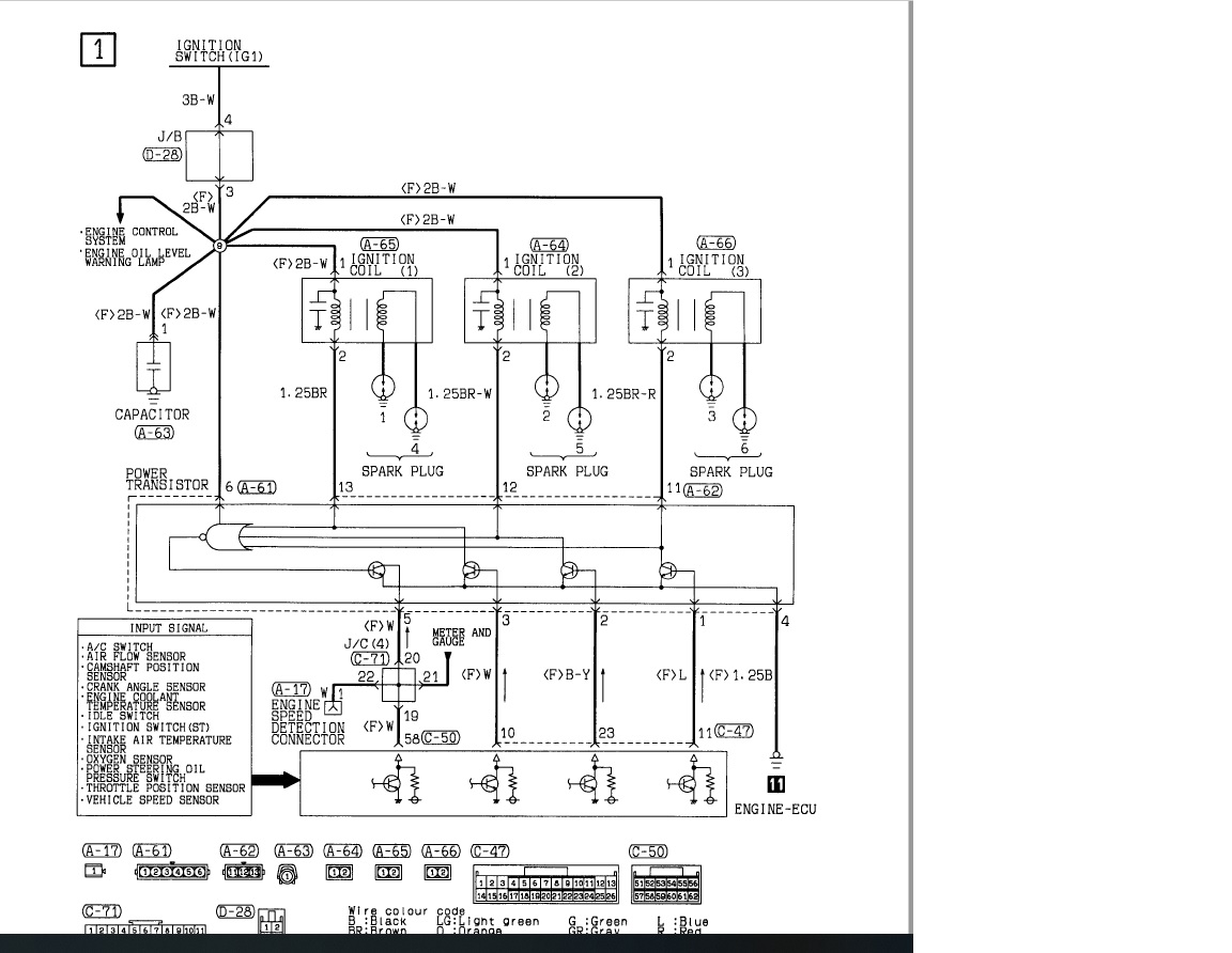
Друзья, такая проблема, не идет питание на две катушки зажигания... (((В сервисе сказали нужна электросхема... Перерыл всё что смог... Электросхема с форсунками есть катушек на ней нет... Может есть у кого?
TRT "107-108" Для стандарта и не только! (4.04.2026) Форум Обсуждение FAQ
Электросхема
Модераторы: SNOOPER, Nbf, Romik, BAlex, drcham, Podzemshik
-
Shirgri
- Сообщения: 4
- Зарегистрирован: 18 июл 2018, 13:44
- Двигатель:: 6g72
- Мой автомобиль(и):: Mitsubishi Montero sport
- Откуда: Москва
Электросхема
Всем большой привет.
Друзья, такая проблема, не идет питание на две катушки зажигания... (((В сервисе сказали нужна электросхема... Перерыл всё что смог... Электросхема с форсунками есть катушек на ней нет... Может есть у кого?
SOS
Друзья, такая проблема, не идет питание на две катушки зажигания... (((В сервисе сказали нужна электросхема... Перерыл всё что смог... Электросхема с форсунками есть катушек на ней нет... Может есть у кого?
-
алексей - Маленький Мук
- Модератор
- Сообщения: 20384
- Зарегистрирован: 11 дек 2008, 16:10
- Откуда: москва м Академическая
- Благодарил (а): 101 раз
- Поблагодарили: 1341 раз
Re: Электросхема
http://pajero4x4.ru/bbs/phpBB2/viewtopi ... 0&t=114866 и проверь коммутатор, питалово на катушки дает он
Всем добра.......
- Dimix
- Сообщения: 12135
- Зарегистрирован: 26 сен 2006, 18:31
- Двигатель:: 6G72 24v
- Мой автомобиль(и):: montero sport'02
- Откуда: Балашиха
- Откуда: Россия, Балашиха-Москва
- Благодарил (а): 88 раз
- Поблагодарили: 402 раза
- SNOOPER
- Модератор
- Сообщения: 57320
- Зарегистрирован: 11 дек 2004, 19:49
- Двигатель:: 4D56
- Мой автомобиль(и):: NewMPS
- Откуда: 78
- Откуда: Spb
- Благодарил (а): 1020 раз
- Поблагодарили: 4763 раза
Re: Электросхема
На катушках чего нет: Плюса или Минуса?Shirgri писал(а):Всем большой привет.
Друзья, такая проблема, не идет питание на две катушки зажигания... (((В сервисе сказали нужна электросхема... Перерыл всё что смог... Электросхема с форсунками есть катушек на ней нет... Может есть у кого?SOS
Если плюса, то сдохла скрутка. Если минуса, коммутатор.
- Unklown
- Сообщения: 2669
- Зарегистрирован: 18 дек 2012, 05:48
- Двигатель:: 6G74, SOHC бензин, газ
- Мой автомобиль(и):: MONTERO SPORT[K99W ] [GRXEL2M ]
- Откуда: Алтай
- Благодарил (а): 4 раза
- Поблагодарили: 101 раз
Re: Электросхема
на катухах плюс постоянныйалексей - Маленький Мук писал(а):http://pajero4x4.ru/bbs/phpBB2/viewtopi ... 0&t=114866 и проверь коммутатор, питалово на катушки дает он
коммутатор их на массу замыкает
