как отключить ПТФ от ближнего света?
Модераторы: SNOOPER, Nbf, Romik, BAlex
- V_Noise
- Сообщения: 3281
- Зарегистрирован: 23 май 2010, 19:01
- Двигатель:: 6G72
- Мой автомобиль(и):: Паджеро 3
- Откуда: Красногорск
- Откуда: Красногорск
- Благодарил (а): 230 раз
- Поблагодарили: 125 раз
как отключить ПТФ от ближнего света?
Собственно хотелось бы чтоб ПТФ работали не зависимо от ближнего света. Поиск смотрел, но ничего не нашел. Подключение штатное.
- viktor292
- Сообщения: 6231
- Зарегистрирован: 23 дек 2007, 15:13
- Двигатель:: Мазута 2 раза
- Мой автомобиль(и):: Британец, Швед.
- Откуда: Россия
- Откуда: Казахстан - СПб
- Благодарил (а): 84 раза
- Поблагодарили: 14 раз
Re: как отключить ПТФ от ближнего света?
Первый раз слышу про такую приблуду.
Это наверное колхоз американский,скорее всего.
Штатно вряд ли.
Это наверное колхоз американский,скорее всего.
Штатно вряд ли.
- Winns
- Сообщения: 4017
- Зарегистрирован: 13 сен 2009, 12:58
- Двигатель:: YD25DDTi
- Мой автомобиль(и):: Nissan Pathfinder
- Откуда: Москва
- Откуда: Новокосино
- Благодарил (а): 9 раз
- Поблагодарили: 13 раз
Re: как отключить ПТФ от ближнего света?
Сто пудов пендосы что то намутили. У мну ПТФ работают даже без габаритов.
Игорь 8903003264I
- Белыч
- Сообщения: 2036
- Зарегистрирован: 13 июл 2009, 22:38
- Двигатель:: EDYC
- Мой автомобиль(и):: Ford Focus I 1,8 МКПП
- Откуда: Санкт-Петербург, Колпино, Н.Уренгой
- Благодарил (а): 2 раза
- Поблагодарили: 5 раз
- Контактная информация:
Re: как отключить ПТФ от ближнего света?
+1
у меня только с ближним ((((
машина европейка... (для финки)
у меня только с ближним ((((
машина европейка... (для финки)
ПРОДАМ ДЛЯ PAJERO II(ссылка)
ВАЗ-2109 1,3 1993г.в. (было)
P-II'93 5dr, 4d56T, GLS, МКПП, круиз, кондей, 2 печки, зеленый, 5-7 мест (было)
Ford Focus I 1.8 МКПП 2005г.в.
ВАЗ-2109 1,3 1993г.в. (было)
P-II'93 5dr, 4d56T, GLS, МКПП, круиз, кондей, 2 печки, зеленый, 5-7 мест (было)
Ford Focus I 1.8 МКПП 2005г.в.
- V_Noise
- Сообщения: 3281
- Зарегистрирован: 23 май 2010, 19:01
- Двигатель:: 6G72
- Мой автомобиль(и):: Паджеро 3
- Откуда: Красногорск
- Откуда: Красногорск
- Благодарил (а): 230 раз
- Поблагодарили: 125 раз
Re: как отключить ПТФ от ближнего света?
в том то и дело что все заводское. мож комплектация така или сборка для пендосов. Не знаю. Но все таки хотелось бы по человечески сделать.
- Белыч
- Сообщения: 2036
- Зарегистрирован: 13 июл 2009, 22:38
- Двигатель:: EDYC
- Мой автомобиль(и):: Ford Focus I 1,8 МКПП
- Откуда: Санкт-Петербург, Колпино, Н.Уренгой
- Благодарил (а): 2 раза
- Поблагодарили: 5 раз
- Контактная информация:
Re: как отключить ПТФ от ближнего света?
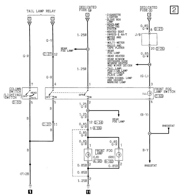
ну на сколько знаю в реле на один из контактов должен подаваться постоянный "плюс", так вот видать он подается когда "плюс" появляется на "ближнем". достаточно вместо "появляющего плюса" с ближнего, подать постояннй. ИМХО
ПРОДАМ ДЛЯ PAJERO II(ссылка)
ВАЗ-2109 1,3 1993г.в. (было)
P-II'93 5dr, 4d56T, GLS, МКПП, круиз, кондей, 2 печки, зеленый, 5-7 мест (было)
Ford Focus I 1.8 МКПП 2005г.в.
ВАЗ-2109 1,3 1993г.в. (было)
P-II'93 5dr, 4d56T, GLS, МКПП, круиз, кондей, 2 печки, зеленый, 5-7 мест (было)
Ford Focus I 1.8 МКПП 2005г.в.
- Белыч
- Сообщения: 2036
- Зарегистрирован: 13 июл 2009, 22:38
- Двигатель:: EDYC
- Мой автомобиль(и):: Ford Focus I 1,8 МКПП
- Откуда: Санкт-Петербург, Колпино, Н.Уренгой
- Благодарил (а): 2 раза
- Поблагодарили: 5 раз
- Контактная информация:
Re: как отключить ПТФ от ближнего света?
сегодня поищу схему, а завтра попробую реализовать!
ПРОДАМ ДЛЯ PAJERO II(ссылка)
ВАЗ-2109 1,3 1993г.в. (было)
P-II'93 5dr, 4d56T, GLS, МКПП, круиз, кондей, 2 печки, зеленый, 5-7 мест (было)
Ford Focus I 1.8 МКПП 2005г.в.
ВАЗ-2109 1,3 1993г.в. (было)
P-II'93 5dr, 4d56T, GLS, МКПП, круиз, кондей, 2 печки, зеленый, 5-7 мест (было)
Ford Focus I 1.8 МКПП 2005г.в.
- V_Noise
- Сообщения: 3281
- Зарегистрирован: 23 май 2010, 19:01
- Двигатель:: 6G72
- Мой автомобиль(и):: Паджеро 3
- Откуда: Красногорск
- Откуда: Красногорск
- Благодарил (а): 230 раз
- Поблагодарили: 125 раз
Re: как отключить ПТФ от ближнего света?
я в электрике не очень. поэтому жду от тебя помощи. спасибо.
- Dimmm
- Сообщения: 9598
- Зарегистрирован: 14 янв 2008, 10:44
- Двигатель:: 4D56
- Мой автомобиль(и):: ослик unlimited :)
- Откуда: Питер
- Откуда: СПб Ржевка-Купчино
- Благодарил (а): 16 раз
- Поблагодарили: 61 раз
- Контактная информация:
Re: как отключить ПТФ от ближнего света?
дибилизм))) у меня тоже так)) кстати тут тема была со схемами))
вот сейчас ставлю ближний вместо ПТФ, хочу чтобы они не отключались при переходе на дальний.... кто знает как сделать?)
проводка штатная
вот сейчас ставлю ближний вместо ПТФ, хочу чтобы они не отключались при переходе на дальний.... кто знает как сделать?)
проводка штатная
НМПС :)
ослик... Был :)
MМS LTD "грязный" 6G74 был.
Прочистка канализации. Оборудование http://zasorovnet.ru/
ослик... Был :)
MМS LTD "грязный" 6G74 был.
Прочистка канализации. Оборудование http://zasorovnet.ru/
-
vadym
- Сообщения: 1457
- Зарегистрирован: 12 сен 2007, 00:50
- Откуда: Черновцы
- Благодарил (а): 12 раз
- Поблагодарили: 120 раз
Re: как отключить ПТФ от ближнего света?
Dimmm, поставь реле с диодом и подключи новые противотуманки через него.[b]Dimmm[/b] писал(а):дибилизм))) у меня тоже так)) кстати тут тема была со схемами))
вот сейчас ставлю ближний вместо ПТФ, хочу чтобы они не отключались при переходе на дальний.... кто знает как сделать?)
проводка штатная
Реле надо подключить так, что бы оно включалось от ближнего света, а через диоды (2шт.), диоды в качестве развязки, реле будет подпитываться от дальнего света, тогда и при дальнем и при ближнем противотуманки будут включены.
Тем более что в штатной проводке реле для подключения передних противотуманок нет и весь рабочий ток идет через контакты переключателей, что не есть хорошо. Реле надо взять силовое - 40 ампер.
Последний раз редактировалось vadym 15 окт 2010, 19:26, всего редактировалось 1 раз.
PAJERO SPORT 2003 2,5 TD
- Белыч
- Сообщения: 2036
- Зарегистрирован: 13 июл 2009, 22:38
- Двигатель:: EDYC
- Мой автомобиль(и):: Ford Focus I 1,8 МКПП
- Откуда: Санкт-Петербург, Колпино, Н.Уренгой
- Благодарил (а): 2 раза
- Поблагодарили: 5 раз
- Контактная информация:
Re: как отключить ПТФ от ближнего света?
если это мне, то я сам ни бум-бум (((VShum писал(а):я в электрике не очень. поэтому жду от тебя помощи. спасибо.
ПРОДАМ ДЛЯ PAJERO II(ссылка)
ВАЗ-2109 1,3 1993г.в. (было)
P-II'93 5dr, 4d56T, GLS, МКПП, круиз, кондей, 2 печки, зеленый, 5-7 мест (было)
Ford Focus I 1.8 МКПП 2005г.в.
ВАЗ-2109 1,3 1993г.в. (было)
P-II'93 5dr, 4d56T, GLS, МКПП, круиз, кондей, 2 печки, зеленый, 5-7 мест (было)
Ford Focus I 1.8 МКПП 2005г.в.
Re: как отключить ПТФ от ближнего света?
Интересно зачем тогда я его покупал, когда ставил противотуманки?vadym писал(а):[b]Dimmm[/b] писал(а):Тем более что в штатной проводке реле для подключения передних противотуманок нет и весь рабочий ток идет через контакты переключателей, что не есть хорошо.
Был ... Montero Sport, но теперь Nissan X-Trail но то же серебро
-
vadym
- Сообщения: 1457
- Зарегистрирован: 12 сен 2007, 00:50
- Откуда: Черновцы
- Благодарил (а): 12 раз
- Поблагодарили: 120 раз
Re: как отключить ПТФ от ближнего света?
У меня реле "С" нет противотуманки не зависят от ближ. и дальн. света вообще.Grey78 писал(а):Интересно зачем тогда я его покупал, когда ставил противотуманки?И ведь без него они НЕ ГОРЕЛИ. Код MR 588567 посмотри в каталоге.. Вот на схеме "С"
Напряжение с пр.№18 поступает на включатель противотуманок и потом сразу на противотуманки, все предельно просто. Но у меня паджеро и наверное в этом одно из отличий электр. проводки монтеро и паджеро ::-):
PAJERO SPORT 2003 2,5 TD
- Alessandro
- Сообщения: 3805
- Зарегистрирован: 14 ноя 2009, 14:41
- Двигатель:: 4G54
- Мой автомобиль(и):: Pajero ll
- Откуда: Москва
- Благодарил (а): 2 раза
- Поблагодарили: 25 раз
Re: как отключить ПТФ от ближнего света?
А зачем огород городить? всё правильно у них подключено. если плохая видимость, снег/туман, то на дальнем ни фига не видно(и птф при дальнем свете н помощник) -тока на ближнем- и противотуманные фонари логично включены в цепь блжнего света. зачем переделывать? Какой в этом смысл? лично я не вижу НИКАКОГО смысла делать обязательно отдельное включение ПТФ. Другое дело прожектора, но это НЕ птф
P2., V32VNDLW, 4G54 2600сс, V5M21(4875) - механика, part time. Арапский прынц 1996г рождения, колор белий :)
- V_Noise
- Сообщения: 3281
- Зарегистрирован: 23 май 2010, 19:01
- Двигатель:: 6G72
- Мой автомобиль(и):: Паджеро 3
- Откуда: Красногорск
- Откуда: Красногорск
- Благодарил (а): 230 раз
- Поблагодарили: 125 раз
Re: как отключить ПТФ от ближнего света?
У меня IPF стоят на кенге. Поэтому хотелось бы ими отдельно работать. Штатные я вынул (точнее что поставили вместо штатных до меня).Alessandro писал(а):А зачем огород городить? всё правильно у них подключено. если плохая видимость, снег/туман, то на дальнем ни фига не видно(и птф при дальнем свете н помощник) -тока на ближнем- и противотуманные фонари логично включены в цепь блжнего света. зачем переделывать? Какой в этом смысл? лично я не вижу НИКАКОГО смысла делать обязательно отдельное включение ПТФ. Другое дело прожектора, но это НЕ птф
-
baltvodolaz
- Сообщения: 503
- Зарегистрирован: 19 окт 2009, 21:18
- Откуда: Piter
- Поблагодарили: 6 раз
- Dimmm
- Сообщения: 9598
- Зарегистрирован: 14 янв 2008, 10:44
- Двигатель:: 4D56
- Мой автомобиль(и):: ослик unlimited :)
- Откуда: Питер
- Откуда: СПб Ржевка-Купчино
- Благодарил (а): 16 раз
- Поблагодарили: 61 раз
- Контактная информация:
Re: как отключить ПТФ от ближнего света?
логичное включение ПТФ при габаритах а не при ближнем))Alessandro писал(а):А зачем огород городить? всё правильно у них подключено. если плохая видимость, снег/туман, то на дальнем ни фига не видно(и птф при дальнем свете н помощник) -тока на ближнем- и противотуманные фонари логично включены в цепь блжнего света. зачем переделывать? Какой в этом смысл? лично я не вижу НИКАКОГО смысла делать обязательно отдельное включение ПТФ. Другое дело прожектора, но это НЕ птф
я хочу использовать проводку от ПТФ чтобы подключить доп ближний и чтобы он не отключался при переходе основных фар на дальний
НМПС :)
ослик... Был :)
MМS LTD "грязный" 6G74 был.
Прочистка канализации. Оборудование http://zasorovnet.ru/
ослик... Был :)
MМS LTD "грязный" 6G74 был.
Прочистка канализации. Оборудование http://zasorovnet.ru/
-
baltvodolaz
- Сообщения: 503
- Зарегистрирован: 19 окт 2009, 21:18
- Откуда: Piter
- Поблагодарили: 6 раз
Re: как отключить ПТФ от ближнего света?
по техническому регламенту (госту) фар ближнего света можно иметь 2.Dimmm писал(а): я хочу использовать проводку от ПТФ чтобы подключить доп ближний и чтобы он не отключался при переходе основных фар на дальний
____
MMS 2003 AWD 3.0l A/T
MMS 2003 AWD 3.0l A/T
- Dimmm
- Сообщения: 9598
- Зарегистрирован: 14 янв 2008, 10:44
- Двигатель:: 4D56
- Мой автомобиль(и):: ослик unlimited :)
- Откуда: Питер
- Откуда: СПб Ржевка-Купчино
- Благодарил (а): 16 раз
- Поблагодарили: 61 раз
- Контактная информация:
Re: как отключить ПТФ от ближнего света?
я по дорогам езжу а не по госту 
каким образом сотрудник ДПСы определит что это не ПТФ?)
а еще по госту нельзя большие колеса ставить) делать бодик..
каким образом сотрудник ДПСы определит что это не ПТФ?)
а еще по госту нельзя большие колеса ставить) делать бодик..
НМПС :)
ослик... Был :)
MМS LTD "грязный" 6G74 был.
Прочистка канализации. Оборудование http://zasorovnet.ru/
ослик... Был :)
MМS LTD "грязный" 6G74 был.
Прочистка канализации. Оборудование http://zasorovnet.ru/
-
baltvodolaz
- Сообщения: 503
- Зарегистрирован: 19 окт 2009, 21:18
- Откуда: Piter
- Поблагодарили: 6 раз
Re: как отключить ПТФ от ближнего света?
если так подходить, тогда есть идея поставить головной свет от WESEM для Man Фары типа 0261 (Jelcz, Star, Lublin,Man,Autosan) за бампером в районе дыр птф - размер штатной дыры в бампере 210х130 размер фары ман 246х135. получишь дополнительно ближний + дальний с цоколем лампы H4.Dimmm писал(а):я по дорогам езжу а не по госту
каким образом сотрудник ДПСы определит что это не ПТФ?)
а еще по госту нельзя большие колеса ставить) делать бодик..
____
MMS 2003 AWD 3.0l A/T
MMS 2003 AWD 3.0l A/T
