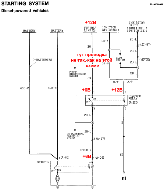
Такая беда. На втягивающем реле стартера напряжение 5-6 вольт, на коммутируемом контакте управляющего реле (в блоке под капотом) тоже 5-6 вольт. Проверил по эл. схеме - на катушке управляющего реле - 12 вольт, на предохранителе - 12 вольт, на замке зажигания 12 вольт на входе и на выходе. Не могу найти где теряется напряжение.
Эл. схема с мануала не соответствует проводке. Если развернуть блок реле, то видно, что с управляющего контакта в косу уходит белый провод и дальше уже не разобрать куда он приходит (по идее должен приходить на контакт предохранителя 5-й линии, однако нифига не так).
Подскажите - куда уходит этот провод, или может нормальная эл. схема у кого есть.
L200OLD/4D56T/MT
Домино Трофи 2026 - 25 Апреля - Обсудить и спросить тут.
Низкое напряжение на реле стартера
Модераторы: SNOOPER, Nbf, Romik, BAlex
- valiok
- Сообщения: 255
- Зарегистрирован: 13 окт 2010, 13:16
- Двигатель:: 3,0 дизель
- Мой автомобиль(и):: AUDI Q7
- Откуда: Москва
- Откуда: Москва
- Благодарил (а): 1 раз
- Поблагодарили: 21 раз
- Контактная информация:
Re: Низкое напряжение на реле стартера
все схемы есть
давай больше инфо по авто (год, привод, кузов, коробка)
Информация о транспортном средстве
МОДЕЛЬ :
ДВИГАТЕЛЬ :
ТРАНСМИССИЯ :
ТОРМОЗНАЯ СИСТЕМА :
КУЗОВ :
ПОДВЕСКА :
ПРИВОД :
РУЛЕВОЕ УПРАВЛЕНИЕ :
как-то так
давай больше инфо по авто (год, привод, кузов, коробка)
Информация о транспортном средстве
МОДЕЛЬ :
ДВИГАТЕЛЬ :
ТРАНСМИССИЯ :
ТОРМОЗНАЯ СИСТЕМА :
КУЗОВ :
ПОДВЕСКА :
ПРИВОД :
РУЛЕВОЕ УПРАВЛЕНИЕ :
как-то так
+7 916 393 13 13
http://chiptun-msk.ru/
http://chiptun-msk.ru/
-
realive
- Сообщения: 10
- Зарегистрирован: 27 окт 2011, 21:56
- Двигатель:: 4D56T
- Мой автомобиль(и):: Mitsubishi L200
- Откуда: Сортавала, Карелия
Re: Низкое напряжение на реле стартера
МОДЕЛЬ: K74T 1998
ДВИГАТЕЛЬ: 4D56T
ТРАНСМИССИЯ: 5MT
ТОРМОЗНАЯ СИСТЕМА: без ABS
КУЗОВ: Double cab
ПОДВЕСКА: ?
ПРИВОД: 4WD Part time
РУЛЕВОЕ УПРАВЛЕНИЕ: механический ГУР
valiok, про подвеску не понял?
ДВИГАТЕЛЬ: 4D56T
ТРАНСМИССИЯ: 5MT
ТОРМОЗНАЯ СИСТЕМА: без ABS
КУЗОВ: Double cab
ПОДВЕСКА: ?
ПРИВОД: 4WD Part time
РУЛЕВОЕ УПРАВЛЕНИЕ: механический ГУР
valiok, про подвеску не понял?
- valiok
- Сообщения: 255
- Зарегистрирован: 13 окт 2010, 13:16
- Двигатель:: 3,0 дизель
- Мой автомобиль(и):: AUDI Q7
- Откуда: Москва
- Откуда: Москва
- Благодарил (а): 1 раз
- Поблагодарили: 21 раз
- Контактная информация:
Re: Низкое напряжение на реле стартера
скопировал из MUT3
не нужно про подвеску
1998г нет в муте, только в PDF
ща чё-нить гляну
не нужно про подвеску
1998г нет в муте, только в PDF
ща чё-нить гляну
+7 916 393 13 13
http://chiptun-msk.ru/
http://chiptun-msk.ru/
- valiok
- Сообщения: 255
- Зарегистрирован: 13 окт 2010, 13:16
- Двигатель:: 3,0 дизель
- Мой автомобиль(и):: AUDI Q7
- Откуда: Москва
- Откуда: Москва
- Благодарил (а): 1 раз
- Поблагодарили: 21 раз
- Контактная информация:
Re: Низкое напряжение на реле стартера
схема правильная
проверь скрутку заводскую
проверь скрутку заводскую
+7 916 393 13 13
http://chiptun-msk.ru/
http://chiptun-msk.ru/
- valiok
- Сообщения: 255
- Зарегистрирован: 13 окт 2010, 13:16
- Двигатель:: 3,0 дизель
- Мой автомобиль(и):: AUDI Q7
- Откуда: Москва
- Откуда: Москва
- Благодарил (а): 1 раз
- Поблагодарили: 21 раз
- Контактная информация:
Re: Низкое напряжение на реле стартера
город какой?
укажи в данных
укажи в данных
+7 916 393 13 13
http://chiptun-msk.ru/
http://chiptun-msk.ru/
-
realive
- Сообщения: 10
- Зарегистрирован: 27 окт 2011, 21:56
- Двигатель:: 4D56T
- Мой автомобиль(и):: Mitsubishi L200
- Откуда: Сортавала, Карелия
Re: Низкое напряжение на реле стартера
Сортавала, Карелия.
valiok, спасибо. Подскажи, если в курсе, где эту скрутку искать? Где-то в косе под капотом или она на какую колодку выведена?
valiok, спасибо. Подскажи, если в курсе, где эту скрутку искать? Где-то в косе под капотом или она на какую колодку выведена?
-
realive
- Сообщения: 10
- Зарегистрирован: 27 окт 2011, 21:56
- Двигатель:: 4D56T
- Мой автомобиль(и):: Mitsubishi L200
- Откуда: Сортавала, Карелия
Re: Низкое напряжение на реле стартера
Забыл отписаться. Проблема нашлась - закис провод в месте обжима клеммы в колодке реле подкапотного блока. Провод зачистил, клемму заменил.
