
Кондиционер, испаритель, вентилятор - все что с этим связано
Модераторы: SNOOPER, Nbf, Romik, BAlex, drcham, алексей - Маленький Мук
-
- Модератор
- Сообщения: 20270
- Зарегистрирован: 11 дек 2008, 16:10
- Откуда: москва м Академическая
- Благодарил (а): 101 раз
- Поблагодарили: 1322 раза
Кондиционер, испаритель, вентилятор - все что с этим связано
Если конденсат не течет то забита трубка и вода бежит в салон 

Всем добра.......
- atas80
- Сообщения: 2880
- Зарегистрирован: 21 янв 2009, 19:38
- Двигатель:: 4M40
- Мой автомобиль(и):: Pajero 2 46 ATF
- Откуда: Киров
- Откуда: Kirov [43]
- Благодарил (а): 7 раз
- Поблагодарили: 72 раза
Кондиционер, испаритель, вентилятор - все что с этим связано
Про конденсат тебе уже ответили и правильно.
А вот про вентилятор ерунду ответили.
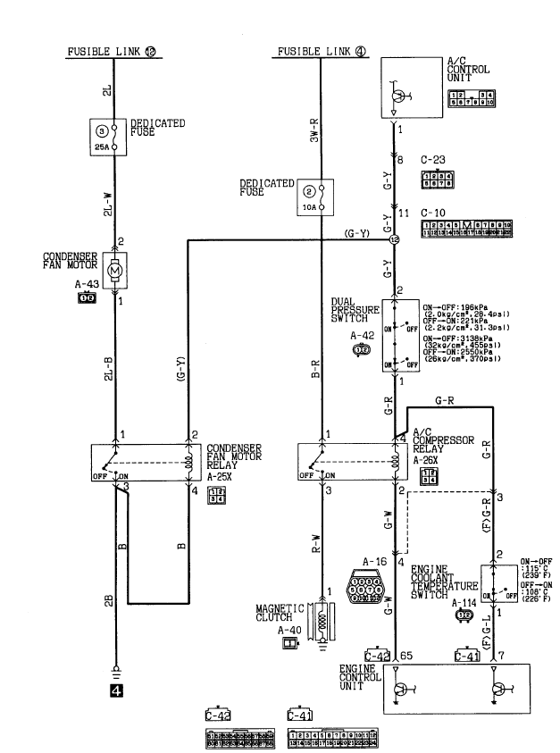
У него нет никакого алгоритма - есть электрическая схема, где четко видно и мною проверено, что реле вентилятор включается параллельно реле кондиционера, даже до датчика давления и датчика температуры двигателя.
Так же этот вентилятор может включить перегрев двигателя не в зависимости от НЕработы кондиционера.
А вот про вентилятор ерунду ответили.
У него нет никакого алгоритма - есть электрическая схема, где четко видно и мною проверено, что реле вентилятор включается параллельно реле кондиционера, даже до датчика давления и датчика температуры двигателя.
Так же этот вентилятор может включить перегрев двигателя не в зависимости от НЕработы кондиционера.
Mitsubishi PAJERO-II | 1995 | 4M40 | V46W | АКПП | GLS
Я горд за РОССИЙСКУЮ ИМПЕРИЮ - мы можем управлять "белым домом" и сажать своих людей в "овальный кабинет" !!!
Я горд за РОССИЙСКУЮ ИМПЕРИЮ - мы можем управлять "белым домом" и сажать своих людей в "овальный кабинет" !!!
- SELENGER
- Сообщения: 2971
- Зарегистрирован: 26 янв 2016, 14:57
- Двигатель:: 6G72
- Мой автомобиль(и):: Mitsubishi Pajero 2
- Откуда: Новороссийск
- Откуда: Новороссийск
- Благодарил (а): 66 раз
- Поблагодарили: 122 раза
- Контактная информация:
Кондиционер, испаритель, вентилятор - все что с этим связано
Спасибо , значит сегодня буду разбираться что и как там (((
П2, Араб, Коротыш , 2000 год , 2й месяц , 6G72 12V , МКПП , Суперселект , 32 COMFORSER CF1100 , RUNVA-9500 EWB , BILSTEIN B6 OFFROAD
- atas80
- Сообщения: 2880
- Зарегистрирован: 21 янв 2009, 19:38
- Двигатель:: 4M40
- Мой автомобиль(и):: Pajero 2 46 ATF
- Откуда: Киров
- Откуда: Kirov [43]
- Благодарил (а): 7 раз
- Поблагодарили: 72 раза
Кондиционер, испаритель, вентилятор - все что с этим связано
Да там все просто - контакт или есть или его нет 

Mitsubishi PAJERO-II | 1995 | 4M40 | V46W | АКПП | GLS
Я горд за РОССИЙСКУЮ ИМПЕРИЮ - мы можем управлять "белым домом" и сажать своих людей в "овальный кабинет" !!!
Я горд за РОССИЙСКУЮ ИМПЕРИЮ - мы можем управлять "белым домом" и сажать своих людей в "овальный кабинет" !!!
- Deem-On
- Сообщения: 1014
- Зарегистрирован: 18 мар 2011, 17:49
- Двигатель:: 4M40
- Мой автомобиль(и):: Паджеро 2, был
- Откуда: Ярославль
- Благодарил (а): 8 раз
- Поблагодарили: 95 раз
Кондиционер, испаритель, вентилятор - все что с этим связано
Вот тема по ремонту моторчика вентилятора: http://www.pajero4x4.ru/bbs/phpBB2/view ... 0&start=40 , там все есть как снять, проверить, разобрать, и чем заменить если починить не удастся.
П-2 1994 длинный,GLS,4М40,АКПП,SS,А/Т32"-увы, уже донор
- atas80
- Сообщения: 2880
- Зарегистрирован: 21 янв 2009, 19:38
- Двигатель:: 4M40
- Мой автомобиль(и):: Pajero 2 46 ATF
- Откуда: Киров
- Откуда: Kirov [43]
- Благодарил (а): 7 раз
- Поблагодарили: 72 раза
Кондиционер, испаритель, вентилятор - все что с этим связано
и да... без вентилятора кондиционера с включенным кондиционером ездить не очень (даже опасно) хорошо !
Перегрев мотора выше нормы в жару обеспечен 100%. Эффективность кондиционера в целом 1/2 будет.
Перегрев мотора выше нормы в жару обеспечен 100%. Эффективность кондиционера в целом 1/2 будет.
Mitsubishi PAJERO-II | 1995 | 4M40 | V46W | АКПП | GLS
Я горд за РОССИЙСКУЮ ИМПЕРИЮ - мы можем управлять "белым домом" и сажать своих людей в "овальный кабинет" !!!
Я горд за РОССИЙСКУЮ ИМПЕРИЮ - мы можем управлять "белым домом" и сажать своих людей в "овальный кабинет" !!!
- Unklown
- Сообщения: 2631
- Зарегистрирован: 18 дек 2012, 05:48
- Двигатель:: 6G74, SOHC бензин, газ
- Мой автомобиль(и):: MONTERO SPORT[K99W ] [GRXEL2M ]
- Откуда: Алтай
- Благодарил (а): 2 раза
- Поблагодарили: 100 раз
Кондиционер, испаритель, вентилятор - все что с этим связано
нет
всмысле есть алгоритм, как я написАл
- atas80
- Сообщения: 2880
- Зарегистрирован: 21 янв 2009, 19:38
- Двигатель:: 4M40
- Мой автомобиль(и):: Pajero 2 46 ATF
- Откуда: Киров
- Откуда: Kirov [43]
- Благодарил (а): 7 раз
- Поблагодарили: 72 раза
Кондиционер, испаритель, вентилятор - все что с этим связано
"Какие ващи доказательства" ? С 

Mitsubishi PAJERO-II | 1995 | 4M40 | V46W | АКПП | GLS
Я горд за РОССИЙСКУЮ ИМПЕРИЮ - мы можем управлять "белым домом" и сажать своих людей в "овальный кабинет" !!!
Я горд за РОССИЙСКУЮ ИМПЕРИЮ - мы можем управлять "белым домом" и сажать своих людей в "овальный кабинет" !!!
- SELENGER
- Сообщения: 2971
- Зарегистрирован: 26 янв 2016, 14:57
- Двигатель:: 6G72
- Мой автомобиль(и):: Mitsubishi Pajero 2
- Откуда: Новороссийск
- Откуда: Новороссийск
- Благодарил (а): 66 раз
- Поблагодарили: 122 раза
- Контактная информация:
Кондиционер, испаритель, вентилятор - все что с этим связано
Постучал отверткой по мотору , мотор ожил . Щетки ...
Ну и готовлюсь на разбор и чистку осушителя . Единственно что по хорошему там бы поменять два колечка MR117055 , нет их нигде (
Ну и готовлюсь на разбор и чистку осушителя . Единственно что по хорошему там бы поменять два колечка MR117055 , нет их нигде (
П2, Араб, Коротыш , 2000 год , 2й месяц , 6G72 12V , МКПП , Суперселект , 32 COMFORSER CF1100 , RUNVA-9500 EWB , BILSTEIN B6 OFFROAD
- Unklown
- Сообщения: 2631
- Зарегистрирован: 18 дек 2012, 05:48
- Двигатель:: 6G74, SOHC бензин, газ
- Мой автомобиль(и):: MONTERO SPORT[K99W ] [GRXEL2M ]
- Откуда: Алтай
- Благодарил (а): 2 раза
- Поблагодарили: 100 раз
Кондиционер, испаритель, вентилятор - все что с этим связано

хотяб тем, что карлосон управляется ЭБУ а не климатом.
ктож ево чистит?
мошт што другое имел ввиду?
- SELENGER
- Сообщения: 2971
- Зарегистрирован: 26 янв 2016, 14:57
- Двигатель:: 6G72
- Мой автомобиль(и):: Mitsubishi Pajero 2
- Откуда: Новороссийск
- Откуда: Новороссийск
- Благодарил (а): 66 раз
- Поблагодарили: 122 раза
- Контактная информация:
Кондиционер, испаритель, вентилятор - все что с этим связано
П2, Араб, Коротыш , 2000 год , 2й месяц , 6G72 12V , МКПП , Суперселект , 32 COMFORSER CF1100 , RUNVA-9500 EWB , BILSTEIN B6 OFFROAD
- atas80
- Сообщения: 2880
- Зарегистрирован: 21 янв 2009, 19:38
- Двигатель:: 4M40
- Мой автомобиль(и):: Pajero 2 46 ATF
- Откуда: Киров
- Откуда: Kirov [43]
- Благодарил (а): 7 раз
- Поблагодарили: 72 раза
Кондиционер, испаритель, вентилятор - все что с этим связано
Можете продолжать так же и думать далее, но не надо людей путать. Схему посмотрите.
Mitsubishi PAJERO-II | 1995 | 4M40 | V46W | АКПП | GLS
Я горд за РОССИЙСКУЮ ИМПЕРИЮ - мы можем управлять "белым домом" и сажать своих людей в "овальный кабинет" !!!
Я горд за РОССИЙСКУЮ ИМПЕРИЮ - мы можем управлять "белым домом" и сажать своих людей в "овальный кабинет" !!!
- SELENGER
- Сообщения: 2971
- Зарегистрирован: 26 янв 2016, 14:57
- Двигатель:: 6G72
- Мой автомобиль(и):: Mitsubishi Pajero 2
- Откуда: Новороссийск
- Откуда: Новороссийск
- Благодарил (а): 66 раз
- Поблагодарили: 122 раза
- Контактная информация:
Кондиционер, испаритель, вентилятор - все что с этим связано
Вентилятор победил , закончились щетки . Дальше больше . Выкачал фрион , буду разжирать чистить радиатор в салоне.
П2, Араб, Коротыш , 2000 год , 2й месяц , 6G72 12V , МКПП , Суперселект , 32 COMFORSER CF1100 , RUNVA-9500 EWB , BILSTEIN B6 OFFROAD
- atas80
- Сообщения: 2880
- Зарегистрирован: 21 янв 2009, 19:38
- Двигатель:: 4M40
- Мой автомобиль(и):: Pajero 2 46 ATF
- Откуда: Киров
- Откуда: Kirov [43]
- Благодарил (а): 7 раз
- Поблагодарили: 72 раза
Кондиционер, испаритель, вентилятор - все что с этим связано
Так удобно сначала в кефир пернуть, а потом чушь в ответ нести...
Mitsubishi PAJERO-II | 1995 | 4M40 | V46W | АКПП | GLS
Я горд за РОССИЙСКУЮ ИМПЕРИЮ - мы можем управлять "белым домом" и сажать своих людей в "овальный кабинет" !!!
Я горд за РОССИЙСКУЮ ИМПЕРИЮ - мы можем управлять "белым домом" и сажать своих людей в "овальный кабинет" !!!
- Unklown
- Сообщения: 2631
- Зарегистрирован: 18 дек 2012, 05:48
- Двигатель:: 6G74, SOHC бензин, газ
- Мой автомобиль(и):: MONTERO SPORT[K99W ] [GRXEL2M ]
- Откуда: Алтай
- Благодарил (а): 2 раза
- Поблагодарили: 100 раз
Кондиционер, испаритель, вентилятор - все что с этим связано
Зачем Вы себя обнародовали?
пруф в студию о своей праведности. плиз
если тест карлсона запускаеца с любой проги диагностики ч.з. ЭБУ мотора
к чему он относица?
- atas80
- Сообщения: 2880
- Зарегистрирован: 21 янв 2009, 19:38
- Двигатель:: 4M40
- Мой автомобиль(и):: Pajero 2 46 ATF
- Откуда: Киров
- Откуда: Kirov [43]
- Благодарил (а): 7 раз
- Поблагодарили: 72 раза
Кондиционер, испаритель, вентилятор - все что с этим связано
При чем тут ЭБУ ?
Речь идет о вашем "алгоритме":
"он работает при первом вкл. до первого выкл муфты.
потом только при перегреве"
А по вашему "алгоритму" получается, что если блок управления кондиционером в режиме ECO отключил муфту по показаниям температурных датчиков с испарителя, то включится вентилятор ТОЛЬКО ПРИ ПЕРЕГРЕВЕ.
Перегреве чего ?
Фигня... Реле вентилятора работает ВСЕГДА когда включено РЕЛЕ муфты компрессора. И так же при перегреве двигателя, но это уже другая история. При этом вентилятор будет работать даже тогда когда не работает сам компрессор по причине отсутствия давления.
Моя праведность - схема что я приложил ранее + опыт восстановления с НУЛЯ кондиционера и всей его электронной части.
Речь идет о вашем "алгоритме":
"он работает при первом вкл. до первого выкл муфты.
потом только при перегреве"
А по вашему "алгоритму" получается, что если блок управления кондиционером в режиме ECO отключил муфту по показаниям температурных датчиков с испарителя, то включится вентилятор ТОЛЬКО ПРИ ПЕРЕГРЕВЕ.
Перегреве чего ?
Фигня... Реле вентилятора работает ВСЕГДА когда включено РЕЛЕ муфты компрессора. И так же при перегреве двигателя, но это уже другая история. При этом вентилятор будет работать даже тогда когда не работает сам компрессор по причине отсутствия давления.
Моя праведность - схема что я приложил ранее + опыт восстановления с НУЛЯ кондиционера и всей его электронной части.
Mitsubishi PAJERO-II | 1995 | 4M40 | V46W | АКПП | GLS
Я горд за РОССИЙСКУЮ ИМПЕРИЮ - мы можем управлять "белым домом" и сажать своих людей в "овальный кабинет" !!!
Я горд за РОССИЙСКУЮ ИМПЕРИЮ - мы можем управлять "белым домом" и сажать своих людей в "овальный кабинет" !!!
- atas80
- Сообщения: 2880
- Зарегистрирован: 21 янв 2009, 19:38
- Двигатель:: 4M40
- Мой автомобиль(и):: Pajero 2 46 ATF
- Откуда: Киров
- Откуда: Kirov [43]
- Благодарил (а): 7 раз
- Поблагодарили: 72 раза
Кондиционер, испаритель, вентилятор - все что с этим связано
Да и про тест с ЭБУ Карлсона на наших машинах как-то мне с трудом верится.
Это может на современных авто где все идет в ЭБУ может быть, но не на P2
Это может на современных авто где все идет в ЭБУ может быть, но не на P2
Mitsubishi PAJERO-II | 1995 | 4M40 | V46W | АКПП | GLS
Я горд за РОССИЙСКУЮ ИМПЕРИЮ - мы можем управлять "белым домом" и сажать своих людей в "овальный кабинет" !!!
Я горд за РОССИЙСКУЮ ИМПЕРИЮ - мы можем управлять "белым домом" и сажать своих людей в "овальный кабинет" !!!
- SELENGER
- Сообщения: 2971
- Зарегистрирован: 26 янв 2016, 14:57
- Двигатель:: 6G72
- Мой автомобиль(и):: Mitsubishi Pajero 2
- Откуда: Новороссийск
- Откуда: Новороссийск
- Благодарил (а): 66 раз
- Поблагодарили: 122 раза
- Контактная информация:
Кондиционер, испаритель, вентилятор - все что с этим связано
НУ все кондюк победил ) Радиаторы помыл , вентилятор починил . Заправили 500 грамм фриона , и 10 масла. Холодит хорошо .
П2, Араб, Коротыш , 2000 год , 2й месяц , 6G72 12V , МКПП , Суперселект , 32 COMFORSER CF1100 , RUNVA-9500 EWB , BILSTEIN B6 OFFROAD