Под номером 82752 реле омывателя фар MB617352 если ничего не путаю.дядя Джека писал(а):Captain Sergio,а кто это под номером 82752.
Домино Трофи 2026 - 25 Апреля - Обсудить и спросить тут.
Проблема с ближним светом фар
Модераторы: SNOOPER, Nbf, Romik, BAlex
- Captain Sergio
- Сообщения: 4557
- Зарегистрирован: 30 янв 2012, 22:01
- Двигатель:: 4G18
- Мой автомобиль(и):: Pajero Пинин, 1999, АКПП, BMW X5
- Откуда: Ульяновск
- Благодарил (а): 264 раза
- Поблагодарили: 346 раз
Re: Проблема с ближним светом фар
Сергей. Все будет хорошо! Грязезащита для рамных автомобилей.
- дядя Джека
- Сообщения: 504
- Зарегистрирован: 21 авг 2011, 18:21
- Двигатель:: 6G74,GDI
- Мой автомобиль(и):: Паджеро,японец,99г., рестайл
- Откуда: Ангарск
- Откуда: Ангарск
- Благодарил (а): 13 раз
- Поблагодарили: 7 раз
Re: Проблема с ближним светом фар
а омыватель фар никак не может быть связан с ближним?Кстати у меня он отсутвует
тел.:т.8-902-769-два два- четыре девять
- Captain Sergio
- Сообщения: 4557
- Зарегистрирован: 30 янв 2012, 22:01
- Двигатель:: 4G18
- Мой автомобиль(и):: Pajero Пинин, 1999, АКПП, BMW X5
- Откуда: Ульяновск
- Благодарил (а): 264 раза
- Поблагодарили: 346 раз
Re: Проблема с ближним светом фар
Скорее всего связан. Количество включений омывателя должно быть прямо пропорционально попыткам очистить лобовое стекло. Возможно это делается только когда включен ближний свет фар, что логично. К сожалению у меня никогда не было машин с омывателями фар. Точнее сказать не могу.дядя Джека писал(а):а омыватель фар никак не может быть связан с ближним?Кстати у меня он отсутвует
Сергей. Все будет хорошо! Грязезащита для рамных автомобилей.
- Карбафос
- Сообщения: 8391
- Зарегистрирован: 10 дек 2008, 16:16
- Двигатель:: 6G72 12V
- Мой автомобиль(и):: Пыжикк
- Откуда: УУууууу...
- Откуда: Улан-Удэ
- Благодарил (а): 14 раз
- Поблагодарили: 48 раз
- Контактная информация:
Re: Проблема с ближним светом фар
У меня предусмотрен омыватель фар, но удалён операционным путём из-за силовика. Панель снимал...и там вот такихдядя Джека писал(а):Captain Sergio,а кто это под номером 82752.
Вот разъём пошел по проводам ,два белых ушли к отключенному разъёму синего цвета ж/б к откушенному концу в синей изоленте остальные идут в толстые жгуты под щиток приборов
девайсов у меня не наблюдается. Там, только коробка круиза у меня.
П2:1995 г.,LT285*75*16, 6G72 12V, МКПП, Принудительная блокировка сзади, 4 см, силовые бампера, CоmeUР9500, 3 дв, Араб, счасливый обладатель АСЛ 1985 года выпуска заточена как бритва! Вопрос: Джип должен быть вровень с грязью или выпирать??!!
- Captain Sergio
- Сообщения: 4557
- Зарегистрирован: 30 янв 2012, 22:01
- Двигатель:: 4G18
- Мой автомобиль(и):: Pajero Пинин, 1999, АКПП, BMW X5
- Откуда: Ульяновск
- Благодарил (а): 264 раза
- Поблагодарили: 346 раз
Re: Проблема с ближним светом фар
Я перелопатил много-много страниц фотографий блоков управления от паджер на brains.su. Там есть все для Паджер, но такого блока я не нашел. Могу попробовать раскопать описание микроконтроллера, возможно там есть какие-то хитрые порты, которые натолкнут на какую-нибудь мысль. Но скорее всего там все стандартно. Пока все.
Сергей. Все будет хорошо! Грязезащита для рамных автомобилей.
- homa70
- Сообщения: 545
- Зарегистрирован: 05 дек 2010, 18:57
- Двигатель:: 4M40
- Мой автомобиль(и):: МП 2 1997
- Откуда: г. Урюпинск
- Откуда: Урюпинск(и это правда)
- Благодарил (а): 4 раза
- Поблагодарили: 33 раза
Re: Проблема с ближним светом фар
У мну стоит омывайка фар, но она включается только при ближнем свете и от фар берет только питание и никак не связана с коммутацией света фар. Включается кнопочкой с торца на левом рычаге гитары.
МП2 1997 5 дв 4М40 SS R/D lock ручка webasto 32X11.5 R15 MJ-300 мой первый дизель и джип
- дядя Джека
- Сообщения: 504
- Зарегистрирован: 21 авг 2011, 18:21
- Двигатель:: 6G74,GDI
- Мой автомобиль(и):: Паджеро,японец,99г., рестайл
- Откуда: Ангарск
- Откуда: Ангарск
- Благодарил (а): 13 раз
- Поблагодарили: 7 раз
Re: Проблема с ближним светом фар
homa70,а при дальнем омыватель фар работает?руль правый?
тел.:т.8-902-769-два два- четыре девять
- homa70
- Сообщения: 545
- Зарегистрирован: 05 дек 2010, 18:57
- Двигатель:: 4M40
- Мой автомобиль(и):: МП 2 1997
- Откуда: г. Урюпинск
- Откуда: Урюпинск(и это правда)
- Благодарил (а): 4 раза
- Поблагодарили: 33 раза
Re: Проблема с ближним светом фар
Руль левый. При дальнем не пробовал.
МП2 1997 5 дв 4М40 SS R/D lock ручка webasto 32X11.5 R15 MJ-300 мой первый дизель и джип
- дядя Джека
- Сообщения: 504
- Зарегистрирован: 21 авг 2011, 18:21
- Двигатель:: 6G74,GDI
- Мой автомобиль(и):: Паджеро,японец,99г., рестайл
- Откуда: Ангарск
- Откуда: Ангарск
- Благодарил (а): 13 раз
- Поблагодарили: 7 раз
Re: Проблема с ближним светом фар
тел.:т.8-902-769-два два- четыре девять
- Captain Sergio
- Сообщения: 4557
- Зарегистрирован: 30 янв 2012, 22:01
- Двигатель:: 4G18
- Мой автомобиль(и):: Pajero Пинин, 1999, АКПП, BMW X5
- Откуда: Ульяновск
- Благодарил (а): 264 раза
- Поблагодарили: 346 раз
Re: Проблема с ближним светом фар
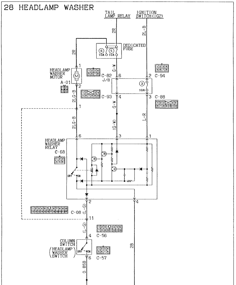
Нехилая такая релюха с микроконтроллеромдядя Джека писал(а):![]()
![]()
по ходу это всё же релюха омывателя фар,произвожу ликвидацию
Сергей. Все будет хорошо! Грязезащита для рамных автомобилей.
- дядя Джека
- Сообщения: 504
- Зарегистрирован: 21 авг 2011, 18:21
- Двигатель:: 6G74,GDI
- Мой автомобиль(и):: Паджеро,японец,99г., рестайл
- Откуда: Ангарск
- Откуда: Ангарск
- Благодарил (а): 13 раз
- Поблагодарили: 7 раз
Re: Проблема с ближним светом фар
промлема решена при помощи кусачек,паяльника и изоленты(разъем так и не извлёк).Почему-то загорелся ABS
тел.:т.8-902-769-два два- четыре девять
- saper31
- Сообщения: 2403
- Зарегистрирован: 13 сен 2009, 19:17
- Двигатель:: 6G72
- Мой автомобиль(и):: MPSport
- Откуда: БЕЛГОРОД 31
- Благодарил (а): 3 раза
- Поблагодарили: 106 раз

