TRT "107-108" Для стандарта и не только! (4.04.2026) Форум Обсуждение FAQ
не закрывается дроссельная заслонка
Модераторы: SNOOPER, Nbf, Romik, BAlex, drcham, алексей - Маленький Мук, DenVer, Алекс
- Vitalya-74
- Сообщения: 3998
- Зарегистрирован: 30 дек 2007, 13:01
- Двигатель:: 4М41
- Мой автомобиль(и):: Pajero
- Откуда: Челябинск
- Откуда: Уссурийск, Белогорск и уже Челябинск [74]
- Благодарил (а): 1 раз
- Поблагодарили: 150 раз
Re: не закрывается дроссельная заслонка
Да, может что то с проводами, но в то же время вы же говорили что при глушении она срабатывает, проверьте, срабатывает (есть на нём напруга) когда глушите. Потому как напруга может не идти, а привод срабатывать от нижнего привода.
Москвич-412, Corolla-88 дв.4е;Crown-89.дв.2LTE; Chaser-90 дв.1G-GE; RVR-95 дв.4D65; Land Cruiser Prado-95 дв.1KZ-TE; Bighorn-99 дв.4JX1; Toyota Harrier-99 дв.5S; Pajero-3-2000 дв.4M41/г.в; AUDI A6 allroad quattro 2007 г.в
-
Skyline202
- Сообщения: 152
- Зарегистрирован: 15 сен 2013, 23:44
- Двигатель:: 4m41
- Мой автомобиль(и):: pajero III Короткий
- Откуда: Новороссийск
- Поблагодарили: 2 раза
Re: не закрывается дроссельная заслонка
Вчера специально смотрел, как работает эта заслонка. На холодном моторе она открыта.
На прогретом моторе холостой она закрыта, управляется "верхним" вакуумом. В момент нажатия на педаль сразу открывает заслонку. В Момент остановки двигателя, подключается "нижний", там видно, что двигается другая деталь.
На прогретом моторе холостой она закрыта, управляется "верхним" вакуумом. В момент нажатия на педаль сразу открывает заслонку. В Момент остановки двигателя, подключается "нижний", там видно, что двигается другая деталь.
-
dimNN
- Сообщения: 44
- Зарегистрирован: 05 мар 2015, 11:17
- Двигатель:: 4М41
- Мой автомобиль(и):: Pajero 3, 2005 г.в., АКПП
- Откуда: Нижний Новгород
- Благодарил (а): 2 раза
Re: не закрывается дроссельная заслонка
Skyline202
"...На прогретом моторе холостой она закрыта, управляется "верхним" вакуумом. В момент нажатия на педаль сразу открывает заслонку. В Момент остановки двигателя, подключается "нижний", там видно, что двигается другая деталь."
+100
Все правильно.
Нижний вакуум у меня работает. На управляющий им клапан приходят отдельные провода. В момент остановки двигателя заслонка закрывается, глушит движок, а потом открывается.
Проблема с "верхним" вакуумом. На управляющий им клапан с ЭБУ напряжение не подается.
Купил книжку. По ней у меня вообще сервопривод должен стоять, а не вакуумные клапана. Типа клапана ставились на моделях до 2002 г.
"...На прогретом моторе холостой она закрыта, управляется "верхним" вакуумом. В момент нажатия на педаль сразу открывает заслонку. В Момент остановки двигателя, подключается "нижний", там видно, что двигается другая деталь."
+100
Все правильно.
Нижний вакуум у меня работает. На управляющий им клапан приходят отдельные провода. В момент остановки двигателя заслонка закрывается, глушит движок, а потом открывается.
Проблема с "верхним" вакуумом. На управляющий им клапан с ЭБУ напряжение не подается.
Купил книжку. По ней у меня вообще сервопривод должен стоять, а не вакуумные клапана. Типа клапана ставились на моделях до 2002 г.
Pajero III 2005 Exclusive
- Vitalya-74
- Сообщения: 3998
- Зарегистрирован: 30 дек 2007, 13:01
- Двигатель:: 4М41
- Мой автомобиль(и):: Pajero
- Откуда: Челябинск
- Откуда: Уссурийск, Белогорск и уже Челябинск [74]
- Благодарил (а): 1 раз
- Поблагодарили: 150 раз
Re: не закрывается дроссельная заслонка
Не важно какого года авто. Электропривод стоит не авто Е-3, вакуумный на Е-2.
Москвич-412, Corolla-88 дв.4е;Crown-89.дв.2LTE; Chaser-90 дв.1G-GE; RVR-95 дв.4D65; Land Cruiser Prado-95 дв.1KZ-TE; Bighorn-99 дв.4JX1; Toyota Harrier-99 дв.5S; Pajero-3-2000 дв.4M41/г.в; AUDI A6 allroad quattro 2007 г.в
-
dimNN
- Сообщения: 44
- Зарегистрирован: 05 мар 2015, 11:17
- Двигатель:: 4М41
- Мой автомобиль(и):: Pajero 3, 2005 г.в., АКПП
- Откуда: Нижний Новгород
- Благодарил (а): 2 раза
Re: не закрывается дроссельная заслонка
Извиняюсь, а "E-3" и "E-2" это что?
Pajero III 2005 Exclusive
- Lukich111
- Сообщения: 3434
- Зарегистрирован: 16 янв 2011, 18:48
- Двигатель:: Бензин
- Мой автомобиль(и):: H-D Sportster 1200, +-самокатик(был) , 3 моноколеса
- Откуда: С-Петербург
- Откуда: C-Пб-(Мурманск)-
- Благодарил (а): 97 раз
- Поблагодарили: 233 раза
Re: не закрывается дроссельная заслонка
Евро -3 и Евро -2 , у вас - Евро 2... ищите управление на верхнюю лягушку.
очень злой бывший ОД
диагностика и чип Mitsubishi
диагностика и чип Mitsubishi
-
dimNN
- Сообщения: 44
- Зарегистрирован: 05 мар 2015, 11:17
- Двигатель:: 4М41
- Мой автомобиль(и):: Pajero 3, 2005 г.в., АКПП
- Откуда: Нижний Новгород
- Благодарил (а): 2 раза
Re: не закрывается дроссельная заслонка
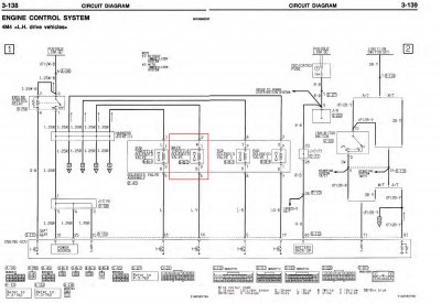
Нашел в других темах
Режимы работы дроссельной заслонки
• При неработающем двигателе
При изменении положения ключа зажигания из ON (включено) в OFF (выключено), вспомогательный электро-
магнитный клапан дроссельной заслонки включается на 6 с, закрывает дроссельную заслонку: это способствует
надежной остановке двигателя. По истечении этого времени, электромагнитный клапан выключается и дрос-
сельная заслонка открывается.
• При запуске двигателя
Оба электромагнитных клапана находятся в выключенном состоянии, поэтому дроссельная заслонка нормально
открыта.
• При работающем двигателе
Оба электромагнитных клапана находятся в выключенном состоянии, поэтому дроссельная заслонка нормально
открыта. Однако, при возникновении нижеследующих обстоятельств, главный электромагнитный клапан дрос-
сельной заслонки включается и дроссельная заслонка частично прикрывается ( 20%) для уменьшения шумов
воздуха на впуске.
1) Температура охлаждающей жидкости в двигателе ≥ 65 - 77°С
2) Атмосферное давление > 92 – 94 кПа
3) Частота вращения коленчатого вала двигателя < 1000 мин-1
4) Выход датчика положения педали акселератора < 1,17 – 2,34%
Эти данные соответствуют состоянию холостого хода.
• При возникновении неисправностей
Дроссельная заслонка частично прикрывается под действием главного электромагнитного клапана дроссельной
заслонки при появлении кодов неисправностей № 21, 26 или 48.
-------------------------------------------------------------------------------------------
Похоже действительно что-то с проводкой
Режимы работы дроссельной заслонки
• При неработающем двигателе
При изменении положения ключа зажигания из ON (включено) в OFF (выключено), вспомогательный электро-
магнитный клапан дроссельной заслонки включается на 6 с, закрывает дроссельную заслонку: это способствует
надежной остановке двигателя. По истечении этого времени, электромагнитный клапан выключается и дрос-
сельная заслонка открывается.
• При запуске двигателя
Оба электромагнитных клапана находятся в выключенном состоянии, поэтому дроссельная заслонка нормально
открыта.
• При работающем двигателе
Оба электромагнитных клапана находятся в выключенном состоянии, поэтому дроссельная заслонка нормально
открыта. Однако, при возникновении нижеследующих обстоятельств, главный электромагнитный клапан дрос-
сельной заслонки включается и дроссельная заслонка частично прикрывается ( 20%) для уменьшения шумов
воздуха на впуске.
1) Температура охлаждающей жидкости в двигателе ≥ 65 - 77°С
2) Атмосферное давление > 92 – 94 кПа
3) Частота вращения коленчатого вала двигателя < 1000 мин-1
4) Выход датчика положения педали акселератора < 1,17 – 2,34%
Эти данные соответствуют состоянию холостого хода.
• При возникновении неисправностей
Дроссельная заслонка частично прикрывается под действием главного электромагнитного клапана дроссельной
заслонки при появлении кодов неисправностей № 21, 26 или 48.
-------------------------------------------------------------------------------------------
Похоже действительно что-то с проводкой
Pajero III 2005 Exclusive
- Vitalya-74
- Сообщения: 3998
- Зарегистрирован: 30 дек 2007, 13:01
- Двигатель:: 4М41
- Мой автомобиль(и):: Pajero
- Откуда: Челябинск
- Откуда: Уссурийск, Белогорск и уже Челябинск [74]
- Благодарил (а): 1 раз
- Поблагодарили: 150 раз
Re: не закрывается дроссельная заслонка
Тоже самое что тебе уже тут и говорили. Обратил сейчас внимание на последнюю твою фотку. Температура топлива у тедя почему то очень высока!!!!! Это может говорить о низком внутрикорпусном давлении. Насос не успевает стывать из за слабого протока топлива. Обычна такая температута очень жарким летом на летнем топливе. А тут у вас как я понимаю зимнее залить. Не хорошо!
Москвич-412, Corolla-88 дв.4е;Crown-89.дв.2LTE; Chaser-90 дв.1G-GE; RVR-95 дв.4D65; Land Cruiser Prado-95 дв.1KZ-TE; Bighorn-99 дв.4JX1; Toyota Harrier-99 дв.5S; Pajero-3-2000 дв.4M41/г.в; AUDI A6 allroad quattro 2007 г.в
- SmoAG
- Сообщения: 7842
- Зарегистрирован: 16 янв 2015, 13:11
- Двигатель:: 4m41
- Мой автомобиль(и):: Pajero 3, 2005 АКПП
- Откуда: Воронеж
- Откуда: Воронеж
- Благодарил (а): 99 раз
- Поблагодарили: 541 раз
Re: не закрывается дроссельная заслонка
Vitalya-74, подскажи как повысить внутрикорпусное давление? много тем видел как проверить, но как повысить не встречал.
Заранее спасибо!
Заранее спасибо!
Здесь должна была быть какая-нибудь цитата из вк или другого ресурса, но вот что то не нашёл ни чего что могло бы выразить моё миропонимание сейчас;)
-
dimNN
- Сообщения: 44
- Зарегистрирован: 05 мар 2015, 11:17
- Двигатель:: 4М41
- Мой автомобиль(и):: Pajero 3, 2005 г.в., АКПП
- Откуда: Нижний Новгород
- Благодарил (а): 2 раза
Re: не закрывается дроссельная заслонка
Vitalya-74, Во как... соляра для насоса как антифриз работает????? и потом.... в ТНВД чему греться????
Pajero III 2005 Exclusive
- Vitalya-74
- Сообщения: 3998
- Зарегистрирован: 30 дек 2007, 13:01
- Двигатель:: 4М41
- Мой автомобиль(и):: Pajero
- Откуда: Челябинск
- Откуда: Уссурийск, Белогорск и уже Челябинск [74]
- Благодарил (а): 1 раз
- Поблагодарили: 150 раз
Re: не закрывается дроссельная заслонка
А вот нискажу чем она там греется!dimNN писал(а):Vitalya-74, Во как... соляра для насоса как антифриз работает????? и потом.... в ТНВД чему греться????
Москвич-412, Corolla-88 дв.4е;Crown-89.дв.2LTE; Chaser-90 дв.1G-GE; RVR-95 дв.4D65; Land Cruiser Prado-95 дв.1KZ-TE; Bighorn-99 дв.4JX1; Toyota Harrier-99 дв.5S; Pajero-3-2000 дв.4M41/г.в; AUDI A6 allroad quattro 2007 г.в
- Vitalya-74
- Сообщения: 3998
- Зарегистрирован: 30 дек 2007, 13:01
- Двигатель:: 4М41
- Мой автомобиль(и):: Pajero
- Откуда: Челябинск
- Откуда: Уссурийск, Белогорск и уже Челябинск [74]
- Благодарил (а): 1 раз
- Поблагодарили: 150 раз
Re: не закрывается дроссельная заслонка
Для начала проверьте на продуваемость верхний штуцер обратки, потом проверить надо механическим путём реальное давление и его падение после остановки, а потом делать выводы. У меня на ютюбе куча (не, не куча, кучка) роликов и на эту тему есть.SmoAG писал(а):Vitalya-74, подскажи как повысить внутрикорпусное давление? много тем видел как проверить, но как повысить не встречал.
Заранее спасибо!
Москвич-412, Corolla-88 дв.4е;Crown-89.дв.2LTE; Chaser-90 дв.1G-GE; RVR-95 дв.4D65; Land Cruiser Prado-95 дв.1KZ-TE; Bighorn-99 дв.4JX1; Toyota Harrier-99 дв.5S; Pajero-3-2000 дв.4M41/г.в; AUDI A6 allroad quattro 2007 г.в
- SmoAG
- Сообщения: 7842
- Зарегистрирован: 16 янв 2015, 13:11
- Двигатель:: 4m41
- Мой автомобиль(и):: Pajero 3, 2005 АКПП
- Откуда: Воронеж
- Откуда: Воронеж
- Благодарил (а): 99 раз
- Поблагодарили: 541 раз
Re: не закрывается дроссельная заслонка
dimNN, не хочу показаться не невежественным, но законы физики ни кто не отменял, повышение давления приводит к увеличению температуры, плюс блок который греется, ну и всякого рода дифузоры меняющие направление и ток жидкости, а еще обратку с форсунок забыл. А в остальном она работает как антифриз для охлаждения и как масло для смазки.
Здесь должна была быть какая-нибудь цитата из вк или другого ресурса, но вот что то не нашёл ни чего что могло бы выразить моё миропонимание сейчас;)
- Vitalya-74
- Сообщения: 3998
- Зарегистрирован: 30 дек 2007, 13:01
- Двигатель:: 4М41
- Мой автомобиль(и):: Pajero
- Откуда: Челябинск
- Откуда: Уссурийск, Белогорск и уже Челябинск [74]
- Благодарил (а): 1 раз
- Поблагодарили: 150 раз
Re: не закрывается дроссельная заслонка
Совершенно верно! Ещё забыл добавить что в централизации ток даже на средней нагрузки равен 3А, Представляете сколько тепла выделяется, если чайник у вас на кухни берёт только 2А.SmoAG писал(а):dimNN, не хочу показаться не невежественным, но законы физики ни кто не отменял, повышение давления приводит к увеличению температуры, плюс блок который греется, ну и всякого рода дифузоры меняющие направление и ток жидкости, а еще обратку с форсунок забыл. А в остальном она работает как антифриз для охлаждения и как масло для смазки.
Москвич-412, Corolla-88 дв.4е;Crown-89.дв.2LTE; Chaser-90 дв.1G-GE; RVR-95 дв.4D65; Land Cruiser Prado-95 дв.1KZ-TE; Bighorn-99 дв.4JX1; Toyota Harrier-99 дв.5S; Pajero-3-2000 дв.4M41/г.в; AUDI A6 allroad quattro 2007 г.в
-
dimNN
- Сообщения: 44
- Зарегистрирован: 05 мар 2015, 11:17
- Двигатель:: 4М41
- Мой автомобиль(и):: Pajero 3, 2005 г.в., АКПП
- Откуда: Нижний Новгород
- Благодарил (а): 2 раза
Re: не закрывается дроссельная заслонка
Спорить не буду (тем более это мой первый дизель и ТНВД я первый раз увидел месяца 4 назад), но мне почему - то кажется, что проходя через "обратку" т.е. через двигатель (а сечение топливопровода очень небольшое) топливо нагревается в разы сильнее, чем топливо в централизации под давлением.Vitalya-74 писал(а):Совершенно верно! Ещё забыл добавить что в централизации ток даже на средней нагрузки равен 3А, Представляете сколько тепла выделяется, если чайник у вас на кухни берёт только 2А.SmoAG писал(а):dimNN, не хочу показаться не невежественным, но законы физики ни кто не отменял, повышение давления приводит к увеличению температуры, плюс блок который греется, ну и всякого рода дифузоры меняющие направление и ток жидкости, а еще обратку с форсунок забыл. А в остальном она работает как антифриз для охлаждения и как масло для смазки.
А вероятность того что сканер неправильно показывает температуру есть? Т.к. "обратка" в бак на ощупь не горячая, а если и теплая, то слегка.
Но если греется, есть смысл Винсом промыть?
Pajero III 2005 Exclusive
- Vitalya-74
- Сообщения: 3998
- Зарегистрирован: 30 дек 2007, 13:01
- Двигатель:: 4М41
- Мой автомобиль(и):: Pajero
- Откуда: Челябинск
- Откуда: Уссурийск, Белогорск и уже Челябинск [74]
- Благодарил (а): 1 раз
- Поблагодарили: 150 раз
Re: не закрывается дроссельная заслонка
Дело в том что обратка с форсунок не совсем входит в насос. Её вытягивает и выбрасывает в бак. Если сканер кажет не верно, значит эти не верные показания видит и ЭБУ. значит не верно регулирует. Но это вряд ли...........
Москвич-412, Corolla-88 дв.4е;Crown-89.дв.2LTE; Chaser-90 дв.1G-GE; RVR-95 дв.4D65; Land Cruiser Prado-95 дв.1KZ-TE; Bighorn-99 дв.4JX1; Toyota Harrier-99 дв.5S; Pajero-3-2000 дв.4M41/г.в; AUDI A6 allroad quattro 2007 г.в
-
dimNN
- Сообщения: 44
- Зарегистрирован: 05 мар 2015, 11:17
- Двигатель:: 4М41
- Мой автомобиль(и):: Pajero 3, 2005 г.в., АКПП
- Откуда: Нижний Новгород
- Благодарил (а): 2 раза
Re: не закрывается дроссельная заслонка
Но собственно вернемся к дроссельной заслонке которая так и не хочет закрываться. Причина в ЭБУ двигателя. Напряжение на клапан подается 14,5 В (ориентировочно), но клапан не открывается т.к. похоже не хватает сила тока из за высокого сопротивления (возможно плохое подключение к массе, хуже если транзистору 3,14дец).
Что делал:
1. Подключил к клемме клапана вольтметр. (на холостых показывает 14,5 В, газуешь - напряжение падает до 0).
2. Подключаю клемму к клапану - не работает.
3. Десятиминутный ступор.... пинание по колесам и протирание фар....
4. Вместо минусового провода подключил провод напрямую с аккумулятора - заработало.
Вопрос....
ЭбУ двигателя под рулевой колонкой находится? и насколько к нему проблематично подобраться?
Что посоветуете делать дальше?
Что делал:
1. Подключил к клемме клапана вольтметр. (на холостых показывает 14,5 В, газуешь - напряжение падает до 0).
2. Подключаю клемму к клапану - не работает.
3. Десятиминутный ступор.... пинание по колесам и протирание фар....
4. Вместо минусового провода подключил провод напрямую с аккумулятора - заработало.
Вопрос....
ЭбУ двигателя под рулевой колонкой находится? и насколько к нему проблематично подобраться?
Что посоветуете делать дальше?
Последний раз редактировалось dimNN 23 мар 2015, 01:28, всего редактировалось 2 раза.
Pajero III 2005 Exclusive
- Vitalya-74
- Сообщения: 3998
- Зарегистрирован: 30 дек 2007, 13:01
- Двигатель:: 4М41
- Мой автомобиль(и):: Pajero
- Откуда: Челябинск
- Откуда: Уссурийск, Белогорск и уже Челябинск [74]
- Благодарил (а): 1 раз
- Поблагодарили: 150 раз
Re: не закрывается дроссельная заслонка
ЭБУ двигателя так же как и ЭБУ АКПП находится у правой ногой переднего пассажира. За пластиковым щитком. Зацепи на эти клеммы реле и через него запитайся. Ну это так, если не хочешь разбираться. А так надо найти в чём дело.
Москвич-412, Corolla-88 дв.4е;Crown-89.дв.2LTE; Chaser-90 дв.1G-GE; RVR-95 дв.4D65; Land Cruiser Prado-95 дв.1KZ-TE; Bighorn-99 дв.4JX1; Toyota Harrier-99 дв.5S; Pajero-3-2000 дв.4M41/г.в; AUDI A6 allroad quattro 2007 г.в
-
dimNN
- Сообщения: 44
- Зарегистрирован: 05 мар 2015, 11:17
- Двигатель:: 4М41
- Мой автомобиль(и):: Pajero 3, 2005 г.в., АКПП
- Откуда: Нижний Новгород
- Благодарил (а): 2 раза
Re: не закрывается дроссельная заслонка
Разбираться хочу.... Проверил "гребенки" массы. На фотографии, № 2 - окислена была серьезно. Шуруп от нее поменял на прикрученный рядом (ржавый на фото, обведен красным). Обрадовался - типа нашел причину....
№1 отсоединить разъем не смог, но в месте крепления к кузову не окислена.
к ЭБУ решил пока не лезть - понадеялся что заработает....
Завел машинку .... - облом
(заслонка стоит - чек горит)
К ЭБУ лезть как то стремно и непонятно где он .... под № 1 или под № 2 (с желтыми разъемами) и чтобы с ним работать надо снимать воздуховод ???????
p.s. забыл сообщить про радостное событие - нашел салонный фильтр (порадовало, что легкодоступен и меняется в течении 5 мин.)
№1 отсоединить разъем не смог, но в месте крепления к кузову не окислена.
к ЭБУ решил пока не лезть - понадеялся что заработает....
Завел машинку .... - облом
К ЭБУ лезть как то стремно и непонятно где он .... под № 1 или под № 2 (с желтыми разъемами) и чтобы с ним работать надо снимать воздуховод ???????
p.s. забыл сообщить про радостное событие - нашел салонный фильтр (порадовало, что легкодоступен и меняется в течении 5 мин.)
Pajero III 2005 Exclusive
- Lukich111
- Сообщения: 3434
- Зарегистрирован: 16 янв 2011, 18:48
- Двигатель:: Бензин
- Мой автомобиль(и):: H-D Sportster 1200, +-самокатик(был) , 3 моноколеса
- Откуда: С-Петербург
- Откуда: C-Пб-(Мурманск)-
- Благодарил (а): 97 раз
- Поблагодарили: 233 раза
Re: не закрывается дроссельная заслонка
Кажись номер 1й, надо снимать(либо достаточно просто рассоединить его, уже не помню) корпус того большого соединительного разъема, что на верхней фотке. Потом отцеплять разъемы на ЭБУ и пару гаечек крепления. Потом тянуть его вниз- он соскочит с уплотнительных рожек верхней части, потом извернуться и протащить его выворачивая, всяко разно... большой соед. разъем с верхней фотки не надо застегивать, без него машина работает.
очень злой бывший ОД
диагностика и чип Mitsubishi
диагностика и чип Mitsubishi
