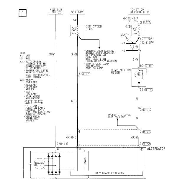
Б-40- 8ми контактный разъем под акб. При включении зажигания лампа акб не горит.YuginZ писал(а):Я пока еще не смотрел схемы и месторасположение разъема Б-40 .
Еще уточнение ,возможно повтор .
При включении зажигания ,лампа АКБ не горит ?
При этом на клемме провода возбуждения генератора - масса ? Которая при исправной цепи до щитка ,зажигает лампу АКБ при включении зажигания .
На проводе возбуждения мерил напряжение- 0,00в
