Неверное утверждение. ECU связан с ABS проводком, через который идут, как минимум, коды ошибок, а может и еще что-то. Сама ABS связана с датчиками 4WD. При проблемах с соленоидами лампочка ABS, конечно, не загорится, зато она загорится, если будет слишком долго мигать лампочка межосевого дифа, это я лично наблюдал, пока датчики не поменял на раздатке. Возможны еще какие-то взаимодействия, никто ж не знает, поскольку это не описано.Vik273 писал(а):Система ABS на П2 совершенно независимая система, ну если и связана то только через АКБ
В копилку знаний про ABS
Модераторы: SNOOPER, Nbf, Romik, BAlex, drcham, алексей - Маленький Мук
- de
- Сообщения: 3993
- Зарегистрирован: 28 мар 2008, 06:00
- Откуда: Йошкар-Ола [12]
- Благодарил (а): 14 раз
- Поблагодарили: 67 раз
Re: В копилку знаний про ABS
MMC P2 1993 6G72 12кл МКПП 7мест
-
Supravod
- Сообщения: 22
- Зарегистрирован: 14 мар 2011, 20:48
- Двигатель:: 6G74 DOHC MPI
- Мой автомобиль(и):: Mitsubishi Pajero II, 1996 г.в., АКПП, SS, левый руль (раньше был правый), BFG Mud-terrain 265/75/16
- Откуда: г.Киров
- Благодарил (а): 1 раз
Re: В копилку знаний про ABS
Всем доброго времени суток. У меня проблема в следующем: постоянно горит лампа АБС. Хотел провести диагностику и считать коды неисправности, но при замыкании первого контакта на массу и включении зажигания лампа АБС вообще не зажигается, зато начинает мигать чек (реле электромагнитных клапанов вытаскивал). В чем причина такого поведения? Как писали здесь на форуме - лампочки в стопах в порядке. Решил прозвонить контакты в колодке на блок управления АБС: датчки на колеса прозваниваются (только сопративление на передние и задние датчики почему-то одинаковое, хотя по мануалу должно отличаться), не прозванивается электромагнитный клапан повышения оборотов ХХ. С напражениями в колодке тоже не все ясно. Хотел проверить предохранитель - не могу его найти. Где он находится? И как проверить этот клапан ХХ? Также мигает индикация полного привода (горят только индикаторы заднего привода, остальные мигают при переключении режимов, передок подключается и отключается нормально), может это влиять на работу АБС? Машину купил месяц назад, только начинаю в ней разбираться. Поиск курил два дня, нужной информации не нашел. Скоро зима, хотелось бы починить АБС. Заранее спасибо.
-
Vitaliy666
- Сообщения: 2727
- Зарегистрирован: 02 сен 2011, 07:53
- Двигатель:: =--=
- Мой автомобиль(и):: =----=
- Откуда: =--=
- Благодарил (а): 11 раз
- Поблагодарили: 143 раза
Re: В копилку знаний про ABS
ну ремонт абс на зиму спорное желание)) в большинстве случаев зимой ой как мешается((( особенно на второй паджере...
-
Vitaliy666
- Сообщения: 2727
- Зарегистрирован: 02 сен 2011, 07:53
- Двигатель:: =--=
- Мой автомобиль(и):: =----=
- Откуда: =--=
- Благодарил (а): 11 раз
- Поблагодарили: 143 раза
Re: В копилку знаний про ABS
ну чтобы работало, это понятно))) я и сказал именно для зимы...Supravod писал(а):Люблю когда все работает, а если будет мешаться отключить не проблема
-
Supravod
- Сообщения: 22
- Зарегистрирован: 14 мар 2011, 20:48
- Двигатель:: 6G74 DOHC MPI
- Мой автомобиль(и):: Mitsubishi Pajero II, 1996 г.в., АКПП, SS, левый руль (раньше был правый), BFG Mud-terrain 265/75/16
- Откуда: г.Киров
- Благодарил (а): 1 раз
Re: В копилку знаний про ABS
А что-нибудь конкретное по поиску неисправности кто-нибудь может предложить?
-
Supravod
- Сообщения: 22
- Зарегистрирован: 14 мар 2011, 20:48
- Двигатель:: 6G74 DOHC MPI
- Мой автомобиль(и):: Mitsubishi Pajero II, 1996 г.в., АКПП, SS, левый руль (раньше был правый), BFG Mud-terrain 265/75/16
- Откуда: г.Киров
- Благодарил (а): 1 раз
Re: В копилку знаний про ABS
мне бы самое главное считать ошибки, почему не работает стандартная диагностика, и от этого уже отталкиваться
-
Vitaliy666
- Сообщения: 2727
- Зарегистрирован: 02 сен 2011, 07:53
- Двигатель:: =--=
- Мой автомобиль(и):: =----=
- Откуда: =--=
- Благодарил (а): 11 раз
- Поблагодарили: 143 раза
Re: В копилку знаний про ABS
вообще, должна работать...точно тот разъем размыкаешь? там их два...в одном проводов по меньше но они и потолще, во втором побольше проводов, но они тоньше, надо разъединять именно второй. Просто раз не горит скорее всего отключаешь питание с абс, как раз силовую часть.
-
Олег....
- Сообщения: 1711
- Зарегистрирован: 21 май 2010, 15:43
- Двигатель:: 6G72
- Мой автомобиль(и):: Montero Sport
- Откуда: Таганрог
- Благодарил (а): 69 раз
- Поблагодарили: 86 раз
- Контактная информация:
Re: В копилку знаний про ABS
А зачем вообще отсоединять проводку от ABS? Я считывал ошибки ABS вообще ничего не отсоединяя...
Montero Sport 2003 6G72. 32е ATэшечки, хобот, радейка. Спальник.
ПРОДАН Montero'94 6G74 АККП Длинный, 31-е мудричи, хобот и крепкий бампер. Рации всякие.
ПРОДАН Montero'94 6G74 АККП Длинный, 31-е мудричи, хобот и крепкий бампер. Рации всякие.
-
Supravod
- Сообщения: 22
- Зарегистрирован: 14 мар 2011, 20:48
- Двигатель:: 6G74 DOHC MPI
- Мой автомобиль(и):: Mitsubishi Pajero II, 1996 г.в., АКПП, SS, левый руль (раньше был правый), BFG Mud-terrain 265/75/16
- Откуда: г.Киров
- Благодарил (а): 1 раз
Re: В копилку знаний про ABS
Не совсем так. Когда я пытаюсь считать ошибки я отключаю только реле электромагнитных клапанов, как в мануале написано, от блока управления ничего не отключаю. Отключал потом, когда прозванивал контакты.
-
Supravod
- Сообщения: 22
- Зарегистрирован: 14 мар 2011, 20:48
- Двигатель:: 6G74 DOHC MPI
- Мой автомобиль(и):: Mitsubishi Pajero II, 1996 г.в., АКПП, SS, левый руль (раньше был правый), BFG Mud-terrain 265/75/16
- Откуда: г.Киров
- Благодарил (а): 1 раз
Re: В копилку знаний про ABS
Пытался также подключить ноутбук с помощью elm327, vag-com, но ничего не вышло. Но это уже вопросы для другой темы... . И нормального сервиса с диагностикой поблизости нет.
- de
- Сообщения: 3993
- Зарегистрирован: 28 мар 2008, 06:00
- Откуда: Йошкар-Ола [12]
- Благодарил (а): 14 раз
- Поблагодарили: 67 раз
Re: В копилку знаний про ABS
Закажи у новозеландцев софт и кабель, не так уж и дорого: http://www.evoscan.com/evoscan-gps-obdii-cables. Мне уже много раз пригодился.Supravod писал(а):Пытался также подключить ноутбук с помощью elm327, vag-com, но ничего не вышло.
MMC P2 1993 6G72 12кл МКПП 7мест
-
Supravod
- Сообщения: 22
- Зарегистрирован: 14 мар 2011, 20:48
- Двигатель:: 6G74 DOHC MPI
- Мой автомобиль(и):: Mitsubishi Pajero II, 1996 г.в., АКПП, SS, левый руль (раньше был правый), BFG Mud-terrain 265/75/16
- Откуда: г.Киров
- Благодарил (а): 1 раз
Re: В копилку знаний про ABS
А где искать предохранитель АБС? В монтажном блоке под капотом и в ногах водителя такого не нашел.
- de
- Сообщения: 3993
- Зарегистрирован: 28 мар 2008, 06:00
- Откуда: Йошкар-Ола [12]
- Благодарил (а): 14 раз
- Поблагодарили: 67 раз
Re: В копилку знаний про ABS
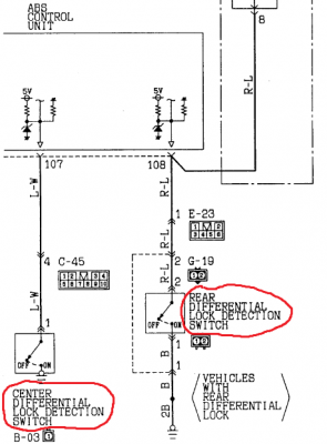
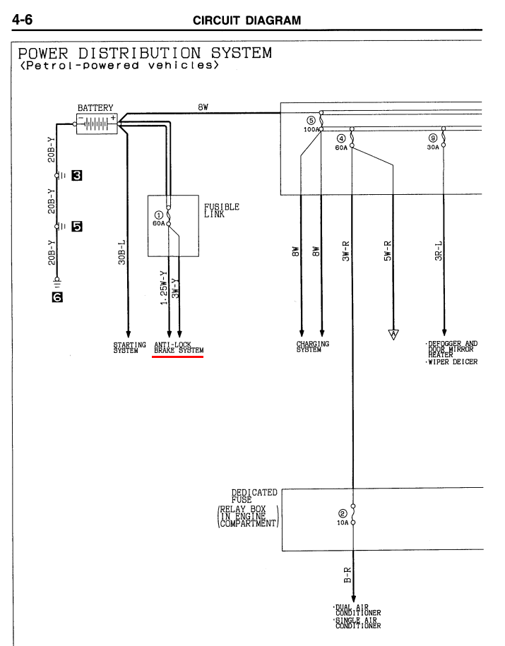
В документации: http://pdf.pajero4x4.ru/2008/Pajero-Mon ... WIRING.pdfSupravod писал(а):А где искать предохранитель АБС? В монтажном блоке под капотом и в ногах водителя такого не нашел.
MMC P2 1993 6G72 12кл МКПП 7мест
- flamer
- Сообщения: 2337
- Зарегистрирован: 20 май 2005, 12:34
- Двигатель:: 4D56t;4D56EFI;
- Мой автомобиль(и):: П-2 1993,П-2 2004
- Откуда: Ленинградская обл.
- Откуда: Мончегорск-Волхов
- Благодарил (а): 3 раза
- Поблагодарили: 106 раз
Re: В копилку знаний про ABS
elm327 нет нашего протокола.
При диагностики отключать не надо ничего.Странно что не выдаёт ошибки.
http://alflash.com.ua/abs_mmc.htm
http://alflash.com.ua/dtcmmc.htm
При диагностики отключать не надо ничего.Странно что не выдаёт ошибки.
http://alflash.com.ua/abs_mmc.htm
http://alflash.com.ua/dtcmmc.htm
-
Supravod
- Сообщения: 22
- Зарегистрирован: 14 мар 2011, 20:48
- Двигатель:: 6G74 DOHC MPI
- Мой автомобиль(и):: Mitsubishi Pajero II, 1996 г.в., АКПП, SS, левый руль (раньше был правый), BFG Mud-terrain 265/75/16
- Откуда: г.Киров
- Благодарил (а): 1 раз
Re: В копилку знаний про ABS
Проверил предохранители, оказались в порядке, значит по простому не будет. Поиски неисправности продолжаются... Решил снять регулятор ХХ (как писал выше не прозванивается с колодки от блока управления АБС), проверил контакты, прозвонил обмотки, попутно сдергивал фишку датчика пложения ДЗ, теперь обороты ХХ на прогретом двигателе стали 1200об. Проблема с АБС естественно не ушла.
- Dev
- Сообщения: 465
- Зарегистрирован: 25 ноя 2005, 09:47
- Двигатель:: 4D56T
- Мой автомобиль(и):: MMC Pajero Sport GLS 2.5TD 99 л.с. 2005 г.в.
- Откуда: Ямало-Ненецкий АО
- Благодарил (а): 20 раз
- Поблагодарили: 4 раза
Re: В копилку знаний про ABS
В общем практика показала, что это действительно не связанные проблемы. Заменил клапана - мигание лампы полного привода пропало, все отрабатывает как и положено. Но лампа АБС горит постоянно. Не сбрасывается никак ошибка - ни проводком через колодку, ни снятием клемм АКБ. Где-то вычитал, что можно отключить все датчики АБС и тогда на стоячей машине при запуске двигателя АБС должен отработать как надо и погаснуть до начала движения. Но не изменяется ситуация. Горит и не гаснет. Реле, что под капотом (одно, справа возле бачка ГУР) - работает как по книге. Какие и где есть еще реле? Не нашел в букваре... Предохранители в салоне и в моторном отсеке проверил - целые. Может есть еще какие предположения, почему может гореть постоянно лампа АБС? Завтра буду прозванивать датчики и цепи к ним. Что еще проверить?Max0403 писал(а):Проверьте не оторваны ли провода на датчиках АВС, из-за них всегда горит эта лампа. Моргает полный привод при не до включенном - отключенном переднем мосте (это вакуум, клапана). Второй вариант все отключается,но датчик на раздатке подглючивает.
С уважением, Дмитрий
------------------------------------------------------
MMC Pajero Sport GLS 2.5TD 4D56T 99 л.с. 2005 г.в.
------------------------------------------------------
MMC Pajero Sport GLS 2.5TD 4D56T 99 л.с. 2005 г.в.
-
Vitaliy666
- Сообщения: 2727
- Зарегистрирован: 02 сен 2011, 07:53
- Двигатель:: =--=
- Мой автомобиль(и):: =----=
- Откуда: =--=
- Благодарил (а): 11 раз
- Поблагодарили: 143 раза
Re: В копилку знаний про ABS
Очень странно...может что с блоком управления АБС...ну должен он моргать, должен...
- Max0403
- Сообщения: 957
- Зарегистрирован: 21 фев 2013, 10:45
- Двигатель:: 2.0 всего....
- Мой автомобиль(и):: Honda CR-V "Бешеная табуретка"
- Откуда: Ярославль
- Благодарил (а): 13 раз
- Поблагодарили: 25 раз
Re: В копилку знаний про ABS
У меня от плюсовой клеммы АКБ есть черная коробка, в ней была релюшка или предохранитель ABS, её (его) нет + нет 2 передних датчиков на осях, перетерты провода, так вот у меня лампа ABS горит постоянно. Я её (лампу) из панели вытащил 
Максим
Фрезерные и лазерные станки с ЧПУ
Фрезерные и лазерные станки с ЧПУ
- Max0403
- Сообщения: 957
- Зарегистрирован: 21 фев 2013, 10:45
- Двигатель:: 2.0 всего....
- Мой автомобиль(и):: Honda CR-V "Бешеная табуретка"
- Откуда: Ярославль
- Благодарил (а): 13 раз
- Поблагодарили: 25 раз
Re: В копилку знаний про ABS
Обороты 1200 ХХ у Вас т.к. сняли у регулятора фишку и он залип в открытом положении.Supravod писал(а):Проверил предохранители, оказались в порядке, значит по простому не будет. Поиски неисправности продолжаются... Решил снять регулятор ХХ (как писал выше не прозванивается с колодки от блока управления АБС), проверил контакты, прозвонил обмотки, попутно сдергивал фишку датчика пложения ДЗ, теперь обороты ХХ на прогретом двигателе стали 1200об. Проблема с АБС естественно не ушла.
Максим
Фрезерные и лазерные станки с ЧПУ
Фрезерные и лазерные станки с ЧПУ
