Домино Трофи 2026 - 25 Апреля - Обсудить и спросить тут.
Задняя печь Mitsu Pajero II
Модераторы: SNOOPER, Nbf, Romik, BAlex
-
borvin
- Сообщения: 8
- Зарегистрирован: 24 авг 2012, 08:34
- Двигатель:: 6G72
- Мой автомобиль(и):: Mitsubishi Pajero
- Благодарил (а): 1 раз
Задняя печь Mitsu Pajero II
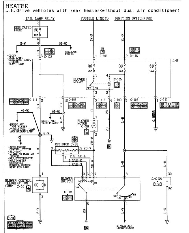
Как бэ не работает задняя печь. начал проверять с реле заднего отопителя, тот что под рулем, рабочее. Пошел дальше - кнопка на панели водителя для включения задней печки - работает. Проверил регулятор вращения заднего вентилятора - рабочий. Проверил терморезистор (вроде так) - тот что стоит в корпусе задней печи - не работал - заменил на рабочий. Проверил двигатель - был засран грязью. Почистил, заработал. Измеряю напряжение на коннекторе - тот что к двигателю заднего отопителя - приходит 3 вольта. Никак не меняется значение при изменении регулятора скорости двигателя. При выключении задней печки - напряжение пропадает. Где дальше искать проблему???
-
sigorf
- Сообщения: 154
- Зарегистрирован: 04 мар 2012, 14:46
- Двигатель:: 4D56, 4M40
- Мой автомобиль(и):: Hyundai Galloper II, MMC Pajero II (рестайл)
- Откуда: Улан-Удэ
- Благодарил (а): 2 раза
Re: Задняя печь Mitsu Pajero II
ищи между включателем на передней панели и включателем для задних пассажиров. мож где провода закисли
"Мне бы дьявола-коня да плёточку заветную и тогда искать меня в поле не советую..." (Яшка ЦЫган)
- dvm99
- Сообщения: 22483
- Зарегистрирован: 21 май 2012, 20:59
- Двигатель:: 6G72, 12клап.,
- Мой автомобиль(и):: Pajero2, Запорожец- Ланос
- Откуда: Свердловская обл.
- Благодарил (а): 749 раз
- Поблагодарили: 1090 раз
Re: Задняя печь Mitsu Pajero II
Если верить мануалу, то переключатель с резиками, что скорость регулируют, стоят в цепи массы. Может с ней проблемы?
Нужно делать всё попорядку: воткнуть все разъёмы на свои места, переключатель поставить в режим HI , потом тестером в режиме вольтметра зацепиться туда, где масса точно есть (минусовая клемма АКБ), а вторым концом тестера тыкаться. Прежде всего убедиться, что +12В приходит на вывод 1 двигателя. Если нет, то ищем косяк в цепи питания. Если есть, то проверяем напругу на выводе 2 двигателя. Если там 0В , то проверяем ещё раз двигатель. А если есть какое-то напряжение, то остаёмся на этом выводе и начинаем шевелить разъёмы и провода, при этом смотрим постоянно на показания тестера. Если шевеления не помогают, то запоминаем показания вольтметра и перемещаемся на проверку переключателя подобным образом и на крепёж массы. Честно говоря, где прикручена масса, не знаю. Но алгоритм поиска подобных косяков единый, т.к. основан назаконе Ома.
Кстати, обратили внимание, у движка щётки номальные были? Они там немного капризные.
Нужно делать всё попорядку: воткнуть все разъёмы на свои места, переключатель поставить в режим HI , потом тестером в режиме вольтметра зацепиться туда, где масса точно есть (минусовая клемма АКБ), а вторым концом тестера тыкаться. Прежде всего убедиться, что +12В приходит на вывод 1 двигателя. Если нет, то ищем косяк в цепи питания. Если есть, то проверяем напругу на выводе 2 двигателя. Если там 0В , то проверяем ещё раз двигатель. А если есть какое-то напряжение, то остаёмся на этом выводе и начинаем шевелить разъёмы и провода, при этом смотрим постоянно на показания тестера. Если шевеления не помогают, то запоминаем показания вольтметра и перемещаемся на проверку переключателя подобным образом и на крепёж массы. Честно говоря, где прикручена масса, не знаю. Но алгоритм поиска подобных косяков единый, т.к. основан назаконе Ома.
Кстати, обратили внимание, у движка щётки номальные были? Они там немного капризные.
Дмитрий
Боливар2 - П2, 92г., V43, 6G72(12V), V4AW2, RD/L, пруль (чистокровный японский рысак)
Боливар1 - П2, 93г., 6G72(12V), МКПП, V43, RD/L, Европа (славный был конь, но уже донор)
Боливар2 - П2, 92г., V43, 6G72(12V), V4AW2, RD/L, пруль (чистокровный японский рысак)
Боливар1 - П2, 93г., 6G72(12V), МКПП, V43, RD/L, Европа (славный был конь, но уже донор)
-
gizm1k
- Сообщения: 149
- Зарегистрирован: 19 янв 2012, 16:58
- Двигатель:: 4d56(до 6G72-SOHC-24v)
- Мой автомобиль(и):: NSMP-10(до PajeroII-98)
- Откуда: МСК
- Откуда: Москва
- Поблагодарили: 3 раза
- Контактная информация:
Re: Задняя печь Mitsu Pajero II
Дабы не плодить нвых тем, хочу спросить знающих и разбиравших заднюю печку целиком. Там есть поддон который наружу на улицу выходит и в него входят шланги. Так вот он у меня проржавел вместе с защитой. Вопрос простой, эта ванна приварена к кузову или меняется?
LHD-Green-PajeroII-98FIN-GLS-6G72-SOHC-24v-3000-Automotive V4AW3
Грибы размножаются спорами. В спорах рождается истина. Значит Грибы - это истина!\
avtokanal.com:позывной Гизмик
Грибы размножаются спорами. В спорах рождается истина. Значит Грибы - это истина!\
avtokanal.com:позывной Гизмик
- de
- Сообщения: 3993
- Зарегистрирован: 28 мар 2008, 06:00
- Откуда: Йошкар-Ола [12]
- Благодарил (а): 14 раз
- Поблагодарили: 67 раз
Re: Задняя печь Mitsu Pajero II
Ванна прикручена на болтах из салона, меняется без проблем.
MMC P2 1993 6G72 12кл МКПП 7мест
-
gizm1k
- Сообщения: 149
- Зарегистрирован: 19 янв 2012, 16:58
- Двигатель:: 4d56(до 6G72-SOHC-24v)
- Мой автомобиль(и):: NSMP-10(до PajeroII-98)
- Откуда: МСК
- Откуда: Москва
- Поблагодарили: 3 раза
- Контактная информация:
Re: Задняя печь Mitsu Pajero II
Вот спасиба! Успокоил.de писал(а):Ванна прикручена на болтах из салона, меняется без проблем.
LHD-Green-PajeroII-98FIN-GLS-6G72-SOHC-24v-3000-Automotive V4AW3
Грибы размножаются спорами. В спорах рождается истина. Значит Грибы - это истина!\
avtokanal.com:позывной Гизмик
Грибы размножаются спорами. В спорах рождается истина. Значит Грибы - это истина!\
avtokanal.com:позывной Гизмик
