реле переключения фар
Модераторы: SNOOPER, Nbf, Romik, BAlex
реле переключения фар
коллеги, подскажите чайнику - где физически находится реле, которое переключает ближний и дальний свет?
Перестали светить фары, переключатель подрулевой прозвонил - в порядке., реле подкапотное тоже. Если коротить контакты реле под капотом, то ничего не щёлкает и не горит
Перестали светить фары, переключатель подрулевой прозвонил - в порядке., реле подкапотное тоже. Если коротить контакты реле под капотом, то ничего не щёлкает и не горит
- кот 989
- Сообщения: 456
- Зарегистрирован: 16 ноя 2009, 12:25
- Двигатель:: 4D56
- Мой автомобиль(и):: МПСпорт 2001г
- Откуда: Самара
- Благодарил (а): 12 раз
- Поблагодарили: 23 раза
Re: реле переключения фар
а и нет такого реле...
всё переключается в подрулевом переключателе!
Sport 2001 года, 4D56, МКПП.
- homa70
- Сообщения: 545
- Зарегистрирован: 05 дек 2010, 18:57
- Двигатель:: 4M40
- Мой автомобиль(и):: МП 2 1997
- Откуда: г. Урюпинск
- Откуда: Урюпинск(и это правда)
- Благодарил (а): 4 раза
- Поблагодарили: 33 раза
Re: реле переключения фар
Реле как раз есть, но оно и для дальнего и для ближнего света. Если фары совсем не включаются, то причина как раз может быть в нем. Переключение непосредственно подрулевым.
МП2 1997 5 дв 4М40 SS R/D lock ручка webasto 32X11.5 R15 MJ-300 мой первый дизель и джип
- кот 989
- Сообщения: 456
- Зарегистрирован: 16 ноя 2009, 12:25
- Двигатель:: 4D56
- Мой автомобиль(и):: МПСпорт 2001г
- Откуда: Самара
- Благодарил (а): 12 раз
- Поблагодарили: 23 раза
Re: реле переключения фар
Рэле переключающее ближний/дальний - нет!
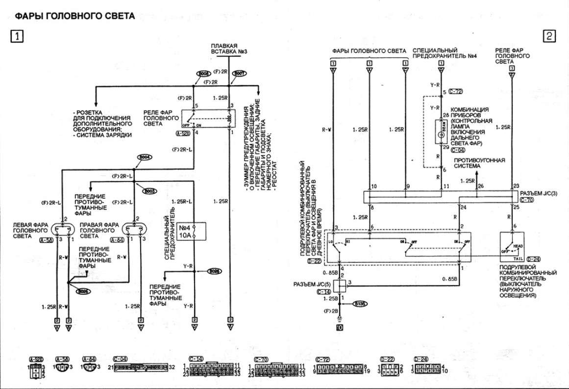
Если с "рэле головного света" и с переключателем всё "ок", остаются только предохранители (схема выше)... и обрыФФ цепи!
Рифт, Схема от "спорта 2001 года"... у тебя может чуть по другому!
Если с "рэле головного света" и с переключателем всё "ок", остаются только предохранители (схема выше)... и обрыФФ цепи!
Рифт, Схема от "спорта 2001 года"... у тебя может чуть по другому!
Sport 2001 года, 4D56, МКПП.
Re: реле переключения фар
Спасибо за ответы, но реле в моторном отсеке 22Х только подаёт 12в. А что переключает "ближний - дальний"? В подрулевой группе контактов проводочки тоненькие, на несколько миллиампер, а коммутировать надо 10А. К тому же ближний-дальний переключаются одним нажатием подрулевого устройства, значит должно быть реле с двумя устойчивыми состояниями, либо два реле. На 308 странице Мануала реле показано на рисунке, но не поннять какое это место в подкапотном пространстве.
- homa70
- Сообщения: 545
- Зарегистрирован: 05 дек 2010, 18:57
- Двигатель:: 4M40
- Мой автомобиль(и):: МП 2 1997
- Откуда: г. Урюпинск
- Откуда: Урюпинск(и это правда)
- Благодарил (а): 4 раза
- Поблагодарили: 33 раза
Re: реле переключения фар
А про какую машину идет речь? Если про П2, то только подрулевой БЕЗ переключающих реле!
МП2 1997 5 дв 4М40 SS R/D lock ручка webasto 32X11.5 R15 MJ-300 мой первый дизель и джип
- Alessandro
- Сообщения: 3805
- Зарегистрирован: 14 ноя 2009, 14:41
- Двигатель:: 4G54
- Мой автомобиль(и):: Pajero ll
- Откуда: Москва
- Благодарил (а): 2 раза
- Поблагодарили: 25 раз
Re: реле переключения фар
правильно написали: ближний/дальний переключается самим подрулевым, а на лампы + подаётся через реле. так если всё пропало нуна смотреть и реле и переключатель(если реле в порядке и с него всё идёт на лампы). а само реле в свою очередь тоже с подрулевого включается 
P2., V32VNDLW, 4G54 2600сс, V5M21(4875) - механика, part time. Арапский прынц 1996г рождения, колор белий :)
- кот 989
- Сообщения: 456
- Зарегистрирован: 16 ноя 2009, 12:25
- Двигатель:: 4D56
- Мой автомобиль(и):: МПСпорт 2001г
- Откуда: Самара
- Благодарил (а): 12 раз
- Поблагодарили: 23 раза
Re: реле переключения фар
[quote="Рифт"]Спасибо за ответы, но реле в моторном отсеке 22Х только подаёт 12в. А что переключает "ближний - дальний"? В подрулевой группе контактов проводочки тоненькие, на несколько миллиампер, а коммутировать надо 10А. К тому же ближний-дальний переключаются одним нажатием подрулевого устройства./quote]
Сумрачный анимэшный гений!
1. всё именно так!
2. всё работает годами!
3. опиши свой авто.
4. только когда свет переделывают (линзы) - ставят рэлюшки!
Я не электрик ваще ни-как, просто вижу отличия от других схем... Думаю что дело тут в том
, что подрулевым переключателем ты не "+" заруливаешь на ближний или дальний, а уже к заруленуму ближнему и дальнему плюсу подкидываешь массу!
1. всё именно так!
2. всё работает годами!
3. опиши свой авто.
4. только когда свет переделывают (линзы) - ставят рэлюшки!
Я не электрик ваще ни-как, просто вижу отличия от других схем... Думаю что дело тут в том
Sport 2001 года, 4D56, МКПП.
- SNOOPER
- Модератор
- Сообщения: 57351
- Зарегистрирован: 11 дек 2004, 19:49
- Двигатель:: 4D56
- Мой автомобиль(и):: NewMPS
- Откуда: 78
- Откуда: Spb
- Благодарил (а): 1023 раза
- Поблагодарили: 4772 раза
Re: реле переключения фар
Я так думаю про П2 91 годаhoma70 писал(а):А про какую машину идет речь? Если про П2, то только подрулевой БЕЗ переключающих реле!
И Все тут правильно сказали нету такого реле.
Да и для линз оно не нужно
Re: реле переключения фар
да, П2 91 года.SNOOPER писал(а):Я так думаю про П2 91 годаhoma70 писал(а):А про какую машину идет речь? Если про П2, то только подрулевой БЕЗ переключающих реле!
И Все тут правильно сказали нету такого реле.
Да и для линз оно не нужно
Каким же образом физически происходит переключение "б-д"? Подрулевым выключателем подаётся "+" на реле 22Х, а одним нажатием этого же выключателя происходит переключение б-д. Я разбирал его - там просто кнопка без фиксатора. Значит где-то должна хлопать релюшка.
- SNOOPER
- Модератор
- Сообщения: 57351
- Зарегистрирован: 11 дек 2004, 19:49
- Двигатель:: 4D56
- Мой автомобиль(и):: NewMPS
- Откуда: 78
- Откуда: Spb
- Благодарил (а): 1023 раза
- Поблагодарили: 4772 раза
Re: реле переключения фар
Ничего там хлопать не должно.Рифт писал(а):да, П2 91 года.SNOOPER писал(а):Я так думаю про П2 91 годаhoma70 писал(а):А про какую машину идет речь? Если про П2, то только подрулевой БЕЗ переключающих реле!
И Все тут правильно сказали нету такого реле.
Да и для линз оно не нужно
Каким же образом физически происходит переключение "б-д"? Подрулевым выключателем подаётся "+" на реле 22Х, а одним нажатием этого же выключателя происходит переключение б-д. Я разбирал его - там просто кнопка без фиксатора. Значит где-то должна хлопать релюшка.
Реле фар включается поворотом выключателя на конце рычага. А переключение дальний ближний, перемещением самого рычага вперед, назад. При перемещении на себя не фиксированое положение моргаем дальним, при переводе вниз фиксированный дальний. Средние положение, ближний свет.
Переключатель комутирует массы, питание идёт с реле постоянно.
Re: реле переключения фар
Может так у более поздних моделей. У меня: если свет фар не включён (поворот рычага не в крайнее положение), то при нажатии "на себя" происходит моргание д.с. Если поворот в крайнее положение, т.е. свет фар включен, то нажатие "на себя" вызывает переключение д-с. У рычага ДВА устойчивых состояния: "в покое" и "на себя". Машина японской сборки.
- homa70
- Сообщения: 545
- Зарегистрирован: 05 дек 2010, 18:57
- Двигатель:: 4M40
- Мой автомобиль(и):: МП 2 1997
- Откуда: г. Урюпинск
- Откуда: Урюпинск(и это правда)
- Благодарил (а): 4 раза
- Поблагодарили: 33 раза
Re: реле переключения фар
В штатном переключателе принцип как в простом электросветильнике на веревочке (дернул за веревочку свет включился, еще раз дернул свет выключился - т.е. два устойчивых состояния )так же и тут, дернул на себя рычаг - минус пошел на дальний, дернул еще раз - минус пошел на ближний (при включенных фарах). А моргушка не зависит от включенных фар, там простая кнопка. Во всяком случае у мну так.
МП2 1997 5 дв 4М40 SS R/D lock ручка webasto 32X11.5 R15 MJ-300 мой первый дизель и джип
Re: реле переключения фар
всё так, вопрос только в том а как минус находит путь куда идти. И на моргушке - кнопка то та же, а эффект другой. Я разбирал - там под рычагом только кнопка, значит логика где-то в другом месте реализуется.
- Alessandro
- Сообщения: 3805
- Зарегистрирован: 14 ноя 2009, 14:41
- Двигатель:: 4G54
- Мой автомобиль(и):: Pajero ll
- Откуда: Москва
- Благодарил (а): 2 раза
- Поблагодарили: 25 раз
Re: реле переключения фар
схема выше. там всё понятно. сфотайте свой переключатель и покажите. я не думаю что у ВАс уникальный/тюнинховый электросветРифт писал(а):всё так, вопрос только в том а как минус находит путь куда идти. И на моргушке - кнопка то та же, а эффект другой. Я разбирал - там под рычагом только кнопка, значит логика где-то в другом месте реализуется.
P2., V32VNDLW, 4G54 2600сс, V5M21(4875) - механика, part time. Арапский прынц 1996г рождения, колор белий :)
Re: реле переключения фар
хорошо, но это позже, надо руль снимать, а сейчас уже предновогодняя суета началась. Пока я поставил ксенонки и вывел тумблер для них в салон.
- Rule
- Сообщения: 780
- Зарегистрирован: 12 ноя 2008, 13:10
- Двигатель:: 4D56T
- Мой автомобиль(и):: MMC Pajero Sport II
- Откуда: Санкт-Петербург
- Откуда: SPb Ржевка-Пороховые
- Благодарил (а): 1 раз
- Поблагодарили: 3 раза
- Контактная информация:
Re: реле переключения фар
Подскажите ответ на глупый вопрос: Сколько спиралей горит на дальнем свете у Монтеро спорт?
MMC Pajero Sport II, 4D56T
Сколько асфальт не паши - всходов не будет...
Сколько асфальт не паши - всходов не будет...
- Rule
- Сообщения: 780
- Зарегистрирован: 12 ноя 2008, 13:10
- Двигатель:: 4D56T
- Мой автомобиль(и):: MMC Pajero Sport II
- Откуда: Санкт-Петербург
- Откуда: SPb Ржевка-Пороховые
- Благодарил (а): 1 раз
- Поблагодарили: 3 раза
- Контактная информация:
Re: реле переключения фар
Глупый вопрос отменяется.... есть глупый мозг)))
MMC Pajero Sport II, 4D56T
Сколько асфальт не паши - всходов не будет...
Сколько асфальт не паши - всходов не будет...
-
Miha1982
- Сообщения: 80
- Зарегистрирован: 15 сен 2009, 17:25
- Двигатель:: 6G72
- Мой автомобиль(и):: Montero Sport 2002 3.0 V6 AWD
- Откуда: Пермь
- Откуда: Пермь
- Благодарил (а): 1 раз
- Поблагодарили: 2 раза
Re: реле переключения фар
Господа! Сегодня утром обозначилась проблемка:
не включается дальний свет фар. габариты, ближний, ... все в норме.
дальний моргает при попытке включения, но в конечной точке не фиксируется (световой индикатор на панели тоже гаснет).
впечатление такое как будто кнопка сломалась...
может было у кого подобное? куда бежать? в поиске вроде не нашел.
не включается дальний свет фар. габариты, ближний, ... все в норме.
дальний моргает при попытке включения, но в конечной точке не фиксируется (световой индикатор на панели тоже гаснет).
впечатление такое как будто кнопка сломалась...
может было у кого подобное? куда бежать? в поиске вроде не нашел.
Монетро спорт 2002 , 6G72, бензин,
- homa70
- Сообщения: 545
- Зарегистрирован: 05 дек 2010, 18:57
- Двигатель:: 4M40
- Мой автомобиль(и):: МП 2 1997
- Откуда: г. Урюпинск
- Откуда: Урюпинск(и это правда)
- Благодарил (а): 4 раза
- Поблагодарили: 33 раза
Re: реле переключения фар
Судя по описанию подрулевому пришел пушной зверек!!
МП2 1997 5 дв 4М40 SS R/D lock ручка webasto 32X11.5 R15 MJ-300 мой первый дизель и джип
