В руководстве по эксплуатации никакой подобной информации нет, но проверив в живую убедился в работоспособности данной системы, где-то через две минуты после запуска пошел теплый воздух. Очень рад этому открытию
Думаю всем владельцам дизельных П4 будет интересно
Модераторы: SNOOPER, Nbf, drcham, Romik, BAlex, DenVer, SoundSpeed
-
STRANNIC
- Сообщения: 8
- Зарегистрирован: 27 ноя 2010, 18:07
- Двигатель:: Diesel 3.2
- Мой автомобиль(и):: Mitsubishi Pajero 4
- Откуда: РФ, Ярославль
Думаю всем владельцам дизельных П4 будет интересно
Речь идет о дополнительном отопителе в дизельных П4 (он есть только в дизельных модификациях). О его существовании я не знал до тех пор, пока не наткнулся на интересную темку (Форум украинских владельцев митсубиши). С обсуждением можно ознакомиться здесь http://vnedorozhnik.net.ua/index.php?sh ... 2%E5%EB%FC.
В руководстве по эксплуатации никакой подобной информации нет, но проверив в живую убедился в работоспособности данной системы, где-то через две минуты после запуска пошел теплый воздух. Очень рад этому открытию
В руководстве по эксплуатации никакой подобной информации нет, но проверив в живую убедился в работоспособности данной системы, где-то через две минуты после запуска пошел теплый воздух. Очень рад этому открытию
- Rusl
- Сообщения: 988
- Зарегистрирован: 09 апр 2007, 17:25
- Двигатель:: 4M41 diesel
- Мой автомобиль(и):: Pajero IV
- Откуда: Москва (ЗАО) - Красногорск
- Благодарил (а): 2 раза
- Поблагодарили: 2 раза
- Контактная информация:
Re: Думаю всем владельцам дизельных П4 будет интересно
спустя 4 года испробую данный метод ))))))))))))
П4 Instyle AT, ТРАхтор, кожа, руль и 2 пИИИдали... BFG T\A 265x70x17
http://card.pajero4x4.ru/?p=1266
http://card.pajero4x4.ru/?p=1266
- Lebed
- Сообщения: 10748
- Зарегистрирован: 25 июл 2010, 11:23
- Двигатель:: ******
- Мой автомобиль(и):: ******
- Откуда: ***
- Откуда: ***
- Благодарил (а): 236 раз
- Поблагодарили: 431 раз
Re: Думаю всем владельцам дизельных П4 будет интересно
"Если театр начинается с вешалки, то за такие пьесы нужно вешать." (с)
P.S. Для упырей- "Мы с тобой Гималаи; остальные — ничтожества." (с)
P.S. Для упырей- "Мы с тобой Гималаи; остальные — ничтожества." (с)
- Lebed
- Сообщения: 10748
- Зарегистрирован: 25 июл 2010, 11:23
- Двигатель:: ******
- Мой автомобиль(и):: ******
- Откуда: ***
- Откуда: ***
- Благодарил (а): 236 раз
- Поблагодарили: 431 раз
Re: Думаю всем владельцам дизельных П4 будет интересно
А может так?DenVer писал(а):Поправлю Андрея
"Если театр начинается с вешалки, то за такие пьесы нужно вешать." (с)
P.S. Для упырей- "Мы с тобой Гималаи; остальные — ничтожества." (с)
P.S. Для упырей- "Мы с тобой Гималаи; остальные — ничтожества." (с)
- Banderlog
- Сообщения: 3158
- Зарегистрирован: 15 дек 2006, 22:42
- Откуда: Тверь
- Благодарил (а): 12 раз
- Поблагодарили: 30 раз
- Контактная информация:
Re: Думаю всем владельцам дизельных П4 будет интересно
Ну зачем вы на человека набросились? Он же помочь хотел. Вдруг кто-то не знает...
П4 12 4М41 АКПП+SS 5 дв., 33x12,5 R17/Safari/ARB/ComeUp-9,5 RS/Yaesu FT-857/экспедиционник/два бака общим объемом в 220л. (начал строительство)
VW Touareg 17 R-Line Executive
VW Touareg 17 R-Line Executive
-
STRANNIC
- Сообщения: 8
- Зарегистрирован: 27 ноя 2010, 18:07
- Двигатель:: Diesel 3.2
- Мой автомобиль(и):: Mitsubishi Pajero 4
- Откуда: РФ, Ярославль
Re: Думаю всем владельцам дизельных П4 будет интересно
Всегда любил людей с хорошим чувством умора, буду рад если для кого-то данная информация все же окажется полезной.
- Lebed
- Сообщения: 10748
- Зарегистрирован: 25 июл 2010, 11:23
- Двигатель:: ******
- Мой автомобиль(и):: ******
- Откуда: ***
- Откуда: ***
- Благодарил (а): 236 раз
- Поблагодарили: 431 раз
Re: Думаю всем владельцам дизельных П4 будет интересно
Надеюсь, что не обидел Вас своим постером. Если обидел, то приношу извинения.
Но только за радиатор)))
Но только за радиатор)))
"Если театр начинается с вешалки, то за такие пьесы нужно вешать." (с)
P.S. Для упырей- "Мы с тобой Гималаи; остальные — ничтожества." (с)
P.S. Для упырей- "Мы с тобой Гималаи; остальные — ничтожества." (с)
- Саня Спартак
- Сообщения: 121
- Зарегистрирован: 09 авг 2012, 18:35
- Двигатель:: 4D41
- Мой автомобиль(и):: Раjero 4 3,2 DID
- Откуда: Москва
- Благодарил (а): 19 раз
Re: Думаю всем владельцам дизельных П4 будет интересно
Эта тема имеет множество загадок....сам пока не могу выстроить правильный алгоритм нажатия кнопок для максимально быстрого нагрева отопителей.....хотя пол зимы уже проездил 
3,2 DID 2012 г.в.
- Rusl
- Сообщения: 988
- Зарегистрирован: 09 апр 2007, 17:25
- Двигатель:: 4M41 diesel
- Мой автомобиль(и):: Pajero IV
- Откуда: Москва (ЗАО) - Красногорск
- Благодарил (а): 2 раза
- Поблагодарили: 2 раза
- Контактная информация:
Re: Думаю всем владельцам дизельных П4 будет интересно
вчера пробовал. что то не проникся... включил отопитель на максимум (29), воздух в ноги, обогрев заднего+зеркала - ну спустя минуиту вроде как чуть теплый воздух подул... но мне показалось что это больше связано с прогревом самого двигателя... (точнее он видимо не остыл до конца, все же + за бортом, да и вернулся я часа 3-3,5 назад...) или что то не так сделал?
П4 Instyle AT, ТРАхтор, кожа, руль и 2 пИИИдали... BFG T\A 265x70x17
http://card.pajero4x4.ru/?p=1266
http://card.pajero4x4.ru/?p=1266
- Banderlog
- Сообщения: 3158
- Зарегистрирован: 15 дек 2006, 22:42
- Откуда: Тверь
- Благодарил (а): 12 раз
- Поблагодарили: 30 раз
- Контактная информация:
Re: Думаю всем владельцам дизельных П4 будет интересно
Надо включать не обогрев заднего стекла, а обдув лобового вкупе регулятром на макс температуру.
П4 12 4М41 АКПП+SS 5 дв., 33x12,5 R17/Safari/ARB/ComeUp-9,5 RS/Yaesu FT-857/экспедиционник/два бака общим объемом в 220л. (начал строительство)
VW Touareg 17 R-Line Executive
VW Touareg 17 R-Line Executive
- Саня Спартак
- Сообщения: 121
- Зарегистрирован: 09 авг 2012, 18:35
- Двигатель:: 4D41
- Мой автомобиль(и):: Раjero 4 3,2 DID
- Откуда: Москва
- Благодарил (а): 19 раз
Re: Думаю всем владельцам дизельных П4 будет интересно
Rusl, поддерживаю ваше мнение. Не очень правильный совет, необходимо автоматом выстваить +29 и включить обогрев зеркал (зад. стекла)...в этом случае тэны начинают работать....(тут есть тема на форуме, там рекомендации опытного паджеровода)...хотя я как то слабо ощущаю эту работу, особливо в мороз за -10....
http://finam.fm/broadcast/65/ слушаем передачку от 27.12.12....есть доля правды
http://finam.fm/broadcast/65/ слушаем передачку от 27.12.12....есть доля правды
3,2 DID 2012 г.в.
-
vast
- Сообщения: 612
- Зарегистрирован: 19 дек 2008, 09:17
- Двигатель:: 4М41
- Мой автомобиль(и):: был - Паджеро 4, дизель, 3,2 DiD, сейчас не митсубиси
- Откуда: Москва
- Откуда: Москва
- Поблагодарили: 6 раз
Re: Думаю всем владельцам дизельных П4 будет интересно
есть мнение, что надо включать доп.отопитель и +29 градусов. обогрев зеркал включать не надо.Саня Спартак писал(а):Rusl, поддерживаю ваше мнение. Не очень правильный совет, необходимо автоматом выстваить +29 и включить обогрев зеркал (зад. стекла)...в этом случае тэны начинают работать....(тут есть тема на форуме, там рекомендации опытного паджеровода)...хотя я как то слабо ощущаю эту работу, особливо в мороз за -10....
http://finam.fm/broadcast/65/ слушаем передачку от 27.12.12....есть доля правды
- Саня Спартак
- Сообщения: 121
- Зарегистрирован: 09 авг 2012, 18:35
- Двигатель:: 4D41
- Мой автомобиль(и):: Раjero 4 3,2 DID
- Откуда: Москва
- Благодарил (а): 19 раз
Re: Думаю всем владельцам дизельных П4 будет интересно
Я извиняюсь....ничего не понял, расшифруйте плиз...vast писал(а):есть мнение, что надо включать доп.отопитель и +29 градусов. обогрев зеркал включать не надо.Саня Спартак писал(а):Rusl, поддерживаю ваше мнение. Не очень правильный совет, необходимо автоматом выстваить +29 и включить обогрев зеркал (зад. стекла)...в этом случае тэны начинают работать....(тут есть тема на форуме, там рекомендации опытного паджеровода)...хотя я как то слабо ощущаю эту работу, особливо в мороз за -10....
http://finam.fm/broadcast/65/ слушаем передачку от 27.12.12....есть доля правды
3,2 DID 2012 г.в.
- Rusl
- Сообщения: 988
- Зарегистрирован: 09 апр 2007, 17:25
- Двигатель:: 4M41 diesel
- Мой автомобиль(и):: Pajero IV
- Откуда: Москва (ЗАО) - Красногорск
- Благодарил (а): 2 раза
- Поблагодарили: 2 раза
- Контактная информация:
Re: Думаю всем владельцам дизельных П4 будет интересно
напишите четко какие кнопки нажать что бы эта штука заработала))))) млин! запутался совсем)))
П4 Instyle AT, ТРАхтор, кожа, руль и 2 пИИИдали... BFG T\A 265x70x17
http://card.pajero4x4.ru/?p=1266
http://card.pajero4x4.ru/?p=1266
- megranny
- Сообщения: 6152
- Зарегистрирован: 18 июл 2011, 01:22
- Двигатель:: дизель 4M41
- Мой автомобиль(и):: Subaru Forester III(S12),MP IV-3,2 Di-D Ultimate
- Откуда: ЦФО,76
- Благодарил (а): 16 раз
- Поблагодарили: 79 раз
Re: Думаю всем владельцам дизельных П4 будет интересно
Плодим темы-близнецы,однако.
Вот выдержка из SM'07,думаю смысл понятен и без букваря.
PTC heater operating conditions
Air outlet: FOOT/DEF, FOOT, FACE/FOOT
Temperature control dial: MAX HOT
Coolant temperature: 82 degrees Celsius or less
note When the coolant temperature becomes above 82 degrees Celsius and PTC heater stops the operation, the PTC heater does not operate until coolant temperature becomes below 72 degrees Celsius.
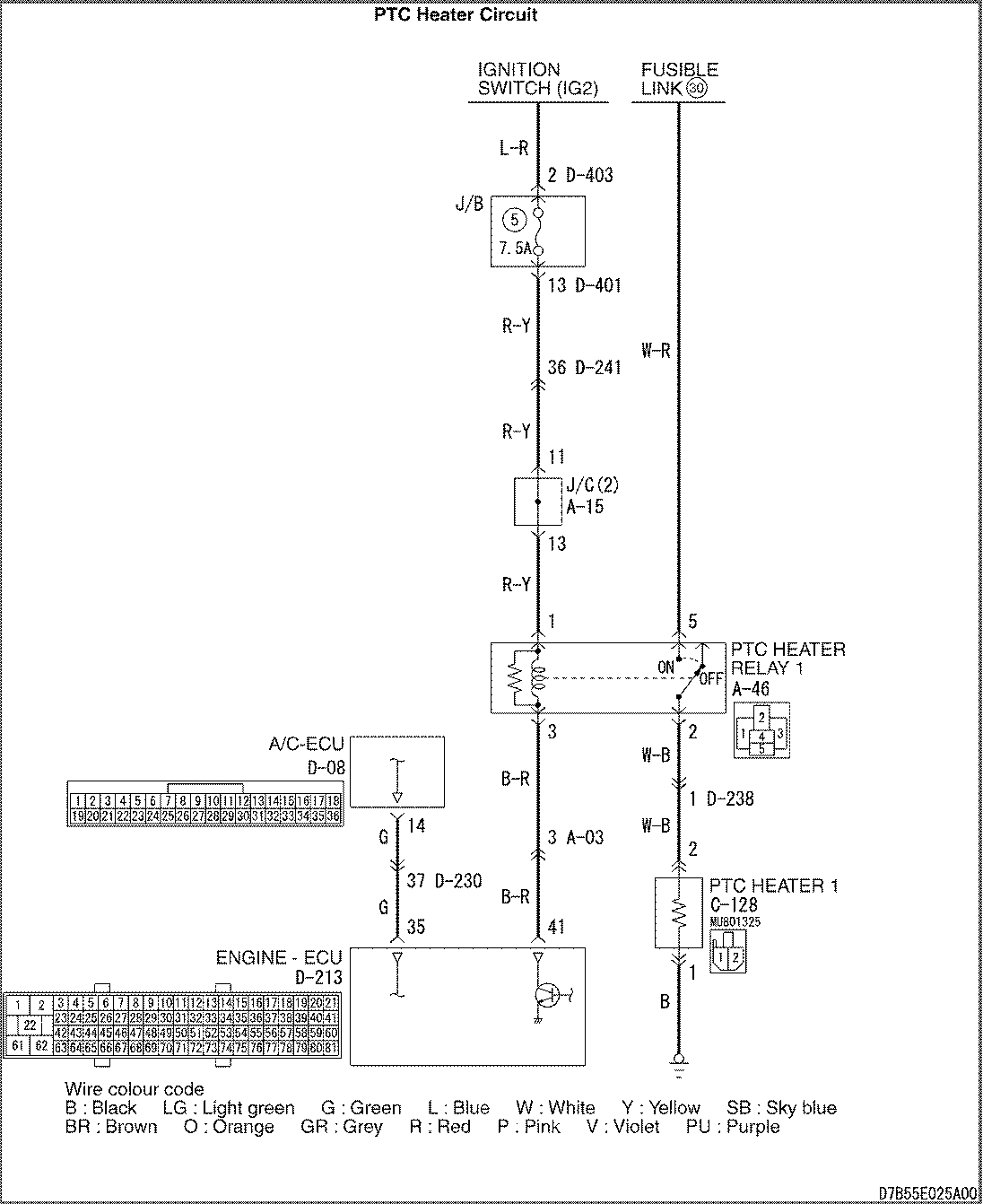
Вот схема PTC водителя(есть и пассажирская) В мануале есть пошаговая(15шагов) инструкция для проверки неработающего(!) PTC.Она слишком громоздкая,чтобы сюда воткнуть.
Я,кстати,сам еще не понЕл,есть ли у мну эти самые питиси
-погодка пока не вдохновляет,даже в гараже.Но чутка позжеее,все ж полезу 
Вот выдержка из SM'07,думаю смысл понятен и без букваря.
PTC heater operating conditions
Air outlet: FOOT/DEF, FOOT, FACE/FOOT
Temperature control dial: MAX HOT
Coolant temperature: 82 degrees Celsius or less
note When the coolant temperature becomes above 82 degrees Celsius and PTC heater stops the operation, the PTC heater does not operate until coolant temperature becomes below 72 degrees Celsius.
Вот схема PTC водителя(есть и пассажирская) В мануале есть пошаговая(15шагов) инструкция для проверки неработающего(!) PTC.Она слишком громоздкая,чтобы сюда воткнуть.
Я,кстати,сам еще не понЕл,есть ли у мну эти самые питиси
I made in Japan
-
vast
- Сообщения: 612
- Зарегистрирован: 19 дек 2008, 09:17
- Двигатель:: 4М41
- Мой автомобиль(и):: был - Паджеро 4, дизель, 3,2 DiD, сейчас не митсубиси
- Откуда: Москва
- Откуда: Москва
- Поблагодарили: 6 раз
Re: Думаю всем владельцам дизельных П4 будет интересно
http://ib1.keep4u.ru/b/2009/10/04/36/36 ... c56df6.jpgСаня Спартак писал(а):Я извиняюсь....ничего не понял, расшифруйте плиз...vast писал(а):есть мнение, что надо включать доп.отопитель и +29 градусов. обогрев зеркал включать не надо.Саня Спартак писал(а):Rusl, поддерживаю ваше мнение. Не очень правильный совет, необходимо автоматом выстваить +29 и включить обогрев зеркал (зад. стекла)...в этом случае тэны начинают работать....(тут есть тема на форуме, там рекомендации опытного паджеровода)...хотя я как то слабо ощущаю эту работу, особливо в мороз за -10....
http://finam.fm/broadcast/65/ слушаем передачку от 27.12.12....есть доля правды
там указано 2 условия.
но кажись достаточно только второго. попробуйте сами разные варианты. когда примерно в 2009 году эту тему тут обсуждали у всех по разному работало. я с тех пор зимой просто на +29 ставлю и попогрейку на максимум, и все.
- Magnat52
- Сообщения: 303
- Зарегистрирован: 29 сен 2010, 11:30
- Двигатель:: 4M41
- Мой автомобиль(и):: Паджеро4 3.2дизель R17
- Благодарил (а): 25 раз
- Поблагодарили: 6 раз
Re: Думаю всем владельцам дизельных П4 будет интересно
ИМХО.У меня в режиме АВТО почти сразу начинает идти чуть теплый воздух.После того как начинаю движение,и воздух теплее,и дует посильнее,до тех пор,пока не будет выбранная температура.Думаю,что на холостых,не хватает тока для климата(тэнов).Так же и летом.При движении климат работает получше.
Паджеро 4,2008г.,3.2,МКП
-
Kastet64
- Сообщения: 81
- Зарегистрирован: 17 ноя 2012, 21:17
- Двигатель:: 4M41
- Мой автомобиль(и):: Pajero IV
- Откуда: Moscow
- Откуда: Moscow
- Благодарил (а): 4 раза
- Контактная информация:
Re: Думаю всем владельцам дизельных П4 будет интересно
я так и не понял как оно работает.
Правильно ли я все делаю:
1) Завожу двигатель
2) выкручиваю ручку температуры климата на максимум (+29) и нажимаю на ней кнопку Auto
Все? или же еще надо в какое-то особенное положение направить струю воздуха (типа на стекло или на ноги)?
Правильно ли я все делаю:
1) Завожу двигатель
2) выкручиваю ручку температуры климата на максимум (+29) и нажимаю на ней кнопку Auto
Все? или же еще надо в какое-то особенное положение направить струю воздуха (типа на стекло или на ноги)?
Pajero4 4M41
Re: Думаю всем владельцам дизельных П4 будет интересно
вы че как первый раз на форуме, года 3 назад это обсуждалось. Простите за наглость.
ПАДЖЕРО 4, 5д, 2007г., 3,2, 165л/с, Yokohama Geolandar A/T-S G012.(продан).
Ленд крузер прадо 150, 2015г., 3.0, 173л/с.
Жизнь, как туалетная бумага! Кажется, что длинная, а тратишь на всякое дерьмо!
Ленд крузер прадо 150, 2015г., 3.0, 173л/с.
Жизнь, как туалетная бумага! Кажется, что длинная, а тратишь на всякое дерьмо!

