посоветуйте что нить !!! сгорает предохранитель на 15А фонарей заднего хода... коробочка под рулем....
на заднем ходе висит парктроник....
визуально все проверил .... все вроде ОК....
меняю предохранитель проверяю на площадке... все работает ......
но после небольшой поездки (не включая заднего хода) нахожу сгоревший предохранитель....
кстати когда он сгорает, то отключается и включение блокировки заднего дифа .....
там визуально то же все нормально....
Где искать, откуда прозванивать начинать ????
сгорает предох. фонарей заднего хода.((( и блокировки з/дифа
Модераторы: SNOOPER, Nbf, Romik, BAlex
- Sersh
- Сообщения: 2415
- Зарегистрирован: 13 июн 2006, 18:13
- Двигатель:: 4DBF
- Мой автомобиль(и):: PAJERO
- Откуда: Москва
- Откуда: Москва. Теплак
- Благодарил (а): 19 раз
- Поблагодарили: 18 раз
- Контактная информация:
сгорает предох. фонарей заднего хода.((( и блокировки з/дифа
2500D-TURBO/SHORT WAGON GLS(WIDE/SUPER SELECT),5FM/T EFTA-LHD 3DOOR, 1994
замена двс на корейский 4DBF, маслоотделитель, MJ-600 Turbo, Гудрич 33х12.50 R15 AT..
теперь салон кожа :-) DEKA 105L, зашумлен, цифровая голова, сааб
замена двс на корейский 4DBF, маслоотделитель, MJ-600 Turbo, Гудрич 33х12.50 R15 AT..
теперь салон кожа :-) DEKA 105L, зашумлен, цифровая голова, сааб
- Captain Sergio
- Сообщения: 4557
- Зарегистрирован: 30 янв 2012, 22:01
- Двигатель:: 4G18
- Мой автомобиль(и):: Pajero Пинин, 1999, АКПП, BMW X5
- Откуда: Ульяновск
- Благодарил (а): 264 раза
- Поблагодарили: 346 раз
Re: сгорает предох. фонарей заднего хода.((( и блокировки з/
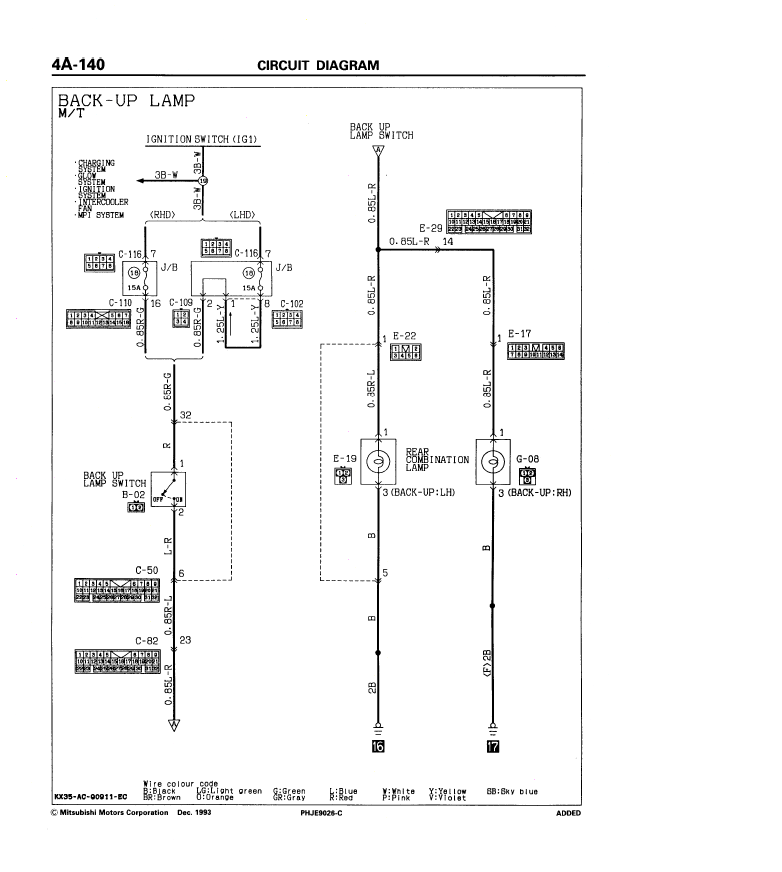
Лови схему. Смотри цепь от преда до выключателя. Можешь начать с выключателя. Он на МКПП. Красный с зеленым провод. По нему до предохранителя иди - он где-то на массу и коротит. Будут вопросы - пиши.
Сергей. Все будет хорошо! Грязезащита для рамных автомобилей.
- Sersh
- Сообщения: 2415
- Зарегистрирован: 13 июн 2006, 18:13
- Двигатель:: 4DBF
- Мой автомобиль(и):: PAJERO
- Откуда: Москва
- Откуда: Москва. Теплак
- Благодарил (а): 19 раз
- Поблагодарили: 18 раз
- Контактная информация:
Re: сгорает предох. фонарей заднего хода.((( и блокировки з/
Спасибо тезка, попробую на выходных )))
а почему с выгоранием предохранителя отрубается включение блокировки заднего дифа ???
а почему с выгоранием предохранителя отрубается включение блокировки заднего дифа ???
2500D-TURBO/SHORT WAGON GLS(WIDE/SUPER SELECT),5FM/T EFTA-LHD 3DOOR, 1994
замена двс на корейский 4DBF, маслоотделитель, MJ-600 Turbo, Гудрич 33х12.50 R15 AT..
теперь салон кожа :-) DEKA 105L, зашумлен, цифровая голова, сааб
замена двс на корейский 4DBF, маслоотделитель, MJ-600 Turbo, Гудрич 33х12.50 R15 AT..
теперь салон кожа :-) DEKA 105L, зашумлен, цифровая голова, сааб
- Captain Sergio
- Сообщения: 4557
- Зарегистрирован: 30 янв 2012, 22:01
- Двигатель:: 4G18
- Мой автомобиль(и):: Pajero Пинин, 1999, АКПП, BMW X5
- Откуда: Ульяновск
- Благодарил (а): 264 раза
- Поблагодарили: 346 раз
Re: сгорает предох. фонарей заднего хода.((( и блокировки з/
Предохранители обыно на несколько цепей стоят. Гляну про диф. на схемах.
Сергей. Все будет хорошо! Грязезащита для рамных автомобилей.
- Sersh
- Сообщения: 2415
- Зарегистрирован: 13 июн 2006, 18:13
- Двигатель:: 4DBF
- Мой автомобиль(и):: PAJERO
- Откуда: Москва
- Откуда: Москва. Теплак
- Благодарил (а): 19 раз
- Поблагодарили: 18 раз
- Контактная информация:
Re: сгорает предох. фонарей заднего хода.((( и блокировки з/
Captain Sergio писал(а):Предохранители обыно на несколько цепей стоят. Гляну про диф. на схемах.
Сергей, значить разводку в плафонах, парктронике смотреть нет смысла ??? "смотрю ветку" КПП-предохранитель ???
2500D-TURBO/SHORT WAGON GLS(WIDE/SUPER SELECT),5FM/T EFTA-LHD 3DOOR, 1994
замена двс на корейский 4DBF, маслоотделитель, MJ-600 Turbo, Гудрич 33х12.50 R15 AT..
теперь салон кожа :-) DEKA 105L, зашумлен, цифровая голова, сааб
замена двс на корейский 4DBF, маслоотделитель, MJ-600 Turbo, Гудрич 33х12.50 R15 AT..
теперь салон кожа :-) DEKA 105L, зашумлен, цифровая голова, сааб
- Captain Sergio
- Сообщения: 4557
- Зарегистрирован: 30 янв 2012, 22:01
- Двигатель:: 4G18
- Мой автомобиль(и):: Pajero Пинин, 1999, АКПП, BMW X5
- Откуда: Ульяновск
- Благодарил (а): 264 раза
- Поблагодарили: 346 раз
Re: сгорает предох. фонарей заднего хода.((( и блокировки з/
Да. Смотреть нужно именно от датчика до преда. +12В постоянно только там. За датчиком +12В появляется только после включения заднего хода. А у Тебя перегорает без включения задней передачи. Смотри именно на предмет замыкания этого провода на массу, видимо где-то перетерло. Может конечно и датчик самопроизвольно замыкать, но это мне кажется маловероятным.
Сергей. Все будет хорошо! Грязезащита для рамных автомобилей.
- Sersh
- Сообщения: 2415
- Зарегистрирован: 13 июн 2006, 18:13
- Двигатель:: 4DBF
- Мой автомобиль(и):: PAJERO
- Откуда: Москва
- Откуда: Москва. Теплак
- Благодарил (а): 19 раз
- Поблагодарили: 18 раз
- Контактная информация:
Re: сгорает предох. фонарей заднего хода.((( и блокировки з/
Логично ))) спасибо...Captain Sergio писал(а):Да. Смотреть нужно именно от датчика до преда. +12В постоянно только там. За датчиком +12В появляется только после включения заднего хода. А у Тебя перегорает без включения задней передачи. Смотри именно на предмет замыкания этого провода на массу, видимо где-то перетерло. Может конечно и датчик самопроизвольно замыкать, но это мне кажется маловероятным.
читал про твоего коня ? )))
2500D-TURBO/SHORT WAGON GLS(WIDE/SUPER SELECT),5FM/T EFTA-LHD 3DOOR, 1994
замена двс на корейский 4DBF, маслоотделитель, MJ-600 Turbo, Гудрич 33х12.50 R15 AT..
теперь салон кожа :-) DEKA 105L, зашумлен, цифровая голова, сааб
замена двс на корейский 4DBF, маслоотделитель, MJ-600 Turbo, Гудрич 33х12.50 R15 AT..
теперь салон кожа :-) DEKA 105L, зашумлен, цифровая голова, сааб
- Sersh
- Сообщения: 2415
- Зарегистрирован: 13 июн 2006, 18:13
- Двигатель:: 4DBF
- Мой автомобиль(и):: PAJERO
- Откуда: Москва
- Откуда: Москва. Теплак
- Благодарил (а): 19 раз
- Поблагодарили: 18 раз
- Контактная информация:
Re: сгорает предох. фонарей заднего хода.((( и блокировки з/
Спасиб тебе.... "очага" не нашли.... но после перетряски нижней проводки заднего хода... все заработало !!!!!Captain Sergio писал(а):Да. Смотреть нужно именно от датчика до преда. +12В постоянно только там. За датчиком +12В появляется только после включения заднего хода. А у Тебя перегорает без включения задней передачи. Смотри именно на предмет замыкания этого провода на массу, видимо где-то перетерло. Может конечно и датчик самопроизвольно замыкать, но это мне кажется маловероятным.
2500D-TURBO/SHORT WAGON GLS(WIDE/SUPER SELECT),5FM/T EFTA-LHD 3DOOR, 1994
замена двс на корейский 4DBF, маслоотделитель, MJ-600 Turbo, Гудрич 33х12.50 R15 AT..
теперь салон кожа :-) DEKA 105L, зашумлен, цифровая голова, сааб
замена двс на корейский 4DBF, маслоотделитель, MJ-600 Turbo, Гудрич 33х12.50 R15 AT..
теперь салон кожа :-) DEKA 105L, зашумлен, цифровая голова, сааб
