Страница 1 из 1
Посоветуйте, нет искры на 3 и 6 цилиндрах
Добавлено: 18 авг 2013, 10:16
Apple
Доброго дня. У меня такая проблема, нет искры на 3 и 6 цилиндрах, двигатель троит.Проверили всю цепь от мозгов до катушки, всё звонится, при подцеплении мозгов именно 1 провод на 3 и 6 не выдает импульсов.Ставил другие мозги с такого же двигателя(6G72 24 клапанный), симптомы не ушли.Не знаю что делать?

Re: Посоветуйте, нет искры на 3 и 6 цилиндрах
Добавлено: 18 авг 2013, 12:09
mservis
Этот же выход с другой катушкой не пробовал?
Re: Посоветуйте, нет искры на 3 и 6 цилиндрах
Добавлено: 18 авг 2013, 12:18
Apple
нет не пробовал, я же говорю что по одному проводу на 3 модуль отвечаюший за 3 и 6 цилиндр непроходит сигнал, прозваниваешь линию звонится.
Re: Посоветуйте, нет искры на 3 и 6 цилиндрах
Добавлено: 18 авг 2013, 13:46
mservis
Может в коммутаторе вход закорочен...
попробуй перекинуть провода в разъеме на другой вход и катушки, чтобы вычислить неисправность коммутатора.
Прошлая проблема тахометра может быть тоже связана с коммутатором.
Re: Посоветуйте, нет искры на 3 и 6 цилиндрах
Добавлено: 18 авг 2013, 14:23
Apple
Тахометр работает/, но стрелка стоит на 2000. Но бывает поднимается и до 3000 (очень редко). А сейчас заметил она падает до 1000 при заводке.
Re: Посоветуйте, нет искры на 3 и 6 цилиндрах
Добавлено: 18 авг 2013, 14:34
Apple
Именно с ЭБУ не идут импульсы. Т.е. мы отключали штекер на 6 контактов и на нем нет импульса от ЭБУ. Весь этот жгут еще отдельно прозванивали. Подключенные (с другого пыжа) мозги возможно тоже были неисправны, т.к. при их подключении ничего не изменилось.
Re: Посоветуйте, нет искры на 3 и 6 цилиндрах
Добавлено: 18 авг 2013, 20:25
mservis
Может сам провод коротит на массу, но целый и прозванивается.
Re: Посоветуйте, нет искры на 3 и 6 цилиндрах
Добавлено: 19 авг 2013, 12:57
dvm99
Apple, в мануале описана проверка транзисторов. Можно сделать как там описано с батарейкой, но мне кажется, что если вы возьмёте простой стрелочный тестер и, руководствуясь схемой, сравните транзистор 3-6 с двумя исправными (2-5 или 1-4), то вы сможете определиться с его исправностью. Если вам с электроникой тяжело, то погуглите запросом "как проверить транзистор" или отнесите блок в любую контору, где починкой радиоаппаратуры занимаются вместе со схемой.
Re: Посоветуйте, нет искры на 3 и 6 цилиндрах
Добавлено: 19 авг 2013, 17:23
Apple
ещё раз проверили целые,отсоединили 6 контактный разъём и проверили осцилографом 1,2,3 контакты(с ЭБУ), импульсы только на 2 и 3 контактах.
Re: Посоветуйте, нет искры на 3 и 6 цилиндрах
Добавлено: 19 авг 2013, 22:28
dvm99
Apple, а что на 1-м ? Есть какое-нибудь постоянное напряжение на выходе или 0 висит?
Если осцилом мерили , то вход на нём (на осцилографе) должен быть открытым, т.е. режим измерения- переменка плюс постоянка. Ну или тестером замерте.
Re: Посоветуйте, нет искры на 3 и 6 цилиндрах
Добавлено: 20 авг 2013, 02:25
Lukich111
оба ЭБУ поломались одинаково? Это весьма странно.
Re: Посоветуйте, нет искры на 3 и 6 цилиндрах
Добавлено: 21 авг 2013, 14:10
Apple
импульсы на2 и 3 10вольт, а на первом ноль,но когда стартерам заводишь ,а осцил идут биения 0,2-0,3 вольта, соответствуюшее ВМТ поршня.
Re: Посоветуйте, нет искры на 3 и 6 цилиндрах
Добавлено: 21 авг 2013, 14:13
Apple
Плиз, есть у кого электрическая схема ЭБУ, скиньте если что
Re: Посоветуйте, нет искры на 3 и 6 цилиндрах
Добавлено: 21 авг 2013, 14:30
nikulin8787
попробуйте перекинуть с другой машины коммутатор, заведомо исправный. У меня была такая же хренотень и тахометр не правду показывал. Поменял его и все прошло. Поставил вот такой Mobiletron IGM016. Все работает теперь прекрасно.
Re: Посоветуйте, нет искры на 3 и 6 цилиндрах
Добавлено: 21 авг 2013, 15:01
dvm99
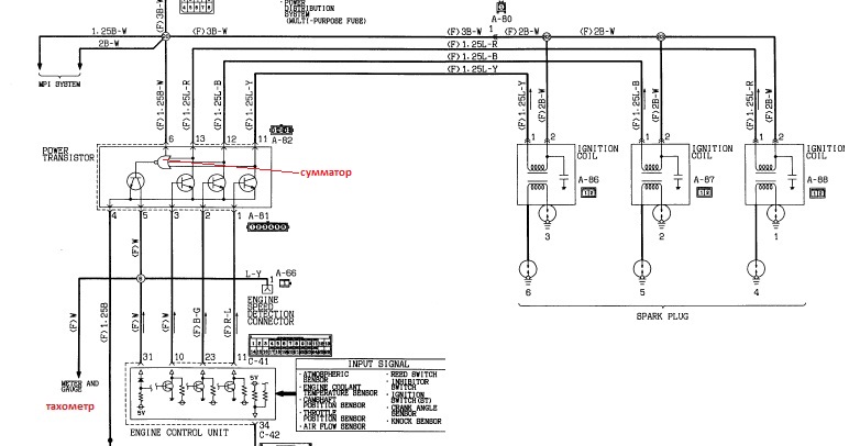
Apple, где схему взять, не знаю... Но пока что в принципе можно обойтись тем, что есть, т.е. схемой, что приведена выше, во вложении то же самое, но я обозначил стрелками, что нужно проверить. А это можно сделать и без схемы, ориентируясь на номера контактов разъёма. Ну во-первых нужно прозвонить тестером транзистор в ЭБУ, чтобы между коллектором и эмиттером не было КЗ. Во-вторых, найти на плате резистор, обозначенный красной стрелкой и убедиться, что он исправен (сравнить с двумя другими), и нигде нет нарушения паек.
Для справки: выходной транзистор, которому поключена катушка, открывается именно черз этот резистор, а транзистор ЭБУ его, грубо говоря, шунтирует и закрывает выходной транзистор. Вэтот момент и проскакивает искра.
Re: Посоветуйте, нет искры на 3 и 6 цилиндрах
Добавлено: 21 авг 2013, 15:28
Apple
отключил разъем А-81, звонил в сторону ЭБУ относительно земли, 2и 3 звонятся как р-n переход, а 1-ый просто 800 Ом во все "стороны". Отключил ЭБУ, прозвонил провода от А-81 до С-41 - звонятся, короткой на землю нет. Хотел проследить дорожки на плате ЕБУ до транзисторов , они почему то тонкие и идут на керамическую платку, на которой помимо всякой требухи стоят три микросхемы, если это логика с открытым коллектором, тогда можно поискать резистор, а если с закрытым, тогда ой. можно конечно на входе логики вход перехватить, поэтому желательно бы схемку.
Re: Посоветуйте, нет искры на 3 и 6 цилиндрах
Добавлено: 21 авг 2013, 17:39
mservis
Они и не должны быть толстыми, это же не силовые линии, ток там несколько десятков мА. Схемы вряд ли найдешь, часто от одной микросхемы управляются куча других устройств, может наоборот снаружи через ее от датчиков приходить. Я в таких случаях рисую схему вокруг конкретной микросхемы и судя по входам выходам и обвязки делается вывод о принципе ее работы, так проще найти соответствие вход-выход.
Re: Посоветуйте, нет искры на 3 и 6 цилиндрах
Добавлено: 21 авг 2013, 21:36
dvm99
если на керамику идёт, то конечно хреново... Я конечно не знаю, но подобные совковые керамические модули мне восстановить не удавалось нормально (хотя знал точно, что в нём дохлое). Если уж что, то только очень-очень аккуратно с хорошим оборудованием, руками и отличным зрением...
По описанию похоже не на резистор, а на поддохший транзистор... Открытый коллектор может быть и в микросхеме.
Re: Посоветуйте, нет искры на 3 и 6 цилиндрах
Добавлено: 21 авг 2013, 21:58
Apple
Ладно, пойду рисовать, отпишу чего получится.
Re: Посоветуйте, нет искры на 3 и 6 цилиндрах
Добавлено: 22 авг 2013, 08:30
dvm99
Ты бы зафоткал, что есть... Тока не на телефон, а именно фотиком в режиме макросъёмки.
Я частенько так поступаю, когда что-то мелкое разглядывать надо. Если будешь снимать, то со вспышкой поаккуратнее, от неё бликует, если прямо снимаешь, лучше фотик под небольшим углом дер жать.