Домино Трофи 2026 - 25 Апреля - Обсудить и спросить тут.
Подскажите распиновку на диагностическом разъеме.
Модераторы: SNOOPER, Nbf, Romik, BAlex
-
mikulchik
- Сообщения: 30
- Зарегистрирован: 29 июн 2012, 09:12
- Двигатель:: 3,8 бензин
- Мой автомобиль(и):: Pajero 4
- Благодарил (а): 1 раз
Подскажите распиновку на диагностическом разъеме.
3,8 бензин. Какой провод разрывать для защиты от угона?
- mitek2010
- Сообщения: 143
- Зарегистрирован: 21 мар 2011, 23:20
- Двигатель:: 6G75 3.8 L
- Мой автомобиль(и):: Паджеро 1991 4G56 коротыш - продан. Montero III 2005 Limited - приобретен
- Откуда: Омск
Re: Подскажите распиновку на диагностическом разъеме.
провод на диагностическом разъеме?mikulchik писал(а):3,8 бензин. Какой провод разрывать для защиты от угона?
ну, во всех фильмах обычно рвут красный, что б не взорвалось... думаю вам надо поступить так же.
ну а если серьезно, то, к стыду своему, что то я не догоняю, как при помощи диагностического разъема, разрывом провода, можно предотвратить угон.
Что имелось ввиду?
Откуда информация, не поделитесь?
А если речь просто о распиновке, то где то здесь видел. Поиском попробуйте...
Паджеро 1991 4G56 коротыш - продан. Montero III 2005 Limited 6G75 3.8 длииинный - приобретен
- SNOOPER
- Модератор
- Сообщения: 57354
- Зарегистрирован: 11 дек 2004, 19:49
- Двигатель:: 4D56
- Мой автомобиль(и):: NewMPS
- Откуда: 78
- Откуда: Spb
- Благодарил (а): 1023 раза
- Поблагодарили: 4772 раза
Re: Подскажите распиновку на диагностическом разъеме.
Учите матчасть.mitek2010 писал(а):провод на диагностическом разъеме?mikulchik писал(а):3,8 бензин. Какой провод разрывать для защиты от угона?
ну, во всех фильмах обычно рвут красный, что б не взорвалось... думаю вам надо поступить так же.![]()
![]()
ну а если серьезно, то, к стыду своему, что то я не догоняю, как при помощи диагностического разъема, разрывом провода, можно предотвратить угон.![]()
Что имелось ввиду?
Откуда информация, не поделитесь?
А если речь просто о распиновке, то где то здесь видел. Поиском попробуйте...
- SNOOPER
- Модератор
- Сообщения: 57354
- Зарегистрирован: 11 дек 2004, 19:49
- Двигатель:: 4D56
- Мой автомобиль(и):: NewMPS
- Откуда: 78
- Откуда: Spb
- Благодарил (а): 1023 раза
- Поблагодарили: 4772 раза
Re: Подскажите распиновку на диагностическом разъеме.
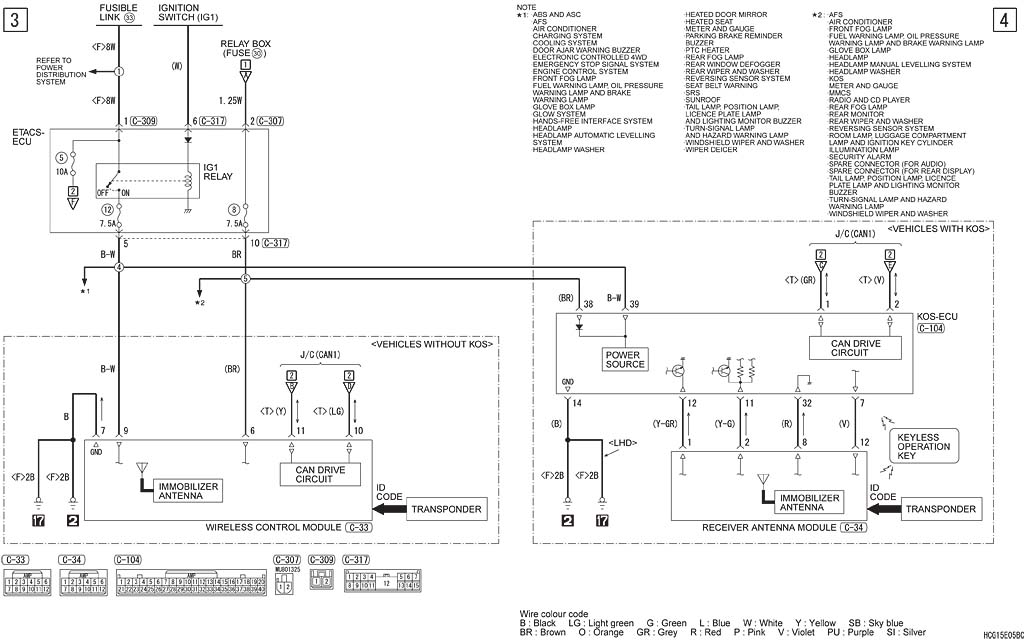
Чтоб не перешить было иммо, лучше рвать отмеченный провод.mikulchik писал(а):3,8 бензин. Какой провод разрывать для защиты от угона?
- mitek2010
- Сообщения: 143
- Зарегистрирован: 21 мар 2011, 23:20
- Двигатель:: 6G75 3.8 L
- Мой автомобиль(и):: Паджеро 1991 4G56 коротыш - продан. Montero III 2005 Limited - приобретен
- Откуда: Омск
Re: Подскажите распиновку на диагностическом разъеме.
SNOOPER писал(а):Чтоб не перешить было иммо, лучше рвать отмеченный провод.mikulchik писал(а):3,8 бензин. Какой провод разрывать для защиты от угона?
ЭЭЭ, батенька, я жутко извиняюсь...
НО
диагностический разъем на показанном вами чертеже, насколько я понял, в правом углу.
вы рекомендуете рвать провод между иммо и ECU.
Вас ничего не смущает?
ТС спросил, где рвать провод НА ДИАГНОСТИЧЕСКОМ РАЗЪЕМЕ, что и повергло меня в ступор.
Или это одно и тоже?
если же то, где написано NO CONNECTION - ЕЩЕ ОДИН ДИАГН РАЗЪЕМ, то. на мой взгляд надо не рвать провод между ECU и иммо, а убрать означенный провод с самого разъъема, что тоже не одно и тоже..
я вполне ясно выразил мысли?
Или что?
Последний раз редактировалось mitek2010 27 дек 2013, 02:07, всего редактировалось 1 раз.
Паджеро 1991 4G56 коротыш - продан. Montero III 2005 Limited 6G75 3.8 длииинный - приобретен
- SNOOPER
- Модератор
- Сообщения: 57354
- Зарегистрирован: 11 дек 2004, 19:49
- Двигатель:: 4D56
- Мой автомобиль(и):: NewMPS
- Откуда: 78
- Откуда: Spb
- Благодарил (а): 1023 раза
- Поблагодарили: 4772 раза
Re: Подскажите распиновку на диагностическом разъеме.
Меня не смущает, я говорю что делать лучше и правильней. На Вашей бричке будет достаточно обрезать 7-ю ногу колодки диагностики.
- mitek2010
- Сообщения: 143
- Зарегистрирован: 21 мар 2011, 23:20
- Двигатель:: 6G75 3.8 L
- Мой автомобиль(и):: Паджеро 1991 4G56 коротыш - продан. Montero III 2005 Limited - приобретен
- Откуда: Омск
Re: Подскажите распиновку на диагностическом разъеме.
вам видней конечно, спорить не стану, так как для себя такой вариант защиты не рассматривал.SNOOPER писал(а):Меня не смущает, я говорю что делать лучше и правильней. На Вашей бричке будет достаточно обрезать 7-ю ногу колодки диагностики.
но
пишете "убрать провод с коннектора", а на чертеже "рвете провод" - мож я чего то недопонимаю...
на мой взгляд это не одно и тоже.
Ну, вам видней.
Паджеро 1991 4G56 коротыш - продан. Montero III 2005 Limited 6G75 3.8 длииинный - приобретен
- SNOOPER
- Модератор
- Сообщения: 57354
- Зарегистрирован: 11 дек 2004, 19:49
- Двигатель:: 4D56
- Мой автомобиль(и):: NewMPS
- Откуда: 78
- Откуда: Spb
- Благодарил (а): 1023 раза
- Поблагодарили: 4772 раза
Re: Подскажите распиновку на диагностическом разъеме.
Ещё раз прочтите что Вы написали.
Где я "убирал провод"?
Это у Вас в мутном потоке все провода уже перепутались.
Где я "убирал провод"?
Это у Вас в мутном потоке все провода уже перепутались.
- mitek2010
- Сообщения: 143
- Зарегистрирован: 21 мар 2011, 23:20
- Двигатель:: 6G75 3.8 L
- Мой автомобиль(и):: Паджеро 1991 4G56 коротыш - продан. Montero III 2005 Limited - приобретен
- Откуда: Омск
Re: Подскажите распиновку на диагностическом разъеме.
ну хорошо.SNOOPER писал(а):Ещё раз прочтите что Вы написали.
Где я "убирал провод"?
Это у Вас в мутном потоке все провода уже перепутались.
На Вашей бричке будет достаточно обрезать 7-ю ногу колодки диагностики.
ладно.
но ведь на чертеже вы фактически разрываете провод между ECU и иммо.
вот это я и хотел у вас выяснить.
а про "мутные потоки" - не надо вот этого пожалуйста.
Итак. если, как вы показали, человек разорвет провод, что, ни на что это не повлияет?
Каково назначение этого провода? для чего он?
Паджеро 1991 4G56 коротыш - продан. Montero III 2005 Limited 6G75 3.8 длииинный - приобретен
- SNOOPER
- Модератор
- Сообщения: 57354
- Зарегистрирован: 11 дек 2004, 19:49
- Двигатель:: 4D56
- Мой автомобиль(и):: NewMPS
- Откуда: 78
- Откуда: Spb
- Благодарил (а): 1023 раза
- Поблагодарили: 4772 раза
Re: Подскажите распиновку на диагностическом разъеме.
Объясняю последний раз.
Машины у Вас и ТС разные.
На Вашей нет CAN-Bass, потому и достаточно обрезать провод на диагностике.
На П4 есть и кан, и свр-монитор. Короче много чего. И там лучше резать провод обмена данными между блоком иммо и моторным.
Машины у Вас и ТС разные.
На Вашей нет CAN-Bass, потому и достаточно обрезать провод на диагностике.
На П4 есть и кан, и свр-монитор. Короче много чего. И там лучше резать провод обмена данными между блоком иммо и моторным.
- mitek2010
- Сообщения: 143
- Зарегистрирован: 21 мар 2011, 23:20
- Двигатель:: 6G75 3.8 L
- Мой автомобиль(и):: Паджеро 1991 4G56 коротыш - продан. Montero III 2005 Limited - приобретен
- Откуда: Омск
Re: Подскажите распиновку на диагностическом разъеме.
"И там лучше резать провод обмена данными между блоком иммо и моторным."
вот.
добился я все ж от вас. собственно мне и нужно было от вас подтверждение, что действительно нужно резать провод.
спасибо.
ну а немного не в тему.
если уж хорошо знаете матчасть.
мне поменяли пин в ECU.
теперь, в случае, если угонщики принесут свой, он, по идее, не должен же "подружиться" с моим иммо, и, следовательно, менять их нужно только парой, я правильно понимаю?
ну, в машине есть еще пара сюрпризов,
но меня снтересует конкретно этот момент.
вот.
добился я все ж от вас. собственно мне и нужно было от вас подтверждение, что действительно нужно резать провод.
спасибо.
ну а немного не в тему.
если уж хорошо знаете матчасть.
мне поменяли пин в ECU.
теперь, в случае, если угонщики принесут свой, он, по идее, не должен же "подружиться" с моим иммо, и, следовательно, менять их нужно только парой, я правильно понимаю?
ну, в машине есть еще пара сюрпризов,
но меня снтересует конкретно этот момент.
Паджеро 1991 4G56 коротыш - продан. Montero III 2005 Limited 6G75 3.8 длииинный - приобретен
- SNOOPER
- Модератор
- Сообщения: 57354
- Зарегистрирован: 11 дек 2004, 19:49
- Двигатель:: 4D56
- Мой автомобиль(и):: NewMPS
- Откуда: 78
- Откуда: Spb
- Благодарил (а): 1023 раза
- Поблагодарили: 4772 раза
Re: Подскажите распиновку на диагностическом разъеме.
Пин меняется не для этого.mitek2010 писал(а):"И там лучше резать провод обмена данными между блоком иммо и моторным."
вот.
добился я все ж от вас. собственно мне и нужно было от вас подтверждение, что действительно нужно резать провод.
спасибо.
ну а немного не в тему.
если уж хорошо знаете матчасть.
мне поменяли пин в ECU.
теперь, в случае, если угонщики принесут свой, он, по идее, не должен же "подружиться" с моим иммо, и, следовательно, менять их нужно только парой, я правильно понимаю?
ну, в машине есть еще пара сюрпризов,
но меня снтересует конкретно этот момент.
Если угонщик принесёт свой моторный, то он будет без иммо, зачем время терять на замену ещё и блока иммо.
Пин меняется для того чтоб небыло возможности прописать ключ простой угонялкой вставленной в колодку диагностики. Так как пин с завода идёт один на весь модельный ряд. А это сомнительная защита, да и диллер не спешит переложить владельцу сменить пин. Ибо им так проще.
- SNOOPER
- Модератор
- Сообщения: 57354
- Зарегистрирован: 11 дек 2004, 19:49
- Двигатель:: 4D56
- Мой автомобиль(и):: NewMPS
- Откуда: 78
- Откуда: Spb
- Благодарил (а): 1023 раза
- Поблагодарили: 4772 раза
Re: Подскажите распиновку на диагностическом разъеме.
ПС. Обрезанный провод во время санкционированого запуска должен быть соеденён.
- mitek2010
- Сообщения: 143
- Зарегистрирован: 21 мар 2011, 23:20
- Двигатель:: 6G75 3.8 L
- Мой автомобиль(и):: Паджеро 1991 4G56 коротыш - продан. Montero III 2005 Limited - приобретен
- Откуда: Омск
Re: Подскажите распиновку на диагностическом разъеме.
SNOOPER писал(а):Пин меняется не для этого.mitek2010 писал(а):"И там лучше резать провод обмена данными между блоком иммо и моторным."
вот.
добился я все ж от вас. собственно мне и нужно было от вас подтверждение, что действительно нужно резать провод.
спасибо.
ну а немного не в тему.
если уж хорошо знаете матчасть.
мне поменяли пин в ECU.
теперь, в случае, если угонщики принесут свой, он, по идее, не должен же "подружиться" с моим иммо, и, следовательно, менять их нужно только парой, я правильно понимаю?
ну, в машине есть еще пара сюрпризов,
но меня снтересует конкретно этот момент.
Если угонщик принесёт свой моторный, то он будет без иммо, зачем время терять на замену ещё и блока иммо.
Пин меняется для того чтоб небыло возможности прописать ключ простой угонялкой вставленной в колодку диагностики. Так как пин с завода идёт один на весь модельный ряд. А это сомнительная защита, да и диллер не спешит переложить владельцу сменить пин. Ибо им так проще.
то есть скажем так, связки с иммо в моей машине нет.
примерно это я и предполагал, просто нужно было подтверждение.
остается только перепиновка ecu или закрыть его наглухо листом бронированной стали.
ну, в любом случае спасибо за ответ.
Паджеро 1991 4G56 коротыш - продан. Montero III 2005 Limited 6G75 3.8 длииинный - приобретен
- SNOOPER
- Модератор
- Сообщения: 57354
- Зарегистрирован: 11 дек 2004, 19:49
- Двигатель:: 4D56
- Мой автомобиль(и):: NewMPS
- Откуда: 78
- Откуда: Spb
- Благодарил (а): 1023 раза
- Поблагодарили: 4772 раза
Re: Подскажите распиновку на диагностическом разъеме.
Почему нет, есть. Просто другая архитектура.mitek2010 писал(а):SNOOPER писал(а):Пин меняется не для этого.mitek2010 писал(а):"И там лучше резать провод обмена данными между блоком иммо и моторным."
вот.
добился я все ж от вас. собственно мне и нужно было от вас подтверждение, что действительно нужно резать провод.
спасибо.
ну а немного не в тему.
если уж хорошо знаете матчасть.
мне поменяли пин в ECU.
теперь, в случае, если угонщики принесут свой, он, по идее, не должен же "подружиться" с моим иммо, и, следовательно, менять их нужно только парой, я правильно понимаю?
ну, в машине есть еще пара сюрпризов,
но меня снтересует конкретно этот момент.
Если угонщик принесёт свой моторный, то он будет без иммо, зачем время терять на замену ещё и блока иммо.
Пин меняется для того чтоб небыло возможности прописать ключ простой угонялкой вставленной в колодку диагностики. Так как пин с завода идёт один на весь модельный ряд. А это сомнительная защита, да и диллер не спешит переложить владельцу сменить пин. Ибо им так проще.
то есть скажем так, связки с иммо в моей машине нет.
примерно это я и предполагал, просто нужно было подтверждение.
остается только перепиновка ecu или закрыть его наглухо листом бронированной стали.
ну, в любом случае спасибо за ответ.
Ну если уж пойдут с другим блоком, то именно эта машина нужна и тогда и броневой лист не поможет.
Защита должна быть достаточной но не избыточной. В конечном счёте пользователь перестаёт ей пользоватся, что и приводит к угону в том числе.
-
Дима 715
- Сообщения: 387
- Зарегистрирован: 02 май 2011, 23:50
- Двигатель:: V6 3500
- Мой автомобиль(и):: BMW х3 е83. М54в30, GM 5l40
- Откуда: Москва
- Откуда: Москва
- Благодарил (а): 8 раз
- Поблагодарили: 11 раз
Re: Подскажите распиновку на диагностическом разъеме.
Подскажите, кто знает распиновку диагностического разъёма на П2, левый руль. Январь 1995 года. 6g74.
Характеристика: "Парень непрост и осторожен, он был благороден, честен и умен и придраться было не к чему. До того рокового случая...."!
-
Denis2011
- Сообщения: 99
- Зарегистрирован: 16 сен 2016, 11:48
- Двигатель:: 4M41DT
- Мой автомобиль(и):: MITSUBISHI PAJERO
- Откуда: Gubkin
- Благодарил (а): 23 раза
- Поблагодарили: 5 раз
Подскажите распиновку на диагностическом разъеме.
SNOOPER, Доброе утро. Подскажите пожалуйста, куда идёт провод от 7 ноги диагностического разъёма (k-line) на Паджеро 3 дизель? Если есть схема, не поделитесь? У меня бортовой компьютер мультитроникс зависать начал при заводке двигателя, и производитель говорит, что это из-за того, что нет связи по k-line по протоколу mitsu2. Купил ещё один бк мультитроникс со своей проводкой, и то же самое. Т.е. нет провода 7 k-line...обрыв где-то...
