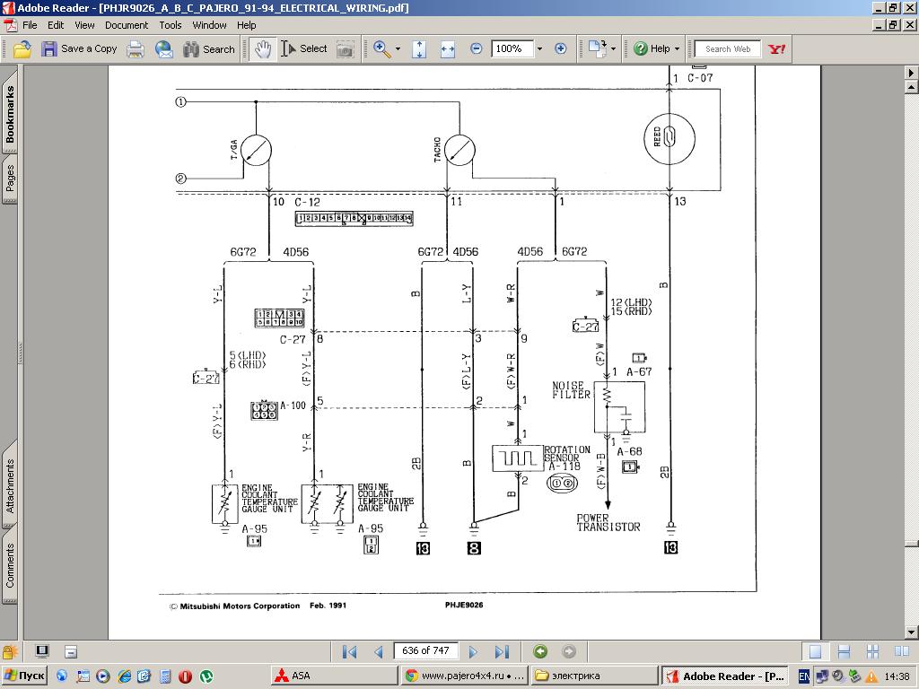
rom5151 писал(а):привет. сегодня снял щиток приборов.к фишке датчика зацепил один конец провода а второй к прозвонке . нашел выход к щитку . на средней фишке, 4 снизу-соединяю, контакт есть.посмотрел по дорожкам на щитке- дорожка идет в процессор. показатель температуры и показатель бензобака сидят \походу\ в паре. со стороны платы есть 8 паек 2-4-2. если только их попробовать пропаять
у тебя по схеме тоже желто синий провод , прозванивать на обрыв нужно его.
Пропаивают только плату тахометра , эт нужно разбирать саму приборку, сложного там ничего нет. Увидеть трещину зачастую можно только под увеличительным стеклом.
с наружи ты можешь увидеть только выгоревшую дорожку если она есть и поставить перемычку из провода , как на верхней фотке (и это не та плата которую пропаивают

)
И еще какая связь платы тахометра и датчика температуры я не знаю , но мне помогло
ПС обязательно протяни все винты на плате . там масса к датчикам
http://mio-a.ru/
монтеро спорт 99 3.0L -был
паджеро 2 96г. 4D56 АКПП, 5.285 пневмо блок, кривой руль, кузов W47. леблядь 9500, силовичек, 33 СТТ, багажник , люстра, лопата совковая, шнорк, бодик 50-0, си-би.