Какие разъемы слева от рулевой колонки?
Модераторы: SNOOPER, Nbf, Romik, BAlex
-
муромец
- Сообщения: 126
- Зарегистрирован: 23 июн 2013, 19:27
- Двигатель:: 4D56
- Мой автомобиль(и):: Pajero Sport I, 116 л.с.(EFI)
- Откуда: Москва
- Благодарил (а): 3 раза
- Поблагодарили: 7 раз
Какие разъемы слева от рулевой колонки?
Подскажите, что за белая прямоугольная колодка слева от рулевой колонки? Чёрная в форме трапеции, похоже, диагностический разъём. Автомобиль Паджеро Спорт (старый), дизель, 4D56.
Муромец
- igor-857
- Сообщения: 1339
- Зарегистрирован: 23 окт 2010, 17:40
- Двигатель:: 6G75
- Мой автомобиль(и):: PAJERO 4
- Откуда: 190Rus
- Откуда: Домодедово
- Поблагодарили: 25 раз
Re: Какие разъемы слева от рулевой колонки?
ессли к белому подходят 2 проводка то он тоже как и чёрный диагностический разьём!!муромец писал(а):Подскажите, что за белая прямоугольная колодка слева от рулевой колонки? Чёрная в форме трапеции, похоже, диагностический разъём. Автомобиль Паджеро Спорт (старый), дизель, 4D56.
pajero2-5 дв-1993-1996-1999 г.в-5 мкпп.super-select-2500td-2800td было
pajero4-5 дв-2007 г.в-5 акпп.super-select.3200td-было
pajero4-5 дв-2007 г.в-5 акпп.super-select 3800l-сейчас\газ.оборуд\
тел-8 968 412 43 86
Активация Autel ap200,Launch,Autocom
pajero4-5 дв-2007 г.в-5 акпп.super-select.3200td-было
pajero4-5 дв-2007 г.в-5 акпп.super-select 3800l-сейчас\газ.оборуд\
тел-8 968 412 43 86
Активация Autel ap200,Launch,Autocom
- Captain Sergio
- Сообщения: 4557
- Зарегистрирован: 30 янв 2012, 22:01
- Двигатель:: 4G18
- Мой автомобиль(и):: Pajero Пинин, 1999, АКПП, BMW X5
- Откуда: Ульяновск
- Благодарил (а): 264 раза
- Поблагодарили: 346 раз
Re: Какие разъемы слева от рулевой колонки?
Диагностический.
Сергей. Все будет хорошо! Грязезащита для рамных автомобилей.
- SNOOPER
- Модератор
- Сообщения: 57351
- Зарегистрирован: 11 дек 2004, 19:49
- Двигатель:: 4D56
- Мой автомобиль(и):: NewMPS
- Откуда: 78
- Откуда: Spb
- Благодарил (а): 1023 раза
- Поблагодарили: 4772 раза
Re: Какие разъемы слева от рулевой колонки?
Это смотря на какой схеме.
А так это оба диагностических разъёма, что впрочем Вам думаю не очень интересно особенно белый.
А так это оба диагностических разъёма, что впрочем Вам думаю не очень интересно особенно белый.
-
муромец
- Сообщения: 126
- Зарегистрирован: 23 июн 2013, 19:27
- Двигатель:: 4D56
- Мой автомобиль(и):: Pajero Sport I, 116 л.с.(EFI)
- Откуда: Москва
- Благодарил (а): 3 раза
- Поблагодарили: 7 раз
Re: Какие разъемы слева от рулевой колонки?
Как раз интересно, поскольку, как я понял, именно к ним подключается бортовой компьютер. Да и вообще хочется иметь как можно более полное представление о своей машине.
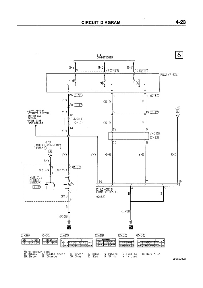
имел я в видуС-62 и C-63 вот на этих страницах
документа под названием "Pajero Sport 2000 electicaL wiring supplement", имеющего номер PHJE9810-A.
Если правильно понял, то белый это C-62, а чёрный - C-63.
имел я в видуС-62 и C-63 вот на этих страницах
документа под названием "Pajero Sport 2000 electicaL wiring supplement", имеющего номер PHJE9810-A.
Если правильно понял, то белый это C-62, а чёрный - C-63.
Муромец
- SNOOPER
- Модератор
- Сообщения: 57351
- Зарегистрирован: 11 дек 2004, 19:49
- Двигатель:: 4D56
- Мой автомобиль(и):: NewMPS
- Откуда: 78
- Откуда: Spb
- Благодарил (а): 1023 раза
- Поблагодарили: 4772 раза
Re: Какие разъемы слева от рулевой колонки?
Правильно.
Только ещё было правильней узнать какой именно у Вас "(старый), дизель, 4D56", сколько лс?
Только ещё было правильней узнать какой именно у Вас "(старый), дизель, 4D56", сколько лс?
- SNOOPER
- Модератор
- Сообщения: 57351
- Зарегистрирован: 11 дек 2004, 19:49
- Двигатель:: 4D56
- Мой автомобиль(и):: NewMPS
- Откуда: 78
- Откуда: Spb
- Благодарил (а): 1023 раза
- Поблагодарили: 4772 раза
Re: Какие разъемы слева от рулевой колонки?
Как что многое. 99-ти сильный без мозговый, и с этой 16-ти пиновой колодки можно снять только АБС и Климат если есть.муромец писал(а):116 лс. Что от этого зависит?
У Вас ещё и мотор добавляется.
Белый разъём Вас не должен волновать по определению, так как он используется для программирования диллерским оборудованием.
Вам это не грозит потому как ничего нового диллер предложить не может.
К 16-ти пиновому можно подключить мультитроникс например, есть целая тема про это.
Ну и в теории должен поддерживать ОБД2, но врать не буду, даже не заморачивался с проверкой. Но в конце выпуска должны по определению.
ПС в подписи укажите что у Вас мотор EFI, будет легче отвечать на вопросы если возникнут.
-
муромец
- Сообщения: 126
- Зарегистрирован: 23 июн 2013, 19:27
- Двигатель:: 4D56
- Мой автомобиль(и):: Pajero Sport I, 116 л.с.(EFI)
- Откуда: Москва
- Благодарил (а): 3 раза
- Поблагодарили: 7 раз
Re: Какие разъемы слева от рулевой колонки?
Спасибо! Буду проверять мультитроникс насчет ОБД2.
Муромец
-
S@n4e$
- Сообщения: 331
- Зарегистрирован: 17 ноя 2013, 23:16
- Двигатель:: 4D56 EFI 116л.с
- Мой автомобиль(и):: Mitsubishi Pajero Sport
- Откуда: Смоленская область Вязьма
- Благодарил (а): 3 раза
- Поблагодарили: 8 раз
Re: Какие разъемы слева от рулевой колонки?
по ОБД2 не подключается. У меня у самого мультитроникс RC700 подключается только по Mitsu2
- SNOOPER
- Модератор
- Сообщения: 57351
- Зарегистрирован: 11 дек 2004, 19:49
- Двигатель:: 4D56
- Мой автомобиль(и):: NewMPS
- Откуда: 78
- Откуда: Spb
- Благодарил (а): 1023 раза
- Поблагодарили: 4772 раза
Re: Какие разъемы слева от рулевой колонки?
Да отрежьте Вы белый, чтоб не смущалмуромец писал(а):К чёрному разъему?
-
S@n4e$
- Сообщения: 331
- Зарегистрирован: 17 ноя 2013, 23:16
- Двигатель:: 4D56 EFI 116л.с
- Мой автомобиль(и):: Mitsubishi Pajero Sport
- Откуда: Смоленская область Вязьма
- Благодарил (а): 3 раза
- Поблагодарили: 8 раз
Re: Какие разъемы слева от рулевой колонки?
Да именно к нему. При подключении мультитроникса не лишним будет подключить его к ДУТ. ну заодно и к ближнему свету фар. Имхо конечномуромец писал(а):К чёрному разъему?
