TRT "107-108" Для стандарта и не только! (4.04.2026) Форум Обсуждение FAQ
Нужна схема климат контроля
Модераторы: SNOOPER, Nbf, Romik, BAlex
Нужна схема климат контроля
Может есть у кого схема климат контроля, до рестайлинга с кнопками и после с экраном .
Pajero 2 4м40 1995 акпп ss японец.V46WG SUPER EXCEED Бодик 4см Cooper Discoverer LT 33x12,5x15 ,грелка бинар-5 Санкт-Петербург
8 952 281 05 68 охранная система Амстафф и злой сиамский кот
Я на Drive2
8 952 281 05 68 охранная система Амстафф и злой сиамский кот
Я на Drive2
- igor-857
- Сообщения: 1339
- Зарегистрирован: 23 окт 2010, 17:40
- Двигатель:: 6G75
- Мой автомобиль(и):: PAJERO 4
- Откуда: 190Rus
- Откуда: Домодедово
- Поблагодарили: 25 раз
Re: Нужна схема климат контроля
а что у тебя не работает????vlad13 писал(а):Может есть у кого схема климат контроля, до рестайлинга с кнопками и после с экраном .
pajero2-5 дв-1993-1996-1999 г.в-5 мкпп.super-select-2500td-2800td было
pajero4-5 дв-2007 г.в-5 акпп.super-select.3200td-было
pajero4-5 дв-2007 г.в-5 акпп.super-select 3800l-сейчас\газ.оборуд\
тел-8 968 412 43 86
Активация Autel ap200,Launch,Autocom
pajero4-5 дв-2007 г.в-5 акпп.super-select.3200td-было
pajero4-5 дв-2007 г.в-5 акпп.super-select 3800l-сейчас\газ.оборуд\
тел-8 968 412 43 86
Активация Autel ap200,Launch,Autocom
Re: Нужна схема климат контроля
Ставлю с экраном не работает вентилятор печки.
Pajero 2 4м40 1995 акпп ss японец.V46WG SUPER EXCEED Бодик 4см Cooper Discoverer LT 33x12,5x15 ,грелка бинар-5 Санкт-Петербург
8 952 281 05 68 охранная система Амстафф и злой сиамский кот
Я на Drive2
8 952 281 05 68 охранная система Амстафф и злой сиамский кот
Я на Drive2
- igor-857
- Сообщения: 1339
- Зарегистрирован: 23 окт 2010, 17:40
- Двигатель:: 6G75
- Мой автомобиль(и):: PAJERO 4
- Откуда: 190Rus
- Откуда: Домодедово
- Поблагодарили: 25 раз
Re: Нужна схема климат контроля
cтранно управление у них одинаковое.у меня на старом блоке работает и на новом тоже.у тебя штатное или переделка с правого на левый???vlad13 писал(а):Ставлю с экраном не работает вентилятор печки.
pajero2-5 дв-1993-1996-1999 г.в-5 мкпп.super-select-2500td-2800td было
pajero4-5 дв-2007 г.в-5 акпп.super-select.3200td-было
pajero4-5 дв-2007 г.в-5 акпп.super-select 3800l-сейчас\газ.оборуд\
тел-8 968 412 43 86
Активация Autel ap200,Launch,Autocom
pajero4-5 дв-2007 г.в-5 акпп.super-select.3200td-было
pajero4-5 дв-2007 г.в-5 акпп.super-select 3800l-сейчас\газ.оборуд\
тел-8 968 412 43 86
Активация Autel ap200,Launch,Autocom
Re: Нужна схема климат контроля
Всё штатное и не у меня одного такая проблема .
Pajero 2 4м40 1995 акпп ss японец.V46WG SUPER EXCEED Бодик 4см Cooper Discoverer LT 33x12,5x15 ,грелка бинар-5 Санкт-Петербург
8 952 281 05 68 охранная система Амстафф и злой сиамский кот
Я на Drive2
8 952 281 05 68 охранная система Амстафф и злой сиамский кот
Я на Drive2
Re: Нужна схема климат контроля
Может кто знает с какой ноги идет управление на вентилятор
,на климате с экраном .
Pajero 2 4м40 1995 акпп ss японец.V46WG SUPER EXCEED Бодик 4см Cooper Discoverer LT 33x12,5x15 ,грелка бинар-5 Санкт-Петербург
8 952 281 05 68 охранная система Амстафф и злой сиамский кот
Я на Drive2
8 952 281 05 68 охранная система Амстафф и злой сиамский кот
Я на Drive2
- igor-857
- Сообщения: 1339
- Зарегистрирован: 23 окт 2010, 17:40
- Двигатель:: 6G75
- Мой автомобиль(и):: PAJERO 4
- Откуда: 190Rus
- Откуда: Домодедово
- Поблагодарили: 25 раз
Re: Нужна схема климат контроля
а ты не замечал то ,что в старом блоке управления у датчика температуры отдельный штекер,а у нового блока управления датчик температуры подсоединён в общий разьём.может из-за этого и не работает!!
pajero2-5 дв-1993-1996-1999 г.в-5 мкпп.super-select-2500td-2800td было
pajero4-5 дв-2007 г.в-5 акпп.super-select.3200td-было
pajero4-5 дв-2007 г.в-5 акпп.super-select 3800l-сейчас\газ.оборуд\
тел-8 968 412 43 86
Активация Autel ap200,Launch,Autocom
pajero4-5 дв-2007 г.в-5 акпп.super-select.3200td-было
pajero4-5 дв-2007 г.в-5 акпп.super-select 3800l-сейчас\газ.оборуд\
тел-8 968 412 43 86
Активация Autel ap200,Launch,Autocom
Re: Нужна схема климат контроля
Датчик что подключён, что нет, всё работает.
Pajero 2 4м40 1995 акпп ss японец.V46WG SUPER EXCEED Бодик 4см Cooper Discoverer LT 33x12,5x15 ,грелка бинар-5 Санкт-Петербург
8 952 281 05 68 охранная система Амстафф и злой сиамский кот
Я на Drive2
8 952 281 05 68 охранная система Амстафф и злой сиамский кот
Я на Drive2
- Dimix
- Сообщения: 12135
- Зарегистрирован: 26 сен 2006, 18:31
- Двигатель:: 6G72 24v
- Мой автомобиль(и):: montero sport'02
- Откуда: Балашиха
- Откуда: Россия, Балашиха-Москва
- Благодарил (а): 88 раз
- Поблагодарили: 402 раза
Re: Нужна схема климат контроля
http://www.pajero4x4.ru/bbs/phpBB2/view ... 7&start=30
У тебя климат такой же?
У тебя климат такой же?
Re: Нужна схема климат контроля
Да такой же
,пока вместо одного реле поставил перемычку, вентилятор заработал, только теперь вентилятор не выключается
а крутит на маленькой скорости.
Pajero 2 4м40 1995 акпп ss японец.V46WG SUPER EXCEED Бодик 4см Cooper Discoverer LT 33x12,5x15 ,грелка бинар-5 Санкт-Петербург
8 952 281 05 68 охранная система Амстафф и злой сиамский кот
Я на Drive2
8 952 281 05 68 охранная система Амстафф и злой сиамский кот
Я на Drive2
- Dimix
- Сообщения: 12135
- Зарегистрирован: 26 сен 2006, 18:31
- Двигатель:: 6G72 24v
- Мой автомобиль(и):: montero sport'02
- Откуда: Балашиха
- Откуда: Россия, Балашиха-Москва
- Благодарил (а): 88 раз
- Поблагодарили: 402 раза
Re: Нужна схема климат контроля
лови от спорта
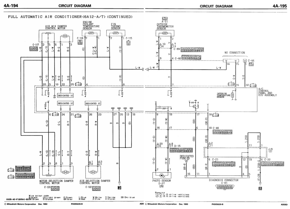
на стр 287 начало про вентилятор и про резистор и на 288 продолжение. + распиновка подключения к блоку климата
на стр 287 начало про вентилятор и про резистор и на 288 продолжение. + распиновка подключения к блоку климата
- zeeez
- Сообщения: 304
- Зарегистрирован: 28 июл 2014, 18:26
- Двигатель:: 3.0 6g72 24 valve
- Мой автомобиль(и):: PAJERO2
- Откуда: Урал
- Благодарил (а): 11 раз
- Поблагодарили: 11 раз
Re: Нужна схема климат контроля
Подниму тему. Други!!! давайте общими усилиями поищем схему подключения климата... Та распиновка, которая выше не срастается с фактическим положением дел.
У меня блок MR201969 с кнопкой для задней печки
Скажу сразу у меня все заслонки и вентиль работает, но остались несколько проводов, назначение которых мне неизвестно.
Проводку выплетал из прульной машины.
На распиновке из книжки выше + идет на 3ю ногу, у меня он висит на 4й ноге. И по всем другим контактам тоже нестыковки.
Что нашел в интернете см ниже.
У всех + на 3ю ногу. и все эти варианты однопечковые и от Галанта. внешне блоки почти одинаковые. отличаются кнопкой слева посередине.
У меня блок MR201969 с кнопкой для задней печки
Скажу сразу у меня все заслонки и вентиль работает, но остались несколько проводов, назначение которых мне неизвестно.
Проводку выплетал из прульной машины.
На распиновке из книжки выше + идет на 3ю ногу, у меня он висит на 4й ноге. И по всем другим контактам тоже нестыковки.
Что нашел в интернете см ниже.
У всех + на 3ю ногу. и все эти варианты однопечковые и от Галанта. внешне блоки почти одинаковые. отличаются кнопкой слева посередине.
Конструктор
Замена кузова и рамы на рестайл
Перенос руля справа на лево
АКПП вместо МКПП
Стройка продолжается:
http://pajero4x4.ru/bbs/phpBB2/viewtopi ... 1&t=150096
https://www.drive2.ru/r/mitsubishi/458399592833138364/
Замена кузова и рамы на рестайл
Перенос руля справа на лево
АКПП вместо МКПП
Стройка продолжается:
http://pajero4x4.ru/bbs/phpBB2/viewtopi ... 1&t=150096
https://www.drive2.ru/r/mitsubishi/458399592833138364/
- Dimix
- Сообщения: 12135
- Зарегистрирован: 26 сен 2006, 18:31
- Двигатель:: 6G72 24v
- Мой автомобиль(и):: montero sport'02
- Откуда: Балашиха
- Откуда: Россия, Балашиха-Москва
- Благодарил (а): 88 раз
- Поблагодарили: 402 раза
Re: Нужна схема климат контроля
Я по этой распиновке подключил... и у меня значек задней печки горит..но задней печки нет
Три раза прочитал, так в чем хотелка? Чтоб работала задняя печка с кнопки?
Три раза прочитал, так в чем хотелка? Чтоб работала задняя печка с кнопки?
- zeeez
- Сообщения: 304
- Зарегистрирован: 28 июл 2014, 18:26
- Двигатель:: 3.0 6g72 24 valve
- Мой автомобиль(и):: PAJERO2
- Откуда: Урал
- Благодарил (а): 11 раз
- Поблагодарили: 11 раз
Re: Нужна схема климат контроля
Хотелка найти распиновку от П2. У тебя спорт, а у спортов совсем другой климат. Проц даже другой. Спортовский климат на п2 не встает, и наоборот тоже.Dimix писал(а):Я по этой распиновке подключил... и у меня значек задней печки горит..но задней печки нет
Три раза прочитал, так в чем хотелка? Чтоб работала задняя печка с кнопки?
Конструктор
Замена кузова и рамы на рестайл
Перенос руля справа на лево
АКПП вместо МКПП
Стройка продолжается:
http://pajero4x4.ru/bbs/phpBB2/viewtopi ... 1&t=150096
https://www.drive2.ru/r/mitsubishi/458399592833138364/
Замена кузова и рамы на рестайл
Перенос руля справа на лево
АКПП вместо МКПП
Стройка продолжается:
http://pajero4x4.ru/bbs/phpBB2/viewtopi ... 1&t=150096
https://www.drive2.ru/r/mitsubishi/458399592833138364/
-
Валюта
- Сообщения: 20
- Зарегистрирован: 20 авг 2012, 16:32
- Двигатель:: 4m40
- Мой автомобиль(и):: Pajero
- Откуда: Братск
- Поблагодарили: 2 раза
Re: Нужна схема климат контроля
Блин у меня тоже проблема. Уже неделю не может никто разобраться. Вентилятор еле крутит с 1 по 7 положение. На последнем 8 положении крутит быстрее но не на максимум. Панель управления с ж/к экраном. Помогите кто чем может????
- Dimix
- Сообщения: 12135
- Зарегистрирован: 26 сен 2006, 18:31
- Двигатель:: 6G72 24v
- Мой автомобиль(и):: montero sport'02
- Откуда: Балашиха
- Откуда: Россия, Балашиха-Москва
- Благодарил (а): 88 раз
- Поблагодарили: 402 раза
Re: Нужна схема климат контроля
Резистору управления хана или мотору печкиВалюта писал(а):Блин у меня тоже проблема. Уже неделю не может никто разобраться. Вентилятор еле крутит с 1 по 7 положение. На последнем 8 положении крутит быстрее но не на максимум. Панель управления с ж/к экраном. Помогите кто чем может????
-
glazkovartem
- Сообщения: 5
- Зарегистрирован: 25 июн 2018, 14:44
- Двигатель:: 4М40-Т турбодизель
- Мой автомобиль(и):: MITSUBISHI PAJERO-2 (1999 г.в.)
- Откуда: Пермь
Re: Нужна схема климат контроля
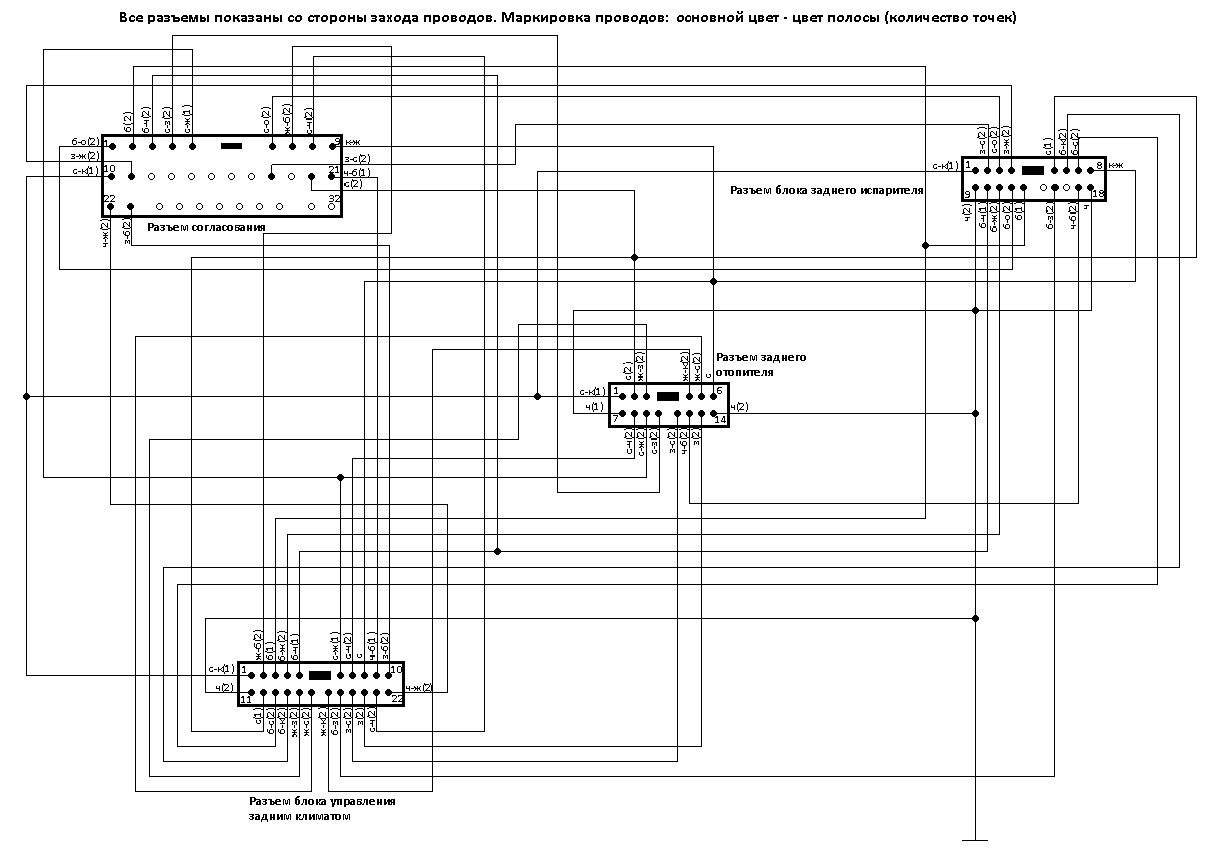
Всем доброго времени суток! Нарисовал схему подторпедной косы (только той ее части, которая касается климата). Выплетая климат, зарисовывал куда идет каждый проводок. Потом все это перенес в комп при помощи замечательной программы Paint))). Знаю, что дно, но осваивать visio не было ни времени ни желания. Коса, с которой рисовалась схема от праворукого длинного паджеро с мотором 4М40. С дорестайлиноговой панелью климата. Кому надо под рестайл, то просто можно не использовать 2-пиновый разъем на блоке упрвления. Это разъем датчика салонной температуры. В рестайлинговой панельке этот датчик уже соединен с основными разъемами. Все разъемы на схеме показаны со стороны проводов. Вроде должно быть все понятно...
-
glazkovartem
- Сообщения: 5
- Зарегистрирован: 25 июн 2018, 14:44
- Двигатель:: 4М40-Т турбодизель
- Мой автомобиль(и):: MITSUBISHI PAJERO-2 (1999 г.в.)
- Откуда: Пермь
Re: Нужна схема климат контроля
И еще раз здравствуйте. Старую схему удалил, так как были обнаружены в ней небольшие неточности. В частности не предполагал, что в блоках перемычек одна перемычка может группировать не все пины, а несколько групп. Обновленную схему прилагаю. Также готова схемка косы, идущей на задней климат.
Последний раз редактировалось glazkovartem 31 авг 2018, 08:26, всего редактировалось 1 раз.
-
glazkovartem
- Сообщения: 5
- Зарегистрирован: 25 июн 2018, 14:44
- Двигатель:: 4М40-Т турбодизель
- Мой автомобиль(и):: MITSUBISHI PAJERO-2 (1999 г.в.)
- Откуда: Пермь
Re: Нужна схема климат контроля
Далее по ходу внедрения проводки, буду рисовать схему интеграции климата в родные косы. Идея состоит в том, чтобы не протягивать лишние провода, а задействовать максимально родную проводку. При этом разъемы от старых блоков отрезать не буду. То есть проводка получится универсальной и для климата и для обычного кондиционера. Всегда должна быть возможность откатиться назад))))
