Распиновка разъема штатной камеры заднего вида П4 2008
Модераторы: SNOOPER, Nbf, drcham, Romik, BAlex, DenVer, SoundSpeed
-
ВВМ 69 ТВ
- Сообщения: 53
- Зарегистрирован: 20 май 2015, 15:32
- Двигатель:: дизель
- Мой автомобиль(и):: Паджеро 4
- Откуда: Тверь
- Благодарил (а): 3 раза
- Поблагодарили: 4 раза
Распиновка разъема штатной камеры заднего вида П4 2008
Добрый день уважаемые Паджероводы. Не судите строго новичка: если кто поможет буду признателен за совет или ткните носом в ссылку. Проблема вот в чем: на Паджеро 4 2008 г, 3,2 D вышла из строя камера заднего вида. Наверное разъем, читал что это болезнь, пока еще не занимался, жду погоды. Покупать родную камеру за такой негуманный ценник в 13-15 руб как-то ...... Вот и озадачился я мыслью: а можно ли купить обычную универсальную камеру заднего вида за 3-3,5 руб и подключить ее к разъему штатной камеры на задней двери? Но у универсальной камеры разъемы типа тюльпан. Может кто подскажет распиновку разъема штатной камеры? или кинет ссылку где можно найти, я не нашел (может плохо искал). Спасибо
- Lebed
- Сообщения: 10748
- Зарегистрирован: 25 июл 2010, 11:23
- Двигатель:: ******
- Мой автомобиль(и):: ******
- Откуда: ***
- Откуда: ***
- Благодарил (а): 236 раз
- Поблагодарили: 431 раз
Re: Распиновка разъема штатной камеры заднего вида П4 2008
http://pajero4x4.ru/bbs/phpBB2/viewtopi ... а#p1550847
А на самом деле смотрите разьем G10, купить камеру успеете
А на самом деле смотрите разьем G10, купить камеру успеете
"Если театр начинается с вешалки, то за такие пьесы нужно вешать." (с)
P.S. Для упырей- "Мы с тобой Гималаи; остальные — ничтожества." (с)
P.S. Для упырей- "Мы с тобой Гималаи; остальные — ничтожества." (с)
-
ВВМ 69 ТВ
- Сообщения: 53
- Зарегистрирован: 20 май 2015, 15:32
- Двигатель:: дизель
- Мой автомобиль(и):: Паджеро 4
- Откуда: Тверь
- Благодарил (а): 3 раза
- Поблагодарили: 4 раза
Re: Распиновка разъема штатной камеры заднего вида П4 2008
Lebed
Спасибо огромное. как я читал проблема в основном в разъеме камеры. попробую разобрать обработать пропаять - может и реанимирую
Спасибо огромное. как я читал проблема в основном в разъеме камеры. попробую разобрать обработать пропаять - может и реанимирую
- И Тельму, и Луизу
- Сообщения: 1644
- Зарегистрирован: 14 окт 2010, 18:12
- Двигатель:: Дизель 2,4
- Мой автомобиль(и):: НМПС 2021
- Откуда: Москва
- Откуда: Мск
- Благодарил (а): 31 раз
- Поблагодарили: 12 раз
Re: Распиновка разъема штатной камеры заднего вида П4 2008
Блин! Да там обычная камера стоит, никакой "фирменной" чиповки. СМтавь любую камеру с дюбыми разъемами. Тыщи в две-3 уложишься...ВВМ 69 ТВ писал(а):... Наверное разъем, читал что это болезнь, пока еще не занимался, жду погоды. Покупать родную камеру за такой негуманный ценник в 13-15 руб как-то ...... Вот и озадачился я мыслью: а можно ли купить обычную универсальную камеру заднего вида за 3-3,5 руб и подключить ее к разъему штатной камеры на задней двери?....
-
ВВМ 69 ТВ
- Сообщения: 53
- Зарегистрирован: 20 май 2015, 15:32
- Двигатель:: дизель
- Мой автомобиль(и):: Паджеро 4
- Откуда: Тверь
- Благодарил (а): 3 раза
- Поблагодарили: 4 раза
Re: Распиновка разъема штатной камеры заднего вида П4 2008
все верно - я и очу поставить обычную камеру, но у нее разъемы другие (типа Тюльпан) а у родной многоконтактный. Вот и просил распиновку родного разъема чтобы понять куда что подключать. имеется в виду какой контакт у родного разъема видео вход, какой экран и т.д.... не хочется платить 12-14 руб за вообщем-то обычную камеру
- Lebed
- Сообщения: 10748
- Зарегистрирован: 25 июл 2010, 11:23
- Двигатель:: ******
- Мой автомобиль(и):: ******
- Откуда: ***
- Откуда: ***
- Благодарил (а): 236 раз
- Поблагодарили: 431 раз
Re: Распиновка разъема штатной камеры заднего вида П4 2008
О разнице в питании штатной и нештатной не забыли?
"Если театр начинается с вешалки, то за такие пьесы нужно вешать." (с)
P.S. Для упырей- "Мы с тобой Гималаи; остальные — ничтожества." (с)
P.S. Для упырей- "Мы с тобой Гималаи; остальные — ничтожества." (с)
-
ВВМ 69 ТВ
- Сообщения: 53
- Зарегистрирован: 20 май 2015, 15:32
- Двигатель:: дизель
- Мой автомобиль(и):: Паджеро 4
- Откуда: Тверь
- Благодарил (а): 3 раза
- Поблагодарили: 4 раза
Re: Распиновка разъема штатной камеры заднего вида П4 2008
насколько я понимаю у нештатной камеры питание 12 В, так их можно взять с фонарей заднего хода например...а питание которое идет на штатную камеру заизолировать ....
-
ВВМ 69 ТВ
- Сообщения: 53
- Зарегистрирован: 20 май 2015, 15:32
- Двигатель:: дизель
- Мой автомобиль(и):: Паджеро 4
- Откуда: Тверь
- Благодарил (а): 3 раза
- Поблагодарили: 4 раза
Re: Распиновка разъема штатной камеры заднего вида П4 2008
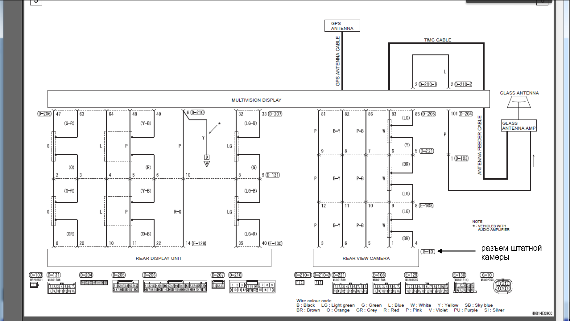
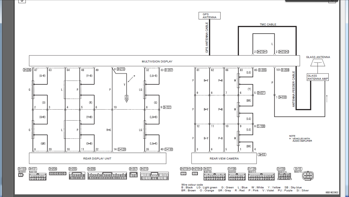
мне собственно и надо узнать какой провод на разъеме штатной камеры это видео сигнал, а какой экран и все...если кто подскажет - буду признателен. на колодке 5 проводов (разъем G-10) контакты 1; 3; 4; 5; 6
- Lebed
- Сообщения: 10748
- Зарегистрирован: 25 июл 2010, 11:23
- Двигатель:: ******
- Мой автомобиль(и):: ******
- Откуда: ***
- Откуда: ***
- Благодарил (а): 236 раз
- Поблагодарили: 431 раз
Re: Распиновка разъема штатной камеры заднего вида П4 2008
Если смотреть на цвет проводов из ГУ и проводов на разъёме камеры заднего вида, то разъём "3" видео (P: Pink: розовый), "5" экран (P-B: Pink-Black: розовый с чёрным), но я бы контрольно прозвонил бы провода...
Задумали всё таки ставить нештатную камеры?
Задумали всё таки ставить нештатную камеры?
"Если театр начинается с вешалки, то за такие пьесы нужно вешать." (с)
P.S. Для упырей- "Мы с тобой Гималаи; остальные — ничтожества." (с)
P.S. Для упырей- "Мы с тобой Гималаи; остальные — ничтожества." (с)
-
ВВМ 69 ТВ
- Сообщения: 53
- Зарегистрирован: 20 май 2015, 15:32
- Двигатель:: дизель
- Мой автомобиль(и):: Паджеро 4
- Откуда: Тверь
- Благодарил (а): 3 раза
- Поблагодарили: 4 раза
Re: Распиновка разъема штатной камеры заднего вида П4 2008
я сначала проверю сам разъем и если встанет вопрос о замене камеры то поставлю обычную камеру с бюджетом 3-4 руб, не брать же родную за 13-14 руб и выше. а за подсказку спасибо огромное.
- Lebed
- Сообщения: 10748
- Зарегистрирован: 25 июл 2010, 11:23
- Двигатель:: ******
- Мой автомобиль(и):: ******
- Откуда: ***
- Откуда: ***
- Благодарил (а): 236 раз
- Поблагодарили: 431 раз
Re: Распиновка разъема штатной камеры заднего вида П4 2008
Не забудьте о том, что питание этой обычной камеры 12В, на штатную же питание подаётся иное (см. ссылку выше).ВВМ 69 ТВ писал(а):...если встанет вопрос о замене камеры то поставлю обычную камеру...
"Если театр начинается с вешалки, то за такие пьесы нужно вешать." (с)
P.S. Для упырей- "Мы с тобой Гималаи; остальные — ничтожества." (с)
P.S. Для упырей- "Мы с тобой Гималаи; остальные — ничтожества." (с)
-
ВВМ 69 ТВ
- Сообщения: 53
- Зарегистрирован: 20 май 2015, 15:32
- Двигатель:: дизель
- Мой автомобиль(и):: Паджеро 4
- Откуда: Тверь
- Благодарил (а): 3 раза
- Поблагодарили: 4 раза
Re: Распиновка разъема штатной камеры заднего вида П4 2008
добрый день. на разъем штатной камеры заднего вида пробовал подключить обычную. но все по-порядку:
обычную камеру заднего вида подключал к разъему типа тюльпан слева сзади на видео вход (там три разъема) - работает
далее взял с этой же камеры сигнал и подал на разъем штатной камеры заднего вида на контакты указанные как вход с камеры видео и экран и получилось следующее: при подаче сигнала на провод экрана на экране появились парковочные линии, и все... подаю виеосигнал на провод видео - ничего...
да забыл сказать что у меня нет шлейфа от самой камеры (там круглый 5 или 6 -ти штырьковый) до разъема G-10 - длина этого шлейфа около 5-7 см.
может быть нет контакта где-то в проводке от разъема G-10 дот головного устройства. будет время попробую снять головное устройства и подать сигнал прямо на него...
обычную камеру заднего вида подключал к разъему типа тюльпан слева сзади на видео вход (там три разъема) - работает
далее взял с этой же камеры сигнал и подал на разъем штатной камеры заднего вида на контакты указанные как вход с камеры видео и экран и получилось следующее: при подаче сигнала на провод экрана на экране появились парковочные линии, и все... подаю виеосигнал на провод видео - ничего...
да забыл сказать что у меня нет шлейфа от самой камеры (там круглый 5 или 6 -ти штырьковый) до разъема G-10 - длина этого шлейфа около 5-7 см.
может быть нет контакта где-то в проводке от разъема G-10 дот головного устройства. будет время попробую снять головное устройства и подать сигнал прямо на него...
- Ihtiozavr
- Сообщения: 123
- Зарегистрирован: 28 мар 2008, 03:37
- Двигатель:: 4M41
- Мой автомобиль(и):: Pajero IV
- Откуда: SPb
- Откуда: SPb
- Благодарил (а): 8 раз
- Поблагодарили: 3 раза
Распиновка разъема штатной камеры заднего вида П4 2008
Насколько я помню, там уже к самой камере непосредственно идёт короткий провод питания с разъёмом.
Видимо, этот проводок можно поменять и камера заработает, если дело в съеденных окислением контактах.
Видимо, этот проводок можно поменять и камера заработает, если дело в съеденных окислением контактах.
НЕТ ВОЙНЕ! MMC P4, 2008, 5 дв., дизель, АКПП, Ultimate, dune biege
- =1=
- Сообщения: 15
- Зарегистрирован: 11 мар 2021, 17:43
- Двигатель:: 3.2 дизель
- Мой автомобиль(и):: Pajero IV
- Откуда: Познань
- Благодарил (а): 7 раз
Распиновка разъема штатной камеры заднего вида П4 2008
Привет!
столкнулся с аналогичной проблемой (сломался разъем штатной камеры заднего вида)
ВОПРОС: сам корпус камеры вообще разборный или нет? как ни вертел, вскрыть корпус не удалось, может там какая хитрость?
спасибо!
столкнулся с аналогичной проблемой (сломался разъем штатной камеры заднего вида)
ВОПРОС: сам корпус камеры вообще разборный или нет? как ни вертел, вскрыть корпус не удалось, может там какая хитрость?
спасибо!
- gansales
- Сообщения: 12060
- Зарегистрирован: 06 ноя 2009, 10:22
- Двигатель:: 6g72
- Мой автомобиль(и):: Montero Sport (был) Паджеро IV , 3.0 , ultimate. 12 год.
- Откуда: Москва
- Откуда: < Кунцево Рублёвка >
- Благодарил (а): 329 раз
- Поблагодарили: 791 раз
Распиновка разъема штатной камеры заднего вида П4 2008
А зачем тебе её открывать?
Montero Sport. 3.0 , Акпп. 2000г. ( Продан) был со мной 13 лет.
Паджеро 4 . 3.0 . 12 год.
Андрей.
Если пуля в голове - доктор не поможет !
Паджеро 4 . 3.0 . 12 год.
Андрей.
Если пуля в голове - доктор не поможет !
- =1=
- Сообщения: 15
- Зарегистрирован: 11 мар 2021, 17:43
- Двигатель:: 3.2 дизель
- Мой автомобиль(и):: Pajero IV
- Откуда: Познань
- Благодарил (а): 7 раз
Распиновка разъема штатной камеры заднего вида П4 2008
потому что (как я собсно и написал выше) разъем сломался
- gansales
- Сообщения: 12060
- Зарегистрирован: 06 ноя 2009, 10:22
- Двигатель:: 6g72
- Мой автомобиль(и):: Montero Sport (был) Паджеро IV , 3.0 , ultimate. 12 год.
- Откуда: Москва
- Откуда: < Кунцево Рублёвка >
- Благодарил (а): 329 раз
- Поблагодарили: 791 раз
Распиновка разъема штатной камеры заднего вида П4 2008
Понял, когда сою менял на ahd не видел никаких разъёмов, завтра посмотрю.
Montero Sport. 3.0 , Акпп. 2000г. ( Продан) был со мной 13 лет.
Паджеро 4 . 3.0 . 12 год.
Андрей.
Если пуля в голове - доктор не поможет !
Паджеро 4 . 3.0 . 12 год.
Андрей.
Если пуля в голове - доктор не поможет !
- =1=
- Сообщения: 15
- Зарегистрирован: 11 мар 2021, 17:43
- Двигатель:: 3.2 дизель
- Мой автомобиль(и):: Pajero IV
- Откуда: Познань
- Благодарил (а): 7 раз
Распиновка разъема штатной камеры заднего вида П4 2008
ну там от камеры провод идет и заканчивается 6-пиновым разъемом (внутри двери багажника). у меня этот провод оборвался между разъмом и камерой, ближе к корпусом камеры. когда пытался расковырять, все рассыпалось нах как труха
было б здорово, спасибо!
- gansales
- Сообщения: 12060
- Зарегистрирован: 06 ноя 2009, 10:22
- Двигатель:: 6g72
- Мой автомобиль(и):: Montero Sport (был) Паджеро IV , 3.0 , ultimate. 12 год.
- Откуда: Москва
- Откуда: < Кунцево Рублёвка >
- Благодарил (а): 329 раз
- Поблагодарили: 791 раз
Распиновка разъема штатной камеры заднего вида П4 2008
Пока могу сказать что провод от штатной камеры мы отрезали по середине. К нему подключили новую, но кажется у меня камера не много другая. Крепится она к кронштейн на двух винтиках, а у тебя что-то не увидел, ну да ладно, завтра сфоткаю и выложу.
Montero Sport. 3.0 , Акпп. 2000г. ( Продан) был со мной 13 лет.
Паджеро 4 . 3.0 . 12 год.
Андрей.
Если пуля в голове - доктор не поможет !
Паджеро 4 . 3.0 . 12 год.
Андрей.
Если пуля в голове - доктор не поможет !
- =1=
- Сообщения: 15
- Зарегистрирован: 11 мар 2021, 17:43
- Двигатель:: 3.2 дизель
- Мой автомобиль(и):: Pajero IV
- Откуда: Познань
- Благодарил (а): 7 раз
Распиновка разъема штатной камеры заднего вида П4 2008
у меня она была прикреплена к металл. пластине которая напрочь сгнила, поэтому срезал и выкинул
