Доброго здоровья!
Не горит освещение салона и багажника (ММС, 2003г.в.). Лампы целы, контакты не окислены, предохранитель №1 (10А) под капотом цел.
Штурманский свет (2 лампы) работает. Где рыть?
Спасибо.
p.s. еще вопрос: а как у вас включается троекратное (ну или сколько там за одно нажатие раз?) включение дворников (рычаг вверх). У меня словно сенсорное - рычаг вверх не люфтит, хода практически нет, он какой-то жесткий, слегка прикасаешься к нему (вверх) и срабатывает. В то время как на всех остальных различных авто (что были) есть все-таки небольшой ход рычага вверх. Может где чего заело?
Не горит освещение салона ММС и про срабатывание дворников
Модераторы: SNOOPER, Nbf, Romik, BAlex
-
Олег....
- Сообщения: 1711
- Зарегистрирован: 21 май 2010, 15:43
- Двигатель:: 6G72
- Мой автомобиль(и):: Montero Sport
- Откуда: Таганрог
- Благодарил (а): 69 раз
- Поблагодарили: 86 раз
- Контактная информация:
Re: Не горит освещение салона ММС и про срабатывание дворник
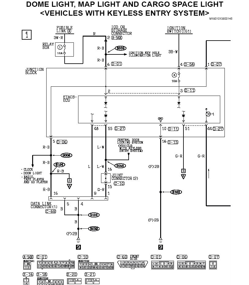
Светом управляет ETACS-ECU. По схеме там есть еще предохранитель №8 на 10А.
Если вручную включить салонный свет или свет багажника - он работает?
Плюс на штурманский свет и на остальной подается с блока управления один. А вот коммутации земли по разному. Если вручную свет светится, то увы, это блок ETACS нефурычит...
Если вручную включить салонный свет или свет багажника - он работает?
Плюс на штурманский свет и на остальной подается с блока управления один. А вот коммутации земли по разному. Если вручную свет светится, то увы, это блок ETACS нефурычит...
Montero Sport 2003 6G72. 32е ATэшечки, хобот, радейка. Спальник.
ПРОДАН Montero'94 6G74 АККП Длинный, 31-е мудричи, хобот и крепкий бампер. Рации всякие.
ПРОДАН Montero'94 6G74 АККП Длинный, 31-е мудричи, хобот и крепкий бампер. Рации всякие.
-
ХММ
- Сообщения: 221
- Зарегистрирован: 30 май 2013, 19:04
- Двигатель:: 4D56...6G72
- Мой автомобиль(и):: L200...был...теперь в новых поисках
- Откуда: Владимир
- Благодарил (а): 36 раз
Re: Не горит освещение салона ММС и про срабатывание дворник
Свет в салоне и в багажнике вручную также не работает. Никак...Олег.... писал(а):Светом управляет ETACS-ECU. По схеме там есть еще предохранитель №8 на 10А.
Если вручную включить салонный свет или свет багажника - он работает?
Плюс на штурманский свет и на остальной подается с блока управления один. А вот коммутации земли по разному. Если вручную свет светится, то увы, это блок ETACS нефурычит...
Предохранитель №8 - в салоне, если я правильно понял?
-
Олег....
- Сообщения: 1711
- Зарегистрирован: 21 май 2010, 15:43
- Двигатель:: 6G72
- Мой автомобиль(и):: Montero Sport
- Откуда: Таганрог
- Благодарил (а): 69 раз
- Поблагодарили: 86 раз
- Контактная информация:
Re: Не горит освещение салона ММС и про срабатывание дворник
Да, в салоне.
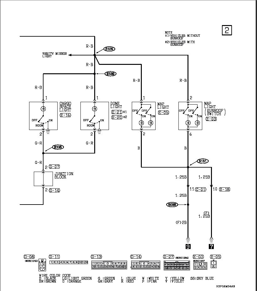
Вот схема, по ней видно, что плюс идет один через скрутки.
Мину коммутируется отдельно. Если свет не включается вручную, я бы искал куда пропал плюс на участке 126-139.
Вот схема, по ней видно, что плюс идет один через скрутки.
Мину коммутируется отдельно. Если свет не включается вручную, я бы искал куда пропал плюс на участке 126-139.
Montero Sport 2003 6G72. 32е ATэшечки, хобот, радейка. Спальник.
ПРОДАН Montero'94 6G74 АККП Длинный, 31-е мудричи, хобот и крепкий бампер. Рации всякие.
ПРОДАН Montero'94 6G74 АККП Длинный, 31-е мудричи, хобот и крепкий бампер. Рации всякие.
-
ХММ
- Сообщения: 221
- Зарегистрирован: 30 май 2013, 19:04
- Двигатель:: 4D56...6G72
- Мой автомобиль(и):: L200...был...теперь в новых поисках
- Откуда: Владимир
- Благодарил (а): 36 раз
Re: Не горит освещение салона ММС и про срабатывание дворник
Предохранитель №8 цел. Снимать обшивку потолка?
-
Олег....
- Сообщения: 1711
- Зарегистрирован: 21 май 2010, 15:43
- Двигатель:: 6G72
- Мой автомобиль(и):: Montero Sport
- Откуда: Таганрог
- Благодарил (а): 69 раз
- Поблагодарили: 86 раз
- Контактная информация:
Re: Не горит освещение салона ММС и про срабатывание дворник
Ну что дальше делать решать только вам. Я всю документацию выложил.
Как делал бы я:
1. Проверить наличие 12 вольт и земли в самих плафонах света. Ну мало ли...
2. Звоним плюсовую цепь между плафоном салонного света и плафоном штурманского. Она должна быть.
3. Проверить 1й контакт на разъеме D-07 на наличие 12 вольт. Сразу прозвонить его до плафона. Если цепь целая, то экономим на разборке потолка. И также прозвонить до плафона штурманского света -> убедимся что проводка собрана по схеме.
По результатам этих проверок уже думать что дальше делать.
Но мне кажется, что если брать в расчет что блок управления живой, то разрыв может быть в точке S126.
Как делал бы я:
1. Проверить наличие 12 вольт и земли в самих плафонах света. Ну мало ли...
2. Звоним плюсовую цепь между плафоном салонного света и плафоном штурманского. Она должна быть.
3. Проверить 1й контакт на разъеме D-07 на наличие 12 вольт. Сразу прозвонить его до плафона. Если цепь целая, то экономим на разборке потолка. И также прозвонить до плафона штурманского света -> убедимся что проводка собрана по схеме.
По результатам этих проверок уже думать что дальше делать.
Но мне кажется, что если брать в расчет что блок управления живой, то разрыв может быть в точке S126.
Montero Sport 2003 6G72. 32е ATэшечки, хобот, радейка. Спальник.
ПРОДАН Montero'94 6G74 АККП Длинный, 31-е мудричи, хобот и крепкий бампер. Рации всякие.
ПРОДАН Montero'94 6G74 АККП Длинный, 31-е мудричи, хобот и крепкий бампер. Рации всякие.
-
Johny Cash
- Сообщения: 140
- Зарегистрирован: 13 ноя 2016, 22:06
- Двигатель:: 3.5 Бензин
- Мой автомобиль(и):: Pajero lll
- Откуда: Баку
- Благодарил (а): 16 раз
Re: Не горит освещение салона ММС и про срабатывание дворник
Проблема решена? И если решена, то каким путем, ато у меня таже проблемаХММ писал(а):Доброго здоровья!
Не горит освещение салона и багажника (ММС, 2003г.в.). Лампы целы, контакты не окислены, предохранитель №1 (10А) под капотом цел.
Штурманский свет (2 лампы) работает. Где рыть?
Спасибо.
-
Plus.nsk
- Сообщения: 11
- Зарегистрирован: 03 апр 2020, 08:28
- Двигатель:: 6g72
- Мой автомобиль(и):: MMS 2002 AWD
- Откуда: Новосибирск
Не горит освещение салона ММС и про срабатывание дворников
Всем привет . То же проблема с омвещением салона, но только включается в ручную, от концевиков дверей нет. Оба фонаря. Где искать подскажите.
Монтеро Спорт 2002 г.
Монтеро Спорт 2002 г.
