стрелка уровня топлива
Модераторы: SNOOPER, Nbf, Romik, BAlex, drcham, алексей - Маленький Мук
-
- Сообщения: 10
- Зарегистрирован: 17 ноя 2016, 00:28
- Двигатель:: 4d56
- Мой автомобиль(и):: Pajero 2
- Откуда: Дмитров
стрелка уровня топлива
Ребята, не пинайте пожалуйста!! Я новичок и ответа не смог найти(( Паджерик 2 коротыш 4d56. При покупке машины не работала стрелка уровня топлива. Выяснилось что датчик в баке от волги(( Заменил датчик скорее всего от 5 дверного Жореса 2 ( не пояснили при продаже). Теперь вопросы: есть ли различия датчиков уровня топлива от 5 дверки на 3 дверку? и стрелка топлива при выключении зажигания не опускается на ноль? в проводке походу обрыв и пришлось подключить датчик напрямую к приборке
- ZILLA
- Сообщения: 7553
- Зарегистрирован: 22 май 2007, 16:31
- Двигатель:: 0,75
- Мой автомобиль(и):: Hooooondaaaaa
- Откуда: течет нефть?
- Откуда: 101 км от Москвы
- Благодарил (а): 1 раз
- Поблагодарили: 282 раза
Re: стрелка уровня топлива
Ну баки на 5 и 3 дв разные по объёму 92 и 70 с чем-то. Могут быть и различия в датчиках
Восстановление неисправных акпп Mitsubishi, Hyundai, Toyota, Mersedes и т.п. Диагностика и обслуживание всех видов акпп, вариаторов и роботов.
+79О3 6З561О5, ватсап +791О 6О8О191
+79О3 6З561О5, ватсап +791О 6О8О191
- dvm99
- Сообщения: 21706
- Зарегистрирован: 21 май 2012, 20:59
- Двигатель:: 6G72, 12клап.,
- Мой автомобиль(и):: Pajero2, Запорожец- Ланос
- Откуда: Свердловская обл.
- Благодарил (а): 704 раза
- Поблагодарили: 1026 раз
Re: стрелка уровня топлива
А топливо-то в баке есть?олег1708 писал(а): и стрелка топлива при выключении зажигания не опускается на ноль?

Индикатор не обестачивается при отключении (на всех машинах так сделано).
Дмитрий
Боливар2 - П2, 92г., V43, 6G72(12V), V4AW2, RD/L, пруль (чистокровный японский рысак)
Боливар1 - П2, 93г., 6G72(12V), МКПП, V43, RD/L, Европа (славный был конь, но уже донор)
Боливар2 - П2, 92г., V43, 6G72(12V), V4AW2, RD/L, пруль (чистокровный японский рысак)
Боливар1 - П2, 93г., 6G72(12V), МКПП, V43, RD/L, Европа (славный был конь, но уже донор)
-
- Сообщения: 10
- Зарегистрирован: 17 ноя 2016, 00:28
- Двигатель:: 4d56
- Мой автомобиль(и):: Pajero 2
- Откуда: Дмитров
Re: стрелка уровня топлива
соляра есть))
что то было в баке и залил 15л
в итоге чуть больше половины в баке
что то было в баке и залил 15л
в итоге чуть больше половины в баке
- saxa
- Сообщения: 1608
- Зарегистрирован: 08 окт 2009, 19:04
- Двигатель:: 4М40
- Мой автомобиль(и):: Pajero 2
- Откуда: СПб
- Откуда: Питер [78]
- Благодарил (а): 11 раз
- Поблагодарили: 37 раз
Re: стрелка уровня топлива
Стрелка не опускается. Датчики могут отличаться длиной поплавка, но сам резистор одинаков. Залей по горлышко, спустя несколько минут должно показать полный бак. Докатай до пустого или слей и смотри на стрелку.
4M40 1997 МКПП Восставший терминатор(8-92I-799-72-4один)
В экстремальном отдыхе главное вовремя понять, когда заканчивается экстрим и приходит полный ...
Не страшно, если Ж@ПА приводит к приключениям... Главное - чтобы приключения не приводили к Ж@ПЕ
В экстремальном отдыхе главное вовремя понять, когда заканчивается экстрим и приходит полный ...
Не страшно, если Ж@ПА приводит к приключениям... Главное - чтобы приключения не приводили к Ж@ПЕ
-
- Сообщения: 963
- Зарегистрирован: 28 ноя 2014, 09:03
- Двигатель:: 4D56T; 6VD1, G63B
- Мой автомобиль(и):: Pajero 1,L149G,двухпедальный; Isuzu VehiCROSS, Delica L037G.
- Откуда: край вулканов(сейчас)
- Откуда: Калининград(малая родина)
- Благодарил (а): 17 раз
- Поблагодарили: 116 раз
Re: стрелка уровня топлива
Датчики на длинный и "коротыш" - разные!
На любой вопрос даю любой ответ. C приветом - Андрей !
- Жипер
- Сообщения: 22073
- Зарегистрирован: 02 дек 2005, 06:06
- Двигатель:: 4d56, 4m40, 5vz
- Мой автомобиль(и):: П2 - 3 штуки
- Откуда: Приморье
- Откуда: Владивосток
- Благодарил (а): 39 раз
- Поблагодарили: 498 раз
Re: стрелка уровня топлива
Датчики топлива на всех П2 одинаковы.
Независимо от мотора и объёма бака.
Независимо от мотора и объёма бака.
Джипер , это утонченная творческая личность , а уж потом небритая пьяная сволочь.
ftsyuri1@mail.ru
8-908-44-69761. При звонке учитывайте разницу во времени. +7 часов к Москве
По запчастям стучитесь в воцап или телегу.
ftsyuri1@mail.ru
8-908-44-69761. При звонке учитывайте разницу во времени. +7 часов к Москве
По запчастям стучитесь в воцап или телегу.
- Жипер
- Сообщения: 22073
- Зарегистрирован: 02 дек 2005, 06:06
- Двигатель:: 4d56, 4m40, 5vz
- Мой автомобиль(и):: П2 - 3 штуки
- Откуда: Приморье
- Откуда: Владивосток
- Благодарил (а): 39 раз
- Поблагодарили: 498 раз
Re: стрелка уровня топлива
не на всех.dvm99 писал(а):А топливо-то в баке есть?олег1708 писал(а): и стрелка топлива при выключении зажигания не опускается на ноль?![]()
Индикатор не обестачивается при отключении (на всех машинах так сделано).
Джипер , это утонченная творческая личность , а уж потом небритая пьяная сволочь.
ftsyuri1@mail.ru
8-908-44-69761. При звонке учитывайте разницу во времени. +7 часов к Москве
По запчастям стучитесь в воцап или телегу.
ftsyuri1@mail.ru
8-908-44-69761. При звонке учитывайте разницу во времени. +7 часов к Москве
По запчастям стучитесь в воцап или телегу.
-
- Сообщения: 10
- Зарегистрирован: 17 ноя 2016, 00:28
- Двигатель:: 4d56
- Мой автомобиль(и):: Pajero 2
- Откуда: Дмитров
Re: стрелка уровня топлива
ну вот все и прояснилось!! у меня бак с ванночкой - лишь бы поплавок не зацепился бы за что нибудь
-
- Сообщения: 10
- Зарегистрирован: 17 ноя 2016, 00:28
- Двигатель:: 4d56
- Мой автомобиль(и):: Pajero 2
- Откуда: Дмитров
Re: стрелка уровня топлива
а может кто знает - у датчика уровня топлива 3 провода. Как выше написал, я 2 подключил напрямую к приборке (масса и стрелка). а вот куда подключить провод с лампочки??
- Deem-On
- Сообщения: 1014
- Зарегистрирован: 18 мар 2011, 17:49
- Двигатель:: 4M40
- Мой автомобиль(и):: Паджеро 2, был
- Откуда: Ярославль
- Благодарил (а): 8 раз
- Поблагодарили: 95 раз
Re: стрелка уровня топлива
Да что вы спорите, одинаковые..., разные.. Есть же мануалы и схемы, все это там подробно расписано. Вот сам датчик:
А если полистать схемы, то видно, что напряжение на него идет через замок зажигания, а стрелка не падает потому, что прибор-указатель сбалансированной системы, и при снятии напряжения стрелка все равно остается там, где была.
П-2 1994 длинный,GLS,4М40,АКПП,SS,А/Т32"-увы, уже донор
-
- Сообщения: 10
- Зарегистрирован: 17 ноя 2016, 00:28
- Двигатель:: 4d56
- Мой автомобиль(и):: Pajero 2
- Откуда: Дмитров
Re: стрелка уровня топлива
я так понимаю что при полном баке стрелка будет показывать примерно на 1/4 меньше? а минимальный уровень все верно будет показывать?
- Deem-On
- Сообщения: 1014
- Зарегистрирован: 18 мар 2011, 17:49
- Двигатель:: 4M40
- Мой автомобиль(и):: Паджеро 2, был
- Откуда: Ярославль
- Благодарил (а): 8 раз
- Поблагодарили: 95 раз
Re: стрелка уровня топлива
Нет. У коротыша бак бак короче и глубже, а у длинного шире и площе, поэтому если датчик от длинного, то когда бак еще не полный, стрелка будет показывать уже полный, и наоборот, когда топлива мало, стрелка будет показывать что его уже нет, хотя оно еще есть.олег1708 писал(а):я так понимаю что при полном баке стрелка будет показывать примерно на 1/4 меньше? а минимальный уровень все верно будет показывать?
П-2 1994 длинный,GLS,4М40,АКПП,SS,А/Т32"-увы, уже донор
-
- Сообщения: 10
- Зарегистрирован: 17 ноя 2016, 00:28
- Двигатель:: 4d56
- Мой автомобиль(и):: Pajero 2
- Откуда: Дмитров
Re: стрелка уровня топлива
значит настало время экспериментов - заливаю до полного и в путь!! лишь бы воздуха не глотнул насос!!
-
- Сообщения: 10
- Зарегистрирован: 17 ноя 2016, 00:28
- Двигатель:: 4d56
- Мой автомобиль(и):: Pajero 2
- Откуда: Дмитров
Re: стрелка уровня топлива
и все таки по поводу подключения лампы с термистора? кто нибудь знает как ее подключить напрямую (куда на приборке провод цеплять)
- Дроныч
- Организатор ПТФ-2012 Белые Ночи
- Сообщения: 3481
- Зарегистрирован: 02 апр 2011, 17:19
- Двигатель:: 4D56T, Дизель
- Мой автомобиль(и):: Pajero sport
- Откуда: Питер
- Благодарил (а): 19 раз
- Поблагодарили: 151 раз
Re: стрелка уровня топлива
А что будет, если глотнёт воздухаолег1708 писал(а):значит настало время экспериментов - заливаю до полного и в путь!! лишь бы воздуха не глотнул насос!!

Может я чего не знаю???

МПС, 4D56T (116 л.с.),2002 г, МКПП, бодик 6 см, Купер СТТ 285/75R16, Warn 9000, хобот, пневмоблок от П2, пружины от Патруля, хай джек, лопата, топор, бензопила
- Deem-On
- Сообщения: 1014
- Зарегистрирован: 18 мар 2011, 17:49
- Двигатель:: 4M40
- Мой автомобиль(и):: Паджеро 2, был
- Откуда: Ярославль
- Благодарил (а): 8 раз
- Поблагодарили: 95 раз
Re: стрелка уровня топлива
Мне непонятно, а зачем напрямую на приборку? От родной проводки что, вообще ничего не осталось?олег1708 писал(а):и все таки по поводу подключения лампы с термистора? кто нибудь знает как ее подключить напрямую (куда на приборке провод цеплять)
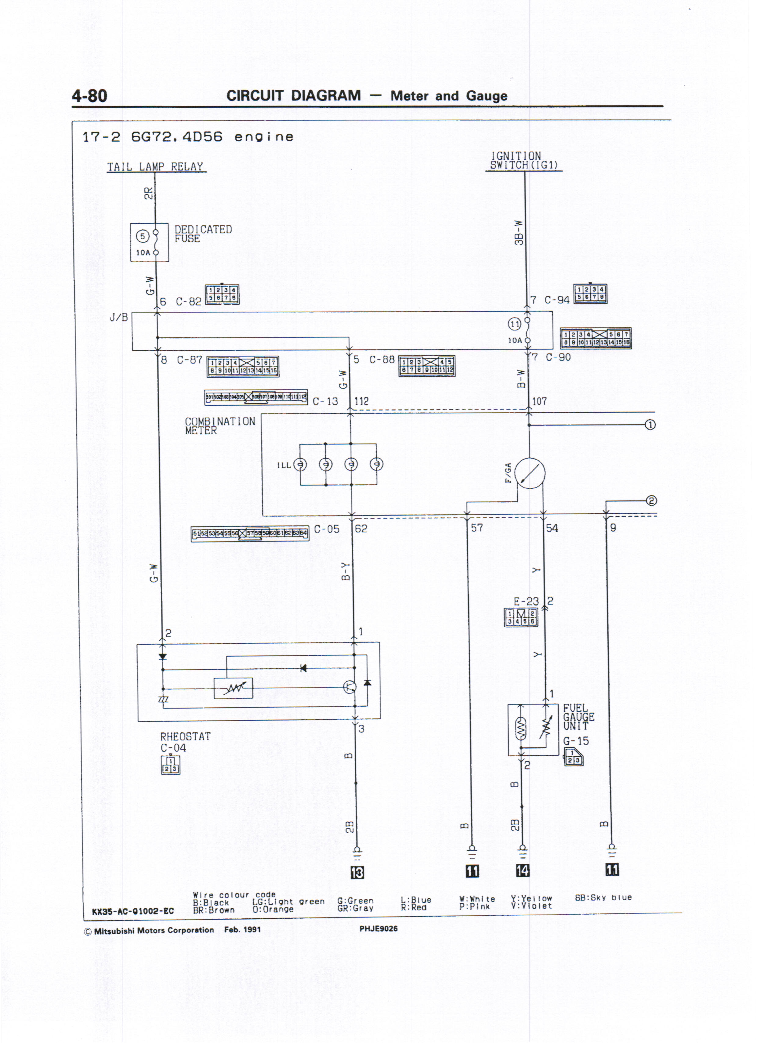
Лови схему, надеюсь разберешься. Разъем С-07, 21 контакт.
П-2 1994 длинный,GLS,4М40,АКПП,SS,А/Т32"-увы, уже донор
- SNOOPER
- Модератор
- Сообщения: 56884
- Зарегистрирован: 11 дек 2004, 19:49
- Двигатель:: 4D56
- Мой автомобиль(и):: NewMPS
- Откуда: 78
- Откуда: Spb
- Благодарил (а): 1005 раз
- Поблагодарили: 4663 раза
Re: стрелка уровня топлива
Глотнёт заглохнет =ничего страшного.Дроныч писал(а):А что будет, если глотнёт воздухаолег1708 писал(а):значит настало время экспериментов - заливаю до полного и в путь!! лишь бы воздуха не глотнул насос!!![]()
Может я чего не знаю???
Страшно когда будет работать на пене = перегрев насоса естественно с его износом.
Глотнул = машина дёрнулась, вот он и есть пустой бак.
-
- Сообщения: 10
- Зарегистрирован: 17 ноя 2016, 00:28
- Двигатель:: 4d56
- Мой автомобиль(и):: Pajero 2
- Откуда: Дмитров
Re: стрелка уровня топлива
проводка вся убитая((( Летом салон весь разбирать буду, проводку приводить в порядок. К датчику 5! проводов тянулись и 2 еще к доп прибору уровня топлива. Все перепробовал - не работала стрелка. А как только напрямую сделал - все заработало.