Выгорел ЭБУ. Нужна схема.
Модераторы: SNOOPER, Nbf, Romik, BAlex, drcham, алексей - Маленький Мук
-
vitek24
- Сообщения: 13
- Зарегистрирован: 31 авг 2021, 16:30
- Двигатель:: 6G72
- Мой автомобиль(и):: Pagero II
- Откуда: Иланский
- Благодарил (а): 1 раз
Выгорел ЭБУ. Нужна схема.
Приветствую Паджероводов! Паджеро 1991 года,6G72 у меня совсем недавно. При поиске хх и плохой утренней заводке выяснилось,что подгорел эбу. Аж дорожки выгорели. Некоторые невозможно определить откуда и куда. Может есть у кого фото,с выпаяными детальками,чтоб было видно дорожки?
-
алексей - Маленький Мук
- Модератор
- Сообщения: 20376
- Зарегистрирован: 11 дек 2008, 16:10
- Откуда: москва м Академическая
- Благодарил (а): 101 раз
- Поблагодарили: 1338 раз
Выгорел ЭБУ. Нужна схема.
С чем проблема? зайди в барахолку да создай тему куплю. http://www.pajero4x4.ru/bbs/phpBB2/viewforum.php?f=69
Всем добра.......
- dvm99
- Сообщения: 22361
- Зарегистрирован: 21 май 2012, 20:59
- Двигатель:: 6G72, 12клап.,
- Мой автомобиль(и):: Pajero2, Запорожец- Ланос
- Откуда: Свердловская обл.
- Благодарил (а): 737 раз
- Поблагодарили: 1082 раза
Выгорел ЭБУ. Нужна схема.
Там не так сложно...
Дорожки выгорели либо по питанию, либо идущие на РХХ.
Лопнувшие микросхемы- это ключи, в каждой по 2 штуки.
Можно по выводам из даташит во вложенном файле разобраться.
Микросхемы есть на алиэкспресс.
- Вложения
-
- m5269l.pdf
- (142.39 КБ) 35 скачиваний
Дмитрий
Боливар2 - П2, 92г., V43, 6G72(12V), V4AW2, RD/L, пруль (чистокровный японский рысак)
Боливар1 - П2, 93г., 6G72(12V), МКПП, V43, RD/L, Европа (славный был конь, но уже донор)
Боливар2 - П2, 92г., V43, 6G72(12V), V4AW2, RD/L, пруль (чистокровный японский рысак)
Боливар1 - П2, 93г., 6G72(12V), МКПП, V43, RD/L, Европа (славный был конь, но уже донор)
-
vitek24
- Сообщения: 13
- Зарегистрирован: 31 авг 2021, 16:30
- Двигатель:: 6G72
- Мой автомобиль(и):: Pagero II
- Откуда: Иланский
- Благодарил (а): 1 раз
Выгорел ЭБУ. Нужна схема.
Микрухи нашел с донора. Даташит пользовали. Стоит пять микрух. Три на форсы,две на рхх. На одной 6и7 ножки не примудрим. Думал,мож есть у кого фото с выпаяными.
- dvm99
- Сообщения: 22361
- Зарегистрирован: 21 май 2012, 20:59
- Двигатель:: 6G72, 12клап.,
- Мой автомобиль(и):: Pajero2, Запорожец- Ланос
- Откуда: Свердловская обл.
- Благодарил (а): 737 раз
- Поблагодарили: 1082 раза
Выгорел ЭБУ. Нужна схема.
А точно на форсы?
Всегда считал, что форсовские ключи на радиаторах... Но может ошибаюсь...
Дык 7 - это выход. Можно вызвонить прям на разъёме.
А вот 6 - вход, там конечно может быть засада...
Но, как вариант, посмотри куда идут другие входы. Может получится вычислить недостающий.
Как правило, шаговики управляются одной микросхемой.
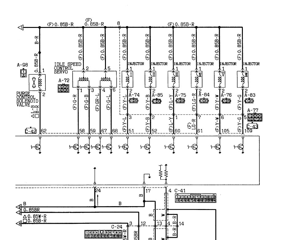
Схема-то разъёмов есть? Вот такая...
Дмитрий
Боливар2 - П2, 92г., V43, 6G72(12V), V4AW2, RD/L, пруль (чистокровный японский рысак)
Боливар1 - П2, 93г., 6G72(12V), МКПП, V43, RD/L, Европа (славный был конь, но уже донор)
Боливар2 - П2, 92г., V43, 6G72(12V), V4AW2, RD/L, пруль (чистокровный японский рысак)
Боливар1 - П2, 93г., 6G72(12V), МКПП, V43, RD/L, Европа (славный был конь, но уже донор)
- SNOOPER
- Модератор
- Сообщения: 57222
- Зарегистрирован: 11 дек 2004, 19:49
- Двигатель:: 4D56
- Мой автомобиль(и):: NewMPS
- Откуда: 78
- Откуда: Spb
- Благодарил (а): 1016 раз
- Поблагодарили: 4742 раза
- dvm99
- Сообщения: 22361
- Зарегистрирован: 21 май 2012, 20:59
- Двигатель:: 6G72, 12клап.,
- Мой автомобиль(и):: Pajero2, Запорожец- Ланос
- Откуда: Свердловская обл.
- Благодарил (а): 737 раз
- Поблагодарили: 1082 раза
Выгорел ЭБУ. Нужна схема.
У меня не работает клапан продувки адсорбера.
Как-то взялся и по дорожкам вышел на одну из этих микросхем. Правда до сих пор не собрался купить и поменять...
Но тогда их должно быть больше, а не 5.
Конечно , если я где-то ошибся в силу своей слепошарости, то это меняет дело.
Дмитрий
Боливар2 - П2, 92г., V43, 6G72(12V), V4AW2, RD/L, пруль (чистокровный японский рысак)
Боливар1 - П2, 93г., 6G72(12V), МКПП, V43, RD/L, Европа (славный был конь, но уже донор)
Боливар2 - П2, 92г., V43, 6G72(12V), V4AW2, RD/L, пруль (чистокровный японский рысак)
Боливар1 - П2, 93г., 6G72(12V), МКПП, V43, RD/L, Европа (славный был конь, но уже донор)
-
vitek24
- Сообщения: 13
- Зарегистрирован: 31 авг 2021, 16:30
- Двигатель:: 6G72
- Мой автомобиль(и):: Pagero II
- Откуда: Иланский
- Благодарил (а): 1 раз
Выгорел ЭБУ. Нужна схема.
Схемы есть,но нет внутренней схемы блока. Прозванивать затруднительно,могут по схеме звенеть.
-
vitek24
- Сообщения: 13
- Зарегистрирован: 31 авг 2021, 16:30
- Двигатель:: 6G72
- Мой автомобиль(и):: Pagero II
- Откуда: Иланский
- Благодарил (а): 1 раз
Выгорел ЭБУ. Нужна схема.
Впаиваю с обратной стороны. Придётся проводками допаивать. Всё упирается в денежку. Блоки,которые нашёл,дорогие. Может у кого лежит такой? Пара хороших фото помогли бы.
-
алексей - Маленький Мук
- Модератор
- Сообщения: 20376
- Зарегистрирован: 11 дек 2008, 16:10
- Откуда: москва м Академическая
- Благодарил (а): 101 раз
- Поблагодарили: 1338 раз
Выгорел ЭБУ. Нужна схема.
Тыб номер мозга выложил б . мож и есть у кого за не дорага. их вродь не очч многа разновидностей, арабы да европеец, основное отличие в отсуцтвии лямбды или оная
Всем добра.......
- dvm99
- Сообщения: 22361
- Зарегистрирован: 21 май 2012, 20:59
- Двигатель:: 6G72, 12клап.,
- Мой автомобиль(и):: Pajero2, Запорожец- Ланос
- Откуда: Свердловская обл.
- Благодарил (а): 737 раз
- Поблагодарили: 1082 раза
Выгорел ЭБУ. Нужна схема.
Ух ты! Какая жесть!
Знаешь, что я тебе скажу. Этот уголь желательно убирать полностью! Он проводит ток... Могут быть утечки...
Дмитрий
Боливар2 - П2, 92г., V43, 6G72(12V), V4AW2, RD/L, пруль (чистокровный японский рысак)
Боливар1 - П2, 93г., 6G72(12V), МКПП, V43, RD/L, Европа (славный был конь, но уже донор)
Боливар2 - П2, 92г., V43, 6G72(12V), V4AW2, RD/L, пруль (чистокровный японский рысак)
Боливар1 - П2, 93г., 6G72(12V), МКПП, V43, RD/L, Европа (славный был конь, но уже донор)
- dvm99
- Сообщения: 22361
- Зарегистрирован: 21 май 2012, 20:59
- Двигатель:: 6G72, 12клап.,
- Мой автомобиль(и):: Pajero2, Запорожец- Ланос
- Откуда: Свердловская обл.
- Благодарил (а): 737 раз
- Поблагодарили: 1082 раза
Выгорел ЭБУ. Нужна схема.
Саша, это что за микросхема памяти? С какой машины ЭБУ?
У меня в обоих машинах в том месте было пусто.
Дмитрий
Боливар2 - П2, 92г., V43, 6G72(12V), V4AW2, RD/L, пруль (чистокровный японский рысак)
Боливар1 - П2, 93г., 6G72(12V), МКПП, V43, RD/L, Европа (славный был конь, но уже донор)
Боливар2 - П2, 92г., V43, 6G72(12V), V4AW2, RD/L, пруль (чистокровный японский рысак)
Боливар1 - П2, 93г., 6G72(12V), МКПП, V43, RD/L, Европа (славный был конь, но уже донор)
- SNOOPER
- Модератор
- Сообщения: 57222
- Зарегистрирован: 11 дек 2004, 19:49
- Двигатель:: 4D56
- Мой автомобиль(и):: NewMPS
- Откуда: 78
- Откуда: Spb
- Благодарил (а): 1016 раз
- Поблагодарили: 4742 раза
- dvm99
- Сообщения: 22361
- Зарегистрирован: 21 май 2012, 20:59
- Двигатель:: 6G72, 12клап.,
- Мой автомобиль(и):: Pajero2, Запорожец- Ланос
- Откуда: Свердловская обл.
- Благодарил (а): 737 раз
- Поблагодарили: 1082 раза
Выгорел ЭБУ. Нужна схема.
vitek24, угли убери!
Я бы на твоём месте (и будучи зрячим
) взял бы универсальную плату, типа такой

вырезал бы из неё нужный размер, впаял туда микросхемы и закрепил где-то в стороне (на радиатор или ещё куда-то...).
Там, где уголь "резать к чёртовой матери, не дожидаясь перитонитов" (с)
Вырезанные дорожки спаять проводами.
Будет намного надёжнее, нежели микросхемы будут "висеть в воздухе" на штатных местах, соприкасаясь с углём.
Я бы на твоём месте (и будучи зрячим

вырезал бы из неё нужный размер, впаял туда микросхемы и закрепил где-то в стороне (на радиатор или ещё куда-то...).
Там, где уголь "резать к чёртовой матери, не дожидаясь перитонитов" (с)
Вырезанные дорожки спаять проводами.
Будет намного надёжнее, нежели микросхемы будут "висеть в воздухе" на штатных местах, соприкасаясь с углём.
Дмитрий
Боливар2 - П2, 92г., V43, 6G72(12V), V4AW2, RD/L, пруль (чистокровный японский рысак)
Боливар1 - П2, 93г., 6G72(12V), МКПП, V43, RD/L, Европа (славный был конь, но уже донор)
Боливар2 - П2, 92г., V43, 6G72(12V), V4AW2, RD/L, пруль (чистокровный японский рысак)
Боливар1 - П2, 93г., 6G72(12V), МКПП, V43, RD/L, Европа (славный был конь, но уже донор)
- SNOOPER
- Модератор
- Сообщения: 57222
- Зарегистрирован: 11 дек 2004, 19:49
- Двигатель:: 4D56
- Мой автомобиль(и):: NewMPS
- Откуда: 78
- Откуда: Spb
- Благодарил (а): 1016 раз
- Поблагодарили: 4742 раза
