Не горит лампа ручника! И индикация заднего привода
Модераторы: SNOOPER, Nbf, Romik, BAlex
-
Pronya86
- Сообщения: 15
- Зарегистрирован: 28 фев 2017, 02:37
- Двигатель:: 6G72
- Мой автомобиль(и):: Паджеро 3
- Откуда: Южно-Сахалинск
Не горит лампа ручника! И индикация заднего привода
Доброго дня.
Заметил что перестала гореть лампа ручника на панели приборов при поднятии рычага стояночного тормоза. Если снять фишку с тормозного бочка и контакт желтый кинуть на массу- то тоже не загорается.
Что может быть ?
Заметил что перестала гореть лампа ручника на панели приборов при поднятии рычага стояночного тормоза. Если снять фишку с тормозного бочка и контакт желтый кинуть на массу- то тоже не загорается.
Что может быть ?
Последний раз редактировалось Pronya86 01 дек 2023, 10:01, всего редактировалось 1 раз.
-
Pronya86
- Сообщения: 15
- Зарегистрирован: 28 фев 2017, 02:37
- Двигатель:: 6G72
- Мой автомобиль(и):: Паджеро 3
- Откуда: Южно-Сахалинск
Не горит лампа ручника!
Отвечаю сам на свой вопрос.
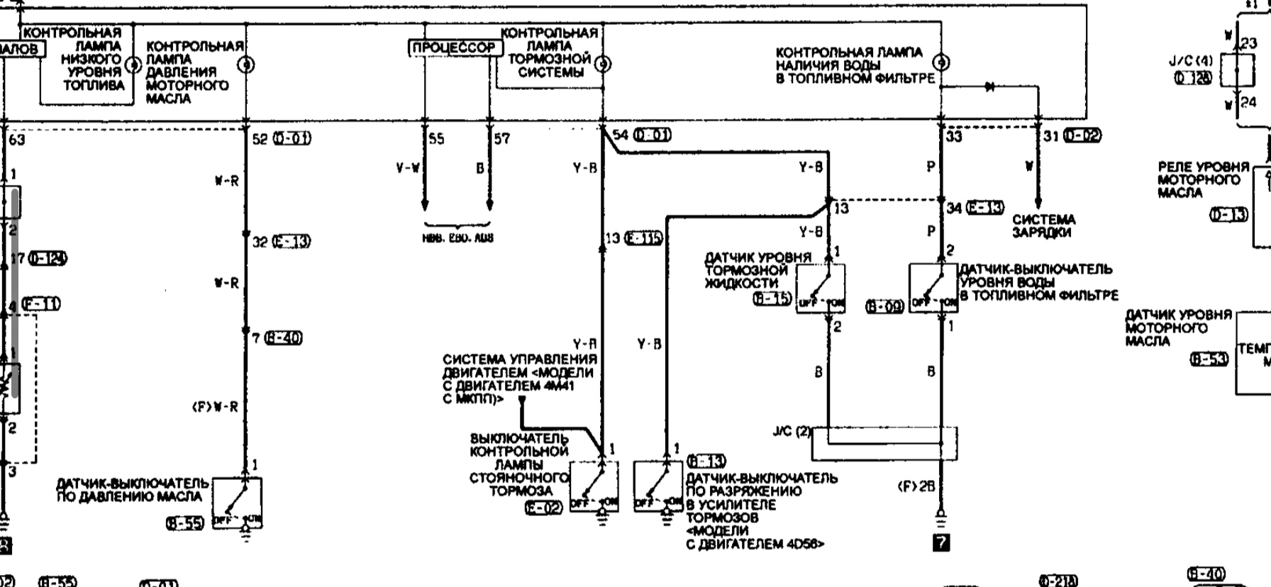
Там где фишка D-01 вставляется в приборную панель на контакте номер 54 это желто-черный провод дорожка пополам сломалась. Пропаял. Лампа Ручника снова в строю.
Пока экспериментировал- перестала гореть индикация заднего привода. Скорее всего сжег блок управления полным приводом. Индикация передних колес блокировки и пониженной работает.
Там где фишка D-01 вставляется в приборную панель на контакте номер 54 это желто-черный провод дорожка пополам сломалась. Пропаял. Лампа Ручника снова в строю.
Пока экспериментировал- перестала гореть индикация заднего привода. Скорее всего сжег блок управления полным приводом. Индикация передних колес блокировки и пониженной работает.
- dvm99
- Сообщения: 22067
- Зарегистрирован: 21 май 2012, 20:59
- Двигатель:: 6G72, 12клап.,
- Мой автомобиль(и):: Pajero2, Запорожец- Ланос
- Откуда: Свердловская обл.
- Благодарил (а): 724 раза
- Поблагодарили: 1060 раз
Не горит лампа ручника!
Раз уже дорожку нашёл, смотри так же по аналогии внимательно, с лупой.
Электронику так просто не удалить.
Дмитрий
Боливар2 - П2, 92г., V43, 6G72(12V), V4AW2, RD/L, пруль (чистокровный японский рысак)
Боливар1 - П2, 93г., 6G72(12V), МКПП, V43, RD/L, Европа (славный был конь, но уже донор)
Боливар2 - П2, 92г., V43, 6G72(12V), V4AW2, RD/L, пруль (чистокровный японский рысак)
Боливар1 - П2, 93г., 6G72(12V), МКПП, V43, RD/L, Европа (славный был конь, но уже донор)
-
Pronya86
- Сообщения: 15
- Зарегистрирован: 28 фев 2017, 02:37
- Двигатель:: 6G72
- Мой автомобиль(и):: Паджеро 3
- Откуда: Южно-Сахалинск
Не горит лампа ручника!
Вот мой блок управления раздаткой. Внутри на вид все нормально. Смущает один транзистор. Но пока не придет другой блок - говорить еще рано.
- dvm99
- Сообщения: 22067
- Зарегистрирован: 21 май 2012, 20:59
- Двигатель:: 6G72, 12клап.,
- Мой автомобиль(и):: Pajero2, Запорожец- Ланос
- Откуда: Свердловская обл.
- Благодарил (а): 724 раза
- Поблагодарили: 1060 раз
Не горит лампа ручника! И индикация заднего привода
Дмитрий
Боливар2 - П2, 92г., V43, 6G72(12V), V4AW2, RD/L, пруль (чистокровный японский рысак)
Боливар1 - П2, 93г., 6G72(12V), МКПП, V43, RD/L, Европа (славный был конь, но уже донор)
Боливар2 - П2, 92г., V43, 6G72(12V), V4AW2, RD/L, пруль (чистокровный японский рысак)
Боливар1 - П2, 93г., 6G72(12V), МКПП, V43, RD/L, Европа (славный был конь, но уже донор)
-
Pronya86
- Сообщения: 15
- Зарегистрирован: 28 фев 2017, 02:37
- Двигатель:: 6G72
- Мой автомобиль(и):: Паджеро 3
- Откуда: Южно-Сахалинск
Не горит лампа ручника! И индикация заднего привода
знал бы как. Сейчас звонится 1 с 2, 1 с 3.
А на индикацию переднего привода звонится такой же транзистор только 1 с 3
А на индикацию переднего привода звонится такой же транзистор только 1 с 3
- dvm99
- Сообщения: 22067
- Зарегистрирован: 21 май 2012, 20:59
- Двигатель:: 6G72, 12клап.,
- Мой автомобиль(и):: Pajero2, Запорожец- Ланос
- Откуда: Свердловская обл.
- Благодарил (а): 724 раза
- Поблагодарили: 1060 раз
Не горит лампа ручника! И индикация заднего привода
Упс! Это полевой транзистор, причём ещё и с диодом внутри...
1 и 3 - это один и тот же вывод.
Имеет значение полярность выводов тестера!
2 и 3, 2 и 4 - в одном положении выводов должно показывать, в другом - нет.
Между 3 и 4 - то же самое.
1 и 3 - это один и тот же вывод.
Имеет значение полярность выводов тестера!
2 и 3, 2 и 4 - в одном положении выводов должно показывать, в другом - нет.
Между 3 и 4 - то же самое.
Дмитрий
Боливар2 - П2, 92г., V43, 6G72(12V), V4AW2, RD/L, пруль (чистокровный японский рысак)
Боливар1 - П2, 93г., 6G72(12V), МКПП, V43, RD/L, Европа (славный был конь, но уже донор)
Боливар2 - П2, 92г., V43, 6G72(12V), V4AW2, RD/L, пруль (чистокровный японский рысак)
Боливар1 - П2, 93г., 6G72(12V), МКПП, V43, RD/L, Европа (славный был конь, но уже донор)
-
Pronya86
- Сообщения: 15
- Зарегистрирован: 28 фев 2017, 02:37
- Двигатель:: 6G72
- Мой автомобиль(и):: Паджеро 3
- Откуда: Южно-Сахалинск
Не горит лампа ручника! И индикация заднего привода
Отвечаю сам себе и может кому пригодится.
Замена блока управления раздаткой помогла. Теперь лампы задних колес горят. Вот пробитый транзистор диод.
Замена блока управления раздаткой помогла. Теперь лампы задних колес горят. Вот пробитый транзистор диод.
- dvm99
- Сообщения: 22067
- Зарегистрирован: 21 май 2012, 20:59
- Двигатель:: 6G72, 12клап.,
- Мой автомобиль(и):: Pajero2, Запорожец- Ланос
- Откуда: Свердловская обл.
- Благодарил (а): 724 раза
- Поблагодарили: 1060 раз
Не горит лампа ручника! И индикация заднего привода
В следующий раз работай в панели со скинутой клеммой АКБ. Или просто разъёмы с неё...
Дмитрий
Боливар2 - П2, 92г., V43, 6G72(12V), V4AW2, RD/L, пруль (чистокровный японский рысак)
Боливар1 - П2, 93г., 6G72(12V), МКПП, V43, RD/L, Европа (славный был конь, но уже донор)
Боливар2 - П2, 92г., V43, 6G72(12V), V4AW2, RD/L, пруль (чистокровный японский рысак)
Боливар1 - П2, 93г., 6G72(12V), МКПП, V43, RD/L, Европа (славный был конь, но уже донор)
