Не пинайте шибко,
проблема толи с раздаткой, толи с мостом...
Сгорел пред 23 в моторном блоке,
щас такая ошибка по блокировке ,
и на панели: R/D Lock!!!
Подскажите ,куда искать?
TRT - Вдоль р.Киржач. Для стандартных 4х4 (08.11.25) Форум Обсуждение FAQ
блокировка заднего дифференциала
Модераторы: SNOOPER, Alex_SH, VAZ, Nbf, BAlex, drcham
-
mc.56
- Сообщения: 5
- Зарегистрирован: 03 янв 2025, 05:11
- Двигатель:: 4n15 disel
- Мой автомобиль(и):: pajero sport KS
- Откуда: sab
-
mc.56
- Сообщения: 5
- Зарегистрирован: 03 янв 2025, 05:11
- Двигатель:: 4n15 disel
- Мой автомобиль(и):: pajero sport KS
- Откуда: sab
блокировка заднего дифференциала
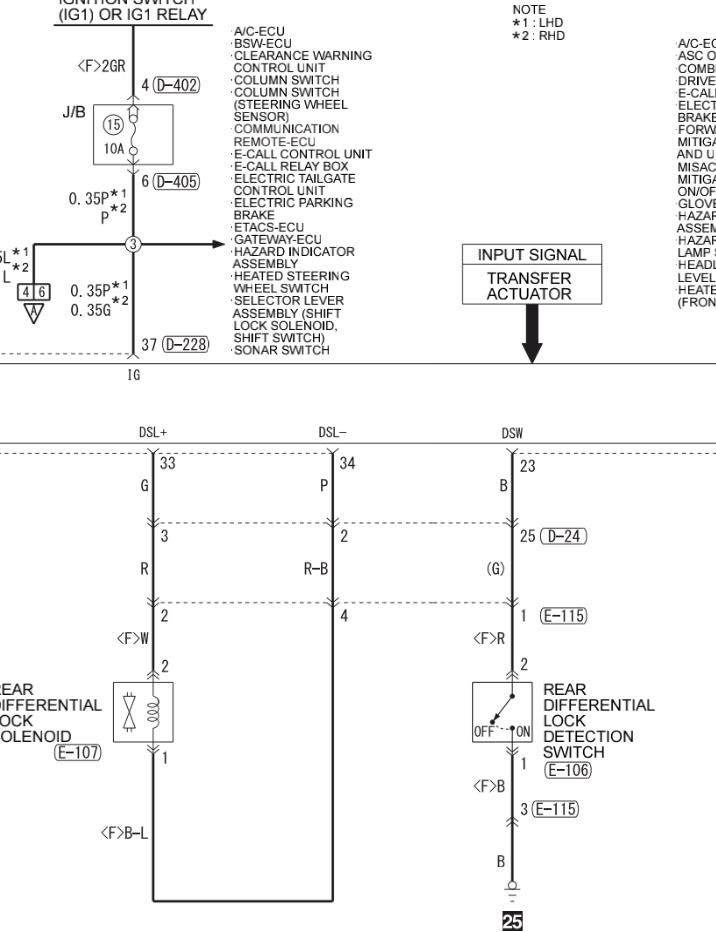
что такое?....
и глядя на схему, это контроль выводов: dsl+ / dsl-_ 33/34 самого соленоида ? или датчика вкл?
какое напряжение на катушке должно быть при мониторинге этой цепи ?
какое напряжение на катушке должнобыть при включении ,12в же?
а в1,2 строке описывается по КЗ и Обрыву? в 3,4 описано по межвитковому катушки?
и подскажите пожлста где можо найти инфу расположения блоков по кузову....
- SNOOPER
- Модератор
- Сообщения: 56905
- Зарегистрирован: 11 дек 2004, 19:49
- Двигатель:: 4D56
- Мой автомобиль(и):: NewMPS
- Откуда: 78
- Откуда: Spb
- Благодарил (а): 1007 раз
- Поблагодарили: 4665 раз
блокировка заднего дифференциала
Продольный рычаг задней подвески.
На чём мост висит.
Не лезьте в дебри, всё намного проще в большинстве случаев.
-
mc.56
- Сообщения: 5
- Зарегистрирован: 03 янв 2025, 05:11
- Двигатель:: 4n15 disel
- Мой автомобиль(и):: pajero sport KS
- Откуда: sab
- Алексеич58
- Сообщения: 257
- Зарегистрирован: 24 июн 2016, 11:48
- Двигатель:: 4D56, Дизель
- Мой автомобиль(и):: Pajero Sport 2
- Откуда: Санкт-Петербург
- Благодарил (а): 76 раз
- Поблагодарили: 12 раз
