Домино Трофи 2026 - 25 Апреля - Обсудить и спросить тут.
Реле звукового сигнала
Модераторы: SNOOPER, Nbf, Romik, BAlex
-
temik
- Сообщения: 91
- Зарегистрирован: 21 янв 2009, 15:18
- Двигатель:: 6G74
- Мой автомобиль(и):: MMC Pajero 2
- Откуда: НОВОСИБИРСК
- Контактная информация:
Реле звукового сигнала
Всем доброго времени суток подскажите стоит ли на наших машинах реле звукового сигнала если стоит то подскажите в каком месте а то перерыл всю камасутру и не могу найти ответ на свой вопрос а то сигналы работают как предсмертный хрип поросенка произошло это после того как были запитаны еще два сигнала (теперь они отключены) на штатные теперь хреново работают (а бывает и не сразу работают
) и штатные и другие замена сигналов ни к чему не привела.Думаю если стоит реле не могли ли подгореть контакты
MMC Pajero 2 6G74 МКПП
- Alessandro
- Сообщения: 3805
- Зарегистрирован: 14 ноя 2009, 14:41
- Двигатель:: 4G54
- Мой автомобиль(и):: Pajero ll
- Откуда: Москва
- Благодарил (а): 2 раза
- Поблагодарили: 25 раз
Re: Реле звукового сигнала
минус подаётся непосредственно с кнопки сигнала на руле на сигналы под капотом. так что в этом смысле реле сигналов нету
ЗЫ на форуме есть выложенные добрыми людьми электросхемы, в том числе и схема подключения сигналов
ЗЫ на форуме есть выложенные добрыми людьми электросхемы, в том числе и схема подключения сигналов
P2., V32VNDLW, 4G54 2600сс, V5M21(4875) - механика, part time. Арапский прынц 1996г рождения, колор белий :)
-
temik
- Сообщения: 91
- Зарегистрирован: 21 янв 2009, 15:18
- Двигатель:: 6G74
- Мой автомобиль(и):: MMC Pajero 2
- Откуда: НОВОСИБИРСК
- Контактная информация:
Re: Реле звукового сигнала
Ок спасибо посмотрю схемы т.е рале искать бесполезно но почему теперь сигналы так звучат
MMC Pajero 2 6G74 МКПП
- Podzemshik
- Модератор
- Сообщения: 7671
- Зарегистрирован: 31 янв 2008, 15:38
- Двигатель:: 4D56, 1KD
- Мой автомобиль(и):: МПС, ТЛК 150
- Откуда: Москва
- Откуда: Permoníci
- Благодарил (а): 126 раз
- Поблагодарили: 417 раз
Re: Реле звукового сигнала
Сам спросил - сам ответил:temik писал(а):но почему теперь сигналы так звучат
Конечно могли, от перегрузки! Но контакты выключателя, а не реле ::-):temik писал(а):не могли ли подгореть контакты
Toyota Corolla Cross Hybrid
- STN
- Сообщения: 372
- Зарегистрирован: 15 окт 2009, 15:18
- Двигатель:: 6G72
- Мой автомобиль(и):: Pajero II
- Откуда: Тула (71)
- Благодарил (а): 4 раза
- Поблагодарили: 4 раза
- Контактная информация:
Re: Реле звукового сигнала
Реле сигнала нет в П2 (как, впрочем, и на многих других авто).
Сразу после покупки П2 родные сигналы мне не понравились по причине умирания. Немедленно было установлено реле рядом с замком капота и проводочки на "волговские" сигналы. Цена вопроса - где-то 300руб. и час времени. Дабы сохранить оригинальную проводку, для коммутации использовал разъемы, аналогичные установленным на родных сигналах. Хотя, по прошествии лет, смысла в этом теперь не вижу, не стоило заморачиваться...
Схема предельно проста. "+" уже есть, им сразу питаем реле и сами сигналы. Родной "-" управляет реле, на сигналы минус берется из под болта крепления реле. Сверлить ни чего не надо, удобоваримых дырок- болтов для крепежа реле там достаточно...
ЗЫ. Для простоты работ полезно снять решетку радиатора, открутив 3 винтика.
Сразу после покупки П2 родные сигналы мне не понравились по причине умирания. Немедленно было установлено реле рядом с замком капота и проводочки на "волговские" сигналы. Цена вопроса - где-то 300руб. и час времени. Дабы сохранить оригинальную проводку, для коммутации использовал разъемы, аналогичные установленным на родных сигналах. Хотя, по прошествии лет, смысла в этом теперь не вижу, не стоило заморачиваться...
Схема предельно проста. "+" уже есть, им сразу питаем реле и сами сигналы. Родной "-" управляет реле, на сигналы минус берется из под болта крепления реле. Сверлить ни чего не надо, удобоваримых дырок- болтов для крепежа реле там достаточно...
ЗЫ. Для простоты работ полезно снять решетку радиатора, открутив 3 винтика.
Последний раз редактировалось STN 26 ноя 2010, 09:43, всего редактировалось 1 раз.
Pajero II, '93, 3 двери, 6G72, 5МКПП, SuperSelect
Стропы буксировочные, тайрлоки http://www.pajero4x4.ru/bbs/phpBB2/view ... 52&t=52025
stropoff.v@ya.ru
Стропы буксировочные, тайрлоки http://www.pajero4x4.ru/bbs/phpBB2/view ... 52&t=52025
stropoff.v@ya.ru
- Alessandro
- Сообщения: 3805
- Зарегистрирован: 14 ноя 2009, 14:41
- Двигатель:: 4G54
- Мой автомобиль(и):: Pajero ll
- Откуда: Москва
- Благодарил (а): 2 раза
- Поблагодарили: 25 раз
Re: Реле звукового сигнала
Очень правильный подход !STN писал(а): Немедленно было установлено реле рядом с замком капота и проводочки на "вологовские" сигналы. Цена вопроса - где-то 300руб. и час времени. Дабы сохранить оригинальную проводку,.... Родной "-" управляет реле, на сигналы минус берется из под болта крепления реле. Сверлить ни чего не надо, удобоваримых дырок- болтов для крепежа реле там достаточно...
ЗЫ. Для простоты работ полезно снять решетку радиатора, открутив 3 винтика.
P2., V32VNDLW, 4G54 2600сс, V5M21(4875) - механика, part time. Арапский прынц 1996г рождения, колор белий :)
Re: Реле звукового сигнала
По-моему на машину с завода ставят чахлые бибики специально, чтобы контакты сберечь и реле не ставить. Хотя для машины такого класса - экономия иллюзорная.
Nissan Terrano-II 2001 год (Европеец), 5 door TD27
ЗАЗ-968М 1993 год (Украинец) ;-)
MMC Pajero-2 (был...)
ЗАЗ-968М 1993 год (Украинец) ;-)
MMC Pajero-2 (был...)
- Badger
- Сообщения: 99
- Зарегистрирован: 16 ноя 2006, 10:59
- Двигатель:: 6G72
- Мой автомобиль(и):: Pajero
- Откуда: Владивосток
- Контактная информация:
Re: Реле звукового сигнала
Стойте, стойте. То есть у вас у всех питание на сигнал идёт постоянно - даже при вынутом ключе? Если нет - то где реле? ))
UP так сказать - просто столкнулся с такой же проблемой - питание на сигналы не идёт, предохранитель целый, кнопка клаксона работает. )))
UP так сказать - просто столкнулся с такой же проблемой - питание на сигналы не идёт, предохранитель целый, кнопка клаксона работает. )))
MMC Pajero 5 дверей, V43w, 98г., 6G72, МКПП, левый руль.
MMC Pajero 3 двери, V23W, 94г., 6G72, АКПП, правый руль.
ММС Pajero 5 дверей, 89г., 4D56, АКПП, правый руль. (да упокоится с миром :))
MMC Pajero 3 двери, V23W, 94г., 6G72, АКПП, правый руль.
ММС Pajero 5 дверей, 89г., 4D56, АКПП, правый руль. (да упокоится с миром :))
- Badger
- Сообщения: 99
- Зарегистрирован: 16 ноя 2006, 10:59
- Двигатель:: 6G72
- Мой автомобиль(и):: Pajero
- Откуда: Владивосток
- Контактная информация:
Re: Реле звукового сигнала
Добавлю - замерил состояние проводов. Постоянно идёт минус, что собственно и ожидаемо. А вот на плюсовом проводе тишина. Постоянное питание на сигнал не в духе японского подхода к электрике уж больно.
Эхей! Кто в курсе, где реле звукового сигнала на Pajero 2 ? )
Эхей! Кто в курсе, где реле звукового сигнала на Pajero 2 ? )
MMC Pajero 5 дверей, V43w, 98г., 6G72, МКПП, левый руль.
MMC Pajero 3 двери, V23W, 94г., 6G72, АКПП, правый руль.
ММС Pajero 5 дверей, 89г., 4D56, АКПП, правый руль. (да упокоится с миром :))
MMC Pajero 3 двери, V23W, 94г., 6G72, АКПП, правый руль.
ММС Pajero 5 дверей, 89г., 4D56, АКПП, правый руль. (да упокоится с миром :))
- Badger
- Сообщения: 99
- Зарегистрирован: 16 ноя 2006, 10:59
- Двигатель:: 6G72
- Мой автомобиль(и):: Pajero
- Откуда: Владивосток
- Контактная информация:
Re: Реле звукового сигнала
Все молодцы - мы справились! Реле звукового сигнала було обноружено недалеко от звукового сигнала, собственно.
Слева от расширительного бочка, прикручено изнутри отсека двигателя на стороне радиатора, на уровне чуть ниже площадки аккумулятора. У меня 6G72, на других двигателях теоретически может отличаться место установки.
Вот - познакомьтесь.

Залезьте к себе под капот, обнаружте там своё реле, и больше никогда и никому не говорите, что его не существует! )))
Слева от расширительного бочка, прикручено изнутри отсека двигателя на стороне радиатора, на уровне чуть ниже площадки аккумулятора. У меня 6G72, на других двигателях теоретически может отличаться место установки.
Вот - познакомьтесь.
Залезьте к себе под капот, обнаружте там своё реле, и больше никогда и никому не говорите, что его не существует! )))
MMC Pajero 5 дверей, V43w, 98г., 6G72, МКПП, левый руль.
MMC Pajero 3 двери, V23W, 94г., 6G72, АКПП, правый руль.
ММС Pajero 5 дверей, 89г., 4D56, АКПП, правый руль. (да упокоится с миром :))
MMC Pajero 3 двери, V23W, 94г., 6G72, АКПП, правый руль.
ММС Pajero 5 дверей, 89г., 4D56, АКПП, правый руль. (да упокоится с миром :))
-
temik
- Сообщения: 91
- Зарегистрирован: 21 янв 2009, 15:18
- Двигатель:: 6G74
- Мой автомобиль(и):: MMC Pajero 2
- Откуда: НОВОСИБИРСК
- Контактная информация:
Re: Реле звукового сигнала
Вот спасибо а то ставлю новые сигналы а они как не добитый порасенок звучат хотя напряму от аккумулятора всё ок
MMC Pajero 2 6G74 МКПП
-
Новичок из СПб
- Сообщения: 122
- Зарегистрирован: 31 авг 2010, 12:16
- Двигатель:: 6G74
- Мой автомобиль(и):: П-2 в длительном ремонте, кузовной уже закончил. Теперь закончил и ЭЛЕКТРИКУ.
- Откуда: СПб
Re: Реле звукового сигнала
Уточню.
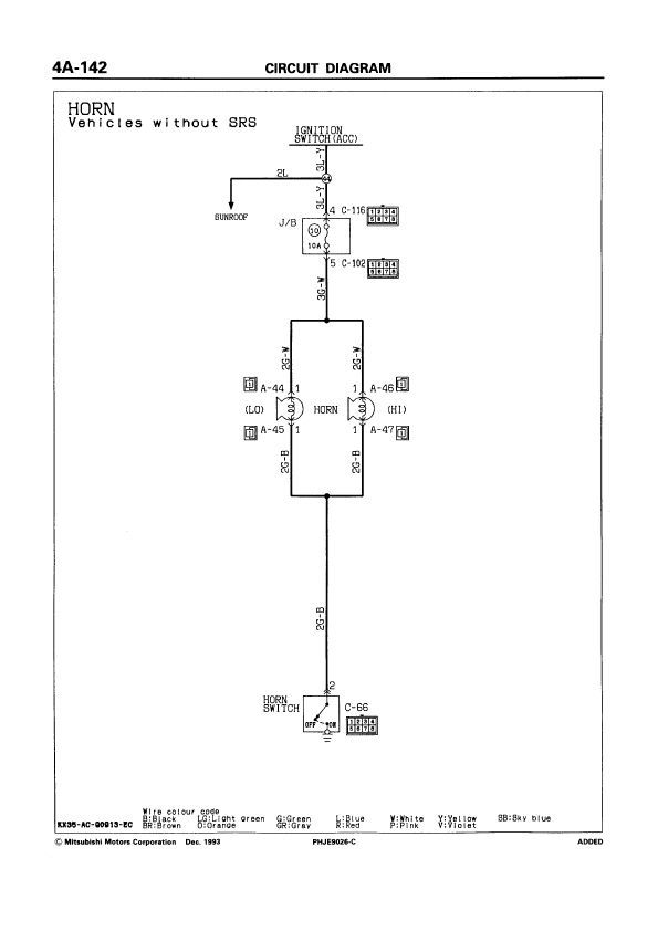
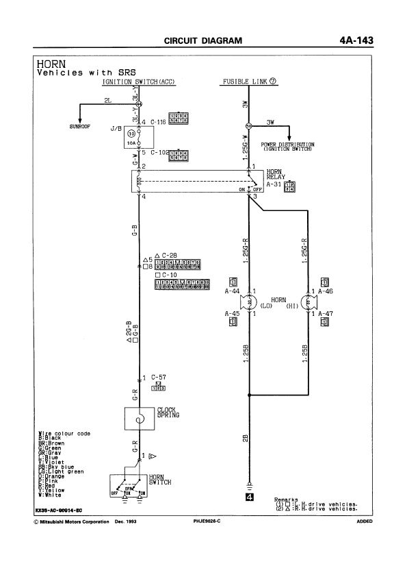
На машинах с системой SRS реле есть. Находится под капотом, спереди у левой фары, ближе к радиатору.
На машинах без SRS реле нет.
У правление без реле - минусом.
С реле - на сигналах ПОСТОЯННЫЙ МИНУС.
На машинах с системой SRS реле есть. Находится под капотом, спереди у левой фары, ближе к радиатору.
На машинах без SRS реле нет.
У правление без реле - минусом.
С реле - на сигналах ПОСТОЯННЫЙ МИНУС.
- Badger
- Сообщения: 99
- Зарегистрирован: 16 ноя 2006, 10:59
- Двигатель:: 6G72
- Мой автомобиль(и):: Pajero
- Откуда: Владивосток
- Контактная информация:
Re: Реле звукового сигнала
Уточню.
У меня нет SRS, а реле Вы возможно видели на снимке выше. )))
У меня нет SRS, а реле Вы возможно видели на снимке выше. )))
MMC Pajero 5 дверей, V43w, 98г., 6G72, МКПП, левый руль.
MMC Pajero 3 двери, V23W, 94г., 6G72, АКПП, правый руль.
ММС Pajero 5 дверей, 89г., 4D56, АКПП, правый руль. (да упокоится с миром :))
MMC Pajero 3 двери, V23W, 94г., 6G72, АКПП, правый руль.
ММС Pajero 5 дверей, 89г., 4D56, АКПП, правый руль. (да упокоится с миром :))
-
Новичок из СПб
- Сообщения: 122
- Зарегистрирован: 31 авг 2010, 12:16
- Двигатель:: 6G74
- Мой автомобиль(и):: П-2 в длительном ремонте, кузовной уже закончил. Теперь закончил и ЭЛЕКТРИКУ.
- Откуда: СПб
Re: Реле звукового сигнала
Я по схемам смотрю....
Речь о 98 годе? Может SRS все-таки есть? Или была?))))))
Речь о 98 годе? Может SRS все-таки есть? Или была?))))))
- Badger
- Сообщения: 99
- Зарегистрирован: 16 ноя 2006, 10:59
- Двигатель:: 6G72
- Мой автомобиль(и):: Pajero
- Откуда: Владивосток
- Контактная информация:
Re: Реле звукового сигнала
Ну, я не первый владелец, но следов ДТП на автомобиле не обнаруживал - искал скрупулёзно. Следов SRS в руле (я его разбирал в поисках неисправности) и напротив пассажира тоже нет. На пассажирском месте вообще ручка, так что о ремонте панели тоже нет речи. Конечно теоретически могли поменять панели с SRS на такую же с авто без них, но это надо было очень хотеть скрыть следы ДТП. Проще было отремонтировать. Да и авто с подушками в этом кузове встречаются чаще, чем без них.
Я ещё посмотрю на авто 94-го года и могу у приятеля глянуть на авто 91-го года. Но почему-то мне кажется, что и там будут реле. Ну просто Японцы любят реле, и очень не любят куда-то подавать питание постоянно. И я их в этом поддерживаю. ))
Проверю - отпишусь. )
Я ещё посмотрю на авто 94-го года и могу у приятеля глянуть на авто 91-го года. Но почему-то мне кажется, что и там будут реле. Ну просто Японцы любят реле, и очень не любят куда-то подавать питание постоянно. И я их в этом поддерживаю. ))
Проверю - отпишусь. )
MMC Pajero 5 дверей, V43w, 98г., 6G72, МКПП, левый руль.
MMC Pajero 3 двери, V23W, 94г., 6G72, АКПП, правый руль.
ММС Pajero 5 дверей, 89г., 4D56, АКПП, правый руль. (да упокоится с миром :))
MMC Pajero 3 двери, V23W, 94г., 6G72, АКПП, правый руль.
ММС Pajero 5 дверей, 89г., 4D56, АКПП, правый руль. (да упокоится с миром :))
-
Новичок из СПб
- Сообщения: 122
- Зарегистрирован: 31 авг 2010, 12:16
- Двигатель:: 6G74
- Мой автомобиль(и):: П-2 в длительном ремонте, кузовной уже закончил. Теперь закончил и ЭЛЕКТРИКУ.
- Откуда: СПб
- Badger
- Сообщения: 99
- Зарегистрирован: 16 ноя 2006, 10:59
- Двигатель:: 6G72
- Мой автомобиль(и):: Pajero
- Откуда: Владивосток
- Контактная информация:
Re: Реле звукового сигнала
Я под капоты позаглядываю и потом обсудим, если будет что. Я уже не раз сталкивался, что бумажки из интернета и действительность не совпадают. Ни когда не сталкивались? )))
MMC Pajero 5 дверей, V43w, 98г., 6G72, МКПП, левый руль.
MMC Pajero 3 двери, V23W, 94г., 6G72, АКПП, правый руль.
ММС Pajero 5 дверей, 89г., 4D56, АКПП, правый руль. (да упокоится с миром :))
MMC Pajero 3 двери, V23W, 94г., 6G72, АКПП, правый руль.
ММС Pajero 5 дверей, 89г., 4D56, АКПП, правый руль. (да упокоится с миром :))
-
Новичок из СПб
- Сообщения: 122
- Зарегистрирован: 31 авг 2010, 12:16
- Двигатель:: 6G74
- Мой автомобиль(и):: П-2 в длительном ремонте, кузовной уже закончил. Теперь закончил и ЭЛЕКТРИКУ.
- Откуда: СПб
Re: Реле звукового сигнала
Сталкивался, конечно. В основном бывает какое-то оборудование установлено( от других комплектаций и годов).
По схеме нет , а по факту есть. Я в своей, например, систему DRL обнаружил....
По схеме нет , а по факту есть. Я в своей, например, систему DRL обнаружил....
- Badger
- Сообщения: 99
- Зарегистрирован: 16 ноя 2006, 10:59
- Двигатель:: 6G72
- Мой автомобиль(и):: Pajero
- Откуда: Владивосток
- Контактная информация:
Re: Реле звукового сигнала
Да Японцы ещё вносят модернизаций немало. Двигатель могут выпускать лет двадцать - модель та же, а если сравнить первый и последний то можно очень удивиться, что это один и тот же. В схемах конечно отражается всё, но народ часто в ступор впадает, да и изучение схем в таких условиях усложняется. )))
Нада завтра не забыть под капот залезть. Я пешком щас хожу. На самом деле не поленился поразглядывать схемы и стал меньше сомневаться, что реле не найду - питание идет по схеме не постоянно, а включается при повороте ключа. Это уже больше похоже на правду. Тогда вполне можно обойтись без реле если клаксоны не особо мощные. Хотя конечно реле там все равно должно быть, но видимо общее. Не интересовался, как осуществлено включение питания? )))
Нада завтра не забыть под капот залезть. Я пешком щас хожу. На самом деле не поленился поразглядывать схемы и стал меньше сомневаться, что реле не найду - питание идет по схеме не постоянно, а включается при повороте ключа. Это уже больше похоже на правду. Тогда вполне можно обойтись без реле если клаксоны не особо мощные. Хотя конечно реле там все равно должно быть, но видимо общее. Не интересовался, как осуществлено включение питания? )))
MMC Pajero 5 дверей, V43w, 98г., 6G72, МКПП, левый руль.
MMC Pajero 3 двери, V23W, 94г., 6G72, АКПП, правый руль.
ММС Pajero 5 дверей, 89г., 4D56, АКПП, правый руль. (да упокоится с миром :))
MMC Pajero 3 двери, V23W, 94г., 6G72, АКПП, правый руль.
ММС Pajero 5 дверей, 89г., 4D56, АКПП, правый руль. (да упокоится с миром :))
