Домино Трофи 2026 - 25 Апреля - Обсудить и спросить тут.
не идёт ток на бензонасос
Модераторы: SNOOPER, Nbf, Romik, BAlex
не идёт ток на бензонасос
Всю башку сломал, ничё не понял.
короче, изначально искал причину несрабатывания ЦЗ, т.к. за ночь высасывало свежезаряженную оптиму до 5,5 вольт. Причём начались эти траблы после того как задымился борткомпьютер (кстати, остался жив) Сигналку обнулил до заводских установок. Проблемы остались те же. Теперь не могу завести, сначала заводилась и глохла через 20 секунд, а теперь совсем не подхватывает. Бензонасос рабочий (напрямую и через диагн. разъём пробовал), но на него проводка кажет следующее: при всех положениях ключа показания тестера = 0,63-0,66 V, при запуске двигателя напруга падает до нулей!
Укого мож было что-то подобное, ткните моськой в нужном направлении!!
Спасибо.
короче, изначально искал причину несрабатывания ЦЗ, т.к. за ночь высасывало свежезаряженную оптиму до 5,5 вольт. Причём начались эти траблы после того как задымился борткомпьютер (кстати, остался жив) Сигналку обнулил до заводских установок. Проблемы остались те же. Теперь не могу завести, сначала заводилась и глохла через 20 секунд, а теперь совсем не подхватывает. Бензонасос рабочий (напрямую и через диагн. разъём пробовал), но на него проводка кажет следующее: при всех положениях ключа показания тестера = 0,63-0,66 V, при запуске двигателя напруга падает до нулей!
Укого мож было что-то подобное, ткните моськой в нужном направлении!!
Спасибо.
Падж II 5d, 93 г. 6G72 12v на палке, SS, бодик 60 мм, СВ 27МГц, джек, лопата, балкон, силовик, шнорк, ComeUp9500, Simex ET II 36x12,5xR15, Rancho по кругу)))
"Наплевать на погоду, коль исправен мотор..."(с)
"Наплевать на погоду, коль исправен мотор..."(с)
- valiok
- Сообщения: 255
- Зарегистрирован: 13 окт 2010, 13:16
- Двигатель:: 3,0 дизель
- Мой автомобиль(и):: AUDI Q7
- Откуда: Москва
- Откуда: Москва
- Благодарил (а): 1 раз
- Поблагодарили: 21 раз
- Контактная информация:
Re: не идёт ток на бензонасос
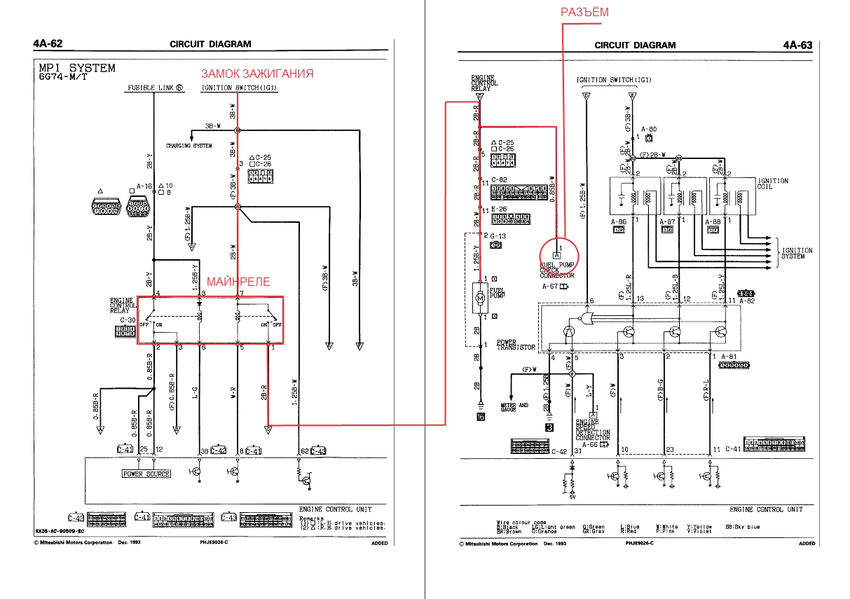
под капотом есть разъем на толстом жгуте с правой стороны на моторном щите( их там 2 или 3 )
цвет разъёма вроде синий
цвет провода вроде чёрно\белый( или ч\с )
это отросток от того провода, что идет на б\н
если на нем есть + при прокрутке стартером, то смотри где отвалился + при подходе к насосу
если на нем нет + при прокрутке стартером, то смотри где отвалился + от майнреле
когда не крутишь стартер на этом проводе должен быть (-) это минус который идет с насоса
майнреле ищи в районе ЭБУ
цвет разъёма вроде синий
цвет провода вроде чёрно\белый( или ч\с )
это отросток от того провода, что идет на б\н
если на нем есть + при прокрутке стартером, то смотри где отвалился + при подходе к насосу
если на нем нет + при прокрутке стартером, то смотри где отвалился + от майнреле
когда не крутишь стартер на этом проводе должен быть (-) это минус который идет с насоса
майнреле ищи в районе ЭБУ
+7 916 393 13 13
http://chiptun-msk.ru/
http://chiptun-msk.ru/
Re: не идёт ток на бензонасос
спасибо, померил. На диагностическом разъёме при пуске стартера прибор кажет 0, 28 V. Завтра буду выколупывать управляющее реле...
Падж II 5d, 93 г. 6G72 12v на палке, SS, бодик 60 мм, СВ 27МГц, джек, лопата, балкон, силовик, шнорк, ComeUp9500, Simex ET II 36x12,5xR15, Rancho по кругу)))
"Наплевать на погоду, коль исправен мотор..."(с)
"Наплевать на погоду, коль исправен мотор..."(с)
Re: не идёт ток на бензонасос
А кто знает - майнреле одинаковые на 3-литровом и на 3,5???
Падж II 5d, 93 г. 6G72 12v на палке, SS, бодик 60 мм, СВ 27МГц, джек, лопата, балкон, силовик, шнорк, ComeUp9500, Simex ET II 36x12,5xR15, Rancho по кругу)))
"Наплевать на погоду, коль исправен мотор..."(с)
"Наплевать на погоду, коль исправен мотор..."(с)
- valiok
- Сообщения: 255
- Зарегистрирован: 13 окт 2010, 13:16
- Двигатель:: 3,0 дизель
- Мой автомобиль(и):: AUDI Q7
- Откуда: Москва
- Откуда: Москва
- Благодарил (а): 1 раз
- Поблагодарили: 21 раз
- Контактная информация:
Re: не идёт ток на бензонасос
хз, нада смотреть
а вообще это тупо два реле в одном корпусе
а вообще это тупо два реле в одном корпусе
+7 916 393 13 13
http://chiptun-msk.ru/
http://chiptun-msk.ru/
Re: не идёт ток на бензонасос
выяснил, что они разные (даже по фишкам), сегодня поменял майнреле и реле ЦЗ. ЦЗ работает в прежнем режиме (не работает))) и по прежнему не заводится((( как всё выясню - отпишусь...
Падж II 5d, 93 г. 6G72 12v на палке, SS, бодик 60 мм, СВ 27МГц, джек, лопата, балкон, силовик, шнорк, ComeUp9500, Simex ET II 36x12,5xR15, Rancho по кругу)))
"Наплевать на погоду, коль исправен мотор..."(с)
"Наплевать на погоду, коль исправен мотор..."(с)
-
Директор
- Сообщения: 454
- Зарегистрирован: 13 ноя 2009, 19:55
- Двигатель:: Бензин 3.8
- Мой автомобиль(и):: Монтеро 2 1999г, Монтеро 3 2004г.
- Откуда: Томилино
- Откуда: Люберцы
- Благодарил (а): 5 раз
- Поблагодарили: 3 раза
Re: не идёт ток на бензонасос
Попал! Нет напруги на насос не могу завестись. Стою в районе Головинского шоссе, кто нибудь может помочь в питалове насоса сейчас? 8 910 408 95 44 Владимир
- Kiread
- Сообщения: 2110
- Зарегистрирован: 22 мар 2010, 10:49
- Двигатель:: 6G74
- Мой автомобиль(и):: Монтеро 3 LTD `02, 3.5 MPI
- Откуда: Москва, Зеленоград
- Благодарил (а): 8 раз
- Поблагодарили: 37 раз
- Контактная информация:
Re: не идёт ток на бензонасос
Блин, в 6-30 рядом был...
На будущее http://www.pajero4x4.ru/gclub/
Там берешь ближайшие точки и вызванивай
На будущее http://www.pajero4x4.ru/gclub/
Там берешь ближайшие точки и вызванивай
Монтеро 3 LTD `02, 3.5 MPI. G012(лето). Bridgestone IC5000(Зима) - Продан :(
Suzuki Jimny + Subaru XV
NMPS 2019. Cooper STT Pro 265/70/17.
903-562-сорок_девять-46 Григорий
Suzuki Jimny + Subaru XV
NMPS 2019. Cooper STT Pro 265/70/17.
903-562-сорок_девять-46 Григорий
-
Директор
- Сообщения: 454
- Зарегистрирован: 13 ноя 2009, 19:55
- Двигатель:: Бензин 3.8
- Мой автомобиль(и):: Монтеро 2 1999г, Монтеро 3 2004г.
- Откуда: Томилино
- Откуда: Люберцы
- Благодарил (а): 5 раз
- Поблагодарили: 3 раза
Re: не идёт ток на бензонасос
Спасибо за советы Kiread и LEON !
Предыстория такая дочь бросила в прикуриватель монетку и перестал он работать вместе с приводом зеркал.Я поменял предохранитель, возможно задел и провода сигнализации, так как она стала работать немного не так как обычно, а через 2 часа не смог завести.Думаю, что проблема в сиге. Попробую запитать напрямую и к автоэлектрику.
Буду признателен за наводку к хорошему и недорогому спецу.
Предыстория такая дочь бросила в прикуриватель монетку и перестал он работать вместе с приводом зеркал.Я поменял предохранитель, возможно задел и провода сигнализации, так как она стала работать немного не так как обычно, а через 2 часа не смог завести.Думаю, что проблема в сиге. Попробую запитать напрямую и к автоэлектрику.
Буду признателен за наводку к хорошему и недорогому спецу.
- Kiread
- Сообщения: 2110
- Зарегистрирован: 22 мар 2010, 10:49
- Двигатель:: 6G74
- Мой автомобиль(и):: Монтеро 3 LTD `02, 3.5 MPI
- Откуда: Москва, Зеленоград
- Благодарил (а): 8 раз
- Поблагодарили: 37 раз
- Контактная информация:
Re: не идёт ток на бензонасос
Там прямо рядом есть сервис http://mmcservice.ru/
Не в курсе насчет электрика и его цены, звони.
Сам там не обслуживался - на разборку только ездил.
Не в курсе насчет электрика и его цены, звони.
Сам там не обслуживался - на разборку только ездил.
Монтеро 3 LTD `02, 3.5 MPI. G012(лето). Bridgestone IC5000(Зима) - Продан :(
Suzuki Jimny + Subaru XV
NMPS 2019. Cooper STT Pro 265/70/17.
903-562-сорок_девять-46 Григорий
Suzuki Jimny + Subaru XV
NMPS 2019. Cooper STT Pro 265/70/17.
903-562-сорок_девять-46 Григорий
-
Директор
- Сообщения: 454
- Зарегистрирован: 13 ноя 2009, 19:55
- Двигатель:: Бензин 3.8
- Мой автомобиль(и):: Монтеро 2 1999г, Монтеро 3 2004г.
- Откуда: Томилино
- Откуда: Люберцы
- Благодарил (а): 5 раз
- Поблагодарили: 3 раза
Re: не идёт ток на бензонасос
Подключал провод не к той фишке как оказалось.Подключал где три провода, разобрался когда достал насос напрямую даю 12 в.не жужжит. Контролька горит, т.е. цепь замкнута. Симптомов умирания бензонасоса не было, мог он внезапно сгореть?
- Kiread
- Сообщения: 2110
- Зарегистрирован: 22 мар 2010, 10:49
- Двигатель:: 6G74
- Мой автомобиль(и):: Монтеро 3 LTD `02, 3.5 MPI
- Откуда: Москва, Зеленоград
- Благодарил (а): 8 раз
- Поблагодарили: 37 раз
- Контактная информация:
Re: не идёт ток на бензонасос
Ставь. 10шный БОШ имеет номер, заканчивающийся на 453 453. 20 минут на замену и поедешь оттуда =)
Ближайший магазин где насос 99% есть- по ленинградке в сторону МКАДа около 3-4х км. Напротив Макдональдса в одноэтажном здании магазин запчастей. Перед ним большая парковка.
По правую сторону от Лениградки в область.
Вместе с насосом надо б еще и фильтр поменять, но его в магазине точно нет
Ближайший магазин где насос 99% есть- по ленинградке в сторону МКАДа около 3-4х км. Напротив Макдональдса в одноэтажном здании магазин запчастей. Перед ним большая парковка.
По правую сторону от Лениградки в область.
Вместе с насосом надо б еще и фильтр поменять, но его в магазине точно нет
Монтеро 3 LTD `02, 3.5 MPI. G012(лето). Bridgestone IC5000(Зима) - Продан :(
Suzuki Jimny + Subaru XV
NMPS 2019. Cooper STT Pro 265/70/17.
903-562-сорок_девять-46 Григорий
Suzuki Jimny + Subaru XV
NMPS 2019. Cooper STT Pro 265/70/17.
903-562-сорок_девять-46 Григорий
-
Директор
- Сообщения: 454
- Зарегистрирован: 13 ноя 2009, 19:55
- Двигатель:: Бензин 3.8
- Мой автомобиль(и):: Монтеро 2 1999г, Монтеро 3 2004г.
- Откуда: Томилино
- Откуда: Люберцы
- Благодарил (а): 5 раз
- Поблагодарили: 3 раза
Re: не идёт ток на бензонасос
Насос реанимировал, завел на прямую с аккум. Поеду к электрику! Спасибо за советы!
-
Директор
- Сообщения: 454
- Зарегистрирован: 13 ноя 2009, 19:55
- Двигатель:: Бензин 3.8
- Мой автомобиль(и):: Монтеро 2 1999г, Монтеро 3 2004г.
- Откуда: Томилино
- Откуда: Люберцы
- Благодарил (а): 5 раз
- Поблагодарили: 3 раза
Re: не идёт ток на бензонасос
По дороге с Головинки в Люберцы заезжал на Электродную и другие сервисы со своей проблемой. Никто не хотел заниматься ремонтом сиги, проще всем старую удалить и подключить новую.На Электродной за диагностику загнули 1800р, а потом типо посмотрим насколько раскрутить.Обращался к ним несколько раз по разным причинам и всегда отношение на приемке не устраивало, как будто я им должен еще с того года, хотя моня у них всегда и обслуживался и наряды закрывались на большие суммы регулярно, а я больше сам могу сделать, вот откуда, наверное, неприязнь у нихк тем, кто много не платит. В Тойота вешняки диагностика 400. Стоимость установки в сервисах от 4500 до 6000р.В итоге возле дома в гаражаж нашел парня который занимается установкой сигналок. С ним договорились, что если не муторно и реально востановить старую, то оставляем то что есть, а так согласен на установку новой. В итоге он смог её починить и все заработало. Все вышло очень бюджетно. Кстати сход-развал он делает с напарником 3D.
8 926 538 84 71 Игорь, находится недалеко от поста ДПС на нулевом километре Егорьевского шоссе.
8 926 538 84 71 Игорь, находится недалеко от поста ДПС на нулевом километре Егорьевского шоссе.
- Kiread
- Сообщения: 2110
- Зарегистрирован: 22 мар 2010, 10:49
- Двигатель:: 6G74
- Мой автомобиль(и):: Монтеро 3 LTD `02, 3.5 MPI
- Откуда: Москва, Зеленоград
- Благодарил (а): 8 раз
- Поблагодарили: 37 раз
- Контактная информация:
Re: не идёт ток на бензонасос
Поздравляю 
Монтеро 3 LTD `02, 3.5 MPI. G012(лето). Bridgestone IC5000(Зима) - Продан :(
Suzuki Jimny + Subaru XV
NMPS 2019. Cooper STT Pro 265/70/17.
903-562-сорок_девять-46 Григорий
Suzuki Jimny + Subaru XV
NMPS 2019. Cooper STT Pro 265/70/17.
903-562-сорок_девять-46 Григорий
-
Директор
- Сообщения: 454
- Зарегистрирован: 13 ноя 2009, 19:55
- Двигатель:: Бензин 3.8
- Мой автомобиль(и):: Монтеро 2 1999г, Монтеро 3 2004г.
- Откуда: Томилино
- Откуда: Люберцы
- Благодарил (а): 5 раз
- Поблагодарили: 3 раза
Re: не идёт ток на бензонасос
Неожиданно заглок в дороге, бенз не идет, БОШ 453 453 подойдет? Или что то лучше появилось?
Re: не идёт ток на бензонасос
не знаю, что такое 453 453... подойдёт от десятки, но советую всё-таки как временную меру, т.к. машина едет гораздо тупее)))
Падж II 5d, 93 г. 6G72 12v на палке, SS, бодик 60 мм, СВ 27МГц, джек, лопата, балкон, силовик, шнорк, ComeUp9500, Simex ET II 36x12,5xR15, Rancho по кругу)))
"Наплевать на погоду, коль исправен мотор..."(с)
"Наплевать на погоду, коль исправен мотор..."(с)
-
Директор
- Сообщения: 454
- Зарегистрирован: 13 ноя 2009, 19:55
- Двигатель:: Бензин 3.8
- Мой автомобиль(и):: Монтеро 2 1999г, Монтеро 3 2004г.
- Откуда: Томилино
- Откуда: Люберцы
- Благодарил (а): 5 раз
- Поблагодарили: 3 раза
Re: не идёт ток на бензонасос
Поменял, поставил от 10 за 650 руб. вместе с сеткой. Поведение машины не изменилось, сколько поработает - вопрос времени. Производитель AST
