Подогрев сидений .....

Mitsubishi Pajero/Montero IV

Модераторы: SNOOPER, Nbf, drcham, Romik, BAlex, DenVer, SoundSpeed

Вахтовик
Сообщения: 925
Зарегистрирован: 09 май 2006, 02:21
Двигатель:: 6g72
Мой автомобиль(и):: Паджеро ‎
Откуда: Россия

Подогрев сидений .....

Сообщение Вахтовик »

Всем привет ! Юзаю по случаю араба в коже 3.0 2008г , эл.сидения и т.д , но ....обратил внимание , что нет кнопок на подогрева сидений ::-(: . Зато есть управление музыкой на руле :*THUMBS UP*: .
Заглянул под сидение и увидел разъемы свободные , три провода (папка) , есть у обоих передних сидений . Один черный и два желтых провода .
Блин , а может нагревательный элемент все-таки стоит в сидении ?

Есть у кого опыт проверки и ДОмонтажа ?
Аватара пользователя
Captain Sergio
Сообщения: 4557
Зарегистрирован: 30 янв 2012, 22:01
Двигатель:: 4G18
Мой автомобиль(и):: Pajero Пинин, 1999, АКПП, BMW X5
Откуда: Ульяновск
Благодарил (а): 264 раза
Поблагодарили: 346 раз

Re: Подогрев сидений .....

Сообщение Captain Sergio »

Проверь сопротивление. Должно быть около 10 Ом. На трехконтактном 2 и 8 Ом соответственно. Примерно!
Сергей. Все будет хорошо! Грязезащита для рамных автомобилей.
Аватара пользователя
Teddybearr
Сообщения: 5109
Зарегистрирован: 27 апр 2008, 16:42
Двигатель:: 4m41 ТрубоДъзль
Мой автомобиль(и):: Pajero
Откуда: Ленинград
Благодарил (а): 13 раз
Поблагодарили: 86 раз

Re: Подогрев сидений .....

Сообщение Teddybearr »

КЛИМ писал(а):Всем привет ! Юзаю по случаю араба в коже 3.0 2008г , эл.сидения и т.д , но ....обратил внимание , что нет кнопок на подогрева сидений ::-(: . Зато есть управление музыкой на руле :*THUMBS UP*: .
Заглянул под сидение и увидел разъемы свободные , три провода (папка) , есть у обоих передних сидений . Один черный и два желтых провода .
Блин , а может нагревательный элемент все-таки стоит в сидении ?

Есть у кого опыт проверки и ДОмонтажа ?
Здарова.
Клим блин, дорогой, ну не первый же день, уже была тема и тут!
Давай не боянить а продолжать :;-):

Сегодня что? День Баяниста :WhiteVoid_1:
Есть вопросы по Четверке? Идите в F.A.Q.!
Вахтовик
Сообщения: 925
Зарегистрирован: 09 май 2006, 02:21
Двигатель:: 6g72
Мой автомобиль(и):: Паджеро ‎
Откуда: Россия

Re: Подогрев сидений .....

Сообщение Вахтовик »

Привет TeddyBearr999 ! Сильно извиняюсь , смотрел эти темы , они пустые в плане инфы .
Проверь сопротивление. Должно быть около 10 Ом. На трехконтактном 2 и 8 Ом соответственно. Примерно!
респект !
Аватара пользователя
Teddybearr
Сообщения: 5109
Зарегистрирован: 27 апр 2008, 16:42
Двигатель:: 4m41 ТрубоДъзль
Мой автомобиль(и):: Pajero
Откуда: Ленинград
Благодарил (а): 13 раз
Поблагодарили: 86 раз

Re: Подогрев сидений .....

Сообщение Teddybearr »

КЛИМ писал(а):Привет TeddyBearr999 ! Сильно извиняюсь , смотрел эти темы , они пустые в плане инфы .
Проверь сопротивление. Должно быть около 10 Ом. На трехконтактном 2 и 8 Ом соответственно. Примерно!
респект !
Я к тому что бы не плодить темы, а продолжать их, дополнять инфой.
К тому же не совсем уж и пустые, там уже сказано что проводка вся есть.
И достаточно купить полотна подогрева и кнопки.
Есть вопросы по Четверке? Идите в F.A.Q.!
Вахтовик
Сообщения: 925
Зарегистрирован: 09 май 2006, 02:21
Двигатель:: 6g72
Мой автомобиль(и):: Паджеро ‎
Откуда: Россия

Re: Подогрев сидений .....

Сообщение Вахтовик »

Если у меня на "папке" под сидением есть 2 и 8 Ома , то полотно есть , а нет проводки и кнопок , все верно ?

Еще момент , схема без реле работает , напрямую ?
Аватара пользователя
Teddybearr
Сообщения: 5109
Зарегистрирован: 27 апр 2008, 16:42
Двигатель:: 4m41 ТрубоДъзль
Мой автомобиль(и):: Pajero
Откуда: Ленинград
Благодарил (а): 13 раз
Поблагодарили: 86 раз

Re: Подогрев сидений .....

Сообщение Teddybearr »

КЛИМ писал(а):Если у меня на "папке" под сидением есть 2 и 8 Ома , то полотно есть , а нет проводки и кнопок , все верно ?
Наоборот,есть проводка
КЛИМ писал(а): Еще момент , схема без реле работает , напрямую ?
Должна быть релюша, надо схему электрики посмотреть.
Есть вопросы по Четверке? Идите в F.A.Q.!
Вахтовик
Сообщения: 925
Зарегистрирован: 09 май 2006, 02:21
Двигатель:: 6g72
Мой автомобиль(и):: Паджеро ‎
Откуда: Россия

Re: Подогрев сидений .....

Сообщение Вахтовик »

Наоборот,есть проводка
Извини друг , "папка" из сидения торчит и если на нем 2 и 8 Ома , то нагревательный элемент в сидении есть , остается проводку до кнопок и сами кнопки докупить.
Аватара пользователя
megranny
Сообщения: 6152
Зарегистрирован: 18 июл 2011, 01:22
Двигатель:: дизель 4M41
Мой автомобиль(и):: Subaru Forester III(S12),MP IV-3,2 Di-D Ultimate
Откуда: ЦФО,76
Благодарил (а): 16 раз
Поблагодарили: 79 раз

Re: Подогрев сидений .....

Сообщение megranny »

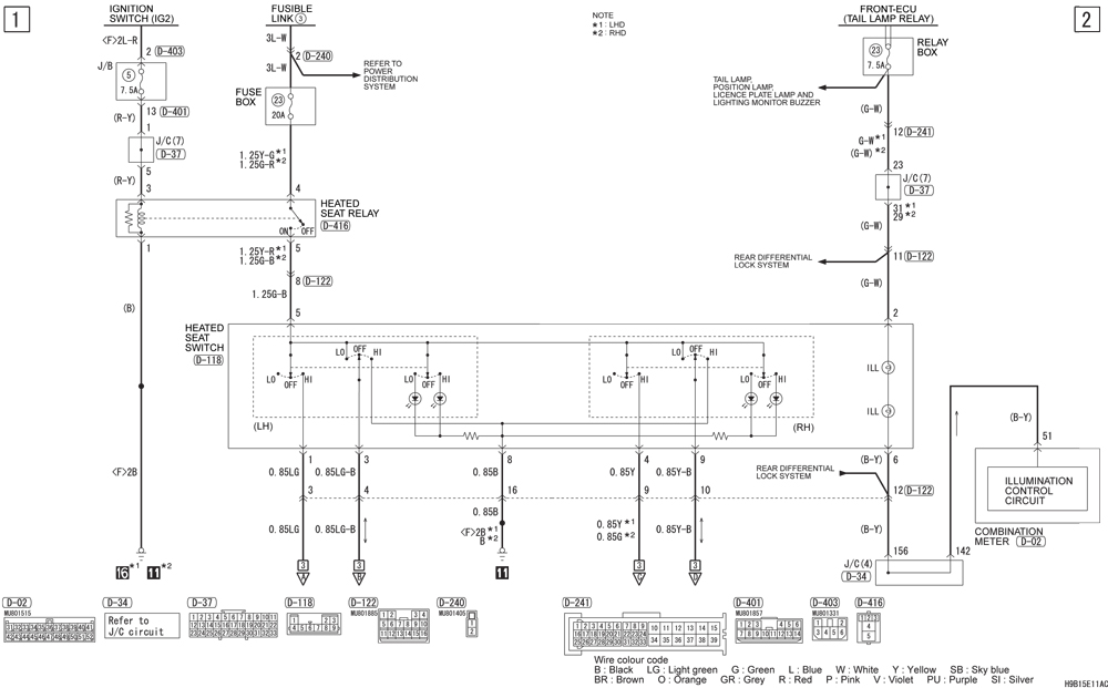
Вот схемы
Heated-Seat.jpg
Heated-Seat-2.jpg
I made in Japan
Вахтовик
Сообщения: 925
Зарегистрирован: 09 май 2006, 02:21
Двигатель:: 6g72
Мой автомобиль(и):: Паджеро ‎
Откуда: Россия

Re: Подогрев сидений .....

Сообщение Вахтовик »

Спасибо , на схемах не увидел реле , питание на нагревательный элемент идет прямиком с кнопок , все верно ?
Вахтовик
Сообщения: 925
Зарегистрирован: 09 май 2006, 02:21
Двигатель:: 6g72
Мой автомобиль(и):: Паджеро ‎
Откуда: Россия

Re: Подогрев сидений .....

Сообщение Вахтовик »

?
Аватара пользователя
megranny
Сообщения: 6152
Зарегистрирован: 18 июл 2011, 01:22
Двигатель:: дизель 4M41
Мой автомобиль(и):: Subaru Forester III(S12),MP IV-3,2 Di-D Ultimate
Откуда: ЦФО,76
Благодарил (а): 16 раз
Поблагодарили: 79 раз

Re: Подогрев сидений .....

Сообщение megranny »

КЛИМ писал(а):Спасибо , на схемах не увидел реле , питание на нагревательный элемент идет прямиком с кнопок , все верно ?
Как же,реле на верхнем рисунке есть.
I made in Japan
Вахтовик
Сообщения: 925
Зарегистрирован: 09 май 2006, 02:21
Двигатель:: 6g72
Мой автомобиль(и):: Паджеро ‎
Откуда: Россия

Re: Подогрев сидений .....

Сообщение Вахтовик »

Понятно , тогда еще вопрос по прикуривателю - не работает ! Предохранитель 15А №9 - целый .
В багажнике разетка тоже не работает , есть мысли ?

Еще обратил внимания, что не выезжают омыватели фар , хотя слышен звук работы моторчика омывателя . Подскажите , какой предохранитель на схеме , не шарю я по англ. блин ::-(:
Последний раз редактировалось Вахтовик 12 апр 2012, 23:13, всего редактировалось 1 раз.
Аватара пользователя
megranny
Сообщения: 6152
Зарегистрирован: 18 июл 2011, 01:22
Двигатель:: дизель 4M41
Мой автомобиль(и):: Subaru Forester III(S12),MP IV-3,2 Di-D Ultimate
Откуда: ЦФО,76
Благодарил (а): 16 раз
Поблагодарили: 79 раз

Re: Подогрев сидений .....

Сообщение megranny »

КЛИМ писал(а):Понятно , тогда еще вопрос по прикуривателю - не работает ! Предохранитель 15А №9 - целый .
В багажнике разетка тоже не работает , есть мысли ?
Надо тоже схему найти.Попробую.
I made in Japan
Вахтовик
Сообщения: 925
Зарегистрирован: 09 май 2006, 02:21
Двигатель:: 6g72
Мой автомобиль(и):: Паджеро ‎
Откуда: Россия

Re: Подогрев сидений .....

Сообщение Вахтовик »

Должен буду !
Аватара пользователя
Teddybearr
Сообщения: 5109
Зарегистрирован: 27 апр 2008, 16:42
Двигатель:: 4m41 ТрубоДъзль
Мой автомобиль(и):: Pajero
Откуда: Ленинград
Благодарил (а): 13 раз
Поблагодарили: 86 раз

Re: Подогрев сидений .....

Сообщение Teddybearr »

КЛИМ писал(а): Еще обратил внимания, что не выезжают омыватели фар , хотя слышен звук работы моторчика омывателя . Подскажите , какой предохранитель на схеме , не шарю я по англ. блин ::-(:
Бочек полный? если он на половину полон, то они не будут выезжать.
Есть вопросы по Четверке? Идите в F.A.Q.!
Аватара пользователя
megranny
Сообщения: 6152
Зарегистрирован: 18 июл 2011, 01:22
Двигатель:: дизель 4M41
Мой автомобиль(и):: Subaru Forester III(S12),MP IV-3,2 Di-D Ultimate
Откуда: ЦФО,76
Благодарил (а): 16 раз
Поблагодарили: 79 раз

Re: Подогрев сидений .....

Сообщение megranny »

КЛИМ писал(а):Должен буду !
Дык,блин,нету там ничего такого.
См.схему
Cigarette.jpg
А не работает-то сам прикуриватель?А напругу мерил в гнездах?
I made in Japan
Аватара пользователя
megranny
Сообщения: 6152
Зарегистрирован: 18 июл 2011, 01:22
Двигатель:: дизель 4M41
Мой автомобиль(и):: Subaru Forester III(S12),MP IV-3,2 Di-D Ultimate
Откуда: ЦФО,76
Благодарил (а): 16 раз
Поблагодарили: 79 раз

Re: Подогрев сидений .....

Сообщение megranny »

И он при включенном зажигании работает.
I made in Japan
Вахтовик
Сообщения: 925
Зарегистрирован: 09 май 2006, 02:21
Двигатель:: 6g72
Мой автомобиль(и):: Паджеро ‎
Откуда: Россия

Re: Подогрев сидений .....

Сообщение Вахтовик »

И он при включенном зажигании работает.
Вот , уже не все просто , каким образом он на замок завязан ?
Думаю в этом направлении покопать . Цепи целые , предохранители тоже .
Бочек полный?
:=-O: Завтра проверю , спасибо за наколку !
Аватара пользователя
Lebed
Сообщения: 10748
Зарегистрирован: 25 июл 2010, 11:23
Двигатель:: ******
Мой автомобиль(и):: ******
Откуда: ***
Откуда: ***
Благодарил (а): 236 раз
Поблагодарили: 431 раз

Re: Подогрев сидений .....

Сообщение Lebed »

КЛИМ писал(а):Понятно , тогда еще вопрос по прикуривателю - не работает ! Предохранитель 15А №9 - целый .
В багажнике разетка тоже не работает , есть мысли ?...
Почитайте, это поможет.
Последний раз редактировалось Lebed 13 апр 2012, 06:58, всего редактировалось 1 раз.
"Если театр начинается с вешалки, то за такие пьесы нужно вешать." (с)
P.S. Для упырей- "Мы с тобой Гималаи; остальные — ничтожества." (с)
Ответить

Вернуться в «Mitsubishi Pajero/Montero IV»